The Project Gutenberg eBook of Führer durch das k. k. österreichische Museum für Kunst und Industrie

This ebook is for the use of anyone anywhere in the United States and most other parts of the world at no cost and with almost no restrictions whatsoever. You may copy it, give it away or re-use it under the terms of the Project Gutenberg License included with this ebook or online at www.www.moredirect.org. If you are not located in the United States, you will have to check the laws of the country where you are located before using this eBook.

Title: Führer durch das k. k. österreichische Museum für Kunst und Industrie

Creator: K.K. Österreichisches Museum für Kunst und Industrie

Release date: October 17, 2023 [eBook #71896]

Language: German

Original publication: Wien: Verlag des Museums, 1914

Credits: The Online Distributed Proofreading Team at https://www.pgdp.net

*** START OF THE PROJECT GUTENBERG EBOOK FÜHRER DURCH DAS K. K. ÖSTERREICHISCHE MUSEUM FÜR KUNST UND INDUSTRIE ***

Anmerkungen zur Transkription

Der vorliegende Text wurde anhand der gedruckten Ausgabe von 1914 so weit wie möglich originalgetreu wiedergegeben. Typographische Fehler wurden stillschweigend korrigiert. Ungewöhnliche und heute nicht mehr verwendete Schreibweisen bleiben gegenüber dem Original unverändert; fremdsprachliche Ausdrücke wurden nicht korrigiert.

Entsprechend der Inhaltsübersicht wurden die Überschriften der Kapitel ‚ZWEITES STOCKWERK‘ und ‚ZUBAU‘ dem Original gegenüber durch die Buchstaben ‚B.‘ bzw. ‚C.‘ ergänzt.

Abhängig von der im jeweiligen Lesegerät installierten Schriftart können die im Original gesperrt gedruckten Passagen gesperrt, in serifenloser Schrift, oder aber sowohl serifenlos als auch gesperrt erscheinen.

Original-Einband

FÜHRER
DURCH DAS K. K. ÖSTERREICHISCHE MUSEUM FÜR KUNST UND INDUSTRIE

PREIS: 1 KRONE

WIEN 1914
VERLAG DES MUSEUMS

AUS DER K. K. HOF- UND STAATSDRUCKEREI.

[S. 3]

EINLEITUNG.

Die Gründung des k. k. Österreichischen Museums für Kunst und Industrie ist mittels Allerhöchsten Handschreibens Seiner Majestät des Kaisers Franz Joseph I. an den damaligen Ministerpräsidenten, Seine kaiserliche Hoheit Erzherzog Rainer, am 7. März 1863 angeordnet worden.

Am 31. März 1864 wurde von Seiner Majestät dem Kaiser Seine k. u. k. Hoheit Erzherzog Rainer zum Protektor und der Universitätsprofessor Dr. Rudolf von Eitelberger zum Direktor des Museums ernannt. Die Anstalt wurde am 12. Mai 1864 im ehemaligen Ballhause der k. k. Hofburg mit 2000 geliehenen Gegenständen der alten Kunstgewerbe eröffnet.

Das Institut hat die Aufgabe, durch Herbeischaffung und Bereitstellung der Hilfsmittel, welche Kunst und Wissenschaft bieten, die Leistungsfähigkeit der Kunstgewerbe zu heben, den Geschmack der Kunstgewerbetreibenden und des Publikums zu wecken und zu veredeln und so die kunstgewerbliche Tätigkeit zu fördern.

Außerdem können Künstler und Kunstgewerbetreibende ihre neuen Arbeiten, wenn diese den Anforderungen und Zwecken des Museums entsprechen, nach Maßgabe des Raumes zeitweilig unentgeltlich im Museum ausstellen.

Am 4. November 1871 wurde das nach den Plänen des Oberbaurates Heinrich Ritter von[S. 4] Ferstel in den Jahren 1868 bis 1871 am Stubenring erbaute Museumsgebäude seiner Bestimmung übergeben. Dasselbe bildet einen zweigeschossigen Bau und ist im Stile der italienischen Renaissance und in Ziegelrohbau ausgeführt.

In den Jahren 1906 bis 1909 wurde im Füllboden des alten Wienflußbettes nach den Plänen des Oberbaurates Ludwig Baumann ein freistehender Erweiterungsbau aufgeführt und dieser durch einen eingeschobenen Korridoranbau mit dem alten Museumsgebäude verbunden.

Als Staatsanstalt untersteht das Museum unmittelbar dem k. k. Ministerium für öffentliche Arbeiten.

Im Jahre 1898, nach dem Rücktritte des Erzherzogs Rainer vom Protektorat, erhielt das Museum ein mit Allerhöchster Entschließung vom 28. November 1898 genehmigtes neues Statut.

Nach diesem neuen Statut besteht die Museumsleitung aus dem Kuratorium und aus dem Direktor der Anstalt.

Das Kuratorium hat die Aufgabe, die gesamte Tätigkeit des Museums wahrzunehmen, es fungiert als Beirat des Ministers für öffentliche Arbeiten in allen Angelegenheiten der obersten Leitung des Museums und entscheidet selbständig in den ihm ausdrücklich vorbehaltenen Angelegenheiten.

An der Spitze des Kuratoriums steht ein von Seiner Majestät dem Kaiser ernannter Präsident.

Die Mitglieder des Kuratoriums werden von dem Minister für öffentliche Arbeiten mit einer Funktionsdauer von drei Jahren ernannt.

Die Verbindung des Museums nach außen wird durch Korrespondenten hergestellt.

[S. 5]

ALLGEMEINE BESTIMMUNGEN.

Die SAMMLUNGEN des Museums sind geöffnet: An Wochentagen — mit Ausnahme des Montags — von 9 bis 4 Uhr, an Sonn- und Feiertagen vom 1. Oktober bis 30. April von 9 bis 4 Uhr, vom 1. Mai bis 30. September von 9 bis 1 Uhr; Dienstag, Mittwoch Eintritt 60 h, die übrigen Tage unentgeltlich.

BIBLIOTHEK: Vom 21. Oktober bis 20. März an Wochentagen — ausgenommen Montag — von 9 bis 1 und von 6 bis ½8 Uhr abends, vom 21. März bis 20. Oktober an Wochentagen — ausgenommen Montag — von 9 bis 2 Uhr, an Sonn- und Feiertagen während des ganzen Jahres von 9 bis 1 Uhr.

Künstler, Handwerker u. dgl., welche in den Sammlungen oder in der Bibliothek arbeiten wollen, haben an allen Besuchstagen freien Zutritt.

Für die Benützung der Bibliothek besteht eine besondere Vorschrift (siehe Seite 110).

An der Garderobe ist für das Stück eine Gebühr von 10 Hellern zu entrichten.

Es ist nicht gestattet, ausgestellte Gegenstände zu berühren; das Aufsichtspersonal, welchem die größte Höflichkeit zur Pflicht gemacht ist, hat die strenge Weisung, diese Bestimmung aufrecht zu erhalten.

**
*

Den Verkauf der literarischen Publikationen des Museums, soweit diese aus dem Verlage des Instituts zu beziehen sind (siehe das Verzeichnis Seite 198), besorgt das Bureau im Halbstock des alten Gebäudes, rechts.

[S. 7]

FÜHRER DURCH DAS MUSEUM.

Säulenhof
Saal
I
Schmuck- und Emailarbeiten. Seite 11.
 „
II
Arbeiten der Edelschmiede und verwandter Gewerbe. Seite 23.
 „
IV
Arbeiten aus unedlen Metallen. Seite 30.
 „
V, III
Möbelsammlung. Seite 40.
 „
VIII
Skulpturen in Stein und Terrakotta. Seite 56. Holzskulpturen. Seite 59.
 „
VI, VII
Textilsammlung. Seite 60.
Saal
IX
Kleine Plastik, Lederarbeiten. Seite 87.
Räume
X–XIX
Historische Interieurs. Seite 93.
Raum
XX
Sitzungssaal. Seite 96.
 „
XXI
Orientalisches Zimmer. Seite 96.
Bibliothek.
Räume
XXII-XXVI
Ostasiatische Sammlung. Seite 113.
[S. 8]
Raum
XXVII
Alt-Wiener Porzellanzimmer. Seite 117.
Keramik. Seite 118.
Glasarbeiten. Seite 174.
Glasmalereien. Seite 195.
Verzeichnis der literarisch-artistischen Publikationen des Museums. Seite 198.
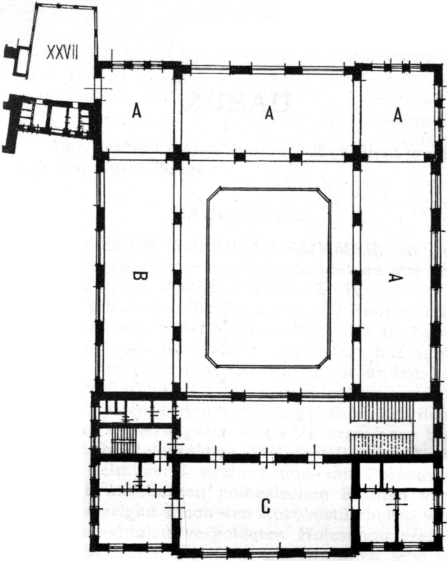
ERDGESCHOSS.
a. Vestibül. b. Portier. c. d. Bureaus.

[S. 11]

A. ERDGESCHOSS.

SÄULENHOF.

Der Säulenhof enthält eine Anzahl von größeren Originalplastiken und Gipsabgüssen.

SAAL I.
SCHMUCK UND EMAILARBEITEN.

Wandpult I. Schmuckstücke aus der Antike. Aus der älteren hellenischen Kultur stammt der kleine Goldreif mit dem getriebenen Bild einer Löwenjagd, ein Fund aus Eretria, ca. X. bis VIII. Jahrhundert v. Chr. Eine altitalische Fibel, Silber mit Goldspiralen, gefunden in Benevent, ca. VI. Jahrhundert v. Ch. Etruskisches Golddiadem, III. Jahrhundert v. Chr. Etruskische Fibel, Goldfiligranarbeit. Goldener Ohrring mit Löwenkopf, griechisch-italische Arbeit des IV. Jahrhunderts v. Chr. Körbchenförmiger etruskischer Ohrring, ca. VI. Jahrhundert v. Chr. Römische und griechische Ohrringe mit schwebenden Eroten oder Nikefigürchen und mehrere andere Typen. Römische Fingerringe. Kleine Goldbüste mit dem Porträt einer Dame, römisch, I. Jahrhundert n. Chr. Kette mit schwarzen Steinen, römisch, II. bis III. Jahrhundert n. Chr. Armband, Silber vergoldet, mit Schlangenkopf am Ablauf, römisch, II. bis III. Jahrhundert.

Bronzeschmuck: Etruskische Zierstücke aus getriebenen Bronzeplättchen mit Heldengeschichten[S. 12] und Masken von einem Sessel aus einer etruskischen Grabkammer am Monte Romano.

Tischvitrine II. Hellenische Bronzespiegel und Spiegelkapseln aus dem V. und IV. Jahrhundert v. Chr.

Wandpult III. Griechische, altitalische und römische Bronzefibeln. Spätrömischer Bronzeschmuck mit Emailverzierungen, hauptsächlich Scheibenfibeln, Funde aus Uj-Szöny. Spätrömische Goldschnalle mit Granateinlagen. Römischer Bronzeschmuck aus der Zeit der Völkerwanderung (Fibeln in Tierform). Germanischer Schmuck aus der Völkerwanderung: Goldgürtel und Halskette; Taubenfibel aus Bein geschnitzt; Bernsteinanhänger; goldenes Armband mit Tierköpfen und rotem Schmelz am Ablauf. Aus dem frühen Mittelalter: Eiserne Gürtelschnalle mit Silbertauschierung (Merowingerzeit). Eine sarazenische Scheibenfibel mit Emailverzierung aus Sizilien, ca. XI. Jahrhundert n. Chr.

Die Seltenheit und Kostbarkeit des antiken Schmuckes nötigte zur Erwerbung von Kopien. Von dem strengen Schmuckstil der ältesten Kultur der westlichen alten Welt geben Abgüsse von den Zieraten aus den Königsgräbern in Mykenä Kunde (Vitrine IV); nach griechischen, etruskischen und römischen Originalen sind die Kopien in Vitrine V, die in den siebziger Jahren des vorigen Jahrhunderts von Castellani in Rom meisterhaft hergestellt wurden. Galvanoplastische Nachbildungen von dem Goldfund in Vettersfelde (Wandschrank VI) zeigen den merkwürdigen, orientalisch beeinflußten Stil ostgriechischer, jonischer Goldschmiede; es sind Schmuckstücke, die für einen Skythenfürsten hergestellt und in der Völkerwanderung[S. 13] nach Brandenburg verschlagen worden sind. Im gleichen Schrank unten die galvanoplastischen Nachbildungen des Schatzes von Petrossa in Rumänien, byzantinische Goldschmiedearbeiten um 400 n. Chr.

Vitrine VII und VIII. Mittelalterliche Emailarbeiten. Das XII. und XIII. Jahrhundert war die Blütezeit des Grubenschmelzes am Niederrhein und in Limoges. (Beim Grubenschmelz wurden die zur Aufnahme der Emailfarben bestimmten Stellen aus dem Kupfer- oder Bronzegrund ausgestochen, in diese Gruben wurden die Glasflüsse eingeschmolzen, die trennenden Flächen und Stege blieben stehen und wurden zumeist vergoldet.) Limoger Grubenschmelz sind zwei Schüsseln in Vitrine VII, rheinischen Ursprungs die übrigen Kleinodien derselben Vitrine: das Reliquienkästchen, die emaillierten Kupferplatten mit den Kruzifixen, Leuchter, Hostienbüchse und die gotische Chormantelschließe. In der Tischvitrine VIII Fragmente von Reliquienschreinen u. a. aus dem XII. Jahrhundert, Emailplättchen in Grubenschmelz.

Vitrine IX. Tiefschnittschmelz und Maleremail. Im späteren Mittelalter wurde in Italien, besonders in Siena, der Tiefschnittschmelz geübt, dessen durchsichtige Glasflüsse auf einem reliefartig eingeschnittenen Silbergrund ohne Trennungsstege liegen; dieses transluzide Email, das ähnliche Farbenwirkungen erzeugt wie die alte Glasmalerei, ist in einem schönen sienesischen Kreuz des XV. Jahrhunderts vertreten. — In Limoges entwickelte sich am Ende des XV. Jahrhunderts eine neue Art des Emaillierens, das „Maleremail“; hier wurden die Farben, beziehungsweise die Bilder auf die mit einem Schmelzgrund überzogene Kupferplatte aufgetragen,[S. 14] ohne trennende Stege oder Gruben; bis zum Ende des XVI. Jahrhunderts ist das Maleremail in Limoges von einer Reihe großer Meister und Meisterfamilien gepflegt worden. Die Emailbilder in dieser Vitrine gehören alle Limousiner Werkstätten an. —

Vitrine X. Venezianer Email. Den Arbeiten von Limoges technisch verwandt ist das „Venezianer Email“, wie die auf Kupfer emaillierten Schalen, Kannen, Leuchter und dergleichen Geräte mit ihren dunkelblauen, dunkelgrünen und weißen Farben bezeichnet werden; es ist um 1500 gepflegt worden. Zwei Schalen, ein Krug und ein kleines Räuchergefäß vertreten hier diese Art, desgleichen ein Ostensorium in Vitrine IX.

Tischvitrine XI. Malerschmelzarbeiten. Täfelchen mit den Taten des Herakles; ovale Platte mit Madonnenbild; Limousiner Plättchen mit Heiligenbildern.

Vitrine XII und Tischvitrine XIII. Das in der Bijouterie verwendete „Goldschmiedeemail“ ist in den herrlichen Stücken deutschen Renaissanceschmuckes vertreten, die samt dem mit Schmuckstücken reichbesetzten Kelch aus der Kirche des ehemaligen Damenstiftes zu Hall in Tirol stammen. Es sind süddeutsche Arbeiten aus dem XVI. und XVII. Jahrhundert. Die Schmuckstücke waren auf zwei barocke Perlenkronen montiert, die im Wandschrank XVII aufbewahrt sind.

Kruzifix, Silber mit transluzidem Email. Italienisch, XV. Jahrhundert

Vitrine XIV. Drei emaillierte Anhänger, süddeutsche Renaissancearbeiten. Gotische Silberplättchen mit Heiligenbildern in Niello. (Bei dieser Technik wird in die vertieften Stellen des Metallgrundes eine schwarze Metallmischung mit Schwefel eingeschmolzen.) Ein Achatkreuz mit Nielloplättchen[S. 17] und Kristallkugeln, XV. Jahrhundert. Zwei Nielloplättchen für Dolchscheiden, süddeutsche Renaissancearbeit. Zwei gravierte Silberscheiben, die eine mit der Schilderung der Versuchungen Christi durch den Teufel, von einem niederländischen Stecher des XVI. Jahrhunderts; die andere ein signiertes Werk des Michael le Blon (um 1600) schildert Abigail vor David.

Wandschrank XV. Prunkschüssel aus vergoldetem Messing, eingraviert in ein reiches Ornament das Gleichnis vom verlorenen Sohn, deutsch, XVI. Jahrhundert. Prunkschüssel, Messing, mit silbertauschierten Ornamenten und Wappen, signiert auf der Rückseite: Greco da Nicol. Rugina Corfu fecce 1550. Standuhren, bezw. Tischuhren aus dem XVI. und XVII. Jahrhundert. Die große Uhr in der Mitte oben eine Leihgabe des Stiftes Göttweih.

Wandschrank XVI. Oben: Die Perlenkronen aus der Kirche des ehemaligen Damenstiftes zu Hall, charakteristisch für den mit Material prunkenden Barockschmuck; auf dem Eisengerüst der Kronen die Inschriften: „Donum Regij Parthenonis Antistita Maria à Spaur Comitissa Aᵒ 1657. — Munificentissime Renovatum Antistita Eleonora Felicitate Comitissa de Arco Aᵒ 1767“. Auf diesen Eisenbügeln waren die Schmuckstücke in Vitrine XII und XIII angebracht. Hausaltärchen aus Ebenholz mit reichem Silberbeschlag und einem Bild aus dem Rudolfinischen Kunstkreis, Augsburger Arbeit, XVII. Jahrhundert.

Unten: Bucheinbände mit Metallverzierung und Buchdeckel aus Metall: Horae Deipari Virg. Mariae, Paris, T. Kerver 1519, gebunden in Samt mit Beschlägen aus durchbrochenem Silber, auf[S. 18] jeder Seite ein Wappen in Niello. Breviarium Romanum, Antwerpen, Plantin 1592, Samteinband mit Silberbeschlägen. Missale Romanum, gedruckt in derselben Offizin, 1587, Samteinband mit Silberbeschlag und Eckstücken nach Peter Flötner. Buchdeckel aus schwerem Silber mit getriebenen Ornamenten, XVII. Jahrhundert. Notizbuch in silbernem Einband mit Soldatenemblemen, XVII. Jahrhundert. Notizbuch, Einband aus durchbrochenem Silber. Notizbuch mit emailliertem Einband und vergoldetem Beschlag, Empire. Galvanoplastische Nachbildung zweier Arbeiten des deutschen Goldschmiedes Anton Eisenhoit (ca. 1600), die silbernen getriebenen Einbanddecken zu einem Missale und einem Pontifcale Romanum.

Vitrine XVII. Mailänder Prunkschild und -helm, am Schild der Raub der Helena, am Helm die Eroberung Trojas dargestellt; Eisen getrieben und goldtauschiert, XVI. Jahrhundert. Kassette, Eisen goldtauschiert. Goldtauschierter eiserner Ständer für spitzenklöppelähnliche Objekte, ca. 1700. Rahmen aus Eisen geschnitten, ca. 1600. Hirschjagd, Eisen geschnitten und tauschiert, XVII. Jahrhundert. Schmuckkassette, Eisen geätzt und vergoldet, Anfang des XVIII. Jahrhunderts. Feinwage aus Messing, reiche Arbeit aus der ersten Hälfte des XVIII. Jahrhunderts. Schloßplatte, Messing, aus der Mitte des XVIII. Jahrhunderts. Gewehrschloß aus der zweiten Hälfte des XVIII. Jahrhunderts. Degengriff mit Initial Kaiser Franz I., Silber vergoldet, Anfang des XIX. Jahrhunderts. Griff eines Prunkdegens, Eisen geschnitten und tauschiert.

Wandpulte XVIII. und XIX. Bestecksammlung. Zwei kleine antike Bronzelöffel. Silberlöffel, Wien, XVII. Jahrhundert. Silberlöffel aus dem XVII. und[S. 19] XVIII. Jahrhundert. Holländische Löffel aus dem XVII. Jahrhundert. Sogenannte Apostellöffel, XVII. Jahrhundert. Besteck mit Elfenbeingriffen, XVII. Jahrhundert. Schwarzemailliertes Eßbesteck, um 1700.

Tischvitrine XX. Süddeutsche Emailarbeiten. Goldmedaillon mit Blumen auf weißem Grund, Augsburger Arbeit, XVII. Jahrhundert. Zwei Täfelchen mit Heiligenbildern und Blumen, Augsburg, XVII. Jahrhundert. Augsburger Emailplättchen mit Tobias und dem Engel, XVII. Jahrhundert. Sechs Plättchen mit Passionsszenen, Augsburg, XVII. Jahrhundert. Kleine runde Platten mit Kinderszenen. Diadem, Armband und Ohrgehänge, Siebenbürgen, XVII. Jahrhundert.

Wandvitrinen XXI und XXII. Siebenbürgischer Volksschmuck.

Vitrinen XXIII und XXIV. Dosen. Zumeist Arbeiten aus dem XVIII. und Anfang des XIX. Jahrhunderts. Zwei Dosen mit Miniaturen von Blarenberghe, Geschenke des regierenden Fürsten Johann von und zu Liechtenstein, Dose in Gold und Email von Ouville, Miniatur von Degault (1793). Dosen in Goldemail, Kupferemail, Schildkrot; Dosen mit Piquéarbeit; holländische Silberdosen; Porzellandosen.

Vitrine XXV. Emailarbeiten aus dem XVIII. und Anfang des XIX. Jahrhunderts. Silberne Spülkumme mit Emailmalerei auf weißem Grund, Anfang des XVIII. Jahrhunderts. Leuchter mit Emailmalerei auf weißem Grund, Mitte des XVIII. Jahrhunderts. Wiener Uhr, emailliert, Anfang des XVIII. Jahrhunderts. Wiener Emailarbeiten: Zwei kobaltblaue Blumentöpfe, signiert J. Jünger 1776. Lichtblaue Deckelschale mit Blumendekor, Ende des[S. 20] XVIII. Jahrhunderts. Kobaltblaue Deckelschale mit Tasse, signiert: Christoph Jünger.

Tischvitrine XXVI. Schmuck aus dem Ende des XVIII. Jahrhunderts. Im Barock stand der Durchschnitt der Schmuckarbeiten nicht auf der Höhe wie in den vorangegangenen Perioden; man verstand es, mehr mit dem Material als mit edler Arbeit zu prunken. Im Zeitalter des Klassizismus wurde beim Schmuck auf zarte Formen und Technik wieder großer Wert gelegt; in seinen reizvollen Schöpfungen waren als Motive die Symbole sentimentaler Freundschaft und Liebe ebenso Mode wie antike Stilelemente: Goldkette mit vier zierlichen Wachsmedaillons. Scheibenförmiger goldener Anhänger mit einem Filigranrahmen und einer von Glas umschlossenen perlenbesetzten Blumenvase. Hals- und Haarschmuck mit Gemmen von Bernstein. Uhren mit Maleremail, die man als Schmuck am Kleid oder Gürtel trug.

Tischvitrine XXVII. Schmuck aus der ersten Hälfte des XIX. Jahrhunderts. Die große Not, die die Napoleonischen Kriege über Deutschland und Österreich gebracht haben, hatte den Schmuck aus edlen Metallen als meist unerreichbare Kostbarkeit verdrängt; ersetzt wurde er durch den Eisenschmuck, der in dem staatlichen Gußwerk von Mariazell, dem Gußwerk des Grafen Wrbna, dem Glanz’schen Gußwerk und andern in Massen hergestellt worden ist: Schmuckkassette. Kette, Anhänger und Ohrgehänge mit Medaillons. Anhänger in Kreuzform. Erst in den ruhigen Biedermeierzeiten nimmt Gold- und Silberschmuck wieder den alten Platz ein: Halskette und Ohrgehänge, Gold mit Chrysoprasen, ca. 1830; Brosche, ca. 1850.

Pokal, Viertraubenbecher, Silber, vergoldet, XVI. Jahrhundert, Anfang, Lüneburger Marke

[S. 23]

Die Vitrinen XXVIII bis XXXVI vereinigen Ziergerät des ostasiatischen Kunstkreises, hauptsächlich Emailarbeiten. Die ältere chinesische Emaillierkunst ist der Zellenschmelz mit undurchsichtigen Glasflüssen; im XVIII. Jahrhundert ist die Emailmalerei auf weißem Grund, die der Porzellanmalerei sehr ähnelt, eingeführt worden. Die Japaner haben mit größter Virtuosität den Zellschmelz gepflegt und sind darin noch heute die besten Meister; überraschende Neuerungen wie Zellenschmelz auf Porzellan zeigen ihr bravouröses technisches Können.

Alle Arten der Metallschmuckkunst zeigen die Vasen und Schwertzieraten, die in Vitrine XXVIII bis XXXIV ausgestellt sind.

SAAL II.
ARBEITEN DER EDELSCHMIEDE.

Schrank I und II. Die Antike ist durch galvanoplastische Kopien ihrer hervorragendsten Goldschmiedearbeiten vertreten: die in ihrer künstlerischen Form wie in der Treibtechnik gleich wunderbaren Becher aus Mykenä und Váfio; die spätantiken, zum Teil hellenistischen Silberarbeiten des Hildesheimer Silberfundes, der Funde von Boscoreale und Bernay.

Schrank III. Nachbildungen berühmter Goldschmiedearbeiten des Mittelalters: die vergoldete Silberschüssel im Domschatz zu Halberstadt, eines der schönsten Werke byzantinischer Goldschmiedearbeit; von romanischen Arbeiten das Ziborium des Louvre mit reichem Grubenschmelz; das Welfenkreuz; das Evangeliar von Wiener-Neustadt; der gehenkelte Kelch des Stiftes[S. 24] Wilten mit gravierten und niellierten Bildern. Von gotischen Werken: Kelch mit Volane aus Klosterneuburg; der silberne Monstranzenfuß aus Klosterneuburg; Gefäße aus dem deutschen Ordensschatz; Reliquienkästchen, Arm- und Kopfreliquarien aus Zara.

Eines der umfangreichsten Werke mittelalterlicher Goldschmiedekunst die Arca Simeonis im Dom zu Zara, in galvanoplastischer Nachbildung (frei aufgestellt).

Schrank IV und IV a. Von dem Aufschwung des deutschen Goldschmiedehandwerkes im XVI. Jahrhundert geben die Nachbildungen von Renaissancearbeiten eine Vorstellung. Im Anfang der Renaissance wirken noch gotische Formen der Treibarbeit nach, die in dem Korvinus-Pokal von Wiener-Neustadt vielleicht ihren schönsten Ausdruck gefunden hat. Als die italienische Renaissance in Deutschland durchdrang, da nahmen sich die Goldschmiede die Maler zu Hilfe, die die italienischen Formen, die Mode gewordenen mythologischen Darstellungen beherrschten. Da waren die Vorlagen der Maler und Kupferstecher von höchster Bedeutung für den ausführenden Handwerker. Von hervorragenden Stücken jener Zeit sind in Nachbildungen der Landschadenbund-Becher (Graz), der Jamnitzer-Pokal (Nürnberg), Pokale nach Paul Flynt, Hans Holbein d. J. u. a., ferner Stücke aus dem Lüneburger Ratssilber ausgestellt.

In der Sammlung des Museums überwiegen an Originalen Stücke aus der Spätzeit des XVIII. Jahrhunderts.

Vitrine V. An Renaissanceoriginalen sind hervorzuheben ein Viertraubenbecher aus Lüneburg; ein Wiener Pokal mit ausgebildetem,[S. 25] fein getriebenem Renaissanceornament; eine ähnliche Arbeit aus Augsburg; ein mit Medaillons gezierter Nürnberger Pokal mit altem ergänzten Fuß von Augsburger Arbeit.

Vitrine VI. Ein Nürnberger Kokosnußpokal in vergoldeter Kupferfassung mit feinem Rankenornament; ein Breslauer Humpen; eine Augsburger Kanne mit dem getriebenen Bild einer mythologischen Geschichte; ein Augsburger Pokal mit dem Bandornament der Kleinmeister; zwei Nürnberger Satzbecher.

Vitrine VII. Ein vergoldeter Tafelaufsatz mit getriebenen figuralen Bildern; eine schwere Kanne mit graviertem Bandwerk; ein Augsburger Doppelbecher, in der Gestalt einer bechertragenden Dame (sogenannter Jungfernbecher); eine Brünner und eine Augsburger Kanne des XVII. Jahrhunderts. Eine mehr barocke Form zeigt der Wiener Humpen vom Ende des XVII. Jahrhunderts mit getriebenem Blattwerk.

Vitrine VIII. Barocke Formen des XVII. Jahrhunderts. Zwei ornamentlose Siebenbürger Becher. Arbeiten mit hochgetriebenen figuralen und ornamentalen Reliefs. Ein kleiner Becher aus Augsburg.

Vitrine IX. Barockarbeiten Augsburger, beziehungsweise süddeutscher Provenienz. Ein Regensburger und ein verwandter Augsburger Leuchter mit schwerem Blattornament; eine prächtige Taufkanne und Schüssel aus dem Anfang des XVIII. Jahrhunderts; drei kleinere Kannen derselben Provenienz.

Vitrine X. Augsburger Wöchnerinnenschüsseln und kleines Tischgerät; ein jüdischer Weinbecher, Nürnberger Arbeit, ein getriebener Becher desgleichen.

[S. 26]

Kultgefäße und -geräte vereinigen die Vitrinen XI bis XIV.

Vitrine XI. Gotische Kelche und ein gotisches Reliquiar.

Vitrine XII. Vortragkreuz, Kupfer vergoldet, mit getriebener Arbeit, nach der Inschrift von Johannes da Civitella aus Spoleto 1485; gotischer dalmatinischer Kelch mit Email; ein Breslauer Kelch; ein deutscher Kelch von 1497. Gotischer Kelch mit Filigranverzierung in Email.

Vitrine XIII. Italienischer Renaissancekelch; Wiener Monstranz vom Ende des XVII. Jahrhunderts mit stark getriebenen Barockornamenten und gegossenem Silberzierat an den Strahlen; ein in Silber getriebener Cruzifixus aus dem XVII. Jahrhundert.

Vitrine XIV. Ein venezianisches Reliquiar in den verderbten Formen eines mißverstandenen fremden Stils (Rokoko), XVIII. Jahrhundert; ein serbisches Reliquiar (volkstümliche Arbeit), dann Arbeiten des XIX. Jahrhunderts: ein schöner Prager Kelch von 1810; eine Wiener Monstranz von 1840.

Die nächsten Vitrinen umfassen die weltlichen Silberarbeiten des klassizistischen Stils.

Vitrine XV. Das Reiseservice des Königs von Rom, eine Arbeit in Vermeil von dem Pariser Goldschmied Biennais, Anfang des XIX. Jahrhunderts.[1]

Vitrine XVI. Englische Arbeiten aus den Werkstätten von Sheffield; eine hohe Kanne; eine Reihe von Saucieren und Leuchter.

Vitrine XVII. Verschiedene Silberarbeiten derselben Zeit.

Kelch, XVII. Jahrhundert, mit Schmuckstücken aus dem XVI. Jahrhundert besetzt

[S. 29]

Vitrine XVIII. Norddeutsche Kannen vom Ende des XVIII. Jahrhunderts.

Vitrine XIX. Ein Tafelaufsatz, Empire; Leuchter derselben Zeit.

Vitrine XX und XXI. Österreichische Silberarbeiten um 1800: eine große Grazer Kanne und mehrere kleinere derselben Provenienz; Prager und Brünner Arbeiten.[2]

Vitrine XXII. Teeservice, Wiener Arbeit von 1842, Geschenk der Frau Baronin Dingelstedt, gewidmet zum Andenken an ihre Mutter Jenny Dingelstedt-Lutzer.

Vitrine XXIII enthält Arbeiten der Wiener Silberschmiede vom Ende des XVIII. und vom Anfang des XIX. Jahrhunderts. Die Wiener Arbeiten dieser Zeit sind durch die Ausstellung alter Gold- und Silberschmiedearbeiten 1907 im Österreichischen Museum erst näher bekannt geworden; den Mittelpunkt nimmt eine große Suppenterrine ein mit der Wiener Marke von 1788 und dem Meisterzeichen des Georg Hann. Die andern Objekte der Vitrine verteilen sich auf eine große Reihe von Meistern, die erst durch neuere Forschungen bekannt geworden sind. Einen beträchtlichen Teil der Objekte bilden Geschenke des Herrn Dr. A. Figdor.

[1] Leisching, Eduard, Ein Reiseservice des Königs von Rom. („Kunst und Kunsthandwerk“, VII, 253.)

[2] Leisching, Eduard, Zur Geschichte der Wiener Gold- und Silberschmiedekunst. („Kunst und Kunsthandwerk“, VII, 345.) — Leisching, Eduard, Die Ausstellung von alten Gold- und Silberschmiedearbeiten im k. k. Österreichischen Museum. („Kunst und Kunsthandwerk“, X, 317.)

[S. 30]

ARBEITEN AUS UNEDLEN METALLEN.

ARBEITEN AUS ZINN.

Seit dem ausgehenden Mittelalter war das Zinn das meist verwendete Material für die Kannen und Humpen der Zunftstuben vom XVI. bis Anfang des XIX. Jahrhunderts für das bürgerliche Tischgeschirr. Arbeiten mit kunstvollem Schmuck und von feinem, mit Blei nicht oder wenig vermischtem Zinn werden Edelzinn genannt.

Vitrine XXIV. Gotischer Humpen mit gravierten Heiligenbildern und Ornamenten, Breslau, Ende des XV. Jahrhunderts. Im XVI. Jahrhundert kamen die Verzierungen aus gegossenen Ornamenten, aufgelegten Abgüssen von Plaketten auf; ein schönes Beispiel hierfür die kleine Kanne mit den Bildern der Parabel vom verlorenen Sohn nach B. Beham. Eine prächtige Kanne von dem Straßburger Zinngießer Isaak Faust. Teller mit den Bildern von Kaiser Ferdinand und den Kurfürsten.

Vitrine XXV. Adam- und Evaschüssel; Schüssel mit einer Arion-Plakette als Nabel; Schüssel in der sogenannten Holzstockmanier des Nicolaus Horchhaimer (Nürnberg, 1550-1600). Kleine Kassette mit zarten, feingegossenen und ziselierten Ornamenten, französisch, XVI. Jahrhundert. Becher mit vergoldetem Rand, XVI. Jahrhundert, Geschenk des Herrn Dr. Albert Figdor.

Vitrine XXVI. Ein Humpen des XVII. Jahrhunderts und Teller aus dem XVI. und XVII. Jahrhundert; gravierter Teller, signiert: Florintino Puterin Abtisin zu Gos 1588. Ein Schweizer Teller mit den Wappen der alten Kantone.

[S. 31]

Vitrine XXVII. Ein großer Humpen mit prächtigem Henkel aus Ödenburg und Kannen des XVII. Jahrhunderts; eine mit der Plakette Gustav Adolfs am Deckel und schön gelungenem Guß von Blumen und Ornamenten am Gefäßkörper; ein gravierter polnischer Humpen mit Namen von Zunftmitgliedern.

Vitrine XXVIII. Eine Sammlung von Humpen und Kannen des XVI. bis XVIII. Jahrhunderts.

Vitrine XXIX. Zunftpokal mit Platte und Bechern der Innsbrucker Zinngießer von 1711.

Vitrine XXX. Suppenterrine, Tischaufsatz, Napf und Teller, bürgerliches Hausgerät aus dem XVIII. Jahrhundert.

Vitrine XXXI. Zinnteller des XVII. und XVIII. Jahrhunderts; Zinnkannen des Empirestils und Kannen der Biedermeierzeit; zwei albanische Pulverbüchsen aus Blei. Oben Nachbildungen und ein Zinnteller aus der Zeit der Romantik.

SAAL IV.

Schrank I. Antike Bronzen römischer, griechischer, etruskischer und ägyptischer Herkunft. Hausgeräte, die noch heute in ihrer Zweckmäßigkeit und Schönheit mustergültig sind, Kannen, Schalen, Amphoren und andere Weinsiebe, Schöpfer u. dgl. m. Gefäßdeckel und -henkel. Zwei etruskische Dreifüße, einer davon ein Geschenk weiland Erzherzogs Rainer. Altjonische Bronzemaske mit eingesetzten Augen. Flügel von der Statue einer Siegesgöttin. Deckenrosetten aus den Grabkammern von Cotona, griechischer Gesichtshelm.

Schrank II. Figurale Bronzen. Relief mit der Beweinung Christi, ein oberitalienisches Werk des[S. 32] XV. Jahrhunderts (Geschenk des Fürsten Johann von und zu Liechtenstein). Bronzebüste der Niobe von dem Mantuaner Antico. Statuette eines kleinen vorwärtsschreitenden Pferdes, das auf einen Vorwurf des Leonardo da Vinci zurückzuführen ist. Pferdestatuette, niederländisch um 1600. Zwei Bronzekandelaber, italienisch, XV. Jahrhundert, Statuetten von Aphrodite und Ares, italienische Arbeiten des XVI. Jahrhunderts. Gruppe der Ringer, ein Geschenk des Fürsten Johann von und zu Liechtenstein. Putto, Nürnberger Arbeit, XVI. Jahrhundert.

Wandschrank III. Heiliger Sebastian, vergoldete Bronzestatuette, italienisch, XVI. Jahrhundert. Tabernakeltüre, deutsch, XVII. Jahrhundert. Bronzerahmen vergoldet, XVII. Jahrhundert. Zwei schwebende Engel, XVIII. Jahrhundert. Engelstatuette, XVIII. Jahrhundert.

Tischvitrine IV. Renaissanceplaketten oberitalienischer, toskanischer und römischer Meister, wie Riccio, Moderno, Ulocrino, Vicentino, Francesco da Brescia und anderer.

Tischvitrine V. Deutsche und niederländische Plaketten. Bleiabstöße von Peter Flötner. Niederländischer Meister der Triumphzüge.

Wandpult VI. Niederländische und deutsche Plaketten, XVII. bis XIX. Jahrhundert.

Relief, Grablegung, Bronze, Türchen eines Tabernakels.
Oberitalienisch, XVI. Jahrhundert

Schrank VII. Deutsche Bronzemörser und Kannen aus dem XV. und XVI. Jahrhundert. Italienischer Mörser mit Faunen, XVI. Jahrhundert. Zwei Bronzebügeleisen, XVI. und XVII. Jahrhundert. Bronzenes Tintenfaß, italienisch, XVI. Jahrhundert. Nach Giov. da Bologna, Raub der Dejanira. Kupferkannen und Kupferbecken, XVI. bis XVIII. Jahrhundert. Tiroler Messingschüsseln.[S. 35] Ein Bindenwickler, Messing durchbrochen und vergoldet, XVI. Jahrhundert. Uhr, Wien, um 1800, Bronze vergoldet. Lichtschirm, ca. 1800. Lichtputzschere, Bronze vergoldet, ca. 1860.

Wandschrank VIII. Kamingarnitur, Uhr und Leuchterpaar, von Thomire. Spiegel mit Bronzefassung, ca. 1800. Uhr in Lyraform. Uhr (als Trommel von Amor getragen), Schale und Räuchergefäß, Ebenholz mit Bronzeverzierung. Zwei Bronzebüsten.

IX. Alt-Wiener Möbelbeschläge.

Wandpult X. Möbelbeschläge.

Diesen Schränken steht gegenüber die kleine Sammlung von Arbeiten des Ostens.

Schrank XI. Persische Geräte von Kupfer, Zinn u. dgl. Verzinnte Kupferschüssel mit Jagdszenen. Tauschierte und gravierte Arbeiten mit Metalleinlagen.

Wandschrank XII. Gleichartige Stücke derselben Provenienz.

Schrank XIII. und Wandschrank XIV. Japanische und chinesische Bronzen, zumeist Stücke aus neuerer Zeit.

Schrank XV. Japanische und chinesische Bronzen. Metallgefäße aus Zentralasien und Indien.

Der Eingangstür zum Saal I gegenüber hängen an der Wand Bleireliefs des XVIII. Jahrhunderts, ein Pygmalion-Relief von G. R. Donner, zwei Reliefs mit der Sage von Orestes und Pylades aus der Zeit des Klassizismus, Geschenk des regierenden Fürsten Johann von und zu Liechtenstein.

Vitrine XVI. Bleimodell zu einem Denkmal für Katharina von Rußland, XVIII. Jahrhundert.

Vitrine XVII. Bleiarbeiten. Zwei Arbeiten G. R. Donners, die eine offenbar eine Modellfigur für den Brunnen am Neuen Markt, die andere ein[S. 36] Relief mit Faun und Knaben. Zwei Statuetten von Hagenauer, ein Vermächtnis der Frau Rosalia Goldschmied an das Museum. Bleiplaketten vom Ende des XVII. Jahrhunderts.

Die zweite Hälfte des Saales ist den Kunstschmiedearbeiten reserviert. Nur eine kleine Sammlung von Bronzetürklopfern des XVI. Jahrhunderts ist hier noch untergebracht.

An der Wandverschalung hängt chronologisch geordnet eine Sammlung von Schlössern und Schloßbeschlägen vom XIV. bis XIX. Jahrhundert. Gotische Schloßplatten. Spätgotischer Türklopfer. Reichverziertes Kastenschloß, Ende des XVI. Jahrhunderts, mit einer Inschrift. Kastenschloß aus dem XVII. Jahrhundert. Reihe von großen Prunkschlössern des XVII. und XVIII. Jahrhunderts, die sich an der Schmalwand des Saales hinzieht.

Vitrine XVIII. Zwei Hauptwerke süddeutscher Schlosserkunst des XVI. Jahrhunderts, die Vorhängschlösser aus Stift Heiligenkreuz mit eingeätzten Ornamenten.

Gruftgitter, Schmiedeeisen, deutsch, XVII. Jahrhundert

Größere Kunstschmiedearbeiten: Renaissancegitter mit durchgezogenen Stäben, aus Steiermark; Grabkreuz, Tiroler Arbeit des XVII. Jahrhunderts; Balkon- und Stiegengitter mit Figuren, prächtigem Durchzugswerk und tief eingeschlagenen Ornamenten, eine Wiener Schmiedearbeit des XVII. Jahrhunderts; zwei venezianische Feuerböcke des XVI. Jahrhunderts, einer davon ein Geschenk des regierenden Fürsten Johann von und zu Liechtenstein. Auf der gegenüberliegenden Seite des Saales Kunstschmiedearbeiten des XVIII. Jahrhunderts. Ein Balkongitter aus Bandeisen, um 1700; an der Wand ein geschmiedeter Wandarm mit Laubwerk an den Enden seiner schön gezogenen Spiralen,[S. 39] um 1700; vom Anfang des XVIII. Jahrhunderts das Balkongitter aus dem abgebrochenen Hause Gumpendorferstraße 94; Gruftgitter mit dem ausgebildeten Laub- und Bandelwerk der deutschen Schmiede aus der ersten Hälfte des XVIII. Jahrhunderts; ein kolossaler geschmiedeter Toraufsatz vom Anfang des XVIII. Jahrhunderts in der Mitte des Saales. An der Wand (wie vorhin) ein kleiner Wandarm mit schönem Laubwerk, erste Hälfte des XVIII. Jahrhunderts; das mächtige Wirtshausschild („zum goldenen Stern“), eine Augsburger Schmiedearbeit, in der sich Rokoko mit Zopfstil mischt. Mit dem Rokoko ging das Kunstschmiedehandwerk seinem Ende entgegen; das Empire mit seinen strengen, einfachen Formen konnte das Handwerk, das im Louis XIV-Stil und im Rokoko seine höchste Blüte gefunden hat, nicht mehr in gleichem Maße beschäftigen und der Eisenguß hat das Handwerk vollends verdrängt. Die Arbeiten vom Ende des XVIII. Jahrhunderts sehen neben den reichen, kunstvollen Barockarbeiten recht dürftig und sogar in ihrer Technik herabgekommen aus.

Vitrine XIX. Eine Sammlung von Schlüsseln kunstvoller Arbeit, XVI. bis XVIII. Jahrhundert.

Vitrine XXII. Schlüssel. Ein Kassaschloß vom Ende des XVIII. Jahrhunderts. Schlüssel aus dem XVII. und XVIII. Jahrhundert. In der Mitte der Vitrine ein in Eisen geschnittener Doppeladler.

[S. 40]

SÄLE V UND III.

MÖBELSAMMLUNG.

Saal V. Aus dem Altertum und fast dem ganzen Mittelalter sind nur ganz wenige Holzmöbel erhalten, ein Umstand, der sich aus der Vergänglichkeit und dem geringen Werte des Materials erklären läßt. In Ägypten haben sich in den erst in neuerer Zeit erschlossenen Gräbern hauptsächlich Sitzmöbel vorgefunden, die uns schon eine bedeutende Fertigkeit in der Art der Holzbearbeitung erkennen lassen. Schnitzereien und Bemalung dienen zum Schmucke dieser seltenen Stücke. Infolge der Ausgrabungen in Pompeji wurde es möglich, Rekonstruktionen von antiken Möbeln vorzunehmen, die nicht nur über die Form, sondern auch über die Technik wichtige Aufschlüsse geben.

Die hauptsächlichste Quelle für die Geschichte des antiken Möbels sind aber die Darstellungen auf den Werken der bildenden Kunst, besonders auf den Vasen und den zahlreichen uns erhaltenen Reliefs an den Tempeln und Grabdenkmälern.

Auch aus dem Mittelalter haben sich bis in das XIV. Jahrhundert fast keine Holzmöbel erhalten, und wir müssen aus den Abbildungen auf Kunstwerken dieser Zeit unsere Kenntnis schöpfen. Vor allem sind die zahlreichen Miniaturenhandschriften weltlichen Inhaltes — Romane, Historie usw. eine ergiebige Fundgrube. Erst vom XIV. Jahrhundert an ist eine größere Zahl von Holzmöbeln auf uns gekommen.[3] Das verbreitetste Möbel zur[S. 41] Zeit der Gotik war die Truhe, ein langer rechteckiger Kasten mit einem nach oben zu öffnenden Klappdeckel. Die Verbindung der Bretter geschah durch Verzinken, das heißt durch das Aussägen und Verbinden von fingerartig ineinandergreifenden Zacken.

Bei den ältesten Holzmöbeln entstehen die großen Flächen durch das Aneinanderfügen einzelner Bretter, später bildet sich das sogenannte Rahmensystem in der Weise aus, daß in einen Rahmen von Brettern ein Brett als Füllung eingesetzt wird, das in Fugen, die in dem Rahmen rückwärts eingeschnitten sind, eingepaßt wird. Diese Art der Verbindung hat den Zweck, bei der Bewegung des Holzes infolge von Feuchtigkeit oder Hitze ein Zerreißen der Fläche, wie es bei einfach aneinandergefügten Brettern leicht möglich ist, zu verhüten. Die Truhen werden in der mannigfachsten Weise mit Schnitzereien oder Malerei geschmückt. Oft wird das Familienwappen angebracht, es werden Ornamente (Dornblattmuster) eingeschnitzt und mit bunten Farben bemalt. Auch die oft in kunstvoll gearbeitete Blattornamente endigenden Eisenbeschläge dienen zur Verzierung. Im XV. Jahrhundert tritt in den Rahmenfüllungen ein neues Ornament auf, seiner Ähnlichkeit mit einem gefalteten Tuche wegen „Faltenwerk“ genannt. Es findet bis gegen das Ende des XVI. Jahrhunderts häufig Verwendung.

Die Entstehung des Schrankes kann man nicht weiter zurückdatieren als in das XV. Jahrhundert. Alles, was über die Konstruktion und den Schmuck der Truhe gesagt wurde, gilt auch[S. 42] von dem Schranke. Er hatte meistens zwei, öfter auch mehr Geschosse, manchmal kommen auch schon Flügeltüren vor.

Der Tisch hatte an den beiden Schmalseiten breite, kräftige Stützen, die häufig Zierformen aufweisen und untereinander durch Bretter, die den Füßen als Stütze dienten, verbunden waren. Die Stühle näherten sich, wenn sie für festliche Gelegenheiten als Thronsessel und dergleichen bestimmt waren, den Formen der Kirchenstühle; für den täglichen Gebrauch gab es einfachere Formen mit oder ohne Rücklehne. Demselben Zwecke dienten auch lange Bänke, die entweder freistanden oder an der Mauer befestigt waren.

Die Betten bestanden aus einem einfachen Holzkasten, der Baldachin, von dem Vorhänge herabhingen, war direkt an der Decke befestigt, es gab noch keine Stützen für den Betthimmel wie in der Renaissancezeit.

Der Schrank gewinnt im XVI. Jahrhundert in Deutschland immer mehr Verbreitung, ohne aber die Truhe zu verdrängen. Beide Möbel werden nebeneinander verwendet. Die Truhe erfährt natürlich in der Dekoration eine große Veränderung, Renaissanceornamente, geschnitzt oder gemalt, bedecken die Flächen. In der folgenden Zeit tritt noch die Verwendung der Intarsia, der Einlegearbeit aus verschiedenartigen Hölzern, hinzu und findet allgemeine Verbreitung.

Wie auf allen Gebieten der Kunst, so übt auch im Kunstgewerbe die italienische Renaissance in ganz Deutschland einen mächtigen Einfluß. Die in Italien neu entstandenen Formen der Architektur und Ornamentik werden in Deutschland aufgenommen und umgebildet und rufen eine starke[S. 45] Veränderung im Aufbau und im Schmucke der Möbel hervor.

Truhe mit der Darstellung des Kampfes der Lapithen und Kentauren. Italienisch, XVI. Jahrhundert.

In Italien ist die Truhe noch häufiger im Gebrauch als in Deutschland. Sie wird mit Malerei, Schnitzerei oder Intarsia verziert und in den Kreis der Darstellungen werden historische, mythologische und allegorische Szenen aufgenommen.

Der Schrank besteht in Süddeutschland zur Zeit des Beginnes der Renaissance zumeist aus zwei übereinandergestellten zweiflügeligen Kasten, die mit reichem Schnitzwerke verziert sind.

Wie dann die neuen Formen der Architektur immer mehr Verbreitung finden, ahmt der Schreiner den Aufbau und die Art der Dekoration der großen Architektur an den Schränken nach, teilt sie durch Pfeiler, Säulen, Lisenen und bringt sogar Fenster und Tore an. Anders ist es in Norddeutschland, wo sich die alte gotische Form länger erhält. Der Schrank baut sich hier aus drei oder mehr übereinander befindlichen Fächern auf. Das zum Schmucke der Flächen verwendete Faltwerk wird durch Schnitzereien, deren Motive der Ornamentik der Renaissance entnommen sind, verdrängt. Die Vorwürfe für die figürlichen Darstellungen sind meist der Heiligen Schrift entnommen. Erst spät kommen in Norddeutschland Schränke vor, an denen einzelne Motive der Architektur entlehnt sind. Der französische Schrank der Renaissancezeit ist von derselben Bauart wie der süddeutsche, er besteht aus zwei übereinandergestellten doppeltürigen Kasten, doch finden wir im Gegensatze zum geraden Gesimse des deutschen Schrankes meistens einen Giebelaufsatz oder einen andern dekorativen Abschluß. Die Flächen sind mit Schnitzereien, die häufig antike Vorwürfe behandeln, reich verziert,[S. 46] in der Mitte der Türen ist oft ein vorspringender Kopf angebracht. Große Verbreitung findet in Frankreich der Stollenschrank, ein an die Wand anzustellendes Kästchen von mäßiger Höhe, das vorne von zwei Füßen, den sogenannten Stollen, rückwärts von einer Wand getragen wird.

Hier ist noch der Kabinettschrank zu erwähnen, ein Schrank, der eine größere Zahl von Laden enthält und zur Aufbewahrung von besonders wertvollen Sachen benützt wurde. An ihm finden wir alle Arten der Verzierung: Intarsia, Marmorplatten, Vergoldung etc. verwendet. Er wird später auf einen tischartigen Aufbau gesetzt und dient als Prunkschrank. Die ältesten Stücke stammen aus Italien und Spanien.

Die Form des Tisches zur Zeit der Gotik erhält sich auch in der Renaissancezeit, nur werden natürlich die beiden Seitenwände in der mannigfachsten Art mit Renaissancemotiven geschmückt. Besonders in Frankreich wird der Tisch sehr prunkvoll ausgestattet, in Deutschland ist seine Form eine einfachere. Tische, die auf vier freien Füßen ruhen, sind zu dieser Zeit noch selten.

Die Sitzmöbel nehmen im XVI. und XVII. Jahrhundert die verschiedensten Formen an. Das Sitzbrett ruht auf vier freien Beinen und trägt eine oft mit Schnitzereien verzierte Lehne. Das ist der einfache Sessel. Eine bequemere Form seit dem Beginne des XVII. Jahrhunderts ist der Armsessel mit Armlehnen, häufig auch mit gepolstertem Sitze und gepolsterter Rücklehne mit reich verziertem Rahmen. Die Füße sind durch ein System von Querhölzern verspreizt.

Schrank mit Intarsien von David Roentgen aus Neuwied, um 1780

Das Bett ist in seiner Form dasselbe geblieben, nur der Baldachin wird von vier, vom Kasten des[S. 49] Bettes aufragenden Säulen getragen. Die Kopf- und Vorderwand werden mit Schnitzereien versehen.

Gegen das Ende des XVII. Jahrhunderts treten in dem Baue der Möbel einige bedeutende Änderungen auf. Die wichtigste neue Form ist der zweitürige Schrank. Hatte man bis jetzt die Kleider liegend in Truhen oder in großen Schrankfächern verwahrt, so werden sie jetzt in den Kasten aufgehängt, wodurch ein hoher Raum nötig wurde. Diese Form des Kastens bleibt für die Zukunft die herrschende.

Im XVII. Jahrhundert tritt eine neue Art des Ornamentes, das sogenannte „Ohrmuschelornament“, das oft über das ganze Möbel sich hinzieht und aus unregelmäßigen, einer Ohrmuschel ähnlichen Motiven besteht, auf. Auch das „Furnieren“ der Möbel beginnt um diese Zeit. Es werden nämlich dünne Platten kostbaren Holzes auf den von billigeren Holzarten verfertigten Kern aufgeleimt, eine Art der Verzierung, die der Intarsia den weitesten Spielraum bietet.

Von den Möbeln sind besonders bemerkenswert: Ein gotischer Schrank (neben dem ersten Fenster des Saales) aus Bayern mit Rautenmuster an der Zinne, reichen Ornamentschnitzereien und guten Eisenbeschlägen. Daneben eine Tischplatte aus dem XV. Jahrhundert. Auf ihr sind einzelne Gruppen von Darstellungen gemalt, die untereinander keinen Zusammenhang haben, wie die Passion Christi, die Marter der 10.000 Jungfrauen, einzelne Blumen und Tiere, eine Zahl von Kriegern und eine Jagddarstellung. Die Malerei ist in Temperafarben auf Kreidegrund aufgetragen. Beim Ofen eine Chorgestühlfüllung in farbiger Intarsia mit dem Selbstbildnisse Antonio Bariles aus Siena, signiert 1502,[S. 50] und eine Darstellung des abgeschlagenen Hauptes des Apostels Paulus in Intarsia aus derselben Zeit.

An der Wand Kasten aus dem XVI. Jahrhundert mit Intarsien oder Holzschnitzereien geschmückt. Beim zweiten Fenster ein großer Schrank, bunt mit Blumen und Ornamenten geschmückt, süddeutscher Herkunft, Ende des XVI. Jahrhunderts, beim vierten Fenster ein Schrank mit reicher architektonischer Gliederung aus Salzburg aus der Mitte des XVII. Jahrhunderts und beim letzten Fenster ein mit Säulen gezierter Schrank, datiert 1687, sowie ein zweiter ebenfalls mit reicher Architektur und allegorischen Reliefschnitzereien. Gegenüber zwei Gerichtsschränke mit außerordentlich reichem figürlichen Schmucke, norddeutsch, XVII. Jahrhundert.

Saal III. In der zweiten Hälfte des XVII. Jahrhunderts übernimmt Frankreich die Führung im Kunstgewerbe und behält sie das ganze XVIII., fast das ganze XIX. Jahrhundert hindurch. Unter Ludwig XIV. entsteht ein neuer Stil, der Stil der „französischen Barocke“, der nach dem König „Louis XIV“ genannt wird. So wie die Renaissance von Italien her in Frankreich eingedrungen war, so übte auch die italienische Barocke ihren Einfluß. Das Typische des neuen Stils ist das Aufgeben der geraden Linien in den architektonischen Formen und das Vorherrschen der Dekoration vor den konstruktiven Elementen. Eigentümlich ist dieser Kunst die Vorliebe für alles Prunkhafte. Das Holz der Möbel wird vergoldet, leuchtende Brokatstoffe dienen als Überzug. Die Einlegearbeit findet besonders durch die Ebenistenfamilie Boulle, deren Arbeiten in Schildpatt oder Ebenholz mit eingelegten Messingornamenten dieser Technik den Namen gegeben haben, starke Verbreitung.[S. 53] Zur Verzierung der Möbel werden Bronzebeschläge allgemein verwendet. Als neue Formen der Möbel entstehen die Kommode, ein reich verzierter niedriger Schubladekasten, und der Konsoltisch, ein an der Wand befestigter, in der Regel mit einer Marmorplatte belegter Tisch, über dem häufig ein großer Spiegel aufgehängt wurde. Kleine, an der Wand angebrachte Konsolen tragen Uhren, Vasen und anderen Wandschmuck. Das Ornament verwendet in reichstem Maße Akanthusblattmotive und Fruchtkränze.

Schreibtischchen, Mahagoni, Wiener Arbeit von Holl, Kongreßzeit

Als der Herzog von Orléans für den noch minderjährigen Ludwig XV. die Regentschaft führte, begann sich aus dem französischen Barockstil ein neuer Stil, der Regencestil, der das Prinzip der Symmetrie beibehält und die architektonische Konstruktion der Möbel durch ornamentale Formen verdrängt, und aus ihm der Rokokostil zu entwickeln, den die Franzosen nach dem König, unter dessen Regentschaft die Blütezeit dieses Stils fällt, „Louis XV“ nannten. Dieser Stil ist durch das vollständige Auflösen aller symmetrischen Formen in eine Aufeinanderfolge von unregelmäßigen Elementen charakterisiert. Dazu tritt eine reiche Verzierung mit naturalistischen Motiven, vor allem mit Blumen. Diese Ungebundenheit hatte natürlich zur Folge, daß die Konstruktion vor der Dekoration vollständig zurückweichen mußte. Das Holz wurde entweder mit edleren Hölzern furniert, das heißt: auf den Holzkern wurden dünne Plättchen einer edlen und kostbaren Holzgattung aufgeleimt, oder es wurde, um die mangelhafte Konstruktion zu verbergen, vergoldet. Sehr häufig überzog man bei Sitzmöbeln die Holzteile ganz mit Stoff. Es sei hier nur im allgemeinen der Einfluß, den[S. 54] die zur damaligen Zeit bekannt werdende chinesische Kunst auf das Rokoko, besonders auf die Ornamentik dieses Stils geübt hat, erwähnt, ja wir finden ganze Wandfüllungen, die ausschließlich mit chinesischen Motiven dekoriert sind. Zeugnis dafür gibt ferner die Bemalung der Möbel durch Robert Martin mit Imitationen chinesischer Lackmalereien. In Deutschland wird der französische Rokokostil bedingungslos aufgenommen und die einzelnen Motive, wie Muschelwerk, gekreuzte Gitterstäbe, naturalistische Blumengewinde etc., noch in der regellosesten Weise überall verwendet, während sich schon in Frankreich eine Reaktion gegen die übertriebene Regellosigkeit geltend macht und man bald nach der Mitte des XVIII. Jahrhunderts anfängt, nach Stilreinheit und antikisierenden Formen zu verlangen.

In England geht eine andere Entwicklung vor sich. Dort hatte sich neben der Renaissance und Barockkunst die Gotik sehr lange erhalten. So kommt es, daß im XVIII. Jahrhundert, als die Engländer, die bis jetzt vorzüglich unter holländischem Einfluß gestanden waren, die französische Kunst des Rokokos übernahmen, sich die Formen des französischen Rokokos mit den Formen der Gotik verbanden und häufig chinesische Motive, besonders flechtartige, geradlinige Flachornamente, die an den holländischen Möbeln häufig vorkamen, hinzutraten. Der Hauptmeister dieses Stiles war Thomas Chippendale, der im Jahre 1754 seine Entwürfe publizierte, die eine große Verbreitung fanden.

Das Verlangen nach Stilreinheit in Frankreich hatte zur Folge, daß die Formen des Rokokos sich vereinfachten und die regellos gekrümmten Formen einfacheren Motiven Platz machen[S. 55] mußten; das Studium der Antike zeitigte seine Früchte, es bildete sich ein neuer Stil, der nach dem König „Louis XVI“ genannt wurde.

Die Symmetrie findet wieder Eingang, die geraden oder mäßig geschwungenen Linien gestatten wieder das Hervortreten der Konstruktion, das Muschelwerk wird durch antikisierende Ornamente ersetzt. Die Bronzeappliken werden auf den (häufig von Mahagoniholz verfertigten) Möbeln symmetrisch angebracht und haben die Form von Eierstäben, Perlenschnüren oder naturalistisch gebildeten Blumen oder Kränzen. Von einem der bedeutendsten Schreiner dieser Zeit, von David Roentgen aus Neuwied, der in Paris ausgebildet wurde und dort längere Zeit lebte, befinden sich einige Stücke in der Sammlung. Gegen Ende des Jahrhunderts geht das verständnisvolle Verarbeiten der antiken Motive in Nachahmen antiker Vorbilder über, es bildet sich zur Zeit des französischen Kaiserreiches der „Empirestil“, der dann auch in Deutschland und England Eingang findet. In diesem Lande hat die antikisierende Richtung besonders in Adam (um 1770), der auf Studienreisen in Italien die antiken Überreste studierte, und in Thomas Sheraton (um 1790) ausgezeichnete Vertreter.

Im Saale III sind in der Nähe der Eingangstür drei holländische Glasschränke aus dem XVIII. Jahrhundert ausgestellt, in der Mitte des Saales die Werke des Kunsttischlers David Roentgen aus Neuwied angeordnet. Von ihm sind: ein Kunstschrank mit vergoldeten Bronzen, gekrönt von der Figur eines Apollon, mit farbigen Intarsien, die die Künste und Wissenschaften symbolisieren; ferner zwei große Wandtafeln mit der Darstellung[S. 56] des Raubes der Sabinerinnen auf der einen und Coriolanus auf der andern in Intarsia und zwei Tische mit Chinoiserien, beiläufig um 1780 verfertigt. In der Ecke steht ein Empirebett und Nachtkästchen mit vergoldeten Holzbeschlägen, beim Fenster ein kleines Schreibtischchen aus Mahagoni des Wiener Tischlers Holl aus der Kongreßzeit und in der Mitte des Saales in einer Vitrine ein Arbeitstischchen einer Dame aus ungarischer Esche mit Stahlbeschlägen und vier Aquarellen von Wiegand um 1830.

[3] Falke, J. v., Mittelalterliches Holzmobiliar. 46 Lichtdrucktafeln. 1894. — Falke, J. v., Holzschnitzereien. Eine Auswahl aus der Sammlung des k. k. Österr. Museums auf 55 Lichtdrucktafeln. 1893. — Falke, J. v., Rahmen. Eine Auswahl aus der Sammlung des k. k. Österr. Museums auf 50 Lichtdrucktafeln. 1892.

SAAL VIII.

SKULPTUREN IN STEIN UND TERRAKOTTA.

Unter den Steinskulpturen sind besonders bemerkenswert: zwei Engel aus Marmor von einem lombardischen Grabmal des XV. Jahrhunderts, die liegende Grabfigur des Lorenzo Gabriello, Bischofs von Bergamo, † 1512, verfertigt von Lorenzo Bregno, herrührend von dem Grabmal im Oratorio della Beata Vergine della Pace in Venedig, ein Marmorrelief aus der Schule der Pisani, eine Halbfigur aus Marmor: das Porträt einer venezianischen Dame aus dem Hause Contarini, Marmorrelief, lombardisch, mit zwei Porträtköpfen im Profil, ein mit Gold bemaltes Marmorrelief von Mino da Fiesole: die Madonna mit dem Kinde.

Unter den Skulpturen aus Terrakotta sind die bedeutendsten die drei venezianischen Porträtbüsten, ein jugendlicher vornehmer Mann und zwei Damen von Alessandro Vittoria (zwei davon signiert), und die bemalte Büste des heiligen Franciscus aus der Schule Donatellos.

St. Franciscus
Terrakottabüste, italienisch, XV. Jahrhundert

[S. 59]

HOLZSKULPTUREN.

Von den Holzbildwerken sind besonders hervorzuheben: ein großer Altar aus der Zeit der italienischen Frührenaissance mit der Madonna mit dem Kinde, Johannes dem Täufer und der heiligen Katharina, eine Madonna mit dem Kinde von Tilmann Riemenschneider (die Bemalung der Fleischteile vollständig erhalten) und einige freistehende Altäre. Der eine von ihnen mit einer Krönung der Madonna und reichen Reliefschnitzereien, im Innern der Flügel: Versuchung des heiligen Antonius, der heilige Hieronymus, die Marter des heiligen Sebastian und die des heiligen Stephanus, ist eine bayrische Arbeit des XVI. Jahrhunderts, ein anderer Altar mit der Darstellung der Geburt Christi in der Mitte, rechts und links je eine weibliche Heilige, ein Werk aus der Schule Pachers. An der Rückwand des Saales sind zwei Gruppen von Holzreliefs angeordnet, die linke enthält eine Anbetung Christi, ein farbiges Relief mit dem oben erwähnten Altar in der Art Pachers verwandt, und eine Verkündigung, schwäbisch, XVI. Jahrhundert; in der andern Gruppe ein Relief: der Tod Marias, in der Art des Tilmann Riemenschneider, eine Heimsuchung Mariens aus der ersten Hälfte des XVI. Jahrhunderts, süddeutscher Herkunft, und ein Fries musizierender Engel in Hochrelief, der aus einer Altarpredella genommen ist, deutsch, aus dem Ende des XV. Jahrhunderts.

In der Ecke drei Figuren: der dornengekrönte Christus, neben ihm Maria und Johannes, eine Nürnberger Arbeit in der Art des Veit Stoß aus dem Ende des XV. Jahrhunderts.

[S. 60]

SÄLE VI UND VII.

TEXTILSAMMLUNG.

Die Textilsammlung des k. k. Österreichischen Museums kann wohl als eine der reichsten heute bestehenden angesehen werden. Da die Erzeugnisse der Textilkunst jedoch Schädigungen durch Licht, Luft und eigenes Gewicht am meisten ausgesetzt sind, so müssen sie in der Hauptsache in ganz anderer Weise zur Aufstellung gebracht werden als die meisten übrigen Gegenstände eines kunstgewerblichen Museums. Auch beanspruchen die Textilobjekte bei ihren verhältnismäßig großen Flächen Wände von solcher Ausdehnung, daß sie schon aus diesem Grunde nicht gleichzeitig zur Ausstellung gelangen können. Ferner ist ein großer Teil der Stoffmuster naturgemäß nicht eigentliches Schauobjekt, sondern nur bei genauem Studium geeignet, Vorteil zu bringen.

Man hat sich daher bemüssigt gesehen — wie es übrigens auch in den meisten andern Museen geschehen ist —, nur einen Teil der Textilgegenstände dauernd zur Ausstellung zu bringen und in diesem Falle die Stücke gegen Gefahren des Lichtes usw. durch verschiebbare Vorhänge und andere Schutzvorrichtungen zu sichern, die übrigen Stücke jedoch wissenschaftlich geordnet in Schränken zu verwahren und nur zeitweise und in bestimmten Gruppen zur Schau zu stellen. Jedoch werden auch die nicht ausgestellten Objekte[S. 61] künstlerisch oder wissenschaftlich Studierenden jederzeit zugänglich gemacht, zu welchem Zwecke man sich nur durch den Saaldiener an den Abteilungsleiter zu wenden braucht.

Es sind auch alle Objekte (oder Gruppen) mit kurzen technischen und historischen Angaben versehen, und es ist in den Textilsälen außer der jeweils gegenwärtigen Ausstellung immer Zeitpunkt und der Inhalt der folgenden durch Anschlag bekanntgegeben.

TEPPICHE UND TAPISSERIEN.

(Ständige Ausstellung.)

Zur dauernden Ausstellung sind vor allem die großen Teppiche und Tapisserien (Gobelins) gelangt; sie dienen zugleich als Wandschmuck einiger der größten Räume des Hauses.

Die ausgestellten orientalischen Teppiche gehören zum Teile zu den hervorragendsten, die sich aus alter Zeit erhalten haben. Wir erwähnen besonders den „Vasenteppich“ auf weißem Grunde, ein Werk der Blütezeit der persischen Teppichweberei des XVI. bis XVII. Jahrhunderts (Saal VI), dann mehrere sogenannte Herat-Teppiche (Saal IV) derselben Herkunft, zwei ausgezeichnete indisch-mohammedanische Teppiche aus der Zeit um 1600 und 1650 (Saal VI), welche allgemein als die glänzendsten Beispiele ihrer Art angesehen werden. Hervorragend sind auch zwei ältere kleinasiatische Teppiche von außergewöhnlicher Erhaltung (Saal IV), die aber auch sonst den späteren Erzeugnissen ihres Gebietes unendlich überlegen sind; auch wäre ein sogenannter[S. 62] syrischer Teppich (wohl das Erzeugnis einer alten kaiserlich türkischen Manufaktur) wegen seiner besonderen Größe hervorzuheben (Saal IV).

Bemerkenswert ist ferner eine Gruppe armenischer Teppiche (Saal IV und Saal VI), eine Art, die in ihren vereinfachten Formen und Farben vielfach den Eindruck hervorgerufen hat, als handelte es sich um die allerältesten Knüpfarbeiten, die uns erhalten sind; sie stammen jedoch erst aus dem XVII. bis XVIII. Jahrhunderte.

Es sind somit alle Hauptgruppen alter orientalischer Teppiche gut, zum Teile in ganz hervorragender Weise, vertreten. Man unterscheidet bekanntlich als Hauptarten: die persischen und kleinasiatischen Arbeiten. Die Knüpfung der ersteren ist so hergestellt, daß ein Knotenfaden immer zwei Kettenfäden umschlingt, und zwar derart, daß neben jedem Kettenfaden ein Ende des Knotens emporragt, während bei der kleinasiatischen Knüpfung (Smyrnaknoten) die beiden Knotenenden immer nebeneinander zwischen einem Kettenpaare hervortreten. Bei dieser Art hat der Knoten die Tendenz, gerade emporzustehen, beim persischen, sich schräg zu legen. Nebenbei bemerkt sind aber auch kleinasiatische Teppiche aus kaiserlichen oder sonst großen Manufakturen, in denen oft persische Arbeiter beschäftigt wurden, in persischer Art geknüpft.

Die persischen Teppiche sind im allgemeinen, der ganzen Stellung der persischen Kunst im Orient entsprechend, künstlerisch mehr verfeinert; nicht selten macht sich in ihnen auch der, bei der Entwicklung der Weberei noch zu erwähnende, ostasiatische Einfluß geltend (Wolkenbänder, Kilins[S. 63] und anderes). Die alten kleinasiatischen Teppiche sind in Zeichnung und Farben meistens einfacher gehalten, in gewissem Sinne strenger stilisiert, doch in Farbe und Material gleichfalls sehr gut.

In Indien ist die Teppicherzeugung erst durch die mohammedanischen Herrscher eingeführt worden und lehnt sich an die persischen Vorbilder an; jedoch macht sich der im besonderen indische Geist in größerem Naturalismus und in freierer Verteilung der Formen geltend.

Die Teppiche der Nomadenvölker, besonders Zentralasiens, haben vielfach die ältesten Formen (geometrischer Art) erhalten und einseitig, in ihrer Art aber vollendet, weiter gebildet (Beispiele hierfür gegenwärtig im Saale II).

Die sogenannten Polenteppiche (Saal I, III und Saal VI) sind persische Erzeugnisse aus der Zeit zwischen 1550 und 1650, in Seide und Gold (Silber) gearbeitet, meist ziemlich bunt und mehr europäisch in der Zeichnung, da sie fast ausschließlich als Geschenke für europäische Staaten und Fürsten hergestellt wurden.

Unter den europäischen Knüpfarbeiten, die sich auch technisch von den erwähnten unterscheiden, wäre ein Stück aus der Zeit Ludwigs XIV. (eine sogenannte Savonnerie-Arbeit) mit reichem naturalistischen Blumenwerke hervorzuheben (Saal III).

Unter den Tapisserien[4] (Gobelins) ragt besonders eine Gruppe von sogenannten Verdüren[S. 64] hervor (Saal V und Saal VIII),[5] die auch dadurch bemerkenswert ist, daß die Stücke sehr verschiedenen Fabrikationsorten des XVI. und XVII. Jahrhunderts entstammen.

Rücklaken (Tapisserie) „Wilde Männer bei ländlicher Arbeit“, süddeutsch, erste Hälfte des XV. Jahrhunderts

Unter den figürlichen Tapisserien sind besonders zu erwähnen: die ausgezeichneten Rücklaken mit „wilden Männern“, deutsche Arbeiten aus der ersten Hälfte des XV. Jahrhunderts (Saal VIII),[6] zwei große niederländische Arbeiten des XV. Jahrhunderts, mit Romandarstellungen (ebendaselbst),[7] zwei reich mit Gold und Silber durchwirkte niederländische Stücke des XVI. Jahrhunderts (Saal V)[8] und ein besonders großes Stück gleicher Herkunft (Saal VIII).[9] Auch ist eine große[S. 67] Brüsseler Tapisserie „Der Triumph des Glaubens“, nach einem Karton des Rubens ausgeführt von Jan François van den Hecke, vorhanden. Es wäre dann noch eine gobelinartig gearbeitete Decke mit reicher Blumendarstellung, ganz in Seide und Silber hergestellt, ein französisches Werk der Louis XIV-Zeit, zu erwähnen.[10]

Die nicht ständig ausgestellten Textilgegenstände sind zumeist auf Stoffunterlagen in Rahmen[11] oder, bei großen Maßen, gerollt untergebracht. Es sind vier Hauptgruppen gebildet, innerhalb deren die Stücke womöglich nach Zeit und besonderer Technik zusammengehalten erscheinen. Diese Hauptgruppen sind:

  1. Gewebe,
  2. Stickereien,
  3. Spitzen,
  4. Tapisserien, Posamenterien und anderes.

A. GEWEBE.

Die ältesten in der Sammlung vorhandenen Stücke entstammen ägyptischen Gräbern der griechisch-römischen Periode[12] und stellen eine der frühest zustande gekommenen und vollständigsten Sammlungen dieser Art dar. Vorherrschend sind tapisserieartige Gewebe, die[S. 68] man vielfach als volkstümliche Nachahmungen spätantiker Seidengewebe aufzufassen hat. Doch sind auch spätantike Seidengewebe selbst vorhanden (sogenannter „Simsonstoff“ und Reiterdarstellung in Kreisen).

Die Sammlung umfaßt weiters Stoffmuster byzantinischer, sarazenischer, romanischer und gotischer Herkunft, zumeist Seidenstoffe, da diese eben für die edelsten Zwecke, vor allem also Kirchengewänder und Reliquienhüllen, bestimmt waren und als solche auch besser bewahrt wurden.[13] Es ist hier natürlich nicht möglich, eine Geschichte der Textilkunst zu geben;[14] es sei nur erwähnt, daß die Seidenzucht und -weberei ursprünglich nur in China und dem Grenzgebiete Khotan heimisch war, daß aber das Rohmaterial in der römischen Kaiserzeit schon in größerem Maße in die östlichen Mittelmeergebiete eingeführt und hier auch sehr kunstvoll verwebt wurde, kunstvoller sogar als in Ostasien selbst, so daß die vorderasiatischen Erzeugnisse auch dort gesucht[S. 71] waren. Die Weberei wurde auf diese Weise ein Hauptmittel der Überlieferung von Kunstformen von einem Gebiete in das andere.

Gebetteppich, Nordindien, um 1600

Früh erlangt auch das von den Sassaniden beherrschte Persien Wichtigkeit für die Seidenweberei und beeinflußt zum Teile auch die griechisch-römischen Länder.

Im Mittelmeergebiete selbst wurde die Seidenzucht erst unter Kaiser Justinian (zu Beginn des VI. Jahrhunderts) eingeführt; doch brauchte es lange, ehe man von der Einfuhr des Webematerials unabhängiger wurde.

Dadurch, daß gerade die östlichen Gegenden des Mittelmeergebietes und Persien Hauptsitze der Textilindustrie waren und die meisten dieser Länder vom VII. Jahrhunderte an unter mohammedanische Herrschaft gelangten, nahm der Einfluß der islamitischen Kultur auf diesen Zweig des Kunstgewerbes ganz besonders an Umfang zu und zeigt sich natürlich auch in der Weberei Spaniens, jedoch auch in Byzanz und weiterhin in der vom XIII. Jahrhundert an stärker sich entwickelnden italienischen Textilkunst. Hauptsitze dieser wurden Lucca, Venedig, Genua, dann Bologna, Florenz, Mailand und andere Orte. Die frühen italienischen Stoffe ahmen sehr häufig orientalische Schriftzüge nach; doch darf man deshalb im einzelnen Falle nicht immer ein orientalisches Vorbild voraussetzen.

Es ist dabei zu bemerken, daß im späteren Mittelalter infolge der Mongolenherrschaft, welche den Osten und Westen Asiens verband, in der ganzen orientalischen und auch in der italienischen Kunst die ostasiatischen Einflüsse sehr stark werden und sich bei den Stoffen zum Beispiel in Wolkenbändern,[S. 72] Strahlen, heiligen Kugeln und chinesischen Tierformen, aber auch in der Unsymmetrie der Musterung, verraten.

Daneben machen sich in den späteren Jahrhunderten des europäischen Mittelalters natürlich auch der selbständig entwickelte europäische Naturalismus und auch in Italien die im besonderen gotische Formensprache einigermaßen geltend.[15]

Unabhängiger wird die europäische Weberei mit der reiferen Gotik und Renaissancezeit, obgleich ursprünglich orientalische und ostasiatische Motive (Granatapfel und anderes) noch immer wirksam bleiben. Schon vom späteren Mittelalter an exportiert Italien übrigens vielfach nach dem Oriente, trotzdem sowohl Persien als die türkischen Gebiete im XVI. und XVII. Jahrhunderte selbst ganz Hervorragendes schaffen.

In der Barock- und Rokokozeit werden dann in Europa wieder die ostasiatischen Einwirkungen stärker.[16] Immerhin ist in den letzten Jahrhunderten die europäische (zunächst die italienische, dann seit[S. 73] 1660 bis 1670 die französische) Weberei der Textilkunst aller andern Länder (Orient, Ostasien) mindestens technisch überlegen und erlebt in den naturalistischen Stoffen der Spätbarockkunst und denen des Rokoko eine ganz eigenartige Blüte.

Besonders in der französischen Textilkunst erreichte die Technik des Färbens und Webens damals eine bis dahin unerreichte Höhe. Von der Mitte des XVIII. Jahrhunderts an beginnen mit dem Vordringen des Klassizismus die Muster sich zu vereinfachen; die technische Verfeinerung wächst aber ununterbrochen und führt endlich zur Ausbildung des Jacquardstuhles, der seit Beginn des XIX. Jahrhunderts die älteren Handzugstühle immer mehr verdrängt hat.

Gegen Ende des XVII. und im Laufe des XVIII. Jahrhunderts entwickelt sich übrigens auch schon außerhalb Italiens und Frankreichs eine höherstehende Webekunst, die in Österreich zur Zeit Maria Theresias und zu Beginn des XIX. Jahrhunderts besondere Bedeutung erlangt; eine große von den Wiener Fabrikanten Gebrüdern Mestrozi angelegte Mustersammlung kann davon wenigstens teilweise einen deutlichen Begriff geben.

Nicht nur aus allen erwähnten Perioden der europäischen und vorderasiatischen Textilkunst (sowie aus der späteren Zeit des XIX. Jahrhunderts bis in unsere Tage) enthält die Sammlung hervorragende Proben oder ganze Kirchengewänder,[17] sondern auch[S. 74] von der übrigen mohammedanisch-orientalischen und der chinesisch-japanischen Erzeugung.

Unter den orientalischen Erzeugnissen sei besonders ein großes Pluviale (Saal VI) hervorgehoben, das aus einem ungewöhnlich breiten und prächtigen persischen Seidenstoffe des XVI. bis XVII. Jahrhunderts angefertigt ist.

Reich ist die Sammlung auch an alten ostasiatischen Stoffmustern, die großenteils noch vor Eröffnung Japans für den Welthandel dort durch den bekannten Diplomaten und Forscher Freiherrn von Siebold zusammengebracht wurden.[18]

B. STICKEREIEN.

Schon unter den ägyptischen Funden der spätantiken Zeit (s. S. 67) finden sich vereinzelt Stickereien, einige auch mit christlichen Darstellungen. Eine größere Anzahl ist dann aber erst aus romanischer Zeit vorhanden. Am hervorragendsten ist der sogenannte „Gösser Ornat“ (Saal VI), der wohl zu den bedeutendsten erhaltenen Textilwerken älterer Zeit überhaupt gehört. Er umfaßt Antependium, Kasel, Pluviale, das Gewand des Diakons und Subdiakons, ist somit ein vollständiger und wohl der einzige vollständig erhaltene Ornat aus romanischer Zeit. Die Entstehungszeit (zweites Viertel des XIII. Jahrhunderts) und der Entstehungsort (Göß bei Leoben) sind unbedingt gesichert; die Erhaltung, besonders der Farben ist fast einzig dastehend. Die Kasel ist allerdings auf[S. 75] eine kleinere Form zugeschnitten; doch sind die abgeschnittenen Teile größtenteils zur Ausbesserung der andern Stücke verwendet worden.[19]

Die Stücke können in gewisser Beziehung als ein Formenschatz der romanischen Kunst aufgefaßt werden.

Besonders zu bemerken ist noch die auffällige, der spätromanischen Zeit aber entsprechende Unsymmetrie aller Teile.

Ausgeführt sind die Stücke in Seidenstickerei, die den Leinengrund vollständig bedeckt; die Vorzeichnung, die heute stellenweise wieder sichtbar ist, mag in Salzburg angefertigt worden sein.

An mehreren Stellen wird in lateinischen Inschriften die Äbtissin Kunigunde (II.) als Verfertigerin des Ornats genannt. Bemerkenswert ist auch eine eingestickte gereimte mittelhochdeutsche Inschrift.

Ein hervorragendes Werk der spätromanischen Kunstrichtung ist weiters die Mitra von Arnoldstein, mit der Darstellung Christi und der Apostel und reichem Rankenwerke.

Zahlreich sind die späteren gotischen Figurenstickereien in sogenannter „englischer Stickerei“ sowie die Arbeiten in Lasurstich („burgundischer Technik“), welch letztere Art noch bis in die Renaissancezeit geübt wurde.

Von den mittelalterlichen Stickereien wären ferner verschiedene Paruren von Alben (auf Leinwand) zu erwähnen, da solche ziemlich selten erhalten sind.

Von den Renaissancestickereien wären besonders vier reiche frühflorentinische figurale Szenen[S. 76] in Lasurstich, dann italienische und spanische Applikationen[20] sowie zahlreiche Seidenstickereien auf Leinen zu erwähnen; ferner eine große süddeutsche Applikationsarbeit (Putten mit Festons und habsburgischem Wappen) aus der Zeit Erzherzog Ferdinands von Tirol († 1595).

Aus dem XVI. und XVII. Jahrhundert stammen des weiteren große Stickereien in gros- und petit-point, wie sie besonders in Frankreich ausgeführt wurden (Saal X).

Die Barockstickerei tritt am glänzendsten in einigen kirchlichen Arbeiten hervor, unter denen besonders eine venezianische Kasel aus der Zeit um 1700 (mit reicher Ornament- und Figurenstickerei) als ein Meisterwerk der Zeit hervorgehoben sei.

Eine besonders in Österreich in der Barockzeit vertretene Technik (Stoffapplikation mit ausgeschnittenen Papierrändern)[21] ist in einer großen Anzahl von Mustern von den ersten bis zu den letzten Stadien der Ausführung aber auch in einzelnen großen Stücken zu beobachten.

Sehr reich ist auch die Sammlung von Stickereimustern (für Herrenröcke und Westen), wie solche in der Rokoko- und Louis XVI-Zeit in Frankreich gearbeitet und in die andern Länder versendet wurden. Auch sind ganze gestickte Gewänder von der Rokokozeit bis zur Biedermeierzeit vorhanden.

Aus der österreichischen Empirezeit ist eine besonders prächtige Reliefstickerei in Gold mit Adler und Namenszug des Kaisers Franz zu sehen (Saal VII).

[S. 77]

Bei der Wichtigkeit der volkstümlichen Kunstentwicklung in den verschiedenen österreichisch-ungarischen Ländern ist es selbstverständlich, daß auch die Volkskunst in der Textilsammlung besonders Berücksichtigung finden mußte. Als umfangreichere Gruppen wären die slowakische, die dalmatinische, die slawonische und ruthenische hervorzuheben.

Von den orientalischen Stickereien ist ein persischer Männerrock mit reicher Figurenstickerei als eines der hervorragendsten erhaltenen Werke dieser Art aus dem XVI. bis XVII. Jahrhundert zu erwähnen (Saal VI).

C. SPITZEN.

Die Spitzensammlung verdankt einen Teil ihrer glänzendsten Stücke einem Legate der Frau Emilie von Schnapper in Wien; doch ragt die Sammlung nicht nur durch Prunkstücke hervor, sondern besonders auch durch Vollständigkeit der verschiedenen Gruppen.[22]

Man unterscheidet bekanntlich genähte und geklöppelte Spitzen, von denen erstere sich wohl zunächst im Orient entwickelt haben, dann als „griechische“ (fälschlich gotische) Spitzen nach Ragusa, Italien, Spanien kamen und dort auch selbst hergestellt wurden. Besonders in Italien fand im XVI. Jahrhundert die weitere Durchbildung der zunächst geometrisch gemusterten Spitze statt. Die ursprünglich noch häufig vorkommende Farbe geht allmählich verloren und erhält sich später[S. 78] nur in der Volkskunst in größerem Maße. Eine herrliche „spanische Spitze“, aus bunter Seide auf Metallfaden gearbeitet, zeigt aber auf einem bestimmten Gebiete die Erhaltung der Farbe auch bei höchster künstlerischer Vollendung.

Es treten im Laufe des XVI. Jahrhunderts dann allmählich besondere Renaissanceformen (S-Linien, Blüten, Figuren und anderes) ein. Um 1600 ist die eigentliche Renaissancespitze vollendet und wird auch durch zahlreiche Musterbücher über ganz Europa verbreitet.

Es ist möglich, daß die Klöppeltechnik im Norden (in den Niederlanden) erfunden ist; auch scheint sie für Posamenterien schon früh weit verbreitet zu sein. Jedenfalls werden aber im XVI. Jahrhundert in Italien ganz ähnliche Muster wie die genähten auch in der Klöppelarbeit hergestellt. Daneben entwickelt sich diese Spitzenart in den Niederlanden früh zu künstlerischer Bedeutung.

Im Laufe der ersten Hälfte des XVII. Jahrhunderts treten immer mehr geschlossene Formen (Wellenlinien und anderes) sowie größere Motive auf, bis sich die Spitze um die Mitte des Jahrhunderts unter gleichzeitiger Entwicklung stärkeren Reliefs zur sogenannten Venezianer Reliefspitze entwickelt. Diese erhält sich bis ins XVIII. Jahrhundert hinein (zuletzt an den Kragen der Männer), während sich daneben schon gegen Ende des XVII. Jahrhunderts eine zierlichere Art mit aufgelösten Barockformen und kleinen Röschen (Rosalinspitze, point de rose) entwickelt. Ähnliche Wandlungen gehen in der Klöppelspitze vor sich, die auch zunächst große Wellenlinien, Ranken, Voluten und anderes, später aber gleichfalls zierliche Formen ausbildet. Daneben entwickelt sich zunächst[S. 81] in der Klöppelspitze, dann in der genähten, ein unregelmäßiger, später regelmäßiger, Netzgrund, der das ganze Wesen der Spitze allmählich dadurch umgestaltet, daß er immer mehr die allgemeine Wirkung der Arbeit beeinflußt und die ursprünglich klarer getrennten Einzelformen mehr und mehr in ihm verschwimmen.

Klöppelspitze, Spätrenaissance, spanisch (?)

Im letzten Drittel des XVII. Jahrhunderts tritt durch Colberts Wirken Frankreich, ebenso wie in der Weberei, auch in der Spitze Italien gegenüber mehr in den Vordergrund und erzeugt, zunächst durch herbeigezogene italienische Kräfte, alle bis dahin eingeführten Arbeiten selbst in höchster Vollendung (point de France), gestaltet sie aber allmählich im Sinne französischer Empfindung um. Auch den Niederlanden gegenüber sucht Frankreich dann auf dem Gebiete der (Klöppel-) Spitze seine Überlegenheit geltend zu machen; doch behalten die Niederlande auf diesem Gebiete immer größte Bedeutung.

Auf die eigentliche Barockperiode der Spitze (Venezianer Reliefspitze) folgt, wie gesagt, ein Abschwächen, ein Zierlicherwerden der Formen, das ganz allmählich in die Rokokospitze überführt. Diese legt besonders auf Leichtigkeit und Duft der nun weich und in kleinen Falten getragenen Spitzen Wert. Es tritt so neben der Nähspitze, die besonders in Frankreich (Alençon, Argentan, Sedan etc.), aber auch in Belgien gepflegt wird, die Klöppelspitze immer mehr hervor, da diese aus demselben Faden um die Hälfte dünnere Formen erzielen kann als die Näharbeit. Mit der Klöppelspitze erlangt dann Belgien (Brüssel, Mecheln etc.) überwiegende Bedeutung; ein wichtiger niederländischer Ort, Valenciennes,[S. 82] war seit Ludwig XIV. allerdings französisch geworden.[23]

Nach der Mitte des XVIII. Jahrhunderts werden, wie im übrigen Kunstgewerbe, die Formen immer schlichter; in der Spitze zeigt sich dies besonders im Vortreten des Grundes und im Zurücktreten der Einzelheiten, die sich im späteren Louis-Seize oft auf verstreute Punkte, Blätter etc. und auf etwas reichere Formen am Rande beschränken.

Das Übergewicht des Grundes führt dann naturgemäß zur Applikationsspitze und weiter zur Herstellung der gewebten Netze, aus denen sich später die maschingewebten Spitzen entwickeln.

Mit der Ausbildung der Spitzen parallel geht auch ein Teil der Weißstickerei (Durchbruch, Netzarbeit, Batiststickerei), die besonders in der Rokokozeit sehr zarte Werke (point de Saxe) geschaffen hat.

Die farbige Spitze hat sich, wie gesagt, besonders in der Volkskunst (der Alpenländer, Spaniens, der slawischen Völker und im Oriente)[S. 83] erhalten und ihre höchste Ausbildung wohl bei den Slowaken erfahren.

Ein besonderer Raum im I. Stock (Raum XIV) enthält die Widmung der Gräfin Marie Hoyos-Amerling, eine Sammlung, die besonders durch ausgezeichnete altitalienische und spanische Spitzen, aber auch in anderer Hinsicht hervorragt.

D. POSAMENTERIEN UND ANDERES.

Von älteren Bortenwirkereien wären besonders die sogenannten sizilischen und die Kölner Arbeiten hervorzuheben, von denen erstere noch in romanische, letztere in gotische Zeit fallen.[24]

Vereinzelt sind auch durchbrochene Posamenterien des Mittelalters erhalten; reicher treten diese und die bortenartigen aber erst mit dem XVII. Jahrhunderte auf. In späterer Zeit, besonders zu Anfang des XIX. Jahrhunderts, gehört Wien zu den Hauptpflegestätten dieses kunstgewerblichen Zweiges, und es sind ziemlich viele Proben hiervon in der Sammlung enthalten.

Nebenabteilungen der Textilsammlung bilden eine kleine Kollektion von gepreßten und bemalten Ledertapeten und derartigen Lederornaten (des XVII. und XVIII. Jahrhunderts) und eine Sammlung von Papiertapeten; unter diesen wären besonders einige Friese von Moquin (1809) hervorzuheben.

Auch besitzt das Museum eine große Anzahl alter hölzerner Model für den Stoffdruck und Darstellungen verschiedener Stadien wichtigerer und[S. 84] seltenerer Techniken, wie der alten indischen Batikerzeugung.[25]

Zur Erläuterung der früheren Verwendung von Stoffen, Stickereien und insbesondere von Spitzen ist auch eine Sammlung von Bildnissen angelegt, die bemerkenswerte Kostüme aus der Zeit des XVII., XVIII. und XIX. Jahrhunderts zeigt; doch konnte wegen Raummangels bisher nur ein Teil des Vorhandenen zur Ausstellung gebracht werden. Besonders hervorheben wollen wir ein Damenbildnis in der Art des Lely, das eine besonders merkwürdige Tragart der Spitzen im XVII. Jahrhundert erkennen läßt (Saal VI) oder ein Kinderbildnis aus der späteren Louis XIV-Zeit, das ein Kleid aus schabloniertem ostasiatischen Stoffe zeigt.

Der Verbindungsgang vom alten zum neuen Hause im ersten Stocke wird gewöhnlich zur Ausstellung von Leihgaben oder Neuerwerbungen der Textilsammlung verwendet.

[4] Bei den Tapisserien wird der Schuß nicht wie bei den sonstigen Geweben prinzipiell durch die ganze Breite der Stücke geführt, sondern nur so weit, als es die einzelne Farbe für das Muster erfordert. Als kunstvolle Arbeit ist diese Handweberei älter als die höher ausgebildete eigentliche Weberei. Sie ist zwar während der Ausführung als Handarbeit schwieriger, bedarf aber nicht so kunstvoller Vorbereitungen wie die eigentliche Weberei, sobald diese reichere Muster geben will. Die tapisserieartige Handweberei ist auch heute noch als Volkskunst im Oriente, bei den Südslawen und anderswo üblich; die noch zu besprechenden ägyptischen Funde sind zumeist in dieser Art ausgeführt.

Der bei uns übliche Ausdruck „Gobelin“ bezieht sich eigentlich nur auf französische Arbeiten der „Manufacture des Gobelins“.

[5] Und in der Porzellanabteilung: Widmungen von Karl und Rosalia Goldschmidt in Wien.

[6] „Erstürmung einer Minneburg“ und „wilde Männer bei verschiedenen ländlichen Arbeiten“. Die wilden oder Waldmänner suchen in der Poesie und bildenden Kunst des späten Mittelalters eine Art Naturzustand zu versinnlichen, wie später das Hirtenleben im XVIII. Jahrhundert. Vgl. Jakob von Falke, Mitteilungen des k. k. Österreichischen Museums. N. F. VII, S. 105 ff.

[7] Der eine mit einer Variante der Schwanenrittersage. Die Arbeiten stammen aus einer abgebrannten Krakauer Kirche. Eine dieser Tapisserien zeigt noch Brandspuren.

[8] Darstellungen aus der Geschichte des verlorenen Sohnes.

[9] „Gastmahl der Dido“, ein Geschenk des Freiherrn Albert von Rothschild.

[10] Geschichtlich nicht unwichtig sind auch zwei kleinere Arbeiten mit Darstellungen aus der Geschichte von Amor und Psyche nach Apulejus, französische Erzeugnisse der Louis XIII- oder der frühen Louis XIV-Zeit.

[11] Jedoch zumeist auch auf der Rückseite sichtbar.

[12] Riegl, A., Die ägyptischen Textilfunde im k. k. Österr. Museum. Allgemeine Charakteristik und Katalog. Mit 13 Tafeln. 1889. — (Aufsatz von M. Dreger in „Kunst und Kunsthandwerk“, 1911, S. 239 ff.)

[13] Wollstoffe sind wohl größtenteils auch durch Mottenfraß zerstört worden; immerhin finden sich in der Sammlung selbst einige spätantike vor. — Die meisten frühen Stoffproben entstammen der Sammlung des Kanonikus Bock, die unmittelbar nach Gründung des Museums erworben werden konnte. Doch ist auch diese Abteilung seither vielfach ergänzt worden.

[14] Eine solche ist mit besonderer Rücksicht auf die Sammlung des Museums von M. Dreger als „Künstlerische Entwicklung der Weberei und Stickerei“ (Wien 1904) erschienen, und weiter in zahlreichen Aufsätzen in „Kunst und Kunsthandwerk“ ergänzt worden. Seither wurde die Sammlung besonders in den bis dahin weniger gepflegten Gebieten der Barock-, Rokoko- und klassizistischen Kunst ergänzt; doch wurden auch andere wichtige Erwerbungen gemacht. Wo die neuere Forschung (neuerdings O. v. Falke) zu abweichenden Ergebnissen gelangt ist, ist dies an den Gegenständen verzeichnet.

[15] Wir erwähnen, daß der Goldfaden der späteren mittelalterlichen Gewebe zumeist aus einem Leinen- oder Seidenfaden besteht, der mit einem schmalen Streifen vergoldeten Häutchens umgeben ist („cyprisches Gold“). Vom XV. Jahrhundert an nimmt der Gebrauch des heute üblichen Goldfadens (mit umsponnener vergoldeter Metallamelle) zu, wodurch die Stoffe glänzender, aber auch steifer werden, eine Ursache des Wandels im Schnitte der Kirchengewänder. Auch diese Änderung der Meßgewandformen läßt sich übrigens in der Sammlung des Museums verfolgen.

[16] Durch die seefahrenden Völker, besonders durch die Holländer kamen auch viele original-ostasiatische Stoffe in unsere Länder oder es wurden europäische Muster nach Ostasien in Arbeit gegeben, wofür die Sammlung bemerkenswerte Beispiele enthält. — Besonders kamen auch bedruckte persische, indische und ostasiatische Gewebe nach Europa.

[17] Besonders sei hingewiesen auf eine Dalmatika, die zu den schönsten erhaltenen Webereien der Florentiner Frührenaissance gehört und auf eine Kasel aus prächtigem spanischen Renaissancestoffe (mit spanischer Lasurstickerei, siehe unten). Bemerkenswert ist auch eine italienische Kasel aus der zweiten Hälfte des XVI. Jahrhunderts mit einem, teilweise mit der Schere aufgeschnittenen, Ornamente.

[18] Bemerkenswert sind auch drei große Wandbespannungen ostasiatischer Herkunft, mit Modeln gedruckt und der Hand bemalt, von der Art, wie sie im XVIII. Jahrhundert in österreichischen Schlössern vielfach verwendet wurden. Ein Stück trägt einen (Einfuhr-) Stempel von 1731.

[19] Vgl. die Rekonstruktion in „Kunst und Kunsthandwerk“, XI, S. 613 ff.

[20] Große Antependien u. a. in Saal VI und VII.

[21] Vgl. M. Dreger, „Zeitschrift für christliche Kunst“, Köln 1906, S. 391 ff.

[22] Ein Teil ist abgebildet in der „Entwicklungsgeschichte der Spitze“ von M. Dreger, 2. Auflage, Wien (A. Schroll und Cie.) 1910.

[23] In Alençon wurden, urkundlich erwiesen, alle Arten von Nähspitzen erzeugt; doch nennt man Spitzen mit umwickeltem Netzgrunde gewöhnlich Argentan.

Die Brüsseler Spitzen (alter Art) bestehen aus getrennt geklöppelten Formen, die dann erst zusammengearbeitet werden; meist ist der Rand der Formen dabei durch Überschlagen der Fäden verdickt. Die Mechler Spitzen (Malines) sind in Einem gearbeitet (nicht mit besondern Fäden für Form und Grundnetz), haben aber einen dickeren glänzenden Konturfaden eingeschlagen; die Valenciennes verzichten auf diesen und zeigen besonders dichte Bindung. Diese Formen und Namen können auch nach alten Urkunden geschieden werden; zahlreiche sonst übliche Bezeichnungen beruhen meist nur auf Konvention. In Brüssel wurde übrigens auch mit der Nadel gearbeitet, und es mag ein großer Teil der gewöhnlich als französisch bezeichneten Spitzen dorther stammen. Über „point d’Angleterre“, „Pottenkanten“ etc. s. a. a. O.

[24] Nebenbei erinnern wir hier an gewisse sizilische oder verwandte tapisserieartige Gewebe der romanischen Zeit, von denen das Museum einige bemerkenswerte Beispiele besitzt.

[25] Stoffdrucke (patronierte Stoffe usw.) sind in größerer Zahl vorhanden, auch schon aus dem europäischen Mittelalter.

ERSTES STOCKWERK.
A. Bibliothek. B. Sitzungssaal. C. Orientalisches Zimmer. D. Bureau des Direktors.

[S. 87]

B. ERSTES STOCKWERK.

SAAL IX.

KLEINE PLASTIK, LEDERARBEITEN.

Die Vitrinen rechts und links der Eingangstüre enthalten eine Sammlung von Kassetten und ein kleines Bild der Prager Schule aus dem XIV. Jahrhundert, eine Madonna mit Heiligen ringsum auf ornamentiertem Goldgrund in Tempera gemalt.

In der Vitrine beim Fenster sind einige hervorragende Arbeiten ausgestellt, wie die beiden Buchsfiguren von Adam und Eva von Konrad Meit aus Worms aus dem XVI. Jahrhundert mit Spuren alter Bemalung, der Kopf eines Mönches der ehemals farbig war, dann braun überstrichen wurde, eine burgundische Arbeit aus dem XV. Jahrhundert, ein in Holz geschnitzter Gekreuzigter, oberitalienisch (Padua?), aus dem XV. Jahrhundert und ein Kehlheimerstein mit den Bildnissen von Maximilian II. und seiner Gemahlin Maria, der Tochter Karls V., in reicher dekorativer Umrahmung, datiert 1560.

Gegenüber in der Vitrine eine allegorische Gruppe in farbiger Terrakotta: die Wahrheit, angeblich von Giuliani, dem Lehrer Raffael Donners, die Figur eines heiligen Sebastian in Holz geschnitzt, deutsch, um 1600, sowie einige Figuren aus Holz und Elfenbein, nürnbergische Arbeiten des XVII. Jahrhunderts. In der Wandvitrine Lederarbeiten, darunter ein Futteral zum Schutze einer Monstranz mit geschnittenen Tieren und Rankenwerk[S. 88] auf gepunztem Grunde aus Drosendorf in Niederösterreich, XIV. Jahrhundert; ein Kästchen aus Leder mit eingeschnittenen Ornamenten, beschlagen mit herzförmig endenden Eisenbändern, deutsch, XIV. Jahrhundert; eine Kassette mit Leder überzogen, in dem Ornamente und Heiligenfiguren eingeschnitten, getrieben und bemalt sind, eine deutsche Arbeit des XV. Jahrhunderts, und ein Pulverhorn aus schwarzem Leder geschnitten und getrieben, mit Satyrpaar und grotesken Vierfüßlern verziert, französisch, XVI. Jahrhundert.

In der Pultvitrine beim ersten Fenster einige bemalte Spielsteine, Augsburger Arbeit des XVI. Jahrhunderts mit Porträtbildern hervorragender Männer und Frauen, sowie in Holz gestanzte Spielsteine mit Porträten und Allegorien, um 1700.

Es folgt eine Vitrine mit Wachsbossierungen, unter denen in der einen Hälfte eine Wachsporträtminiatur von Alessandro Abbondio aus dem Jahre 1635, eine von Andreas und eine von Caspar Attemstedt aus den Jahren 1615 und 1609, sowie eine Porträtminiatur Rudolfs II. besonders bemerkenswert sind.

Die andere Hälfte enthält Bossierungen vorzüglich aus der Wiener Porzellanfabrik. Es folgen dann die Elfenbeinschnitzereien in zwei Schaukasten.

ELFENBEINSCHNITZEREIEN.

Das ganze Altertum hindurch wurde die Kunst der Elfenbeinschnitzerei gepflegt, und die aus dem Anfange des Mittelalters uns erhaltenen Elfenbeinschnitzereien sind die wichtigste Quelle für die Kenntnis der Plastik dieser Zeit. (Vergleiche[S. 89] die in der Gipssammlung des Museums vorhandenen Abdrücke.) Je näher diese Werke dem Altertum stehen und je mehr sie sich an die guten alten Vorbilder anlehnen, desto besser sind sie.

Mit der Entwicklung der Gotik und der Ausbildung des Naturalismus entsteht im XIII. Jahrhundert eine neue Kunst, zu deren schönsten Werken die Elfenbeinschnitzereien gehören. Aus dieser Zeit sind uns eine Anzahl von teils für kirchliche, teils für weltliche Zwecke verfertigten Gegenständen erhalten, die meistens noch Spuren alter Malerei aufweisen. So wie es im Altertum üblich war, den Statuen durch Bemalung besonders der Augenbrauen, Augen, des Mundes, der Haare, der Gewänder mehr Leben zu verleihen, so hat auch die farbenfreudige Gotik alle ihre Figuren reich mit Bemalung versehen, so zwar, daß das eigentliche Material meist ganz verdeckt wurde. Die Farbe ist natürlich infolge der Länge der Zeit nur sehr selten erhalten, oft aber ist die Farblosigkeit eine Folge der Unkenntnis der Sammler, welche die Elfenbeinfiguren reinigten. Die Stoffe, welche die Elfenbeinplastik behandelt, sind die mannigfaltigsten. Auf den Kirchengeräten, wie den Bischofsstäben, den Deckeln der Meßbücher, den Reliquienschreinen usw. sind Darstellungen aus der Heiligen Schrift üblich, auf weltlichen Gegenständen, wie Schmuckkästchen, Hochzeitstruhen, auf Jagdhörnern und Sätteln finden wir Illustrationen zu den Begebenheiten aus der Geschichte, besonders häufig aber zu den damals in höfischen Kreisen so verbreiteten epischen Dichtungen, den Sagen und Romanen, die in Frankreich ihren Ursprung hatten, wo auch die Elfenbeinschnitzerei ihre höchste Blüte erreichte.

[S. 90]

Zur Zeit der Frührenaissance findet das Elfenbein nur sehr selten Verwendung, hauptsächlich wohl, weil man die Elfenbeinarbeiten der Antike nicht kannte; erst im XVI., besonders aber im XVII. Jahrhundert bricht sich die Technik der Elfenbeinschnitzerei wieder Bahn, doch bleiben die in dieser Zeit entstandenen Werke unbemalt, eine Folge des Studiums der antiken Plastik, die man eben bis zur Mitte unseres Jahrhunderts für eine unbemalte gehalten hatte. Aus dem Elefantenzahn werden mit Vorliebe Humpen geschnitten, die ringsum eine Darstellung in Schnitzerei tragen und mit Deckel und Henkel, teils aus Elfenbein, teils aus Metall, versehen werden. Manchmal wird auch eine Zeichnung in das Elfenbein geritzt und mit schwarzer Farbe nachgezogen, oft auf das Elfenbein Malereien aufgetragen. Im XVIII. Jahrhundert finden die „passicht“ gedrechselten Gefäße allgemeine Verbreitung und zahlreiche Liebhaber. Die Wiederaufnahme der Antike im Anfange des XIX. Jahrhunderts verdrängte wieder wie im XV. Jahrhundert die Technik der Elfenbeinschnitzerei, die später um die Mitte des Jahrhunderts verwendet wurde, um prunkvolle Stücke nach alten Vorbildern zu erzeugen.

Von den Elfenbeinarbeiten sind hervorzuheben: In der ersten Vitrine eine Trinkkanne aus dem XVII. Jahrhundert, reich geschnitzt, ein deutscher Becher aus derselben Zeit mit Gravierungen, ein Deckelpokal mit Kinderfigürchen aus dem XVIII. Jahrhundert, passicht gedrechselt, und eine Kassette in Elfenbein mit Metallbeschlägen und Resten alter ornamentaler Bemalung, sarazenisch, XIV. Jahrhundert.

[S. 91]

In der zweiten Vitrine: Eine Gitarre mit reicher Gravierung, im Innern die Inschrift: Heinrich Kramer, Lautten und Geigenmacher in Wien 1715, ein Pulverhorn aus Holz mit Jagdszenen in Intarsia, Anfang des XVIII. Jahrhunderts, und einige passicht gedrechselte Becher.

In der Mitte der Wand steht das Modell eines Altars in Holz geschnitzt, eine Prager Arbeit des XVIII. Jahrhunderts, und eine physiognomische Studie von F. X. Messerschmied in Wachs.

In der folgenden Vitrine, die Arbeiten aus Wachs enthält, ist eine Figur Kaiser Josefs II. von Zauner besonders hervorzuheben.

BUCHEINBÄNDE.

Die Bucheinbände des späten Mittelalters bestehen meistens aus Holztafeln, die mit kostbarem Stoffe oder mit Leder überzogen sind. Dieses wird durch mit dem Falzbein in das Leder gezeichnete Linien in Felder geteilt, in denen dann mittels Stanzen Ornamente blind eingepreßt werden. Es gab noch eine andere Art der Blindpressung, die mittels Plattenstempel (Stöcke), der sogenannte Plattendruck; seltener wurden die Ledereinbände durch Schneiden, Ritzen, Punzen etc. verziert. Um den Einband vor dem Abnützen zu schützen, werden Buckeln oder Ecken aus Metall angebracht, oft wird das Buch mittels einer Schließe verschlossen.

Im XVI. Jahrhundert waren in Deutschland die weißen Schweinsledereinbände sehr beliebt, deren Pressungen in Stockdruck oft große Feinheit in der Zeichnung zeigten. Häufig wurde in der Mitte ein Ornament (oft auch ein Wappen) angebracht[S. 92] und die Ränder mit Streifen geschmückt, die durch wiederholtes Nebeneinandersetzen von Stempeln entstanden und sich in den Ecken ohne Rücksicht auf das Ornament überschnitten oder tot liefen.

In der zweiten Hälfte des XVI. Jahrhunderts findet in Deutschland eine neue Art der Dekoration, die Handvergoldung in Verbindung mit Plattendruck, von Italien her Eingang und gewinnt immer größere Verbreitung.

Häufig werden die so gezierten Einbände noch durch Bemalung geschmückt.

Auch in Frankreich wird diese Art der Buchverzierung übernommen und geübt, bis in den Einbänden um 1600 eine neue Art des Schmuckes durch kleine Zweige, Blättchen, Spirallinien und dergleichen allgemeine Verbreitung findet. Eine weitere Neuerung ist das meistens in Gold aufgepreßte Spitzenmuster und die Dekoration mittels Punktstempels, so zwar, daß alle Linien und Ornamente durch zahlreiche aneinandergefügte Punkte entstehen.

In allen Ländern und ungeheuer häufig wird um diese Zeit das Fächermuster, so genannt wegen der strahlenförmigen Anordnung der einzelnen Motive, verwendet. Im XVIII. Jahrhundert beschränkt sich die Dekoration eines Einbandes vorzüglich auf den Schmuck der Ecken und der Mitte des Deckels. Laub- und Bandwerkmuster, sowie die Blumengewinde des Rokokos werden auf das meistens rote Leder aufgepreßt und häufig Malerei zum Schmucke des Bandes verwendet.

In den Vitrinen sind die Bucheinbände nach Ländern geordnet, Deutschland, Frankreich, England und Italien. Auch einige moderne Bucheinbände sind ausgestellt.

[S. 93]

RAUM X.

Die Wände sind mit Dekorationen nach Mustern im Stile Louis XVI aus Versailles dekoriert, die Möbel sind Kopien nach Originalen dieser Zeit.

RAUM XI.

enthält Kopien nach französischen Originalen aus dem XVI. Jahrhundert.

RAUM XII.

Mit Motiven aus Schloß Rambouillet, in Eiche geschnitzt von Friedrich Otto Schmidt, Wien.

RAUM XIII.

Ein Zimmer mit Kopien nach Originalen im Empirestil aus dem Hofmobiliendepot in Wien.

RAUM XIV.

Textilien, geschenkt von der Gräfin Hoyos-Amerling.

RAUM XV.

NACHBILDUNG EINES ZIMMERS AUS DEM ANFANGE DES XIX. JAHRHUNDERTS IM PALAIS DES K. K. MINISTERIUMS FÜR KULTUS UND UNTERRICHT, ausgeführt von der k. k. Fachschule für Holzbearbeitung in Grulich unter Mitwirkung der k. k. Fachschule für Bildhauer und Steinmetze in Hořic (Steinarbeit), der kunstgewerblichen Fachschule in Gablonz (Beschläge) und der Staatsgewerbeschule in Graz (Stickereien).

[S. 94]

RAUM XVI.

KOPIE EINES PORTALES SAMT TÜRE UND SITZBÄNKEN AUS DER „GOLDENEN STUBE“ DER VESTE HOHENSALZBURG, ausgeführt von der k. k. Staatsgewerbeschule in Salzburg unter Mitwirkung der k. k. Fachschule für Kunstschlosserei in Königgrätz (Beschläge).

Von der Polychromierung wurde bei der Kopie abgesehen.

RAUM XVII.

NACHBILDUNG DES FÜRSTENZIMMERS IM FÜRSTLICH LIECHTENSTEINSCHEN SCHLOSSE VELTHURNS IN TIROL, ausgeführt von der k. k. Fachschule für Holzbearbeitung in Bozen, unter Mitwirkung der k. k. Fachschule für Tonindustrie in Bechyn (Ofen), der k. k. Fachschule für Kunstschlosserei in Königgrätz (Beschläge) und der k. k. Fachschule für Steinbearbeitung in Trient (Steinarbeiten).

Die Täfelung des hier kopierten Fürstenzimmers, des schönsten Raumes in Velthurns, der sich namentlich durch die meisterhaft behandelte Intarsia auszeichnet, wurde seinerzeit von dem Meraner Tischlermeister Spineider unter Mitwirkung der Meister Rumpfer aus Klausen und Dopf aus Brixen (1583) verfertigt; der Ofen ist eine Kopie des vom Bozener Hafnermeister Pietschdorfer verfertigten Originals aus dem Ende des XVI. Jahrhunderts.

Die Möbel des Interieurs sind Nachbildungen von Renaissanceobjekten aus Steiermark und Tirol.

[S. 95]

RAUM XVIII.

NACHBILDUNG EINES ZIMMERS AUS DEM GRÄFLICH TAXIS’SCHEN SCHLOSSE REIFFENSTEIN IN TIROL, ausgeführt von der k. k. Staatsgewerbeschule in Innsbruck unter Mitwirkung der Filialfachschule Hall und der k. k. Fachschule für Tonindustrie in Bechyn (Ofen).

Das Interieur ist die freie Nachbildung eines aus dem Jahre 1490 stammenden, mit zwei Erkern versehenen, an den Wänden und an der Decke vollständig vertäfelten Zimmers im Schlosse. Die Vertäfelung des Raumes ist im Charakter der Spätgotik durchgeführt; reichgeschnitzte Maßwerkfriese zieren die Decke, polychromierte Wappen, schön profilierte Umrahmungen und Beschläge schmücken die Türe. Besonders reich ist der Unterzugbalken ornamentiert. Ein mit Schnitzerei gezierter Waschschrank steht, gleich den Sitztruhen an einer Wandseite, in Verbindung mit der Täfelung.

Der im Interieur befindliche Ofen und der Tisch sind Nachbildungen von mittelalterlichen Objekten aus Tirol.

RAUM XIX.

ZUSAMMENGESETZT AUS NACHBILDUNGEN EINIGER TEILE DES MARIA THERESIEN-ZIMMERS IM KAISERLICHEN LUSTSCHLOSSE SCHÖNBRUNN, ausgeführt von der k. k. Fachschule für Holzbearbeitung in Villach unter Mitwirkung der k. k. Fachschulen für Holzbearbeitung in Wal.-Meseritsch und Chrudim (einzelne Schnitzarbeiten), Bruck an der Mur (Fenster) und der Staatsgewerbeschule in Graz (Stickereien).

[S. 96]

Das in Weiß gehaltene Zimmer ist an der Türe, den Fensterleibungen und den Wänden mit überaus zierlichen, technisch meisterhaft und mit feiner Formenempfindung ausgeführten vergoldeten Schnitzereien ausgestattet. Die Stickereien in den 24 Panneaux und den 2 Sopraporten sind Kopien nach eigenhändigen Arbeiten der Kaiserin Maria Theresia.

RAUM XX.
SITZUNGSSAAL.

Der Sitzungssaal ist von der Firma F. O. Schmidt nach dem Originale im Schlosse Eszterháza bei Ödenburg im Stile Louis XV. dekoriert. An der rechten Seitenwand eine Marmorbüste Seiner Majestät des Kaisers, von Otto König, an der linken Seitenwand ein lebensgroßes Porträt des Erzherzogs Rainer, gemalt von Siegmund L’Allemand.

RAUM XXI.
ORIENTALISCHES ZIMMER.

Das orientalische Zimmer, rechts neben der Eingangstür zur Bibliothek gelegen, soll die Ausstattung eines Wohnraumes im Oriente zur Anschauung bringen. In die Wände sind Holzschränke mit geschnitzten Füllungen eingesetzt und zwei mit Holzgittern verschlossene Fenster eingebrochen. Unter dem Fenster eine maurische Wandétagère. Die Bänke in den Fensternischen sind mit Daghestan-Teppichen und tambourierten Seidenpolstern belegt, der Fußboden mit einem Smyrna-Teppiche, in dessen Mitte ein Taburett mit Kaffeeservice. Von der Stalaktitendecke hängt eine messingene Moschee-Ampel aus Damaskus herab.

[S. 97]

Unter den oberen Arkaden, oberhalb der Stiege, befindet sich das Denkmal für den Gründer und ersten Direktor des Museums, R. v. Eitelberger († 1885), entworfen von H. Klotz, in Erzguß ausgeführt von der Metallwarenfabrik Artur Krupp in Berndorf; im Stiegenhause die Marmorbüste des Erbauers des Museums, H. Freiherrn von Ferstel († 1883), von V. Tilgner, die Marmorbüste des Industriellen Ed. v. Haas († 1880) und ein Medaillonbild des Professors der Kunstgewerbeschule, Ferd. Laufberger († 1881), entworfen von A. Kühne und J. Storck.

BIBLIOTHEK.

Die Bibliothek des Österreichischen Museums enthält als Fachbibliothek solche Werke, welche sowohl durch Abbildungen als durch historische, künstlerische oder wissenschaftliche Erläuterungen die Zwecke des Museums zu fördern geeignet sind. Sie besteht aus zwei Abteilungen, aus der eigentlichen Büchersammlung und aus der Sammlung von Kunstblättern.

Die letztere umfaßt eine reichhaltige Sammlung von Ornamentstichen aus der Zeit vom XV. bis XVIII. Jahrhundert[26] und eine Vorbildersammlung, bestehend aus Einzelabbildungen von vorzugsweise kunstgewerblichen Arbeiten aller Art in Originalzeichnungen, Kupferstichen, Holzschnitten,[S. 98] Lithographien und photomechanischen Druckverfahren.

Eine spezielle Erwähnung verdient die stattliche Anzahl von Fachzeitschriften, welche in einem eigenen Zeitschriftenlesesaale (dem ehemaligen Vorlesesaale) dem Publikum auf die bequemste Art zugänglich sind, ferner die bedeutende Sammlung von kunsttheoretischen und kunsttechnischen Schriften, von Schreib- und Zeichenbüchern aus dem XVI. bis XVIII. Jahrhundert, von Kostümwerken und die kostbare Kollektion von Original-Stick- und Spitzenmusterbüchern aus dem XVI. und XVII. Jahrhundert. Weiters enthält die Büchersammlung eine große Zahl von Abbildungswerken aus den Gebieten der Architektur, Skulptur und Malerei und eine lange Reihe der besten Vorlagenwerke für sämtliche Zweige des Kunstgewerbes.

Den Grundstock der Kunstblättersammlung bildet die im August 1863 erworbene Kollektion von Ornamentstichen aus dem Besitze des Kunsthändlers W. Drugulin in Leipzig, bestehend aus 5000 Blättern nebst 87 Kunstbüchern aus dem XVI. bis XVIII. Jahrhundert.

Ornament von Aldegrever
Ornament von H. S. Beham
Ornament von B. Beham
(aus der Ornamentstichsammlung)
Ornamente von Virgil Solis
(aus der Ornamentstichsammlung)

Diese Sammlung wurde seither durch Einzelankäufe auf mehr als das Dreifache vermehrt und ist gegenwärtig in zwölf Gruppen angeordnet, deren erste das Ornament im allgemeinen umfaßt und dessen Stilwandlungen vom Ende des XV. Jahrhunderts bis zur Zeit Ludwigs XVI. vor Augen führt; daran schließen sich in Gruppe II Stick- und Spitzenmuster und Kostümdarstellungen und weiters in den Gruppen III bis XII verschiedene mustergültige Vorbilder für die einzelnen Zweige des Kunstgewerbes, als: Mobilien, Schmiede- und[S. 109] Schlosserarbeiten, Waffen, Uhren, Goldschmiedearbeiten, Gefäße und Geräte, Heraldik u. s. f.

Goldschmiedornamente von Johannes Hanias
(aus der Ornamentstichsammlung)
Niellierte Goldschmiedverzierung von Jean Vovert
(aus der Ornamentstichsammlung)
Goldschmiedornamente von Abraham de Bruyn
(aus der Ornamentstichsammlung)

Besonders reich ist die Sammlung an Blättern der sogenannten Kleinmeister in der Gruppe der allgemeinen Ornamente, dann an Entwürfen für in Email oder Niello auszuführende Goldschmiedeverzierungen, an Vorbildern für getriebene Gefäße, an Entwürfen für Juweliere und an heraldischen Musterblättern, zu welchen auch eine im Jahre 1878 angelegte Kollektion von verzierten Buchhändler- und Buchdrucker-Signeten zu rechnen ist.

Hierzu kommt noch eine schöne Sammlung von etwa 14.000 Blättern Initialen aus deutschen, französischen, italienischen und niederländischen Druckwerken des XV. bis XVIII. Jahrhunderts. Der größte Teil dieser Sammlung. 12.631 Blätter, wurde im September 1867 aus dem Besitze des Glasmalers H. von Holtorp in London erworben.

Der übrige Teil der Kunstblättersammlung besteht aus Originalzeichnungen und Abbildungen von Kunst- und kunstgewerblichen Objekten in Photographie, Lithographie etc. und ist nach Gegenständen geordnet. Die größte und wertvollste Bereicherung erhielt dieser Teil der Museumsbibliothek im Jahre 1866 durch die Überweisung der Fachbibliothek der aufgelassenen k. k. Porzellanmanufaktur. In der hierdurch in den Besitz des Museums gelangten, 5757 Blätter zählenden Mustersammlung der Fabrik waren auch 1438 Blätter Originalzeichnungen, Entwürfe zu Tassen, Tellern und verschiedenen andern Gefäßen sowie für deren Verzierung enthalten.

Einen sehr wertvollen Bestandteil der Kunstblättersammlung bildet eine Kollektion von Originalaufnahmen,[S. 110] Federzeichnungen und Aquarellen, welche die Direktion des Museums im Laufe der Jahre nach Kunstwerken, welche dem Institut zur leihweisen Ausstellung überlassen wurden, mit Zustimmung der Besitzer anfertigen ließ.

Der gesamte Bestand der Bibliothek betrug am Jahresschlusse 1913:

Büchersammlung
zirka
41.000
Bände
Kunstblättersammlung, und zwar:
 
Ornamentstiche
15.873
Blätter
Initialen
14.000
Originalzeichnungen, Photographien etc.
45.670
 
Zusammen
75.543
Blätter

BENÜTZUNG DER BIBLIOTHEK.

Die Benützung der Bibliothek ist jedermann gestattet und der Eintritt in dieselbe an allen Besuchstagen frei. Die Bibliothek ist vom 21. März bis 20. Oktober an Wochentagen, mit Ausnahme des Montags, von 9 bis 2 Uhr, an Sonn- und Feiertagen von 9 bis 1 Uhr geöffnet. Vom 21. Oktober bis 20. März sind die Besuchsstunden an Wochentagen, mit Ausnahme des Montags, von 9 bis 1 Uhr und von 6 bis 8½ Uhr, an Sonn- und Feiertagen von 9 bis 1 Uhr.

Das Ausleihen der Bücher erfolgt nur gegen Empfangsschein. Dieser hat den Titel und die Signatur des entlehnten Werkes, Namen und Wohnung des Entlehners und das Datum zu enthalten. Für jedes Werk ist eine besondere Empfangsbestätigung auszustellen. Als ausgeliehen ist jedes Werk zu betrachten, das mit Zustimmung[S. 111] des Bibliotheksvorstandes aus dem Bibliothekslokal entfernt wird.

Das Weiterleihen in dritte Hand ist nicht gestattet. Der Entlehner haftet für jede Beschädigung. Auf Verlangen des Bibliotheksvorstandes ist jedes entlehnte Werk sofort zurückzustellen.

Bücher und Blätter der Ornamentstichsammlung, Originalzeichnungen und wertvolle, im Buchhandel vergriffene Werke der Bibliothek dürfen nur im Bibliothekssaale benützt werden.

Im großen Bibliothekssaale liegen gedruckte Kataloge der Bücher- und der Ornamentstichsammlung, im Zeitschriftenlesesaale gedruckte Verzeichnisse der in den Journalständen enthaltenen Zeitschriften auf. Die neuesten Erwerbungen werden durch Anschlag beim Eingange in den Bibliothekssaal und überdies durch gedruckte Nachtragsverzeichnisse regelmäßig bekannt gemacht.

[26] Schestag, Fr., Illustrierter Katalog der Ornamentstichsammlung des k. k. Österr. Museums. 1871. Mit Initialen und 20 Illustrationen.

Ritter, Fr., Illustrierter Katalog der Ornamentstichsammlung des k. k. Österr. Museums. Erwerbungen seit dem Jahre 1871. Mit 130 Illustrationen. 1889.

[S. 113]

C. ZWEITES STOCKWERK.
OSTASIATISCHE SAMMLUNG.

Kollektion ostasiatischer kunstgewerblicher Arbeiten. Die Hauptstücke sind in den Spezialsammlungen des Museums aufgestellt.

RAUM XXII.

In diesem Raume ist eine Anzahl von japanischen Wandbildern (Kakemonos) teils religiösen, teils weltlichen Inhaltes aufgehängt.

RAUM XXIII.

An den Wänden die Türen eines altjapanischen Tempels, die aus Holz geschnitzt und vergoldet sind, ferner bemalte Holzschnitzereien, die als Füllungen in diesem Tempel gedient haben. Auf Postamenten chinesische und japanische Vasen, neben ihnen an der Wand Teller und Schüsseln. In Vitrinen Keramik chinesischer und japanischer Herkunft.

RAUM XXIV.

In den beiden großen Vitrinen Lackarbeiten in Schwarzlack und Goldlack. An den Wänden in Vitrinen Figuren japanischer Gottheiten, teils aus Holz geschnitzt und vergoldet, teils aus Lack, und Objekte des täglichen Gebrauches aus verschiedenen Materialien, wie kleine Hausaltärchen, Schalen, Schüsseln, Kästchen etc.

[S. 114]

Beim Fenster in einer Vitrine eine Kollektion von Netzhes (Medizinbüchsen), Kämmen und Inros.

Bei den Fenstern je ein japanischer Reisekoffer.

RAUM XXV.

In diesem Raum ist an der Wand ein Behang in Webetechnik ausgeführt und aus 11 Stücken zusammengesetzt chinesischer Herkunft angebracht, davor eine buddhistische Gottheit und große chinesische Fischbehälter mit Malerei aus Porzellan aufgestellt.

In der Vitrine beim Fenster chinesisches Porzellan.

RAUM XXVI.

In den Vitrinen an der Wand eine Kollektion teilweise alter japanischer Waffen und chinesischer Porzellanfiguren. In der Mittelvitrine Porzellane aus Satsuma.

Neben den Vitrinen japanische Lackkästchen.

XXVII. Porzellanzimmer. A. Keramische Sammlung. B. Glassammlung. C. Vorlesesaal.

[S. 117]

D. ZUBAU.

Der Verbindungsgang zum Zubau dient wechselnden Ausstellungen.

RAUM XXVII.

ALT-WIENER PORZELLANZIMMER, so genannt wegen des reichen Porzellandekors aus der frühen Zeit der Wiener Porzellanfabrik.

Die Türen und Türfüllungen, die Fenster und Fensterleibungen, der Kaminaufsatz und die Lambrien sind aus Eichenholz und belegt mit zahlreichen Porzellanplättchen, die in ornamentalen vergoldeten Rähmchen aus Vergoldermasse gefaßt sind und, strenge symmetrisch gehalten, aus dem Ende der Regierungszeit Karls VI. stammen. Die Möbel haben vergoldete Holzgestelle, sind mit reicher Schnitzerei verziert und mit Porzellanplättchen mit bunten chinesischen Blumen verziert. Sie zeigen schon den Rokokostil ebenso wie die ornamentalen vergoldeten Holzschnitzereien an den Wänden. Auch die Bilderrahmen sind in diesem Stile gehalten, und später etwas verändert worden, vielleicht zur selben Zeit, in der die reich geschnitzte Wanduhr ausgeführt wurde, wohl in den achtziger Jahren des XVIII. Jahrhunderts.

Die Wände und Möbel sind mit altem goldgelbem Brokat überzogen.

Über das Porzellan in diesem Zimmer vgl. Seite 172.

[S. 118]

KERAMIK.

Die keramische Sammlung ist im neuen Museumszubau im ersten Stock aufgestellt und gibt ein anschauliches Bild der Entwicklung dieses Industriezweiges von der Antike bis in die Gegenwart.

Der Töpferton, ein Verwitterungsprodukt tonerdehaltiger Gesteine, ist teils seiner natürlichen Beschaffenheit nach, teils infolge künstlicher Beimengungen ein Material von außerordentlich mannigfaltigen Qualitäten, dessen Verwendung in die Frühzeit menschlicher Kultur zurückreicht. Verschiedenheiten des keramischen Produktes ergeben sich aus der Beschaffenheit und Zusammensetzung des Tones, der Stärke des Brandes, sowie aus der Art des Überzuges, der Glasur.

Die wichtigsten Etappen in der Entwicklung der europäischen Keramik bilden die Erfindung der Töpferscheibe, die Anwendung der Zinnglasur und damit die Herstellung der echten Fayence und die Entdeckung des Kaolintones, wodurch die Herstellung keramischer Erzeugnisse ermöglicht wurde, welche dem ostasiatischen Porzellan in allen wesentlichen Eigenschaften gleich kommen.

Die Aufstellung beginnt links vom Haupteingange mit der Sammlung antiker Vasen und Terrakotten.[27]

ANTIKE KERAMIK.

Die keramischen Erzeugnisse der alten Griechen wurden schon zu Zeiten Homers, also um das[S. 119] Jahr 1000, auf der Drehscheibe hergestellt. Sie sind uns zu Tausenden erhalten geblieben, da die Gräber der Verstorbenen nach antiker Sitte mit typischen Objekten aus dem Hausrate der Lebenden ausgestattet wurden. Ihre rote Farbe verdanken diese Erzeugnisse einem künstlichen oder bereits von Natur aus vorhandenen Zusatz von Eisenoxyd. Die meisten der Gefäße zeigen entweder schwarze Malerei auf rotem Grunde oder rot ausgesparte Darstellungen auf schwarzem Grunde. Die Malerei erfolgte auf dem noch ungebrannten Gefäße mittels einer schwarzen Farbe, die vermutlich aus Eisenoxyd und Mangan bestand. Gelegentlich wurde die Einförmigkeit dieser Malweise durch stellenweise aufgesetztes Weiß, Rot, Blau, Gold und so weiter unterbrochen. Das fertig gemalte Gefäß wurde sodann einem Brande ausgesetzt, der ihm entsprechende Härte und Glanz verlieh.

Die Sammlung antiker Vasen und Terrakotten im Österreichischen Museum umfaßt zwar bloß gegen tausend Nummern, übertrifft aber nicht nur in bezug auf Formenreichtum, Repräsentation verschiedener Entwicklungsperioden und Fabrikationsgebiete zahlreiche weit größere und ältere Kollektionen, sondern enthält auch einzelne Objekte, die vermöge ihrer Schönheit und Seltenheit in der Gesamtgeschichte der antiken Keramik einen hervorragenden Platz einnehmen.

Die Objekte sind nach historisch-geographischen Gesichtspunkten systematisch geordnet und aufgestellt. Nur in der Aufstellung der Sammlung Blum-Blankenegg mußte, den Schenkungsbedingungen zufolge, von der systematischen Aufstellung abgegangen werden, so daß sie ein von dem übrigen Bestande getrenntes Ganze bildet.

[S. 120]

Im ersten Wandschrank rechts repräsentieren die Reihen 1 und 2 die ersten Entwicklungsstadien griechischer Keramik, aus freier Hand ohne Benützung der Drehscheibe geformte Gefäße der vorphönizischen Nekropolen von Cypern. Diese Arbeiten zeichnen sich nicht allein durch primitive Einfachheit der Technik aus, sondern zeigen auch, wie die Bildsamkeit des Tones die schöpferische Phantasie bereits in den Anfangsstadien der Entwicklung einer keramischen Industrie zu überraschendem Formenreichtum verlockte. Die späteren Arbeiten dieser Gattung sind bereits unter Anwendung der Drehscheibe entstanden. Arbeiten der zweiten Periode der griechischen Keramik, des mykenischen Stiles, sind in der Sammlung nicht vertreten. Der folgende Stil, der nach dem Tore von Athen, in dessen Nähe die bedeutendsten Funde gemacht wurden, Dipylonstil heißt, ist dagegen in mehreren Beispielen repräsentiert. Die Arbeiten dieser Gattung setzen die geometrische Verzierungsweise der ersten Periode fort, ohne die Errungenschaften mykenischer Kunst, namentlich nach technischer Richtung zu ignorieren. Die Formen sind weniger willkürlich, in der Dekoration herrschen geradlinige Kombinationen vor: Mäander, Hakenkreuz, Zickzack, Schachbrett- und Rautenmuster, durch Tangenten verbundene Kreise etc. Daneben tritt die Sternrosette als Füllungsornament auf. An die Stelle der maritimen Tiermotive des mykenischen Stiles treten rohe, dem Geiste der Linienornamentik sich nähernde Tier- und Menschenfiguren. Unter diesen Typen ist namentlich der große Krug Nr. 30 charakteristisch, in dessen Dekor sich liebevolle Sorgfalt mit schematischer Trockenheit gepaart zeigen. Als gut erhaltene altapulische Arbeiten[S. 121] verdienen hier auch die zwei buntbemalten Lampenständer, „Thymiaterien“, Nr. 40 und 41 hervorgehoben zu werden.

Im nächsten Schranke sehen wir Vasen des VII. Jahrhunderts, bei denen der linearen Ornamentik im Dipylonstil das Auftreten phantastischer und exotischer Tiergestalten im korinthischen Stile folgt. Derselbe steht unter dem Einflusse der Euphratländer und Ägyptens. Die Vasenmalerei ergeht sich in der Darstellung von Greifen, Sphinxen, Sirenen, fischleibigen Dämonen, Löwen, Panthern etc., oft in Streifen eintönig nebeneinander gereiht, während das vegetabilische Ornament Lotosknospen und -blüten sowie die ebenfalls aus Ägypten stammende Palmette verwendet. Daneben tritt der Mensch auf. Typisch sind Kampfszenen, Frauenreigen, später auch tanzende Männer in absichtlich grotesker Zeichnung. Der Tongrund ist bei den älteren Stücken hellgelblich bis ins Grünliche, bei den späteren rötlich. Hierher gehören die kleinen kugelförmigen Ölgefäße der obersten Reihe, die schlauchförmigen Tropfgefäße der dritten Reihe, verschiedene Formen der Deckelbüchse, Reihe 4, Nr. 114 bis 120, die Trinknäpfe, Reihe 2, Nr. 89 bis 91, und die für die korinthische Kunstweise dieser Periode überaus charakteristischen Krüge, mit umlaufenden Tierfriesen, unterste Reihe, Nr. 125 und 128.

Im folgenden Schranke sind hauptsächlich schwarztonige Gefäße etruskischer Herkunft (Bucchero, Vasen) ausgestellt, Näpfe, Becher, Kannen und Amphoren, die durch Dämpfung eine schwarze Färbung erhielten, in der folgenden Reihe Amphoren mit in Relief verzierten Bandhenkeln, rechts Nr. 206 das interessanteste Stück,[S. 122] ein mit sieben Sphinxen in Relief verzierter Krug der voll entwickelten Bucchero-Technik. In der Mitte der dritten Reihe eine kyrenäische Schale (Nr. 140), das einzige Stück dieser Art in der Sammlung. Unter dem Schranke, freistehend, etruskische Aschenurnen mit liegenden Figuren auf den Deckeln.

Die nun in chronologischer Folge anschließenden schwarzfigurigen Gattungen sind in verschiedenen Schränken untergebracht. Zum Eingang zurückkehrend finden wir im linken Schranke in der Mitte der oberen Etage einen jonischen Deinos auf hohem Untersatz Nr. 215, zu beiden Seiten die nach ihrem Fundorte, dem etruskischen Caere benannten Caeretaner Vasen. Ihr Fabrikationsort dürfte in einer der jonischen Kolonien Ägyptens zu suchen sein, wo diese in Sammlungen nur selten vertretene Klasse im VI. Jahrhundert den Abschluß der jonisch-kleinasiatischen Vasenmalerei bildet. Die zwei Hydrien unserer Sammlung zählen zu den bedeutendsten existierenden Stücken dieser Gattung; ein besonders bemerkenswertes Objekt ist überdies der danebenstehende vorzüglich erhaltene Dreifuß altattischen Stiles aus Theben. In der darunter befindlichen Reihe finden wir Vasen (Nr. 220 und 221), die gleichsam ein Resumé der verschiedenen vorangegangenen Kunstweisen bilden.

Zum vierten Wandschrank zurückkehrend, finden wir kleinere attische schwarzfigurige Lekythen (Salbgefäße mit langem, engem Hals und trichterförmiger Mündung (Nr. 241-271), worunter namentlich Nr. 264 hervorzuheben ist) mit der ältesten Kopie der berühmten Statuengruppe des Antenor, die Tyrannenmörder Harmodios und[S. 123] Aristogeiton. Die größeren und bedeutenderen attischen Vasen dieser Periode sind in den beiden gegenüberliegenden freistehenden Schränken ausgestellt.

Die altattische Freude an reichem figuralen Schmuck, der alle Teile des Gefäßes bedeckt, erfährt bereits merkliche Einschränkungen, denn in der Keramik Athens machen sich im Laufe des VI. Jahrhunderts zwei Richtungen geltend: eine, die auf ausgiebige Verwendung der schwarzen Firnisdecke hinzielt und die auf die spätere Keramik Korinths zurückzuführen ist, und eine andere, die zugunsten eines ausgiebigen figuralen und ornamentalen Schmuckes auf die Firnisdecke verzichtet und als das kleinasiatische Dekorationsprinzip bezeichnet werden kann.

In dem Bestreben, beide Prinzipien zu vereinigen, liegt der Anfang des rotfigurigen Stiles. Den Übergang vom schwarzfigurigen zum rotfigurigen Stile bilden jene Vasen, welche die Malerei auf einzelne rechtwinkelige abgegrenzte Felder beschränken und im übrigen den schwarzen Firnisüberzug aufweisen. Beispiele solcher Art in den beiden gegenüberliegenden freistehenden Schränken. So die prächtige Hydria Nr. 222 und die Amphoren (Vorratsgefäße für Öl oder Wein) Nr. 223 bis 225. Der daneben befindliche Deinos Nr. 235 mit einer figurenreichen Darstellung auf dem oberen Rande gehört einer jüngeren Stilrichtung an.

Unter den attischen Vasen des späteren schwarzfigurigen Stils mit Meisternamen, von welchen die Sammlung mehrere besitzt, sind namentlich die Amphoren des Nikosthenes (Nr. 231 und 232) hervorzuheben. Sie lehnen sich mit Rücksicht auf ihr[S. 124] Hauptabsatzgebiet an etruskische Formen an, haben breite, wie aus Metallblech geschnittene Henkel und wie aus Streifen zusammengesetzte Körper. Bevor die rotfigurige Technik den Sieg davontrug, gab es eine Übergangszeit, in der beide Techniken verquickt erscheinen, wie dies bei der Amphora Nr. 319 im dritten der freistehenden Schränke der Fall ist, einem Stücke, das in mehr als einer Hinsicht zu den bedeutendsten der Sammlung zählt und drei Entwicklungsperioden an sich vereinigt: Am unteren Teile des Gefäßes Ornamente des älteren Stiles, am oberen rotfigurige Darstellungen, am Halse Dionysische Gruppen in schwarzfiguriger Technik. Der Übergang von der schwarzfigurigen zur rotfigurigen Technik geschah an den sogenannten „Augenschalen“, Schalen mit großen menschlichen Augenpaaren zum Schutze vor dem „bösen Blick“, wie zum Beispiel Nr. 285. Hier ist das Innere der Schale bis auf ein Mittelrund, in dem das Gorgonenhaupt erscheint, gefirnißt. Wahre Prachtstücke aus der Blütezeit der Schalenmalerei sind im vierten freistehenden Schranke Nr. 323, 324 und 3235, eine von Hieron, zwei von Duris bemalt; namentlich muß Nr. 325 mit Szenen aus dem troischen Sagenkreis als eine typische Musterleistung des letztgenannten Malers bezeichnet werden.

Die Krone der ganzen Sammlung ist aber das im danebenstehenden Schranke befindliche große napfförmige Mischgefäß Nr. 328 mit Szenen aus der Ilias. Ihre Ergänzung finden diese Stücke zum Teil in der darunter befindlichen Reihe. Hier ist die Schale Nr. 321 „Hermes als Schelm“ besonders interessant. Auch die Vasen der unteren Reihe in dem vor dem Fenster stehenden Schranke Nr. 340 ff. gehören hierher.

[S. 125]

Wurden im strengen Stile die für das Symposion bestimmten Vasenformen von den Malern bevorzugt, so begünstigt der schöne Stil die Gefäße für den Putztisch der Frauen. Als Beispiel hierfür mögen die kleinen Salbgefäße, Fensterschrank obere Reihe, Nr. 354 ff., dienen, Stücke, bei welchen überdies in der Anwendung aufgehöhten Goldes und polychromer Malerei eine weitere technische Wandlung zu verzeichnen ist.

Eine eigenartige Gruppe attischer Keramik bilden die Salbgefäße für den Totenkult, die Grab-Lekythoi. Bei der feierlichen Aufbahrung des Leichnams wurden sie, mit Wohlgerüchen gefüllt, neben demselben aufgestellt, bei seiner Bestattung folgten sie ihm als Liebesgabe in das Grab. Diese Gefäße sind häufig mit einer weißen Engobe versehen, und die Konturen der Figuren sind mit Deckfarben ausgefüllt. Die Darstellungen stehen in naher Beziehung zu ihrer Bestimmung. Unter den Lekythen unserer Sammlung ist Nr. 351 mit der Darstellung einer Totenklage ein Stück von seltener Schönheit. In demselben Schranke verdienen ferner zwei Becher, ein „Kantharos“ in Form eines Mohrenkopfes, untere Reihe, Nr. 347, eine treffliche, sorgfältige Arbeit, und ein „Rhyton“ (Trinkbecher) in Form eines Fuchskopfes, Nr. 380 (obere Reihe), besonders hervorgehoben zu werden.

Attische Gefäße aus der Zeit des rotfigurigen Stiles ohne Bemalung finden wir im folgenden Wandschrank, obere Reihe, Nr. 401 ff. Hierher gehört auch der einzeln aufgestellte große prächtige Krater (Mischgefäß) mit vergoldeten Weinranken aus Capua.

Im vorher beschriebenen Wandschrank sowie in dem zweitfolgenden befinden sich hauptsächlich[S. 126] etruskische, zum Teil unter attischem Einflusse entstandene, ferner apulische und unteritalische Arbeiten. Unter den erstgenannten ragt die Kanne in der obersten Reihe links, Nr. 452, durch reiche sorgfältige Bemalung mit dionysischer Szene besonders hervor. Ferner verdienen die einer späteren Periode angehörenden apulischen Kopfvasen, Nr. 489 bis 491, und die mit weißer, gelber und roter Farbe bemalten sogenannten Vasi di Gnathia, Nr. 508 ff., hervorgehoben zu werden.

Zwischen diesen beiden Vitrinen befindet sich die mit der Sammlung griechischer Terrakotten aus Lokris, Cypern, Kleinasien, Syrakus, Tarent und aus unbestimmten griechischen und italischen Fundorten. Unter diesen Arbeiten sind einige Tanagrafiguren von hervorragender Schönheit besonders bemerkenswert. So die weibliche Figur, Reihe 3, Nr. 794, eine der besten Schöpfungen der tanagräischen Tonplastik, und Nr. 795, eine sorgfältige, schöne Arbeit von unzweifelhafter Echtheit, der Hermaphrodit aus Myrina der alexandrinischen Zeit angehörend, die Appliken mit Spuren von Vergoldung aus Tarent und die drei Puppen mit beweglichen Gliedern Nr. 891 ff. Überdies ist hier die große Anzahl von Repliken aus der Niobidengruppe (Reihe 1 und 2, Nr. 860 ff.) hervorzuheben.

Im letzten Schranke dieser Reihe sind verschiedene Typen italischer Lampen ausgestellt: Nr. 638 und 639 in Figurenform, 641 und 642 maskenförmig, 673 bis 696 mit figuraler Reliefpressung usw. Überdies sind hier die Calener Schale, Nr. 573, die Stempelform zu einer solchen Schale, Nr. 574, die sogenannten megarischen oder samischen Reliefschalen, Nr. 580 und 581, ein in[S. 127] der Masse krebsrot gefärbtes sogenanntes Terrasigillata-Gefäß, Nr. 587, und der römische Trinkbecher mit Reliefs und grüngelber Bleiglasur hervorzuheben.

In dem Schranke an der Eingangsseite rechts befindet sich die Sammlung Blum-Blankenegg. Hier sind in der untersten Reihe besonders bemerkenswert die zu den ältesten Vasengattungen gehörende ringförmige böotische Kanne Nr. 36, die Amphora späten korinthischen Stiles mit dem laufenden geflügelten Gorgonen Nr. 136, der altattische Teller mit Herakles, den kretischen Stier einfangend, Mitte Nr. 240, und der Aryballos mit dem Brustbilde der Artemis Nr. 363.

Frei aufgestellt finden wir ferner kolossale rottonige Vasen und große Schüsseln mit Reliefs sogenannte „Rotware“, in prächtigen Exemplaren. Die Dekoration ist mit Stempeln hergestellt, statt der Malerei sehen wir fries- oder streifenartig angeordnete Reliefverzierungen. Die Vorratsgefäße (Pithoi) zeigen überdies Riefelungen, die zugleich als Verstärkungsrippen dienen, und aufgelegte einfache Dekorationsmotive, wie Bogen, Zickzacklinien, Augen u. dgl.

Sodann haben, ebenfalls in freier Aufstellung, große spätantike Spitzamphoren, provinzielle Erzeugnisse aus Tharros in Sardinien, Platz gefunden. Überdies befinden sich an der Wand oberhalb der Schränke griechische und italische Architekturdetails dekorativer Art, zum Teil Spuren von Bemalung aufweisend.

Auf dem Eckschranke, frei aufgestellt, befindet sich eine Frauengestalt, eine Klagefrau mit erhobenen Händen und mit Spuren von Bemalung. Daneben eine große Grabvase, mit Gorgonenrelief[S. 128] und frei abstehenden Figuren, beide Stücke aus Apulien.

Unterhalb des Schrankes mit den römischen Lampen haben, obwohl sie das Gebiet der Keramik nicht berühren, Mumienmasken und Büsten der griechisch-römischen Periode aus Oberägypten Aufstellung gefunden.

Die Sammlung keramischer Objekte vom Ausgange der Antike bis in die Gegenwart umfaßt über 6000 Objekte, von welchen jedoch wegen Raummangels ein Teil in der ostasiatischen Sammlung im zweiten Stock und ein anderer ausgeschieden und im Depot untergebracht ist. Die Objekte sind nach historisch-topographischen Gesichtspunkten in der Weise systematisch aufgestellt, daß man an der Eingangsseite zunächst die orientalischen Erzeugnisse vor sich hat.

PERSISCHE UND TÜRKISCHE FLIESEN, WANDBEKLEIDUNGSPLATTEN AUS MOSCHEEN, GRABBAUTEN ETC.

Die echte Fayence, das heißt die keramischen Erzeugnisse mit undurchsichtiger Zinnglasur, reicht im Orient in sehr frühe Zeit zurück. Die ältesten auf uns gekommenen Stücke, in den Trümmern von Susa entdeckte, in Relief geformte Wandbekleidungsziegel mit bunten Zinnglasuren, stammen vom Palaste Darius I. (um 500 v. Chr.), sind aber ohne Zweifel späte Produkte einer aus älteren Kulturen Babylons oder Ninivehs stammenden Technik. Neben der Anwendung von Zinnglasuren ging unausgesetzt die Erzeugung von Fliesen mit durchsichtigen Bleiglasuren einher. Die einen wie die[S. 129] andern bestehen aus einer sandigen mit wenig Ton gemengten Masse, die mittels einer alkalischen Fritte zusammengebacken ist. Die ältesten Stücke unserer Sammlung reichen in das XIII. Jahrhundert zurück, das ist die Zeit, aus welcher die ältesten Fliesen mit Metallüster bekannt sind. Hierher gehören die mit braunrotem Kupferlüster verzierten Stern- und Kreuzfliesen aus der Imamzade Jahya (Heiligengrab des Johannes) zu Veramim bei Teheran. Zu dieser Gattung zählen auch die kleinen lüstrierten Sternfliesen mit Tierfiguren und blauen Rändern, deren Erzeugung vom XIII. bis zum XV. Jahrhundert reicht. Aus dem XIV. Jahrhundert stammen die in Relief geformten Fliesen mit blauen Koraninschriften auf ornamentiertem Lüstergrunde. Ebenfalls noch dem Mittelalter gehören die lasurblauen und türkisblauen Fliesen mit Vergoldung in Blattgold an. Die dunkelblauen Stücke zeigen überdies eine ungemein zarte Musterung mit kleinen weiß aufgemalten Ornamenten. In der Art der berühmten Fliesen von den Bauten des Osmanensultans Muhamed I. in Brussa (XV. Jahrhundert) sind die Stücke mit weiß ausgesparten Inschriften oder Ornamenten auf kobaltblauem Grunde, wobei in die weißen Ornamente bunte Pflanzenmotive hineingemalt sind. Derselben Periode gehören die geschnittenen Mosaikfliesen mit Inschriften und Ornamenten an. Ihre Entstehung ist auf das Einlassen von Koransprüchen u. dgl., die aus glasierten Fliesen geschnitten waren, in die Rohziegelwand hervorragender Gebäude zurückzuführen. Im weiteren Verlauf entwickelte sich aus dieser Bauverzierung eine der schwierigsten keramischen Techniken, die des vollständigen, ganze Flächen mit Ornamenten und Inschriften überziehenden Fliesenmosaiks aus[S. 130] eigens geschnittenen farbigen Platten verschiedenster Form. Zu höchster Prachtentfaltung hat sich diese Technik in der gegenwärtig dem Verfall entgegengehenden sogenannten Blauen Moschee in Täbris aufgeschwungen. Eine Gattung, die namentlich im XVI. und XVII. Jahrhundert zur Zeit der Sefevidendynastie eifrig gepflegt wurde, repräsentieren die Fliesen mit prächtigen Blumen und Rankenverzierungen in Dunkel- oder Türkisblau, Grün und Manganviolett auf weißem Grunde. In der neupersischen Kunst, das heißt seit dem XVI. Jahrhundert, nähern sich diese Pflanzenformen immer mehr der natürlichen Erscheinung der Pflanze. Ein besonders prächtiges Beispiel ist die in der Mitte der Wand angebrachte und über diese emporragende Kielbogenfüllung, aus 16 Fliesen bestehend, mit persischem Rankenwerk, von großem, rotem chinesischen Wolkenband durchzogen, ein Wandschmuck aus der Moschee Piali Pascha in Konstantinopel, 1565 bis 1570.

Eine Ergänzung findet diese Fliesenkeramik in den Gefäßen und Moscheekugeln, welche in den beiden Schränken an den gegenüberliegenden Wandpfeilern ausgestellt sind. Besonders bemerkenswert ein dunkelblaues vasenartiges Gießgefäß des XIII. Jahrhunderts aus Rhages, mit Überglasurdekor in Weiß, Rot und Gold, eine hellgrüne Flasche mit weißen Blumenstauden (Untersatz einer Wasserpfeife), XVII. Jahrhundert, eine ebensolche Moscheekugel und eine besonders große derartige Kugel des XVI. Jahrhunderts, im Rhodos-Stil verziert. Überdies zahlreiche sogenannte Rhodos-Teller und persische Nachahmungen des chinesischen Porzellans. Die sogenannten Rhodos-Fayencen sind keramische Arbeiten, die an den Ufern des[S. 131] Bosporus, in Kleinasien, Syrien und Ägypten angefertigt wurden. Die Masse ist ähnlich der der persischen Fayencen. Der vorwiegend weiß gelassene Grund ist auf eine Angusschicht zurückzuführen, über welcher die farblose Glasur liegt. Die zur Bemalung verwendeten Farben sind dieselben wie in Persien, bereichert durch ein feuriges Rot, eine Farbe, die aus verriebenem Bolus besteht, der dick aufliegend, eine etwas erhöhte Schichte bildet und unter dem Schutze der Glasur vor dem Abreiben bewahrt wird. Die Ornamentik setzt sich der Hauptsache nach aus Blumen (Tulpe, Nelke, Rose, Hyazinthe), aus den federartigen Blättern und blütenartigen Palmetten des persischen Rankenwerkes und sonstigen Elementen, wie Zypresse, Wolkenband etc., zusammen. Einige vorzügliche Schüsseln mit dem charakteristischen schwarzen Schnörkelwerk aus kleinen Spiralen, ein Blumentopf mit eckigem Henkel und Spuren von Vergoldung, Krüge und sonstige Gefäße veranschaulichen diese eigenartige und zu den mustergültigsten Schöpfungen der Keramik gehörende Gruppe in mannigfacher Art. Eine Zuweisung der einzelnen Objekte an bestimmte Fabrikationsorte ist der Forschung bisher nicht gelungen, nur eine Gruppe von Erzeugnissen, für welche der Krug mit Zinndeckel (Reihe 3) charakteristisch ist, wird als damaszenisch angesehen.

An der über Eck gestellten Wand, anschließend an die persischen Fliesen, sind spanische Azulejos ausgestellt. An Stelle der ursprünglichen kleinen Mosaikfliesen in geometrischen Formen hat man im XV. Jahrhundert auf orientalische Anregung hin der einfacheren Herstellung wegen größere quadratische Wandverkleidungsplatten angefertigt,[S. 132] auf welchen die Umrisse des Musters durch Formpressung in erhabenen Linien erscheinen, zwischen denen die farbigen Glasuren eingebettet waren, wodurch man eine mosaikartige Wirkung erreichte. Im XV. Jahrhundert trat an Stelle des alten geometrischen Musters und der geradlinigen Bandverschlingungen das Renaissanceornament. Hauptort dieser Industrie war Sevilla.

SPANISCH-MAURISCHE FAYENCEN.

Im ersten Schranke des auf die antiken Vasen folgenden Kompartiments sind die spanisch-maurischen Fayencen mit Lüsterdekor ausgestellt, Arbeiten, die den Übergang von den orientalischen Fayencen zu den italienischen Majoliken bilden. Die ältesten Nachrichten über diese Fabrikation reichen bis ins XII. Jahrhundert zurück. Mittelalterliche Stücke aus sarazenischer Zeit sind aber äußerst selten. Von der berühmten Alhambra-Vase aus dem XIV. Jahrhundert in Goldlüster und Blau gibt eine Kopie von Th. Deck in der Ecke links neben dem Eingange ungefähr eine Vorstellung. Die Mehrzahl der auf uns gekommenen spanisch-maurischen Fayencen besteht aus Schüsseln, Becken und Töpfen. Sie sind innen und außen mit gelblich getönter Zinnglasur überzogen und auf der Rückseite wie auf der Schauseite mit einer Verzierung in Goldlüster versehen. Manchmal tritt stellenweise Bemalung in Kobaltblau hinzu, auch Buckelungen nach Art getriebener Metallgefäße sind beliebt. Im XV. und XVI. Jahrhundert werden die Flächen durch Verteilung der Muster in Felder und Bordüren noch scharf gegliedert, Blattwerk erscheint hierbei gotisch stilisiert, die maurischen[S. 133] Schriftzeichen werden verständnislos ornamental verwendet, wovon die große Schüssel mit Kupferlüster, Reihe 3 rechts, ein Beispiel gibt. In späterer Zeit erscheinen an Stelle des prächtigen Goldlüsters dunklere Töne und vom XVIII. Jahrhundert an beginnt der Lüster eine grelle kupferrote Färbung anzunehmen. In der untersten Reihe sind Schüsseln, ebenfalls mit Metallreflex aus Diruta unweit Perugia ausgestellt.

ITALIENISCHE FAYENCEN (MAJOLIKEN).

Die italienischen Fayencen sind Töpfererzeugnisse mit deckender Zinnglasur, welche noch vor dem Brande mit Scharffeuerfarben bemalt wurden. Im Brande verschmolzen die Farben mit der Glasur und erhielten dadurch Glanz und Leuchtkraft. Um die Mitte des XV. Jahrhunderts erreichte die italienische Majolikamalerei eine künstlerische Höhe, von der sie gegen Ende des XVI. Jahrhunderts durch das erwachende Interesse für chinesisches Porzellan allmählich herabsank. Nur in Castelli, wo man sich zu Beginn des XVIII. Jahrhunderts dem Porzellangeschmacke anzunähern suchte, trat eine kurze Nachblüte ein.

In der ersten Blüteperiode (1490-1530) dominiert Faenza (daher Fayencen), in der zweiten (1530-1560) Urbino. Wegen der Ähnlichkeit der älteren Fayencen mit Produkten, die von der im Mittelalter Majolika benannten balearischen Insel Majorca kamen, nannten die Italiener diese Stücke Majolika. Unsere Zeit übertrug diese Bezeichnung auf die italienischen Fayencen der Renaissance überhaupt.

Zwischen dem vorher beschriebenen und dem folgenden Schranke befindet sich eine von milchweißer[S. 134] Zinnglasur in dünner Schicht überzogene Reliefplastik, Madonna mit dem Kinde, eine Arbeit aus den Werkstätten der Della Robia. Luca della Robia, der berühmte Florentiner Bildhauer (1399-1482), gilt nach Vasari fälschlich für den Erfinder der Zinnglasur in Italien. Der übliche blaue Hintergrund und die bunten Fruchtkränze der Umrahmung sind bei diesem Werke weggeblieben, dagegen finden sich Spuren von Goldornamenten am Saume des Kleides der Madonna. Modellierung der Arme und Hände, Ausdruck und Gesamthaltung verweisen das Werk in die Zeit um 1450.

Im folgenden Schranke sind Erzeugnisse verschiedener italienischer Fabriken des XVI. Jahrhunderts ausgestellt. In der obersten Reihe besonders bemerkenswert die Schüsseln aus Caffagiolo, Gubbio (mit Rubinlüster), Pavia (mit Sgraffitodekoration), Castel Durante und Urbino, dem Hauptorte der italienischen Fayenceindustrie, von dem zwischen 1530 und 1620 jene ungeheure Menge von Majoliken ausgegangen ist, die den Weltruhm dieser Industrie begründet hat. Bildmäßige Darstellungen pflegen hier ohne Rücksicht auf die Form die ganze Fläche des Gefäßes zu bedecken. Szenen aus dem Alten Testamente, geschichtliche oder der Sage angehörende Vorgänge nach Livius oder Virgil und die Liebschaften der olympischen Götter nach Ovids Metamorphosen bilden die Hauptgegenstände der Darstellung. In der nächsten Reihe finden wir nebst Stücken aus Ravenna und Castelli in der Mitte eine hervorragend schöne Schüssel aus Siena mit dem Violine spielenden Apollo in der Mitte. Die unterste Reihe enthält durchwegs Arbeiten aus Castelli. Ebenso der folgende Schrank. In dieser zum[S. 135] Königreich Neapel gehörenden Stadt der Abruzzen und in zahlreichen Ortschaften ihrer Umgebung erfuhr die Fayenceindustrie im XVII. Jahrhundert eine späte Nachblüte. Ein Streben, dem Porzellan nahezukommen, ist dabei unverkennbar und kommt in der feinen Masse der gleichmäßigen Glasur sowie in den kalten, zarteren, nur in gebrochenen Tönen zur Verwendung kommenden Farben zum Ausdruck.

Zur duftigen Malweise gesellt sich bei feineren Stücken reichlich verwendete Aufhöhung mit Gold. Die Motive sind der bolognesischen Schule entlehnt, Tierstück, Landschaft, bäuerliches Genre, Bilder religiösen Inhalts, später auch Blumen. Die Ränder der Teller erhalten einen von der Fläche getrennten, oft äußerst reizvoll komponierten Dekor mit Putten und Blumengewinden. An Stelle der Schüsseln treten häufig viereckige oder kreisrunde ebene Platten, manche mit Malersignaturen von Mitgliedern der mit der neapolitanischen Fayencemalerei durch anderthalb Jahrhunderte eng verknüpften Familie Grue. Der hier vorkommende Dr. F. A. Grue lebte von 1686 bis 1746.

Zwischen beiden Schränken: Bacchusknabe der Fabrik Talavera in Spanien (XVIII. Jahrhundert). Im großen Mittelschranke sind besonders die prächtigen Urbino-Fayencen hervorzuheben, an der Stirnseite eine große Schüssel mit dem Sturze der Giganten und darüber eine kleinere mit Venus in der Schmiede des Vulkan, die in Gubbio, wo sich die durch ihren Lüsterdekor berühmte Werkstätte des Maestro Gurgio Andreoli befand, mit Rubinlüster versehen wurde. Zu beiden Seiten und auf der obersten Stufe schöne sogenannte Pilgerflaschen. Die beiden Deckelvasen zu Seiten der[S. 136] Gigantenschüssel sind charakteristische Stücke aus Castel Durante.

An beiden Langseiten sind hauptsächlich Venedig, ferner Urbino und Castel Durante in Schüsseln, verschiedenen Apothekergefäßen und Vasen vertreten, unter welchen zwei muschelförmige Becken mit Schlangengewinden besonders hervorragen. An der Schmalseite am Fenster eine vorzügliche Faentiner Schüssel mit der Anbetung der drei Könige.

Die meisten dieser Majoliken sind Eigentum des Stiftes Neukloster in Wiener-Neustadt.

Im folgenden Schranke an der Fensterseite sind in der obersten Reihe die durch ihr geringes Gewicht auffallenden venezianischen Relieffayencen des XVIII. Jahrhunderts aus der Fabrik Bertolini aufgestellt, dann folgen venezianische Fayencen mit bläulich getönten Glasuren (a berettino), in der dritten Reihe in der Mitte zwei blaue Schüsseln mit Golddekor, eine davon mit dem Wappen des Kardinals Ghislieri (Pius V.), links eine graublau bemalte Schüssel aus Castel Durante, im Fond Herkules im Kampfe mit der lernäischen Schlange, auf dem Rande von Hunden gehetzte Stiere, in der untersten Reihe oberitalienische Fayencen des XVIII. Jahrhunderts, hauptsächlich aus Nove.

Im links folgenden Schranke finden wir in den oberen Reihen Majoliken minderer Qualität aus bereits genannten Fabriken, in der unteren Reihe dagegen prächtige Sieneser Fußbodenfliesen aus dem Palazzo del Magnifico (Pandulfo Petrucci), um 1513, und solche aus dem Hause der heil. Katharina, um 1520. An der Pfeilerwand zwei Schüsseln aus Candiana bei Padua, Nachahmungen[S. 137] der sogenannten Rhodos-Schüsseln, mit Hinweglassung des charakteristischen Rot.

Am Pfeiler gegenüber dem großen Schweizer Ofen sind noch mehrere toskanische Majoliken des XVII. Jahrhunderts aus Montelupo ausgestellt.

FRANZÖSISCHE FAYENCEN.

An der Spitze der Fayenceproduktion der französischen Renaissance stehen die eigenartigen Erzeugnisse des als Autodidakt und ruheloser Erfinder berühmten Bernard Palissy (1506 bis 1590). Seine buntfarbig glasierten und mit plastischen Verzierungen geschmückten Gefäße bilden eine Gruppe von Arbeiten, die eine Zeitlang von andern Werkstätten nachgeahmt und weiter ausgebildet wurde, so daß eine zweifellose Zuweisung derartiger Arbeiten an den Meister vielfach unmöglich ist. Es sind meist große Zierschüsseln mit Schlangen, Eidechsen, Muscheln, allerlei Kräutern und sonstigen Formen, die ihm die Natur seines Aufenthaltsortes in der Saintonge, dem Mündungsgebiete der Charente, darbot. Diese Objekte befestigte Palissy mittels Fäden durch Löcher auf Zinnschüsseln, nahm danach eine Gipshohlform und benutzte diese als Matrizze für seine Tongefäße. In späterer Zeit dienten ihm auch die Metallarbeiten seines Zeitgenossen François Briot als Modelle. Vier Beispiele im ersten Schrank, Reihe 2, der folgenden Abteilung repräsentieren beide Gattungen.

Die Fayenceindustrie von Nevers wurde durch italienische Arbeiter begründet, die Louis von Gonzaga, der Gemahl der Herzogin von Nevers, gegen Ende des XVI. Jahrhunderts dahin berufen[S. 138] hatte. Sie sind in unserer Sammlung durch zwei Objekte, eine Vase und einen Teller in jener schönen blauen Glasur mit Malerei in Weiß und in Gelb und Weiß, vertreten, die für die Arbeiten von Nevers um die Mitte des XVII. Jahrhunderts charakteristisch war, Reihe 2 links. Im XVIII. Jahrhundert wurde in Nevers roh bemalte weiße Fayence erzeugt, wofür die in Reihe 1 an zweiter Stelle befindliche Flasche mit St. Nikolaus ein für die in Nevers beliebte volkstümliche „faience parlante“ mit figürlichen Darstellungen und Inschriften bezeichnendes Stück ist. Die Fayenceindustrie von Rouen in ihren zwei berühmten Verzierungsweisen, dem „style rayonnant“, und dem „décor à la corne“ ist durch eine Reihe guter Beispiele vertreten. Der „style rayonnant“, vom Ende des XVII. Jahrhunderts bis etwa 1740 herrschend und so benannt wegen seines strahlenförmig von der Mitte ausgehenden Dekors mit Ornamentreserven, wird durch drei große Schüsseln und eine Kanne repräsentiert, Reihe 1, weitere Varianten in der Reihe 3 und 4. Den „décor à la corne“ mit dem Füllhorn, den bunten Schmetterlingen und Blumen finden wir in einer Schüssel mit dazugehörender Terrine und in zwei achteckigen kleinen Schalen vertreten (Reihe 3). Im Stile der beiden Bérain, leicht, lose und luftig, nicht strahlig angeordnet, sondern symmetrisch aufsteigend ist das Ornamentierungssystem, das in der ersten Hälfte des XVIII. Jahrhunderts für Moustiers charakteristisch geworden ist, und das die keramische Produktion dieses kleinen Städtchens der Provence zu ähnlich hervorragendem Rang erhoben hat wie die von Nevers und Rouen. Die Muster erscheinen in zarter Blaumalerei auf weißem Grunde,[S. 139] wie es die vier Beispiele der untersten Reihe zeigen. Gegen die Mitte des Jahrhunderts waren neben der berühmten, von Paul Clerissy begründeten Fabrik noch mehrere andere entstanden, die neben Blau auch andere Farben in zarten duftigen Tönen verwendeten, wofür das fünfte Stück dieser Gruppe, der Teller mit Landschaft, Reihe 3, links, ein Beispiel bietet. Die nächste größere Gruppe bilden die Straßburger Fayencen der beiden Hannong, des Paul, 1730 bis 1755, und seines Sohnes Josef. Reinheit der Zinnglasur und ein prachtvolles Karminrot zeichnen diese Fayencen aus, zu deren Charakteristik überdies die spärliche und nur in Muffelfarben vorkommende Verwendung von Blau und die schwungvolle Zeichnung der in einem konventionellen Naturalismus durchgeführten Blumen gehören. Beispiele sind im folgenden Schranke am Fenster in kleinen Gruppen vereinigt. Außerdem befinden sich hier noch einige Fayencen aus Marseille, wo gegen Ende des XVII. Jahrhunderts eine Fayenceindustrie emporblühte, aber kein Genre von stark ausgesprochener Eigenart entstand. Die Formen ahmen vielfach die Muster der Silberschmiede mit ihren aus Fischen, Früchten und Gemüsen gebildeten Deckelknäufen nach, der malerische Dekor folgte dem Beispiele Straßburgs. In dem einen Punkte weicht er aber davon ab, daß an Stelle konventioneller Zeichnung häufig direktes Naturstudium tritt, wie dies namentlich an den in Reihe 1 und 2 ausgestellten Tellern und Schüsseln ersichtlich ist. Wie bei Straßburg das Karminrot, bildet hier das „vert de Savy“, ein besonders leuchtendes Grün, eine Spezialität. Überdies sind die Fabriken von Luxemburg und Creil in der Sammlung durch Einzelstücke vertreten.[S. 140] Ein zierlicher Korb aus dem Ende des vorigen Jahrhunderts und einige Teller bilden zwei frühe Beispiele für Kupferdruck auf Fayence.

DEUTSCHES STEINZEUG.

An Härte dem Porzellan nahekommend, aber weder dessen feine durchscheinende Masse noch dessen Widerstandsfähigkeit gegen raschen Temperaturwechsel aufweisend, bildete das Steinzeug in Deutschland bereits im Mittelalter ein beliebtes Material für Trink- und Schenkkrüge. Die Gegend von Koblenz bis Köln, wo sich die geeignetsten Tonlager für diese Ware befinden, war mit ihren Hauptorten Höhr, Grenzhausen, Siegburg, Köln, Frechen und Raeren im XVI. und XVII. Jahrhundert der Mittelpunkt ihrer Fabrikation. Die Masse brannte sich weiß, grau oder braun und erhielt eine einfache Salzglasur, das heißt in einem bestimmten Stadium des Brandes wurde Kochsalz in den Ofen geworfen, das Chlor entwich als Chlorwasserstoff, und das Natrium verband sich mit der Kieselsäure des Tones und bildete eine dünne Glasur. Aufgelegte Reliefverzierung, den Vorbildern deutscher und französischer Kleinmeister folgend, und mit eingepreßten Zierformen abwechselnd, bildeten das Charakteristische dieser Arbeiten. Sie sind in den folgenden beiden Schränken ausgestellt. In der obersten Reihe des nächst dem Pfeiler befindlichen Schrankes finden wir Westerwälder und Raerener Krüge darunter einen Schnabelkrug nach einem Modell von Hans Hilgers, einen Musketierkrug, einen besonders großen Steinkrug, in der Mitte, und einen Raerener Krug mit Bauerntanz. Die darunter befindliche Reihe besteht aus weißen[S. 141] Siegburger Krügen vom Anfang bis über die Mitte des XVI. Jahrhunderts, beginnend mit den frühen Trichterbechern. In der Mitte zwei prächtige Schnellen mit figuralem Reliefschmuck, am Schluß der Reihe ein Birnkrug des Meisters Anno Knütgen mit dem kursächsischen Wappen, datiert 1574. In der folgenden Reihe spätere niederrheinische Krüge, in der Mitte ein Westerwälder Sternkrug. Zu unterst Steinzeuggefäße des XVII. und XVIII. Jahrhunderts, darunter zwei Perlenkrüge aus Sachsen-Altenburg.

Im folgenden Schranke in der obersten Reihe zwei sogenannte Trauerkrüge mit Kerbschnitt aus Freiberg in Sachsen. Anschließend oben und an der einen Langseite die dunkelbraunen Krüge aus Kreußen bei Bayreuth. Darunter zwei Apostelkrüge, ein Jagdkrug und einer mit den vier Kirchenvätern. Charakteristisch ist ihre niedere Form und der mit Emailfarben und Gold bemalte Reliefdekor. An der andern Langseite besonders hübsche braune Steinzeugkrüge aus Raeren und Köln: Sündenfall-Schnelle, Krug mit Bauerntanz, Schnelle mit den drei göttlichen Tugenden aus der Eigelstein-Werkstatt und andere. In der folgenden Reihe ein Meckenheimer Maßkrug und andere größtenteils niederrheinische Trinkkrüge des XVII. und XVIII. Jahrhunderts, die in der untersten Reihe, wo auch das Steinzeug aus Marburg in Hessen und aus Bunzlau in Preußisch-Schlesien vertreten ist, ihre Fortsetzung finden.

ÖSTERREICHISCHE UND DEUTSCHE HAFNERWARE ETC.

Im folgenden Schrank an der Pfeilerseite ist hauptsächlich die österreichische und deutsche[S. 142] Hafnerware mit Bleiglasur ausgestellt. In der obersten Reihe Ofenmodelle des XVI. bis XVIII. Jahrhunderts und eine Schüssel mit eingeritztem, buntem Flachmuster aus Stadt Steyr. In der folgenden Reihe namentlich bunte Keramiken aus Gmunden: Wöchnerinnenschalen, Weihbrunnkessel, die Henkelschale des Peter Graf, 1627, mit doppelter, durchbrochener Wandung, ein Vogelfutterhäuschen von Ende des XVI. Jahrhunderts ferner Nürnberger Krüge mit bunten Relieffiguren, der eine mit Sandanwurf und Reliefauflagen, polnische Adelige, der andere mit Beerennuppen und der Verkündigung, eine alte deutsche Palissy-Nachahmung mit der Taufe Christi u. a. In der dritten und vierten Reihe einfachere Gmundener Erzeugnisse und Salzburger Keramiken des XVII. bis XVIII. Jahrhunderts. In der Mitte der dritten Reihe Krug mit geflammter Manganglasur und Reliefauflagen aus Brieg in Preußisch-Schlesien. In der letzten Reihe schöne Winterthurer Schüssel von 1691.

Der entsprechende Schrank an der Fensterseite enthält Fayencen und Steingutarbeiten. In der obersten Reihe schwedische Fayencen des XVIII. Jahrhunderts, in den zwei folgenden Trinkkrüge u. dgl. aus Potsdam, Kelsterbach, Nürnberg, Ansbach, Magdeburg, Rheinsberg, Göggingen und Künersberg. An österreichischen Fabriken sind Holitsch, Prag, Teinitz und Frain vertreten.

ÖFEN UND OFENKACHELN.

Neben diesem Schrank befindet sich ein großer achtseitiger bunt bemalter Ofen aus dem Zimmer der Weggenzunft in Zürich, ein Werk des Meisters[S. 145] Ottmar Vogler in Elgg vom Jahre 1725, dekoriert von David Sulzer aus Winterthur. Weitere Öfen sind an den Außenseiten der Pfeiler aufgestellt; beim Eingange ein Schweizer Ofen aus dem Ende des XVII. Jahrhunderts mit bunten, reliefierten Kacheln, die vier Tageszeiten in biblischen Allegorien darstellend, die drei folgenden deutsche Erzeugnisse des XVIII. Jahrhunderts, der letzte in der Ecke, mit vergoldeten Ornamenten, eine Grazer Arbeit der Rokokozeit.

Ofen der Weggenzunft in Zürich, bemalt von David Sulzer aus Winterthur, 1725.

An der Wand gegenüber den Öfen bemerken wir zunächst frei ausgestellt ein großes Weingefäß, eine in Sgraffitotechnik ausgeführte Arbeit des XVII. Jahrhunderts aus Montelupo. Im Anschlusse ist die große Sammlung von Ofenkacheln ausgestellt. Die Reihe beginnt beim Eingang mit einigen zum Teil noch mittelalterlichen Topfkacheln. Es folgen sodann fünf Kacheln des gotischen Ofens aus der Sakristei von St. Stephan in Wien. Nach dem Prinzip der ältesten Ofenkacheln, die napfförmig vertieft waren, um die Ausstrahlungsfläche zu vergrößern, bilden diese Kacheln tiefe Nischen, aus denen die figuralen Darstellungen auf weißem Tongrunde, mit bunten Bleiglasuren bemalt, im Relief hervortreten. Die Eckkachel in der Mitte stellt beiderseitig den Kampf Simsons mit dem Löwen dar und zeigt über Eck gestellt eine frei modellierte weibliche Figur im Kostüm des XVI. Jahrhunderts, ein Wappenschild mit dem Doppeladler, der den österreichischen Bindenschild als Brustschild trägt, haltend. Unterhalb dieser Kacheln befinden sich mit Graphit geschwärzte Reliefkacheln mit Einzelfiguren aus der Folge der drei guten Heiden, Juden und Christen nach Virgil Solis. Eine schöne Salzburger Kachel aus dem[S. 146] Anfange des XVI. Jahrhunderts ist ferner die bunte Kachel links unten in der Ecke mit der Figur eines der heiligen drei Könige. In der folgenden Gruppe sind hauptsächlich Nürnberger Kacheln des XVI. Jahrhunderts zusammengestellt, darunter Kacheln mit perspektivisch dargestellten Renaissancehallen, grün mit stellenweiser Vergoldung und zwischen ihnen die Kachel mit der Venus, eine der besten Arbeiten der deutschen Renaissance auf diesem Gebiete, ferner ornamental verzierte Kacheln von besonderer Schönheit. In der folgenden Abteilung bildet die bunte Bekrönungskachel in der obersten Reihe mit dem Stadtwappen von Vöcklabruck, zwei Schriftbändern und an den Seiten Schutzengel und Bergknappe, ein besonders hervorragendes Stück. Anschließend auf einem Sockel großer Salzburger Weinkrug mit aufgelegten Medaillons, Löwenköpfen und sonstigen Verzierungen, um 1600. Ein zweites, ähnliches Stück auf dem folgenden Sockel, darüber ein Schneideraushängeschild, doppelseitig mit Kostümfiguren und der Datierung 1605. Nach dem ersten der Salzburger Weinkrüge prächtige bunte Ofenkacheln mit allegorischen Figuren aus der Werkstätte des Salzburger Hafners H R um 1570, eine große figurenreiche Kachel mit der Kreuzigung und Teile eines Ofens mit Band- und Rankenmuster. Es folgt sodann eine Abteilung mit modernen Ausformungen aus alten, im Besitze des Museums befindlichen Originalmodeln des XVI. und XVII. Jahrhunderts. Daran schließen sich bunte Ofenkacheln mit den vier Jahreszeiten und schwarz glasierte Reliefkacheln, süddeutsche Arbeiten des XVII. Jahrhunderts, darunter eine ehemals kalt bemalte Kachel mit dem Wappen des Bischofs Julius von Würzburg. An die folgenden[S. 147] zwei Kachelreihen, siebenbürgische Arbeiten des XVIII. Jahrhunderts, schließt sich eine Gruppe bunt oder einfarbig bemalter Kacheln, die hauptsächlich Schweizer- und deutsche Arbeiten des XVII. und XVIII. Jahrhunderts sind. An der Ecke befindet sich ein Riesenkrug oberösterreichischer Herkunft mit der Inschrift Christoph Gschir 1741.

Über Eck gestellt finden wir eine kleine Sammlung von Delfter und hessischen Wandfliesen und zu unterst mittelalterliche Fußbodenfliesen mit Gravierungen aus der Kirche zu Heiligenkreuz.

Von hier in den Hauptraum zurückkehrend, haben wir in dem am Pfeiler stehenden Schrank zahlreiche Holitscher Fayencen. Die im XVIII. Jahrhundert gegründete Fabrik ging nach 1740 in kaiserlichen Besitz über, erlangte bald einen bedeutenden Ruf und wurde erst um die Mitte des XIX. Jahrhunderts aufgelassen. Es wurden daselbst zuerst Erzeugnisse in der Art von Castelli, dann solche nach chinesischen Vorbildern, darunter viele Figuren angefertigt. Einfacheres Geschirr war mit Blaumalerei sowie mit manganbrauner und grüner Malerei ornamentalen Charakters versehen. Weitere Gattungen waren die meist mit Obst, seltener mit Blumen bunt bemalten Service, die Stücke mit Rot-, Gold- und Buntmalerei, ähnlich wie die beiden hier ausgestellten Krüge, mit Susanna im Bade und der satirischen Darstellung eines handeltreibenden Bettelmönches. Häufig waren auch Gefäße mit plastischen bunten Blumen, solche in Form von Tieren, wie Papageien, Hühnern, Gänsen usw., reichgebildete Tafelaufsätze und von 1786 an, als die Fabrik auch Steingut erzeugte, die Imitationen von Wiener Porzellan und ein mittels Druckverfahrens erzeugter Dekor. Fast alle diese[S. 148] Gattungen sind in den oberen drei Reihen des Schrankes vertreten.

In der untersten Reihe Salzburger und Gmundener Fayencen des XVIII. und beginnenden XIX. Jahrhunderts. Im folgenden Schrank an der Fensterseite ist die deutsche Fayence in Blaumalerei, wie sie namentlich in Braunschweig, Hanau, Nürnberg, Ansbach, Bayreuth, Künersberg, Straßburg, Hamburg usw. nach holländischer Art schon im XVII., besonders aber im XVIII. Jahrhundert erzeugt wurde, ausgestellt. Sie hatte die Aufgabe, der holländischen über Frankfurt auch nach dem deutschen Süden eindringenden Ware durch möglichst gleichwertige heimische Erzeugnisse entgegenzuwirken.

Die Ähnlichkeit mit Delft erreichte namentlich Hanau in einem hohen Grade. In unserer Sammlung ist besonders Bayreuth, 1720 gegründet und von 1735 bis 1763 in vollster Blüte, gut vertreten. Die Bayreuther Arbeiten zeichnen sich gewöhnlich durch lichtes, durch weiße Pünktchen getrübtes Blau aus. Besonders hervorzuhebende Stücke sind: in der obersten Reihe zwei Vasen mit Rokokoornamenten aus Braunschweig, in der zweiten Reihe die Nürnberger Deckelkrüge, der erste mit Stadtansichten, der folgende mit der Darstellung einer Wochenstube und ein dritter mit der einer Straßenpflasterung sowie die Ansbacher Sternschüssel. In der folgenden Reihe die achteckige Künersberger Servierplatte, die drei Straßburger Fayencen von K. Hannong im „Style rayonnant“ von Rouen und die figurenreiche sechseckige fränkische Schraubenflasche mit Hirschjagd und Mahlzeit im Freien; in der untersten Reihe die ovale Platte auf vier Füßen von Knöller in Bayreuth. Außen[S. 149] am Schrank ist eine Schweizer Fayenceplatte mit reicher Renaissancearchitektur, den Hof des Königspalastes zu Jerusalem mit David und Bathseba darstellend und mit der frühen Datierung „1533“ angebracht.

In derselben Abteilung befinden sich zwei Schränke mit Delfter Fayencen des XVII. und XVIII. Jahrhunderts. Die Fayenceindustrie der Stadt Delft beginnt in den letzten Dezennien des XVI. Jahrhunderts und gewinnt um die Mitte des XVII. Jahrhunderts, unterstützt durch eine ununterbrochene Einfuhr als Muster dienender ostasiatischer Porzellane, sowie durch einen tüchtig organisierten Handel einen Weltmarkt, dessen Bedeutung erst durch die allmähliche Entwicklung des europäischen Porzellans im Laufe des XVIII. Jahrhunderts nach und nach schwindet. Von den verschiedenen Dekorationstypen, die während dieser Periode üblich waren, sind eine ziemliche Anzahl in der Sammlung vertreten. Wir finden chinesische Genreszenen, Stücke mit Inschriften, Übertragungen des „style rayonnant“ von Rouen, ferner Schüsseln mit Wappen, Tieren, Landschaften, Seebildern, Emblemen, Heiligen- und biblischen Figuren und ein Beispiel von Porträtmalerei. Was jedoch vorherrscht, das sind die ostasiatischen Motive. Die Objekte in Blaumalerei zeichnen sich durch besonderen Glanz der Zinnglasur aus, den sie durch Bestäuben mit fein zerriebenem Bleiglaspulver erlangt haben, der im Brande schmelzend die bemalte Oberfläche überzieht. Die vielfarbige Malerei entwickelte sich erst gegen Ende des XVII. Jahrhunderts und beruht hauptsächlich auf dem Dreiklang von Rot, Blau Grün. (Das Rot aus mehrfach gebranntem feinsten[S. 150] Bolus.) Eine andere Gattung, bei der gewöhnlich auch Gold zur Verwendung kam, imitiert die Farbenwirkung der japanischen Hizen-Ware und umfaßt Prachtstücke ersten Ranges, die an Schönheit die japanischen Vorbilder weit übertreffen. Dieser blau-rot-goldene Dekor (das Rot ein auf die fertiggebrannte Glasur aufgemaltes Eisenrot) ist durch vier Teller, wovon einer das Brustbild Karls VI. zeigt, und durch einen Krug mit vergoldetem Deckel charakterisiert. Die in der Sammlung vertretenen Meister sind in der Reihe, wie sie in den beiden Schränken aufeinander folgen: Adrian Pynaker, Lambert van Eenhorn, Huibrecht Brouwer, Cornelis van der Hoeve, Cornelis de Keizer, Jan Pieters, Geertruy Verstelle, Joost Brouwer und im Schranke nächst dem Fenster C. J. Messchert und A. C. van Noorden, Aebreyt de Keiser, J. G. van der Hoeven, Augestijn Reygens, J. G. L. Kruyk und J. Verburg.

Ludwigsburger Porzellangruppe „Toilette der Venus“, modelliert von Josef Weinmüller 1765 bis 1767

OSTASIATISCHE KERAMIK.

Die Chinesen sind zur Zeit der Tang-Dynastie (618-907) die ersten Erfinder des Porzellans gewesen. Bis zum XIV. Jahrhundert waren Bronzeformen für das gewöhnlich noch einfarbig glasierte Porzellan vorbildlich. Erst unter der Ming-Dynastie (1368-1643) beginnt nicht nur eine selbständige Entwicklung der Formen, sondern auch eine eigentliche Porzellanmalerei. Drei Arten werden dabei unterschieden: Die Unterglasurmalerei in Kobaltblau, die feuerbeständigste aller keramischen Farben, und daneben ein Kupferrot, das bald allein, bald in Kombination mit Kobaltblau erscheint. Ferner eine Schmelzmalerei auf Biskuit, endlich[S. 153] die Überglasurmalerei in bunten Schmelzfarben. Zu neuer Blüte gelangte das chinesische Porzellan wieder unter Kaiser Kang-shi (1662-1723), in welcher Zeit auch der Ausfuhrhandel nach Europa einen hohen Aufschwung nimmt. Porzellane mit gesprenkeltem blauen Grund (bleu fouetté) und solche mit ausgesparten weißen Mumeblüten auf blauem Grunde wurden in vorzüglicher Qualität hergestellt. Unter Kien-lung endlich (1736-1796) bevorzugte man namentlich die Überglasurmalerei in opaken Farben, die Porzellane der „famille rose“, die bereits unter dem vorangegangenen Kaiser Yung-chêng (1723-1735) erzeugt worden waren, und die, in denen ein Smaragdgrün vorherrscht (famille verte). Ferner kam in dieser Zeit das sogenannte Eierschalenporzellan auf und das durchbrochene und mit Glasur wieder geschlossene, das die Franzosen „grain de riz“ nennen.

Die Aufstellung der ostasiatischen Porzellane konnte nicht in chronologischer Reihenfolge durchgeführt werden, dagegen wurden die verschiedenen Gattungen zu größeren Gruppen vereinigt. Links vom Eingang sind die chinesischen, rechts die japanischen Porzellane untergebracht. Im ersten Schranke finden wir chinesische Exportware, zumeist Schüsseln und Teller, in der oberen Reihe vier Schüsseln der famille verte, eine davon mit dem Wappen von Friesland, dazwischen Kannen mit Blaumalerei, darunter eine mit vergoldeter Bronzemontierung aus dem Anfange des XVII. Jahrhunderts, eine sogenannte Wasserblase der grünen Familie und drei Waschbecken in Muschelform mit den dazu gehörigen Kannen. Die übrigen Schüsseln und Teller sind nach europäischen Vorlagen, meist Kupferstichen, in Schwarzlot, zum[S. 154] Teil mit etwas Gold dekoriert, manche von ihnen auch in bunten Emailfarben. Wappen, Monogramme, Genreszenen, Landschaften und biblische Darstellungen bilden die Motive, die durch ihre Umdeutung ins Chinesische einen ganz eigenartigen Charakter gewonnen haben. Diese Arbeiten entstammen durchwegs der Regierungszeit des Kaisers Kang-shi (1662-1723) und wurden hauptsächlich in Kanton ausgeführt. Im zunächst stehenden großen Schrank erblicken wir in zwei Reihen Seladonporzellane älterer und neuerer Provenienz, glatt, mit Reliefs oder mit eingravierten Ornamenten versehen. Diese mit Eisenoxyd trüb grünlich gefärbten Porzellane wurden bereits im Mittelalter erzeugt, fanden auch außerhalb Chinas schon in früher Zeit große Verbreitung und sind wahrscheinlich aus dem Bestreben hervorgegangen, den wegen seiner Härte hochgeschätzten Nephrit oder Jadeit nachzuahmen. Den Namen Seladonporzellan erhielt es nach dem grün gekleideten Helden eines Romanes des XVII. Jahrhunderts, „L’Astrée“ von Honoré d’Urfé. Der Hauptfabrikationsort ist Lungchüam (Provinz Chê-hiang).

In der obersten Reihe und an der linken Schmalseite des Schrankes befinden sich prächtige lasurblaue Porzellane, mit zum Teil bereits verwischtem leichtem Golddekor, Vasen und große Schalen aus der Periode Kien-lung, die großen Vasen in prächtiger, französischer Bronzefassung aus der Zeit um 1770. Eine an der Ecke stehende, im Hauptkörper zylindrische Vase mit langer Goldinschrift, ein schönes Beispiel des sogenannten bleu fouetté. An der entgegengesetzten Ecke zwei Vasen mit braunem Schuppenmuster im Fond und eine Wasserpfeife der Ming-Dynastie. Die[S. 155] folgende Breitseite des Schrankes nimmt in den unteren zwei Reihen die für Persien erzeugte chinesische Exportware ein, die durch einige für Siam angefertigte Stücke ergänzt wird. Bei diesen Porzellanen kommt, im Gegensatze zu den für China selbst erzeugten, das architektonische Dekorationsprinzip, das auf regelmäßiger Einteilung in verschiedene Dekorationsfelder beruht, mehr zur Geltung.

Im gegenüberstehenden Schranke sind verschiedene Dekorationsweisen in bunten Emailfarben vom Beginn des XVIII. Jahrhunderts bis in die Gegenwart zur Anschauung gebracht, besonders beachtenswert die fünf großen in Bronze gefaßten Vasen mit bemalten Reliefblumen und die Porzellane der rosa und der grünen Familie.

Im nächststehenden Schranke finden wir das chinesische und japanische Weißporzellan vereinigt, das elfenbeinfarben abgetönte sogenannte „blanc de Chine“ das mit Relief geschmückt, mit eingravierten Linien oder eingepreßten Ornamenten verzierte und das mit kalten Farben (Gold, Rot, Grün) bemalte Weißporzellan. Ferner sind hier mit Kupferoxydglasuren gefärbte meist chinesische Porzellane, rotes, sogenanntes „sang de bœuf“ und mannigfach geflecktes oder rot, violett, blau und grün geflammtes Porzellan („flambés“) zu einer Gruppe vereinigt. Darunter ein seltenes Beispiel des sehr geschätzten „peach bloom“, eine gesprenkelte Glasur, der Haut des Pfirsichs gleichend (das kugelförmige Töpfchen in der Mitte), und eine krakelierte hellblaue Vase mit untersatzartigem durchbrochenem Fußansatz aus der Zeit der Ming-Dynastie, 1368 bis 1643 (Mittelreihe links).

[S. 156]

Der gegenüber befindliche Schrank enthält japanische Erzeugnisse, und zwar ältere Imari-Ware, so genannt nach dem Ausfuhrhafen für Porzellane aus Arita. Besonders hervorragende Stücke davon sind die drei Vasen mit buntem Blumendekor zwischen hellblauen Ornamentfeldern und manche von jenen in Emailfarben mit zarten Mustern dekorierten Stücken, die in Meißen und in Wien in den ersten Jahren ihrer Porzellanfabrikation als Vorbilder gedient haben (vergl. die älteren Stücke im Schranke mit dem Meißener Porzellan). Auf der gegenüberliegenden Breitseite des Schrankes befinden sich die braunrot dekorierten Porzellane aus Kutani in der Provinz Kaga, wo um 1660 eine Porzellanmanufaktur entstand. Man wählte hier, um die nicht ganz reine Masse zu verhüllen, einen den Grund möglichst deckenden Dekor. Ein dunkles Eisenrot bildet die Hauptfarbe, zu dem noch etwas Grün, Gelb und Schwarz hinzukommt.

An der gegen das Fenster zu gekehrten Schmalseite dieses Schrankes ist die elfenbeinfarbene mit goldenen und farbigen Malereien verzierte Satsuma-Ware zusammengestellt, Arbeiten, die durchwegs Exportartikel aus dem vorigen Jahrhundert sind, die an eine ältere, bessere Ware aus dem XVIII. Jahrhundert anknüpfen.

In dem gegenüber befindlichen Eckschranke sowie in den vier Ecken des Raumes sind die in Unterglasurblau bemalten japanischen Porzellane, namentlich große Schüsseln und Vasen, und die in Unterglasurblau, Eisenrot und Gold dekorierten Prunkstücke ähnlicher Art aufgestellt, die vom XVII. Jahrhundert an die vornehmste Exportware der Provinz Hizen bildeten.

[S. 157]

In dem kleineren vor dem Fenster befindlichen Schranke finden wir japanisches und koreanisches Steinzeug verschiedener Art, vorwiegend mit ein- oder mehrfarbigen Glasuren ohne Malereien verziert, namentlich kleinere und größere Schalen und Töpfchen mit Überlaufglasuren u. dgl.

EUROPÄISCHES PORZELLAN.

Das europäische Hartporzellan besteht im wesentlichen aus feuerfester, weißer Kaolinerde und Feldspat, die gemischt und bei sehr hohen Hitzegraden gebrannt werden. Die Malerei erfolgt entweder vor Auftrag der Glasur (Unterglasur oder Scharffeuerfarben) oder auf das glasierte, fertig gebrannte Porzellan mittels Emailfarben, die in einem dritten, schwächeren Brande aufgeschmolzen werden. Frankreich und England erzeugten dagegen ein kaolinfreies Weichporzellan, das im Gegensatze zum Hartporzellan geringerer Hitzegrade zu seiner Herstellung bedurfte, daher bei der Bemalung über eine größere Anzahl von Farben ermöglichte und auch sonst in künstlerischer Hinsicht manche Vorzüge vor dem Hartporzellan besaß, dafür aber in technischer Beziehung minderwertig war. Im folgenden Raume hat das deutsche Porzellan mit Ausnahme von Wien Aufstellung gefunden.

MEISSEN UND ANDERE DEUTSCHE FABRIKEN.

Der eigentlichen Porzellanfabrikation, wie sie Böttger auf Grund seiner 1709 gemachten Entdeckung des Kaolins in Meißen einführte, war die Erzeugung einer Art roten Steinzeugs vorangegangen, das fälschlich unter dem Namen Böttgersches[S. 158] Versuchsporzellan bekannt ist und von dem ein Inventar vom Jahre 1711 2000 verschiedene Stücke aufzählt. Derartiges Steinzeug im Vereine mit verwandten Erzeugnissen befindet sich in der kleinen Vitrine links. Es sind mit Gold oder Silber, auch mit Gold und Silber dekorierte Gefäße, dann dunkelbraune polierte und geschliffene Stücke und solche, die, ähnlich wie das böhmische Kristallglas, mit Schliff und Schnitt verziert sind (zinngefaßter Walzenkrug und andere). Ferner Nachahmungen des Böttger-Steinzeugs aus Bayreuth und solche böhmischer Herkunft, endlich zwei Bunzlauer Krüge mit bunten Reliefauflagen.

Porzellane der Meißener Manufaktur aus der ersten Zeit sind in dem daneben befindlichen Schrank ausgestellt. Unter Böttger wurden Weißporzellane in Barockformen, nicht selten mit Reliefauflagen, erzeugt oder chinesische Formen nachgeahmt, von dieser Art ist die Deckelvase mit Weinlaubauflagen, daneben befindet sich ein Schälchen mit Goldauflagen, wie sie der Emailleur und Vergolder Christoph Konrad Hunger ausgeführt hat, und frühes Böttger-Porzellan mit Golddekor. Hervorzuheben die Büste des Kaisers Matthias von Johann Joachim Kändler aus der Serie deutscher Kaiserbüsten und ein Kruzifix von demselben Meister (abgesondert in der kleinen Eckvitrine), ferner die mit chinesischen Figuren buntbemalten Gefäße, die Metallformen nachgebildeten Frühstückskännchen, die nach Imari-Mustern bemalten Tassen, Becher und Teller, ein Dekor aus Herolds erster Periode (1720-1730), die Beispiele von Schneeballen- und von Fondporzellanen und der Teller mit in die Glasur geritztem und geschwärztem Dekor, signiert Busch[S. 161] 1763. Im folgenden Schranke, neben der großen freistehenden Berliner Vase mit dem Bildnis Friedrich Wilhelms III., Frühstücksservice, Schalen, Becher und sonstige Porzellane aus der Blütezeit Heroldscher Dekorationsweise, Uferszenen, Chinesen, Rokokofiguren, Reiterkämpfe etc. in reichster ornamentaler Umrahmung und mit Goldspitzendekor. In der unteren Abteilung der Vitrine Proben der Blumenmalerei in Meißen nach 1740 bis in die Periode Marcolini (nach 1774) im freistehenden Schautisch in der Mitte eine Schüssel mit dem Sulkowski-Steinschen Heiratswappen dazugehörige Bestecke, eine Schüssel aus dem Brühlschen Schwanenservice und andere Porzellane der Meißener Frühzeit.

Frankenthaler Porzellan, Wanduhr (Cartel), nach 1755

In dem vor das Fenster postierten Schranke befindet sich Berliner Porzellan von etwa 1765 bis 1840, darunter eine antikisierende Lampe mit Öl nachgießendem Genius in Biskuit nach einem Entwurfe von Percier und Fontaine, Teller und Teekanne mit Florentiner Mosaikimitation und zwei Rokokodéjeuners, ferner ein Kaffeeservice mit Landschaften der Fabrik Wallendorf (Thüringen) und zwei Nymphenburger Teller, gemalt von Anton Auer.

Im folgenden Schranke Porzellane aus Frankenthal, Ludwigsburg und Nymphenburg. Besonders hervorzuheben sind hier aus der Frankenthaler Fabrik eine Potpourrivase mit plastischen Drachen an den Henkeln, eine Wanduhr mit Rocaillen und ein Frühstückservice mit mythologischen Darstellungen, gemalt von Osterspei; aus Nymphenburg ein Rechaud mit Rokokoornamenten und französischen Gartenmotiven und aus Ludwigsburg ein Tintenzeug mit Rocaillen und Amoretten[S. 162] (oberste Reihe), entworfen von J. G. Trothe, dem ersten Direktor der Fabrik (1759-1762).

Anschließend unter Glassturz eine Kopenhagener Deckelvase mit dem Bildnis König Christians VII. von Dänemark.

Im anstoßenden Schranke folgt die figurale Plastik der hervorragendsten deutschen Fabriken, worunter besonders aus Ludwigsburg: vorzügliche Gruppen und Figuren von Pustelli, Weinmüller und J. Ch. W. Beyer (oberste Reihe); aus „Nymphenburg: „Il Capitano“ und „Colombine“ aus der italienischen Komödie; aus Höchst: Schäfergruppe und Venus mit Amor; aus Frankenthal: Bauernmädchen von Jos. Adam Hannong. Außerdem finden wir hier Gruppen und Figuren aus Meißen, Berlin, Ansbach, Limbach, Zürich und Marienberg.

Als Einzelstück steht zwischen dieser und der folgenden Vitrine eine Meißener Vase mit Chinesereien in Unterglasurblau und matter brauner und schmutziggrüner Farbe, ein seltener Dekor aus der Zeit vor 1720.

Die darauf folgende Vitrine enthält hauptsächlich deutsche und Schweizer Porzellane, darunter unbemalte figurale Plastik aus Berlin, einen Rudolstädter Schokoladetopf mit feiner Purpurmalerei, eine größere Vase mit Purpurdekor aus Fürstenberg, eine prächtige Teekanne mit Wüstenszenen der Züricher Fabrik, ferner einzelne Stücke aus Ansbach, Fulda, Kloster Veilsdorf, Höchst, Gotha, Volkstädt, Kopenhagen und Petersburg.

WIEN.

Die Wiener Porzellanmanufaktur wurde 1718 von einem Privaten, Claud. Innoc. Du Paquier[S. 163] gegründet, ging 1744 in Staatsbesitz über und wurde 1864 aufgelöst.[28] Die Erzeugnisse dieser Fabrik nehmen den ganzen folgenden Raum samt der daranstoßenden Galerie in Anspruch und sind in streng historischer Folge angeordnet. Die ersten drei Vitrinen enthalten Erzeugnisse der Periode Du Paquier. Wir finden zunächst Porzellane mit chinesischem oder japanischem Dekor, so die zwei Teller mit dem Wappen der Avalo, deren Randbemalung viele Ähnlichkeit mit der an den Wandleuchtern des später zu erwähnenden Zimmers aus dem Palais Dubsky hat. Ferner Porzellane mit bemalten Reliefauflagen in ostasiatischem Charakter, Krüge, Schalen und Kaffeetäßchen mit Imari-Mustern, zwei Ollio-Töpfe mit eckigen Henkeln, die auch ihrer Form nach auf chinesische Vorbilder zurückgehen, welche ihrerseits wieder Bronzegefäßen nachgebildet sind, was auch von der in der Mitte aufgestellten Butterschale in Form einer Schildkröte gilt. Weiters sind hier die den Hizen-Porzellanen in drei Farben (Unterglasurblau, Eisenrot und Gold mit gelegentlicher Anwendung von etwas Grün) nachgebildeten Erzeugnisse ausgestellt, die etwa von 1730 bis 1750 in der Fabrik üblich waren, und die im mittleren der drei Schautische auch nach der Richtung der Blaumalerei ihre Ergänzung finden. Schließlich sehen wir einige Porzellane, bei denen sich Barockformen geltend machen, wie die beiden Krüge mit Tigerhenkeln,[S. 164] die durchbrochenen Schälchen und die Kanne mit deutschen, das heißt in chinesischer Art behandelten europäischen Blumen.

Der folgende Schrank zeigt die Porzellane mit buntem Barockdekor, welche das prächtigste Genre der Du Paquier-Zeit repräsentieren. Hierbei spielen die Beziehungen zum ostasiatischen Genre noch vielfach in die Komposition hinein, ebenso wie der Dekor mit deutschen Blumen. Für die letztere Art sind die große ausgezackte Schüssel und der Walzenkrug mit dem Wappen besonders charakteristisch. Gleichzeitig können wir das Aufkommen einer figuralen Malerei in europäischem Sinne verfolgen, wie bei dem großen Deckeltopf mit dem Fruchtgehänge tragenden Putten, der diesem verwandten Teekanne mit jagendem Putto, in dem Trinkkrug mit Amoretten und Nereiden, der Déjeuner-Platte mit Schäferszene, der Schokoladetasse mit bunten Rokokofiguren usw.

Zu beiden Seiten dieses Schrankes sind zwei prächtige signierte Arbeiten des vortrefflichen Hausmalers für Meißener und Wiener Porzellan, Bottengruber, einzeln ausgestellt. Eine Schokoladetasse und eine Spülkumme, beide mit reichem Figurenschmuck.

Den dritten Schrank beherrscht das in der zweiten Hälfte der Du Paquier-Periode beliebt gewordene Genre des Barockdekors in Schwarzlotmalerei. Besonders beachtenswert die Terrine und die beiden Tokayerflaschen mit Türkenbüsten als Stöpseln und die große Schüssel darüber. Weitere Stücke in Schwarzlotdekor sind Hausmalereien, so das Tee- und Schokoladeservice von Karl Wendelin Anreiter von Zirnfeld mit Landschaften, ein anderes mit Uferszenen und Jagddarstellungen usw.[S. 165] In der Mitte eine prächtige Schokolade-Einsatztasse, beachtenswert durch die in dieser Zeit bei besonders feinen Stücken beliebte, eigenartige Dekorierung der Unterseite.

Im folgenden Schranke das Porzellan aus den ersten Jahren des Staatsbetriebes. Durchwegs ausgesprochene Rokokoformen, Teile von Speiseservicen mit Flechtmusterrand in Relief, bunten Blumensträußen und Streublümchen, überdies allerlei Porzellane mit Rocailledekor.

Die folgende Vitrine zeigt die Weiterentwicklung des Rokokogenres in den nächsten zwei Dezennien. Die Rocailleplastik tritt in den Hintergrund oder verschwindet ganz, die Formen bieten der Bemalung größere Flächen dar, die Weißdreherarbeit ist exakter, die Masse feiner. Die Malerei wendet sich mit Vorliebe kleinen, figuralen Darstellungen zu, die zunächst von Rokokokartuschen eingerahmt werden, später jedoch in freier Endigung in den weißen Porzellangrund überführen. Besonders fein durchgeführte Stücke sind die zwei Frühstückservice mit Rokokofiguren, ferner das mit den Reitergefechten und die Schokoladetasse mit dem Bildnisse Franz I. von Lothringen in Graumalerei nach einem Stiche von J. Schmutzer. In dem folgenden Schranke, der die Periode von 1770 bis 1780 umfaßt, zeigt sich mehrfach französischer Einfluß. So in den Porzellanen der obersten Reihe und in einzelnen Tassen der folgenden Reihen, in dem Flaschenkühler mit Biskuitreliefs und dem Déjeuner mit plastischen Blumen. Als Versuch einer Imitation von Wedgwoods Jasper-Ware präsentiert sich das in der Mitte aufgestellte Déjeuner mit weißen Relieffiguren auf blauem Grunde.

[S. 166]

Ganz im Geschmacke der Louis XVI-Zeit ist die daneben befindliche, als Einzelstück aufgestellte Potpourrivase. Dasselbe urnenartige Modell, im Wiener Genre dekoriert, befindet sich als Gegenstück am andern Ende dieser Schrankreihe, während die alleinstehende große Vase in der Mitte zwischen beiden Schränken den Einfluß französischen Geschmackes um 1850 aufweist.

Die folgende Vitrine enthält Teile eines Tafelservices mit zierlichem, antikisierendem Reliefgolddekor und kobaltblauen Rändern. Die Stücke gehören der Zeit um 1780 an. Anstoßend sind die Porzellane der Sorgenthal-Periode (1784-1805) ausgestellt. Ein prächtiges Déjeuner in Kupferlüster mit Reliefgolddekor und einer Malerei in Purpur-Camajeu von Lamprecht, Cupido und Ganymed nach Angelika Kauffman, Dessertteller mit verschiedenartigen Malereien im Fond, reich dekorierte Kaffeetassen, sämtlich mit Reliefgold, endlich ein Frühstückservice mit Grisaillemalereien von Josef Neumann, umgeben von Golddekor in zwei Tönen auf dunkelblauem Grunde.

Im nächsten Schranke finden wir die Porzellane im Empiregeschmack, zum Teil im Genre der antiken Vasenmalerei dekoriert oder als Imitationen antiker Bronzen durchgeführt, ein Déjeuner mit neapolitanischen Landschaften usw., Arbeiten aus der Zeit zwischen 1790 und 1820. Die weitere Entwicklung in der ersten Hälfte des XIX. Jahrhunderts wird in der folgenden Vitrine vorgeführt.

Die freistehenden Tischvitrinen enthalten zahlreiche Arten von Kaffeetassen aus der Zeit von 1784 bis 1840 und Teller von 1760 bis 1840, ferner Porträtmedaillons in der Art von Wedgwoods Jasper-Ware und kleine Tafelmalereien, darunter[S. 169] das mit großer Feinheit ausgeführte und von Claudius Herr signierte Porträt des Grafen Mittrovsky.

Alt-Wiener Porzellanzimmer

Andere Tafelmalereien aus der Zeit von 1818 bis 1864 befinden sich an den Pfeilern sowie an der Innenwand der Galerie, wo sie im Verein mit der Porträtplastik in Biskuit, worin bereits Grassi, besonders aber Johann Schaller und Elias Hütter Vorzügliches geleistet haben und mit den großen Vasen, die Josef Nigg mit seinen sehr geschätzten Blumenmalereien geschmückt hat, von dem Kunstniveau in den letzten Dezennien der Fabrik Zeugnis geben. In den beiden Pultvitrinen an der Galeriewand sind die letzten Arbeiten vor der Auflösung der Fabrik ausgestellt, darunter auch Teile des 1821 bis 1824 für König Georg IV. von England ausgeführten Tafelservices.

Die Wiener figurale Kleinplastik ist in den beiden an der Innenseite der Pfeiler befindlichen Schränken und in der kleinen Mittelvitrine ausgestellt. Wir finden Varianten von Meißener Motiven, wie zum Beispiel die sitzende weibliche Figur mit dem Salzfaß, den Mann mit dem Krug und andere. Wiener Typen und Wiener Straßenfiguren, wie die Kellnerin, die Maroniverkäuferin etc., diverse Gruppen, darunter Erzherzog Leopold II. mit seiner Familie, dann in der Mittelvitrine Callot-Figuren, eine Porträtbüste Franz I. von Lothringen, zwei Gruppen des ersten Modellmeisters Johann Niedermayer, Taten des Herkules, ein junges Mädchen mit Pfau (Die Eitelkeit), die polnische Familie und anderes. Im zweiten Pfeilerschrank finden wir Biskuitfiguren im klassizistischen Geschmacke nach Modellen von Anton Grassi und andern, meist Teile von Tafelaufsätzen.

[S. 170]

Im folgenden Kompartiment werden uns die französischen, italienischen und englischen Porzellane vorgeführt. Der erste Schrank enthält französisches Hartporzellan vom Anfange bis gegen die Mitte des XIX. Jahrhunderts, reich dekorierte Kannen, Teller und Kaffeetassen aus Sèvres und aus verschiedenen Pariser Manufakturen, die zu Ende des XVIII. Jahrhunderts entstanden waren, hauptsächlich aus der des Duc d’Angoulême von Guerhard & Dihl.

Die nächste Vitrine enthält Beispiele von Weichporzellan von Sèvres. Ein besonders prächtiges Stück, eine türkisblaue Deckelterrine mit bunten Früchten und Blumen in weißen Reserven, ferner Teller und Tassen verschiedener Art sowie ein Beispiel von sogenanntem Juwelenporzellan. Ferner sind hier einzelne Stücke aus Chantilly, ein Kännchen der Manufacture de porcelaines dites à la Reine, drei hervorragend prächtige Tassen der Fabrik von Guerhard & Dihl, einige Porzellane aus Saint Cloud und je ein Stück aus Vincennes und Nyon (Kanton Waadt) ausgestellt.

Im nächsten Schranke finden wir Teile eines großen Tafelservices in Hartporzellan, das nach 1840 in Sèvres ausgeführt wurde. Die einzelnen Stücke sind mit Darstellungen aus industriellen und landwirtschaftlichen Betrieben der verschiedensten Art in Frankreich und seinen Kolonien bemalt und mit der höchsten technischen Vollendung und künstlerischen Delikatesse durchgeführt. Das Service bildete ein Geschenk des Königs Louis Philippe von Frankreich an den Staatskanzler Fürsten Klemens Metternich anläßlich der am 10. Oktober 1846 stattgefundenen Hochzeit seines Sohnes Antoine Philippe Louis von Orléans[S. 171] Herzogs von Montpensier mit der Infantin Marie Louise von Spanien. Weitere Stücke dieses Services sind in der freistehenden Tischvitrine ausgestellt. Auch der folgende Schrank enthält Teile von Tafelservicen aus Hartporzellan aus Sèvres sowie ein Déjeuner und andere späte Sèvres-Porzellane. Frei aufgestellt zu Seiten der letztgenannten vier Schränke vier Vasen der Fabrik Neapel aus der Zeit um 1800.

Die folgende Vitrine enthält italienisches und spanisches Porzellan. Es sind die Fabriken von Venedig, Capo di Monte, Neapel und Buen-Retiro in einzelnen Stücken, sowohl in Gefäßen wie figuralen Arbeiten repräsentiert. Besonders hervorzuheben eine Deckelterrine mit Untersatz aus Nove mit Darstellungen aus dem Leben eines italienischen Offiziers aus der Zeit Napoleons I.

Die entsprechende Vitrine der andern Seite enthält Wedgwood-Arbeiten und englisches Porzellan, unter den erstern ist hauptsächlich die blau-weiße Jasper-Ware vertreten, und überdies finden wir einzelne Beispiele in der sogenannten „Parianmasse“ (Klytia), in „Rosso antico“, „Bamboo-ware“, und „Egyptian black“. Besonders hervorzuheben ist ein seltenes Stück Jasper-ware, eine lila Deckelvase mit weißen Reliefauflagen aus der Zeit um 1785. Im unteren Fache sind einzelne Stücke von Wedgwoods „Queen-ware“, ferner Fabrikate, namentlich Teller von Derby, Chelsea-Derby und Worcester ausgestellt.

Man gelangt nun in den der modernen Keramik gewidmeten Raum und hat zunächst in der einen großen Vitrine links Erzeugnisse deutscher, englischer, holländischer und skandinavischer Fabriken aus den letzten zwei Dezennien vor sich. Es[S. 172] sind hier die Arbeiten von Heider in München, Läuger in Karlsruhe, Mutz in Altona, Schmidt-Pecht in Konstanz, ferner solche aus Gustavsberg in Schweden, Haag, Delft und Utrecht in Holland, Kähler in Dänemark sowie von De Morgan und Rathbone in England.

Der nächste Schrank enthält französische Keramiken aus der Zeit um 1900, Schüsseln und Vasen von Lachenal, Dalpeyrat, Clément Massier, Utzschneider und solche aus Bourg la Reine, Glattigny und Choisy le Roi. Es folgt ein Schrank, in dem hauptsächlich das Porzellan der königlichen Manufaktur in Kopenhagen sowie das von Bing & Gröndahl daselbst und der Fabrik Roerstrand in Stockholm vertreten ist. Der große Mittelschrank enthält Sèvres-Porzellan von der Weltausstellung 1900, ferner Rozenburger Geschirre dieser Zeit und Fabrikate von Damouse in Paris und Rookwood in Cincinnati. In den drei vor dem Fenster befindlichen Schränken finden wir einige Porzellane österreichischer, französischer und englischer Herkunft aus der Zeit von 1870 bis 1890, sodann Keramiken von Zsolnay in Fünfkirchen und aus verschiedenen österreichischen Fachschulen, ferner einiges aus der Wiener k. k. Kunstgewerbeschule und im kleinen Schranke in der Mitte moderne figurale Plastiken, Wiener Arbeiten von Kirsch, Löffler und Powolny und andern, überdies eine Porzellangruppe von Waekerle in Nymphenburg.

Eine der bedeutendsten Erwerbungen des Museums ist das 1912 im Anschluß an diesen Raum zur Aufstellung gelangte Alt-Wiener Porzellanzimmer aus dem Palais Dubsky in Brünn (vgl. Seite 117). Es gehört zu den frühesten und umfangreichsten Erzeugnissen der 1719 gegründeten[S. 173] Fabrik und wurde auf Bestellung des Grafen Czobor de Szent Mihaly, der 1728 starb, und dessen Wappen sich ober dem Spiegel am Fensterpfeiler befindet, angefertigt, wahrscheinlich aber erst unter seinem Sohne Josef vollendet. Es erfuhr noch unter Josef Czobor von dem unbekannten Ort seiner ursprünglichen Aufstellung eine Übertragung nach Brünn, die kleine Veränderungen zur Folge hatte, und ging 1762 in den Besitz der Familie Piatti von Tirnowitz über, was abermals unbedeutende Änderungen, wie das Anbringen der im Louis XVI-Stile ausgeführten Uhr und die Einfügung neuer Porträte in die bereits vorhandenen Rahmen zur Folge hatte. In seiner Gesamtheit erweckt das Zimmer in seinem reichen Schmucke von rund 1400 Porzellanplättchen und 121 verschiedenen Porzellangegenständen, seiner prächtigen alten Wandbespannung, den üppigen, geschnitzten und vergoldeten Ornamentauflagen und den reich geschnitzten, ebenfalls vergoldeten und mit Porzellanplättchen verzierten Möbeln den Eindruck seltener Einheitlichkeit und auserlesener Pracht. Eine auch in technischer Hinsicht höchst beachtenswerte Leistung ist der große Kamin mit sogenannten „deutschen Blumen“, einzig in ihrer Art sind die zierlichen Luster und Wandleuchter mit ihrem figuralen Schmuck von Vögeln und Chinesen. Letztere sind ebenso wie die 70 Vasen, die Zierplatten und Teller nach Art der japanischen Imari-Porzellane bemalt. Als einziges uns erhaltenes Porzellanzimmer der Du Paquier-Zeit gehört es zu den wichtigsten und schönsten Denkmälern der Wiener Fabrik.

In den Keramiksaal zurückkehrend, finden wir in dem Schranke an der Innenwand der Seitengalerie[S. 174] des Glassaales nationale Töpferarbeiten, beginnend mit solchen aus Tirol, Salzburg, Krain und dem mährisch-ungarischen Grenzgebiete. Es folgen sodann galizische und siebenbürgische Töpfereien und solche aus Ungarn, Bosnien, der Türkei, Ägypten, Marokko und Spanien.

[27] Masner, Karl, Die Sammlung antiker Vasen und Terrakotten im k. k. Österr. Museum. Katalog und historische Einleitung 1892.

[28] Falke, J. v., Die k. k. Wiener Porzellanfabrik. Ihre Geschichte und die Sammlung ihrer Arbeiten im k. k. Österr. Museum. Mit 17 Tafeln. 1887.

Folnesics, J. und E. W. Braun, Geschichte der k. k. Wiener Porzellanmanufaktur, herausgegeben vom k. k. Österr. Museum. Mit 42 Tafeln, 1 Markentafel und 147 Illustrationen im Text. 1907.

GLASARBEITEN.

Unmittelbar an die keramische Sammlung schließt sich die Glassammlung an. Die Glaserzeugung, das heißt die Herstellung einer amorphen Verbindung von Kieselsäure mit zwei Basen, die durch Metalloxyde bestimmte Färbung erhält, reicht in das Dunkel vorhistorischer Zeiten zurück. Zahlreiche Proben ägyptischer Glasmacherkunst, die aus den Gräbern ans Licht gefördert wurden, sind Zeugen einer hochentwickelten Technik, die bis in das IV. Jahrtausend v. Chr. zurückreicht.

Die Glassammlung des Museums beläuft sich auf mehr als 2000 Nummern.[29]

Den kunsthistorisch bedeutendsten sowie an Vortrefflichkeit und Zahl der Objekte hervorragendsten Teil bilden die gravierten und geschliffenen böhmischen und schlesischen Glasarbeiten vom XVI. bis gegen Ende des XVIII. Jahrhunderts.

Glasbecher mit Schmelzmalerei, in Silber montiert, holländisch, XVIII. Jahrhundert, 1. Hälfte

ANTIKE GLASARBEITEN.

Erster Schrank an der Schmalwand der Eingangsseite:

[S. 177]

Nebst einigen Proben ägyptischer Glasarbeiten, worunter nebst Halsketten, Skarabäen etc. besonders die zierlichen Alabastren mit Zickzackverzierungen in kobaltblauem Grunde bemerkenswert sind, verdienen hier namentlich die Fragmente bunter römischer Glasarbeiten in künstlerischer und technischer Beziehung größte Beachtung. Viele dieser Bruchstücke sind Teile von Hohlgläsern, andere rühren von Wandbekleidungen, Möbeleinlagen, von Schmuck oder Nippesgegenständen her. Die Blütezeit dieser Industrie fällt in das I. Jahrhundert n. Chr. Der größere Teil sind sogenannte Millefiori-Gläser, eigentlich Mosaikgläser, die durch das Zusammenschmelzen von Glasstäben verschiedener Farbe entstanden sind. Durch Querschnitte auf diese Stabbündel erhielt man Plättchen, auf welchen das beabsichtigte Muster zum Vorschein kam. Die Plättchen wurden in Hohlformen zu Schalen etc. zusammengesetzt, von innen durch eine Glasblase verbunden und dann auf der Außenseite von einer durchsichtigen oder durchscheinenden grünen, braunen, blauen, goldgelben oder violetten Glasmasse überfangen. Besonders feine Arbeiten erhielten noch obendrein durch Schliff eine vollkommen glatte Oberfläche. So die prächtigen Mosaikfragmente mit den zierlichen Blumen und Friesornamenten, die Masken, Vögel, Zierleisten etc. Eine hervorragend schöne seltene Probe dieser minutiösen Mosaiktechnik ist ein in mehreren Bruchstücken erhaltener Fisch auf hellblauem Grunde.

Andere ähnliche Fragmente gehören in die Gruppe der sogenannten Madreporen-Gläser. Das sind Gläser mit unregelmäßigen farbigen Flecken, Spiralbändern oder Ringen, die auf eine ganz ähnliche Art, aber unter Begünstigung von Zufallserscheinungen,[S. 178] die eine gewisse Unregelmäßigkeit des Musters herbeiführen, erzeugt wurden. Eine weitere Gattung bilden die Bandgläser, die aus Längsschnitten von Stabbündeln gebildet sind. Einzelne Stabbündel, welche Fäden von opaker Farbe, meist Weiß, enthielten, wurden schraubenförmig um ihre Längsachse gedreht, und es entstanden jene Gläser mit verstricktem Fadenmuster, die man Filigrangläser nennt. Ein durchsichtiger Überfang verband schließlich alle diese Stäbchen zu einer kompakten Masse. Eine ausgedehnte Gruppe bilden die sogenannten Onyxgläser, die durch Mischung und Verschiebung verschiedenfarbiger Gläser in einzelnen Stücken und Streifen eine mehr konventionelle als auf Täuschung berechnete Nachahmung kostbarer Steinarten aufweisen.

Überdies sind noch Bruchstücke bemerkenswert, die uns verschiedene Techniken antiker Glasarbeit in Einzelproben vorführen. Von der merkwürdigen Spezies der Diatreten, das heißt jener Gefäße, die ein gläsernes Netzwerk umgibt, das aus einem Überfang in der Weise herausgeschliffen ist, daß das Netz frei abstehend nur durch stehen gelassene Stege mit dem andersfarbigen Untergrund in Verbindung steht, besitzt das Museum ein Fragment, auf dem mehrere flache kobaltblaue Bügel auf einem Untergrunde von weißer Farbe aufsitzen und die Technik des Diatretum-Glases in ungewöhnlicher Deutlichkeit erkennen lassen. Besonders bemerkenswert ist ferner eine schöne hellgrüne Medusenmaske, ein aus dicker Masse gepreßter Zieransatz eines Gefäßhenkels, endlich zwei Löffel, eine Nadel, Amulette, Anhängsel, Spielsachen, Kugeln, Halsschnüre, Perlen, Mosaikgläser mit Goldflocken usw.

[S. 179]

Unter den mannigfachen Arten der Verwendung des Goldes zum Schmucke der Gläser sind die sogenannten Fondi d’oro die interessantesten. Solche wurden hauptsächlich in römischen Katakomben gefunden. Es sind Schalen, in deren Fuß ein Goldblatt eingelassen ist, dem man eine bestimmte Zeichnung gegeben. Diese Goldgläser beginnen mit Ende des II. Jahrhunderts n. Chr. und reichen bis weit in das V. Jahrhundert. Ein Medaillon, auf welchem die Zeichnung mit scharfem Stifte eingeritzt ist, während die überflüssigen Teile abgeschabt sind und das Ganze blau unterlegt ist, zeigt einen männlichen Porträtkopf und die Inschrift ATIUS BALBIF; es wird in Buchers Katalog unter den echten Antiken angeführt, ist jedoch nicht ganz einwandfrei. Die moderne Nachbildung einer größeren Schale dieser Art befindet sich nebst andern Nachbildungen antiker Gläser und einigen neueren Arbeiten aus Hebron, die noch ganz in antiken Traditionen wurzeln, in dem kleinen Schranke vor dem Fenster.

Was die Formen antiker Hohlgläser betrifft, so bietet die kleine Sammlung im Aufsatzschrank über den Pulten ein abwechslungsvolles Bild. Wir finden halbkugelige und flache, glatte und gerippte Schalen, viereckige, kugelige, birnförmige, lang- und kurzhalsige, plattgedrückte und zylindrische sowie mit Fäden umsponnene Flaschen, solche mit eingekniffenen Bandverzierungen und mannigfach gerippten Henkeln, Ampullen mit flachem Kegelfuß und langgestreckte Phiolen, runde Becher und solche mit eingedrückten Wänden, einen sogenannten Rüsselbecher, kleine Gefäße in Tierform usw. Viele dieser Stücke zeichnen sich durch eine prächtig irisierende Oberfläche aus. Diesen[S. 180] herrlichen Farbenschimmer verdanken sie einem Verwitterungsprozeß, da die verschiedenen Säuren im Erdreiche der Gräber dessen Oberfläche zerstört haben.

In der Ecke links einzeln aufgestellt befindet sich eine arabische Moscheenampel in der Art, wie sie vom XIII. Jahrhundert an in Syrien, namentlich in Damaskus angefertigt wurden. Innerhalb einer weißen Bandverschlingung sind Arabesken in buntem Email dick aufgetragen. Der Grund war von Goldornamenten bedeckt, von welchen größtenteils nur noch die roten Umrißlinien sichtbar sind.

Im freistehenden Schranke in der Mitte haben ältere venezianische Gläser und solche aus Hall in Tirol Aufstellung gefunden. Die venezianische Glasindustrie, in ihrem Wesen an alexandrinische Traditionen, die sowohl in Alexandrien wie in Vorderasien noch während des frühen Mittelalters weiter gepflegt wurden, anknüpfend, ist seit dem XIII. Jahrhundert historisch nachweisbar.

Die ältesten Stücke der Sammlung gehören dem Anfange des XVI. Jahrhunderts an. So die große Schale, in der Mitte unten, mit netzartigen Falten, auf der unteren Seite bemalt mit einer mythologischen Szene in der Mitte und vier Brustbildern und Blattornamenten auf dem Rande, ferner die Schalen und der Pokal mit Goldrand und Perlenornament, im Charakter orientalischer Dekorationsweise. Spätere Typen sind die vier Deckelschälchen, besetzt mit mittels der Formzange gepreßten Rosetten und Löwenköpfchen. Im oberen Fache repräsentiert ein konischer Becher mit einem auf einem Seeungeheuer reitenden Meerweib die bunte Emailmalerei, während ein Faltenpokal,[S. 181] von drei Reifen umschlossen, noch an gotische Formen erinnert. In der Mitte auf hohem Sockel steht ein Pokal mit Goldranken und dem Wappen des Erzbischofs Mathias Lang von Salzburg (1509-1540). Da die Haller Fabrik 1534 gegründet wurde und erst 1550 zu voller Blüte gelangte, dürfte dieser Pokal das älteste noch vorhandene Erzeugnis der Haller Glashütte sein.

Weitere Haller Gläser sind die daneben stehenden hohen, walzenförmigen Pokale, beide mit dem Diamanten geritzt, einer davon auch mit dem charakteristischen Haller Dekor in Gold und kalten Farben (Grün und ein bräunliches Rot). Ein weiterer Haller Walzenpokal aus dunkelblauem Glase mit gerissenem Rankenwerk, auf dem sich Spuren von Vergoldung befinden, auf dem unteren Stellbrett. Vor dem Haller Pokal mit dem Wappen ein Venezianer Schälchen mit Aventurin-Glasfäden, überdies Traubenflaschen, kleine Vasen und Fadengläser aus Murano.

An der Fensterseite folgen nun sechs quergestellte Schränke mit verschiedenen venezianischen Glasarbeiten vom XVI. bis zum XVIII. Jahrhundert. Zunächst finden wir zahlreiche Typen farbloser Kelchgläser mit sehr mannigfach gebildeten Stengeln. Diese Gattung findet im nächsten Schranke ihre Fortsetzung. Einzeln ausgestellt eine Riesenschüssel mit bischöflichem Wappen und zwei ungewöhnlich hohe Stangenpokale. Es folgen in der nächsten Vitrine die sogenannten Flügelgläser. Hier wie bei den vorhergenannten Trinkgefäßen besteht jedes Stück aus drei Glasblasen, eine für den Kelch, eine für den Stengel und eine für die Fußplatte. Bei diesen Flügelgläsern sind zu beiden Seiten des Stengels phantastische ornamentale[S. 182] Formen, meist aus grünblauen und farblosen Glasstäbchen kombiniert, angebracht, die durch Biegen und Zwicken mit der Zange mannigfache Formen erhalten haben und oft in hahnenkopfartige Endigungen auslaufen.

Im folgenden Schranke sind hauptsächlich die mit Diamantgravierung verzierten sogenannten „gerissenen“ venezianischen Gläser vereinigt. Besonders bemerkenswert drei mit zierlichem Rankenwerk geschmückte Schüsseln, eine weitbauchige Deckelvase, ein Eimer mit beweglichem Bügel und die Kelchgläser mit violetter Kuppa.

Die nächste Vitrine enthält venezianische Fadengläser vom XVI. bis zum XVIII. Jahrhundert, deren komplizierte Herstellungsweise außerordentliche Übung und Geschicklichkeit des Glasarbeiters erforderte und daher den besonderen Stolz Muranos bildete.

Die Zahl der Varianten innerhalb dieser Gattung ist außerordentlich groß. Unsere Sammlung enthält Fadengläser mit radialer Anordnung der einzelnen Fadenbündel und sogenannte Netzgläser, die aus zwei Fadenglasblasen bestehen, welche beim Ausdehnen im Gegensinne gedreht wurden, wobei in den „Maschen“ der sich kreuzenden Fäden kleine Luftbläschen entstanden. Bei manchen Stücken sehen wir die netzartige Wirkung der Fäden durch Einstülpen der Blase zu einer doppelwandigen Schale herbeigeführt. Eine verwandte Gattung bilden die Gläser mit „gekämmtem“ Faden, wobei der kräftige weiße Faden nur auf der Oberfläche der Blase angebracht ist und die Musterung an die gewisser schuppen- oder federartig verzierter mit dem Kamme bearbeiteter Tunkpapiere erinnert.

Deckelpokal, geschnitten und geschliffen, böhmisch, um 1700

[S. 185]

Die folgende Vitrine enthält Proben venezianischer Glasfabrikation aus späteren Perioden und verschiedene deutsche Gläser. Die Formen sind mannigfacher, die technischen und künstlerischen Qualitäten aber geringer. Wir finden ein besonders reich ausgebildetes Blumengefäß, einen Krug aus „Eisglas“, und zwar jene im XVI. Jahrhundert entstandene Gattung, die in der Weise erzeugt wurde, daß man die noch nicht erkaltete Blase über kleine Glassplitter hinrollte, wobei diese sich mit der Oberfläche der Blase verbanden, worauf sie durch Einwirkung der Hitze stumpf gemacht wurden. In derselben Reihe sehen wir zwei große niederländische oder deutsche Flügelgläser des XVII. Jahrhunderts nach venezianischer Art. Überdies finden wir hier Proben geschliffener italienischer Gläser, Flakons und Vexiergläser des XVIII. Jahrhunderts und gekämmte Fadengläser von unreiner Farbe und dürftigem Aussehen, wie sie im südlichen und nordöstlichen Böhmen im XVII. Jahrhundert erzeugt wurden. Unter den Gläsern der untersten Reihe flaschenartige deutsche Trinkgefäße, die im XVI. und XVII. Jahrhundert beliebten Angster oder Kuttrolfs mit mehreren dünnen umeinandergeschlungenen Halsröhren, die sich in einer etwas erweiterten, zur Seite gebogenen Mundschale vereinigen und ein Vexierglas. In dem zunächst stehenden Schranke am Fensterpfeiler sind deutsche und böhmische Gläser des XVIII. Jahrhunderts mit vergoldeter Gravierung, Hinterglasmalereien und mit bunter Emailmalerei verzierte Milchgläser des XVIII. Jahrhunderts untergebracht. Im folgenden Schranke am Fensterpfeiler sehen wir bemerkenswerte Versuche der Wiederbelebung der venezianischen Glasmacherkunst[S. 186] in der zweiten Hälfte des XIX. Jahrhunderts. Fast alle alten Techniken finden wir von neuem angewandt und besonders sei auf die Gläser mit Golddekor nach altem Muster und die Kopie einer sogenannten Brautschale, Violett mit Gold- und Schmelzdekor, und fünf Medaillons in weißem Email: Abenteuer des Zeus, aufmerksam gemacht. Hierher gehört auch der große Deckelpokal in der Mitte des Saales mit Drachenknauf und Drachenstengel aus weißem und rotem Fadenglas, eine Kopie von Salviati nach einem Original der Slade-Kollektion im British Museum.

Im Wandschranke an der Innenseite des nächststehenden Pfeilers sind weitere Typen deutscher Gläser ausgestellt. Wir finden in der oberen Reihe grüne Warzen- oder Nuppenbecher, auch Krautstrünke genannt, rheinische Römer des XVII. Jahrhunderts mit Traubennuppen, in der folgenden Reihe Rubingläser in vergoldeter Kupferfassung aus dem XVII. Jahrhundert und spätere Nachahmungen solcher Gläser an beiden Enden der Reihe. Zu unterst einen Walzenpokal mit Quadermusterung, Spechter genannt, eine Spezialität der Glashütten des XVI. Jahrhunderts am Spessart, mehrere Angster, einen großen Tiroler Humpen, davor ein Trinkgefäß in Form eines Phallus und anderes.

Bis um die Mitte des XVI. Jahrhunderts versorgte Venedig Deutschland mit emaillierten Wappengläsern. Von da ab breitet sich die Erzeugung dieser Gläser, die wir in zwei Schränken an der Außenseite der Pfeiler vereinigt finden, auch nördlich der Alpen aus. Bis etwa 1600 sind diese Walzenhumpen aus farblosem Glas, später erscheinen sie in verschiedenen grünlichen Nuancen.[S. 187] Die älteren Formen sind konisch und mit einem kurzen Fußansatz versehen, die späteren einfach zylindrisch. Die Emailmalerei beschränkt sich ursprünglich auf Wappen adeliger Familien. Vom Ende des XVII. Jahrhunderts erscheinen Zunftwappen und Embleme bürgerlicher Korporationen. Ein sehr beliebter Vorwurf für größere Humpen war der Reichsadler mit den Quaternionen-Wappen auf den Flügeln. Ein anderes oft vorkommendes Motiv sind der Kaiser und die sieben Kurfürsten, von denen es zweierlei Darstellungsweisen gibt; die ältere zeigt den Kaiser auf dem Throne sitzend und die Kurfürsten stehen angereiht — ältestes Stück von 1591 im Wiener Hofmuseum — die jüngere, häufigere, zeigt Kaiser und Kurfürsten zu Pferde. Andere beliebte Vorwürfe sind Jagddarstellungen, Jahreszeiten, Kardinaltugenden usw. Selten sind dagegen Genredarstellungen wie die auf dem konischen Trinkkrug von 1572 mit der Frau und dem Fuchs, der zugleich das älteste bekannte Stück dieser Art ist. Ein seltenes Glas anderer Art ist der zylindrische Becher mit Ansicht von Krafftzhofen und dem Wappen der Nürnberger Patrizierfamilie Kress vom Jahre 1657. In verschiedenen Größen sind Fichtelbergergläser, Erzeugnisse der Hütten von Bischofsgrün, mit der schematischen Ansicht des Ochsenkopfes und den vier dem Fichtelgebirge entspringenden Flüssen vorhanden. Aus dem benachbarten Thüringen stammt ein konisches Trinkglas mit zwei männlichen Figuren und wortreicher Inschrift, die den einen von beiden als Dieb bezeichnet, datiert: Lauscha 1712. Besondere Beachtung verdient ferner ein Hallorenhumpen des vierten, etwa von 1707 bis 1732 üblichen[S. 188] Typus, ein keilförmiger Deckelhumpen der Mitglieder der Salzpfännerschaft in Halle a. S., der „Brüder im Thale“, als was sie am Fuße des Humpens bezeichnet werden. Wir sehen unten Hallorenfiguren aneinander gereiht, darüber das Pfännerschaftswappen, von zwei Salzwirkern begleitet, rückwärts einen Fahnenträger mit brandenburgischer Fahne und darüber in Goldauflage, jetzt kaum mehr sichtbar, die Ansicht der Stadt Halle. Aus solchen Humpen wurde bei der Pfingstfeier „Torgauisch Bier“ getrunken. Ein Humpen für Studentenkneipen ist den Darstellungen nach das Paßglas mit gekniffenen Reifen, die die Grenze angeben, bis wohin das Glas geleert werden soll. Andere hier ausgestellte Arbeiten sind Vierkantflaschen mit Zinnschrauben (Apothekergefäß), ein zierlicher blauer Teller mit weißer Emailmalerei und drei Fischen in der Mitte, ein kleines sächsisches Hofkellereiglas, andere solche Gläser mit sächsisch-polnischem oder kursächsischem Wappen und eine Reihe späterer Arbeiten bis zum Ende des XVIII. Jahrhunderts. Interessant ist es zu beobachten, wie lange sich bei diesen Gläsern die traditionelle aus Venedig übernommene Verzierung mit goldenem Randstreifen und bunten Punkten erhalten hat.

Von hier in den Saal zurückkehrend finden wir zunächst einen Schrank mit Gläsern, deren Dekor in Schwarzlot ausgeführt ist. Joh. Schaper aus Harburg a. d. Elbe hatte diese Gattung von Malerei gegen 1640 nach Nürnberg gebracht, dort bis zu seinem Tode (1670) weiter gepflegt und auf eine Reihe von Schülern übertragen. Von einem derselben, Johann Keyll befindet sich ein signierter und 1678 datierter Becher mit drei Kugelfüßen in[S. 189] der oberen Reihe, er ist mit einer Bacchantengruppe und der Ansicht von Rückersdorf verziert. Außerdem sehen wir hier noch einen größeren Kurfürstenhumpen, mehrere Kelchgläser, zwei weitere Becher mit Kugelfüßen und einen Reichsadlerhumpen mit Doppelchronogramm 1720. Um diese Zeit hört die Schwarzlotmalerei in Nürnberg auf und wird auf geschliffenen böhmisch-schlesischen Gläsern fortgesetzt, wobei Laub- und Bandelwerkornamente, kombiniert mit Rokoko- oder Chinesenfiguren, und durch Goldhöhung bereichert die Dekorationsmotive bilden, wie es die in den folgenden zwei Reihen aufgestellten Stücke zeigen. Arbeiten des XVIII. Jahrhunderts mit äußerst fein ausgeführten bunten figürlichen Emailmalereien schließen sich diesen späten Schwarzlotgläsern an.

Im folgenden Schranke sind Doppelgläser verschiedener Art ausgestellt, solche, wie sie bereits Kunkel in seiner Ars vitraria beschreibt, die innen mit Ölfarben marmorartig bemalt oder mit Gold- und Silberfolie unterlegt sind und andere mit buntem figürlichen oder ornamentalem Schmuck auf Silberfolie. In verschiedenen Formen sehen wir hier auch die radierten Zwischengoldgläser, wie sie im XVIII. Jahrhundert in Böhmen erzeugt wurden. Sie sind außen vielseitig fassettiert, an den ineinandergeschobenen und dekorierten Innenseiten dagegen glatt. Die meisten zeigen Jagdmotive und Kriegsszenen, andere Genrebilder, so wie das Glas mit dem Festessen und das mit den Billardspielern, andere Heiligenbilder oder Allegorien. Ebenfalls böhmischen Ursprungs sind die mit eingesetzten, rot oder grün unterlegten Plättchen, welche mit Inschriften, Monogrammen, Emblemen usw. verziert sind. Sie erscheinen entweder[S. 190] kreisrund und flach im Boden des Gefäßes eingesetzt oder oval und in die Seitenwand eingelassen. Diese in der zweiten Hälfte des XVIII. Jahrhunderts aussterbende Gattung erfährt zwischen 1788 und 1808 durch den Glasschleifer und Glasmaler der Glashütte Guttenbrunn in Niederösterreich Johann Josef Mildner eine kurze Neubelebung. Mildner, der seine Arbeiten zu signieren pflegte, gravierte seine Ornamente, Monogramme, Inschriften, Heiligenbilder und Porträte in einem Belag von Blattsilber oder Blattgold, der die Außenseite des inneren Glases bedeckte, von innen her gesehen werden sollte, und durch einen roten Lacküberzug deutlicher gemacht wurde. Das darüber befindliche äußere Glas wurde an der Innenseite in gleicher Weise für die Ansicht von außen behandelt. In der Regel nahm er für die Innenseite Silber, für die Außenseite Gold, dazwischen lag die rote Lackschichte. Die beiden in der Mitte der mittleren Reihe ausgestellten Gläser tragen das Porträt des Josef von Fürnberg, von 1742 bis 1799 Besitzer der Herrschaft Guttenbrunn.

Von größter Bedeutung für die künstlerische Entwicklung des Glases war die durch Kaspar Lehmann, einen Steinschneider am Hofe Rudolfs II. in Prag, zuerst erfolgte Übertragung seiner Technik auf das Glas. Dieses Schneiden besteht in einer kunstvollen Bearbeitung des Glases mit kleinen Rädchen im Gegensatze zum gewöhnlichen Schleifen. Es gibt Hochschnitte, wobei die gewollten Formen im Relief erscheinen, die Oberfläche also abgearbeitet werden muß, und Tiefschnitte, bei denen der Dekor ähnlich einer Gravierung in die Fläche vertieft eingeschnitten wird. Das einzige von Lehmann signierte und 1605 datierte Stück ist ein[S. 191] großer Becher mit drei allegorischen Figuren in der Sammlung des Fürsten Schwarzenberg in Frauenberg. Von diesem Stücke befindet sich eine gute Kopie in dem nächst dem dritten Pfeiler befindlichen Schranke mit modernen Nachbildungen wichtiger Typen böhmischer und schlesischer Gläser, es ist das erste Stück in der obersten Reihe.

Lehmann starb 1622 und vererbte sein Können auf seinen einzigen Schüler, den Nürnberger Georg Schwanhardt, der nach dem Tode des Meisters in seine Vaterstadt zurückkehrte und dort eine Glasschneidetechnik einführte, die sein Sohn und verschiedene andere Mitglieder seiner Familie weiterbetrieben. Die Technik des Schneidens erfuhr zugleich eine Erweiterung durch das gelegentlich angewendete Blankschleifen des Schnittes. Die in Nürnberg geschnittenen Gläser unterscheiden sich nach Robert Schmidt namentlich dadurch von den späteren böhmischen, daß ihr Schaft nicht massiv, sondern aus einer Glasblase geformt ist.

Solche Hohlbalusterpokale sind im ersten Schranke der sich längs der Galerie hinziehenden Vitrinen aufgestellt. Sie bilden die oberste Reihe und beginnen mit einem Kelchglase mit Landschaft, worin die Bäume im Charakter der Arbeiten des Nürnberger Glasschneiders H. W. Schmidt ausgeführt sind. Hierauf folgt ein Deckelpokal, der durch die Zartheit des Baumschlages den Arbeiten von Killinger, dem letzten aus der Reihe der Nürnberger Glasschneider, nahesteht. Von den weiteren Nürnberger Pokalen sind noch der mit trichterförmiger Kuppa und prächtigen Rosenzweigen, der reich dekorierte, von 1714 datierte[S. 192] und der mit teilweise vergoldeten Ornamenten verzierte besonders bemerkenswert.

Es folgen sodann in diesem und dem zunächst stehenden Schranke böhmische Gläser des XVII. Jahrhunderts, von denen manche noch deutlich den venezianischen Einfluß namentlich in ihren gekniffenen Flügelansätzen und manchmal auch durch den im Stengel angebrachten roten Faden erkennen lassen.

Die Gliederung der oft hohen Schäfte besteht in wahllos aneinandergereihten Kugeln und Scheiben, die geschnittenen Verzierungen (Blumen und Landschaften) sind roh und ganz oberflächlich eingeschnitten, ja mehr geschliffen als geschnitten.

Charakteristisch für die böhmischen Gläser vor 1680 sind die schweren tropfenförmigen radial angeordneten Ansätze am Unterteil der Kelche und auf den Deckeln, das schönste derartige Stück ein hoher Doppelpokal mit Puttenmedaillons zwischen Ornamenten, einzeln ausgestellt vor dem Mittelfenster. Überdies finden wir Vexiergläser, wie sie in Form von Posthörnern, Pistolen, Schweinen, Bären, Tabakspfeifen usw. bis tief ins XVIII. Jahrhundert beliebt waren und zu allerlei Trinkerscherzen Anlaß gaben. Eine weitere Stufe in der Veredlung des böhmischen Glasdekors wird namentlich in den Glashütten des Riesengebirges durch die feinere Ausbildung des Schliffes erreicht, der sich auf den nun bereits starkwandig hergestellten Gläsern durch Kombination von Rillen, Kugeln, Fassetten und aus olivenförmigen Vertiefungen gebildeten Sternen, die später gewöhnlich nur in die Unterseite der Standfläche eingeschnitten werden, zu einer einfachen, aber oft sehr reizvollen Schleiferornamentik entwickelt. Solche[S. 193] Arbeit finden wir an den zwei Kannen unter der Reihe der Nürnberger Gläser und an einer Anzahl von Pokalen der untersten Reihe.

In Böhmen und Schlesien beginnt die klassische Zeit des Glasschnittes mit den wuchtigen, im Hochschnitt verzierten Gläsern. Ein solches Glas sehen wir in der obersten Reihe der folgenden Vitrine. Es trägt ein Allianzwappen des Gundaker Grafen Althan und ist mit schweren Akanthusranken verziert. Andere Gläser dieser Reihe zeigen eine Kombination von Hochschnitt und Tiefschnitt. In der Folgezeit beherrscht der leichter auszuführende Tiefschnitt fast die gesamte Produktion. Etwa zwischen 1680 und 1700 ist ein Dekor mit kleinen dichten Blumen üblich, der ohne besondere Gliederung, nur durch umkränzte Medaillons mit Porträten, Wappen u. dgl. unterbrochen wird, wie wir es an einigen Beispielen der folgenden Reihe sehen. Nach 1700 tritt eine Dekorationsweise mit großen Ranken und hineinkomponierten Blumen- oder Fruchtbüscheln auf, die Flächen sind nur mit leichtem Rankenwerk in lockerer Anordnung verziert und gleichzeitig kommt selbständig oder in Verbindung damit ein kalligraphisches Schnörkelwerk in Verwendung, wie wir es an einigen Beispielen der untersten Reihe und im folgenden Schranke sehen. Im zweiten Viertel des XVIII. Jahrhunderts tritt der prunkvolle Dekor mit Laub- und Bandelwerk auf, der eine üppige Umrahmung zu einer Hauptdarstellung, einem Porträt, einer architektonischen oder sonstigen Vedute, einem Wappen, Monogramm etc. bildet. Die Fläche ist gleichmäßig bedeckt, mattgeschliffene Bänder mit klar geschliffenen Kugelungen oder Streifen bilden das Gerüst des Blattwerks, Lambrequins, Baldachine,[S. 194] Trophäen, Putten, Tiere, Blumenvasen, kleine Landschaftsbildchen treten dazwischen. Die beiden folgenden Schränke weisen zahlreiche Arbeiten dieser Art auf. An den schlesischen Pokalen sind zwei Hauptformen zu bemerken. Bis etwa 1740 erscheint der untere Teil des Kelches eingezogen und mit blumenkelchartig gebildeten Fassetten verziert, die sich auf der Kuppa fortsetzen. Später hat die Kuppa keine Fassetten, und der kahle, stangenförmige Schaft geht mittels eines Kugelknaufes in den Kelch über. Besondere Formen zeigen die ovalen und oft auch muschelförmigen Konfitüreschälchen, die sich in solche mit und andere ohne Goldrand scheiden, sowie die Pokale, die ohne Schaft direkt, nur durch eine Einschnürung vermittelt, auf dem Fuße aufsitzen.

Um 1760 treten in Böhmen die Gläser mit ausgesprochenem Rokokoornament und zierlicher Randmusterung auf, wovon namentlich die zwei Pokale mit in Metall ergänztem Fuß Zeugnis geben. Nach 1775 unter dem Einfluß des Louis XVI-Stiles wird der Glasdekor einfacher und schlichter, es treten sowohl ganz dünnwandige Gläser auf, wie eine Anzahl in der untersten Reihe des vorletzten Schrankes ausgestellter Gläser zeigt, als auch schwere Formen mit dickem quadratischem Fuß, wie wir es in den beiden letzten Schränken sehen. Mit Beginn des XIX. Jahrhunderts zeigt sich bei den Gläsern aus Haida, Steinschönau und Blottendorf eine neu erwachte Farbenfreude, die sich sowohl in prächtigen Überfanggläsern sowie in den Hyalit- und Lithyalingläsern äußert, von denen wir in der vor dem Fenster aufgestellten Vitrine einige Beispiele finden. Hier sind auch Gläser mit durchsichtiger Emailmalerei nach Sigismund und seinem Sohne[S. 195] Samuel Mohn, Mohn-Gläser genannt, und gleichartige Arbeiten des Wieners Kothgaßner ausgestellt.

Ein kleiner Schrank am Pfeiler enthält verschiedene chinesische und japanische Glasarbeiten. An der Lampe geblasene Gläser (Uhrgehäuse, Nähkästchen etc.) sind in zwei andern Vitrinen an der Innenseite der Pfeiler ausgestellt.

Die übrigen Schränke enthalten moderne österreichische, französische, englische und amerikanische Glasarbeiten aus der Zeit von etwa 1880 bis zur Gegenwart. Besonders reich ist die Firma J. & L. Lobmeyr mit zahlreichen und vorzüglichen bunten und geschnittenen Glasarbeiten vertreten.

[29] Bucher, Br., Die Glassammlung des k. k. Österr. Museums. Geschichtliche Übersicht und Katalog. Mit 13 Tafeln. 1888.

GLASMALEREIEN.

Mit Rücksicht auf räumliche Verhältnisse ist die kleine Sammlung alter Glasmalereien teils in der Sammlung von Glasarbeiten, teils im Saale IX aufgestellt.

Die hier ausgestellten beginnen in der Ecke links mit einer Dreifaltigkeitsdarstellung aus dem XIV. Jahrhundert aus dem Stifte Heiligenkreuz in Niederösterreich. Es folgen Glasmalereien des XV. Jahrhunderts aus St. Stephan in Wien, Architekturen und religiöse Darstellungen, ferner zwei größere Tafeln aus Wiener-Neustadt aus dem Anfange des XVI. Jahrhunderts, darstellend Philipp den Schönen und Johanna von Kastilien an einem Altar kniend, hinter ihnen ihre Namenspatrone. Darunter zwei kleinere italienische Glasmalereien aus dem Anfange des XVI. Jahrhunderts und eine französische Arbeit aus der Mitte des XVI. Jahrhunderts, beides Stücke, die mit der gleichzeitigen[S. 196] Ölmalerei wetteifern. Im folgenden Fenster eine Tafel aus dem Ende des XV. Jahrhunderts mit dem Wappen von Österreich, Burgund, Kastilien usw., eine Dreifaltigkeitsdarstellung aus dem XVI. Jahrhundert und eine Wappentafel mit Ornamentumrahmung, datiert Nikol ... Delft pinxit 1608. Weitere Glasmalereien sind im Saal IX ausgestellt. Wir finden hier zunächst vier prächtige Schweizer Scheiben, Kabinettbilder von köstlicher Zartheit der Ausführung. Das erste mit dem Monogramm A H ist die Arbeit eines der besten Schweizer Glasmaler, des Andreas Hör aus St. Gallen, das folgende mit Bacchus ist unbezeichnet. Von dem berühmten Züricher Glasmaler Christoph Maurer ist das dritte Bild „Der Sommer“ ausgeführt, das die volle Signatur des Meisters samt der Datierung 1597 trägt. Das vierte, „Jakobs Traum“, ist unsigniert. Die auf diesen Scheiben angebrachten Wappen sind Nürnberger Geschlechterwappen, unter welchen das Tuchersche, Behaimsche und Stromersche konstatiert werden konnte. Die darunter befindlichen Rundscheiben sind deutsche Arbeiten aus dem XVI. und Anfang des XVII. Jahrhunderts. Im nächsten Fenster finden wir braun abgetönte Schwarzlotmalereien mit Silbergelb, auch Kunstgelb genannt, eine technische Neuerung des XIV. Jahrhunderts, die von da ab ununterbrochen in Übung bleibt. Besonders hervorzuheben die Darstellungen aus der Legende vom verlorenen Sohne und die Rundscheiben des XV. Jahrhunderts, mit Grablegung und Christus in der Vorhölle. Ebenfalls dem XV. und XVI. Jahrhundert gehören die acht Glasmalereien am folgenden Fenster an, darunter eine prächtige spätgotische Madonna in der Strahlenglorie. Die zweite Schweizer Scheibe am nächsten[S. 197] Fenster, ebenfalls mit A H signiert und von 1566 datiert, trägt das Wappen des Paulus Fer, Bürgermeisters zu Kempten. Außerdem finden wir hier zwei Kreuzigungsbilder aus dem XV. und XVI. Jahrhundert, eine frühgotische kleine Scheibe mit der Anbetung der heiligen drei Könige und verschiedene Wappenscheiben des XVI. Jahrhunderts.

[S. 198]

VERZEICHNIS DER LITERARISCH-ARTISTISCHEN PUBLIKATIONEN DES K. K. ÖSTERREICHISCHEN MUSEUMS.

Mitteilungen des k. k. Österreichischen Museums. I. Heft 1864. Enthaltend organisatorische Bestimmungen etc. (Österr. Museum.)

Festschrift bei Gelegenheit der Eröffnung des neuen Museumsgebäudes 1871. (Österr. Museum.)

(Bucher, Br.) Das Österr. Museum und die Kunstgewerbeschule. 1873. Mit Illustrat. (Österr. Museum.)

Preis 10 K.

(Bucher, Br.) Eduard Ritter v. Haas, Festschrift bei Gelegenheit der feierlichen Enthüllung seiner Büste im k. k. Österr. Museum. 1881. (Österr. Museum.)

(Vergriffen.)

Heinrich Freiherr v. Ferstel, Festschrift bei Gelegenheit der feierlichen Enthüllung seines Denkmals im k. k. Österr. Museum. 1884. (Österr. Museum.)

Preis 4 K.

Das k. k. Österr. Museum für Kunst und Industrie und die k. k. Kunstgewerbeschule in Wien. 1886. (Alfr. Hölder.)

Preis 1 Mk. 50 Pf.

Das k. k. Österr. Museum für Kunst und Industrie. Ein Rückblick auf seine Geschichte. Nach Beschluß des Kuratoriums zur Erinnerung an den 25. Jahrestag seiner Gründung (31. März 1864) herausgegeben von der Direktion. 1889. (Österr. Museum.)

(Vergriffen.)

(Bucher, Br.) Festschrift zum Jubiläum des k. k. Österr. Museums 1889, enthaltend: Die alten Zunft- und Verkehrsordnungen der Stadt Krakau. Nach Balthasar Behems Codex picturatus in der k. k. Jagellonischen Bibliothek herausgegeben. Mit 27 Tafeln. (C. Gerolds Sohn.)

Preis 20 K.

Das k. k. Österr. Museum für Kunst und Industrie 1864-1914. Mit Beiträgen von Eduard Leisching, Moritz Dreger, Josef Folnesics, August Schestag, Richard Ernst, Franz Ritter und 133 Abbildungen. Wien 1914, Verlag des Museums.

[S. 199]

Mitteilungen des k. k. Österr. Museums für Kunst und Industrie. (Monatsschrift für Kunstgewerbe.) Erschien seit 1865 (seit 1886-1897 als neue Folge). (Österr. Museum und C. Gerolds Sohn.)

Jährlich 8 K.

Kunst und Kunsthandwerk. Monatsschrift des k. k. Österr. Museums. Erscheint seit 1898. (Artaria & Cie.) Jährlich 12 Hefte.

Preis 24 K.

Wegweiser durch das k. k. Österr. Museum für Kunst und Industrie. 1872-1891. (Österr. Museum.)

Führer durch das k. k. Österr. Museum für Kunst und Industrie, Wien 1901. (Österr. Museum.)

Preis 1 K.

Verzeichnis der vom k. k. Österr. Museum herausgegebenen Photographien. Serie I-V. Nr. 1-329. (Österr. Museum.)

Verzeichnis der Gipsabgüsse, welche von dem k. k. Österr. Museum käuflich zu beziehen sind. Ausgegeben im Mai 1899. Nr. 1-1326. (Österr. Museum.)

Verzeichnis der galvanoplastischen Reproduktionen aus dem galvanoplastischen Atelier des k. k. Österr. Museums. 1882. (Österr. Museum.)

(Schestag, Fr.) Katalog der Bibliothek des k. k. Österr. Museums. 1869. (Österr. Museum.)

(Vergriffen.)

(Chmelarz, E. und Fr. Ritter.) Katalog der Bibliothek des k. k. Österr. Museums. 1883. (Österr. Museum.)

Preis 6 K.

(Schestag, Fr.) Illustrierter Katalog der Ornamentstichsammlung des k. k. Österr. Museums. 1871. Mit Initialen und 20 Illustrationen. (Österr. Museum.)

Preis 10 K.

Ritter, Fr., Illustrierter Katalog der Ornamentstichsammlung des k. k. Österr. Museums. Erwerbungen seit dem Jahre 1871. Mit 130 Illustrationen. 1889. (R. v. Waldheim.)

Preis 8 K.

Gruppenkataloge der Bibliothek:

Gruppe
 I.C.
 Zeitschriften.
 Preis 50 h.
 XII.
 Glasfabrikation und Glasmalerei.
 Preis 50 h.
 XIII.
 Tonwarenfabrikation. (Keramik.)
 Preis 1 K.
 XIV.
 Arbeiten aus Holz. XV. Drechslerei.
 Preis 50 h.
 XVII.
 Schmiede- und Schlosserarbeiten.
 Preis 25 h.

Katalog der ehemaligen Bockschen Sammlung von Webereien und Stickereien des Mittelalters und der Renaissance. 1865. (Österr. Museum.)

Preis 60 h.

[S. 200]

Katalog der ehemaligen Bockschen Sammlung von Spitzen und Kanten. 1874. (Österr. Museum.)

Preis 60 h.

Karabacek, J., Katalog der Theodor Grafschen Funde in Ägypten. 1883. (Österr. Museum.)

Preis 80 h.

Falke, J. v., Die k. k. Wiener Porzellanfabrik. Ihre Geschichte und die Sammlung ihrer Arbeiten im k. k. Österr. Museum Mit 17 Tafeln. 1887. (C. Gerolds Sohn.)

Preis 15 Mk.

Bucher, Br., Die Glassammlung des k. k. Österr. Museums. Geschichtliche Übersicht und Katalog. Mit 13 Tafeln. 1888. (C. Gerolds Sohn.)

Preis 20 Mk.

Riegl, A., Die ägyptischen Textilfunde im k. k. Österr. Museum. Allgemeine Charakteristik und Katalog. Mit 13 Tafeln. 1889. (R. v. Waldheim.)

Preis 10 K.

Masner, Karl, Die Sammlung antiker Vasen und Terrakotten im k. k. Österr. Museum. Katalog und historische Einleitung. 1892. (C. Gerolds Sohn)

Preis 20 K.

Katalog der Dürer-Ausstellung im k. k. Österr. Museum 1871. (Österr. Museum.)

Katalog der Österr. Kunstgewerbe-Ausstellung im neuen Museumsgebäude. 1871. (Österr. Museum.)

Die Ausstellung österr. Kunstgewerbe. Fachmännischer Bericht über die Ausstellung im k. k. Österr. Museum vom 4. November 1871 bis 4. Februar 1872. (Österr. Museum.)

Preis 2 K.

Katalog der Gemälde alter Meister aus dem Wiener Privatbesitz, ausgestellt im k. k. Österr. Museum. 1873. (Österr. Museum.)

Wegweiser durch die Spezial-Ausstellung von Bucheinbänden im k. k. Österr. Museum. 1880. (Österr. Museum)

Preis 20 h.

Katalog der Spezial-Ausstellung von Krügen und krugartigen Gefäßen im k. k. Österr. Museum. Eröffnet Mai 1881. (Österr. Museum.)

Preis 40 h.

Ausstellung des k. k. Österr. Museums für Kunst und Industrie in Triest 1882. (Österr. Museum.)

Katalog der historischen Bronze-Ausstellung im k. k. Österr. Museum. 1883. (Österr. Museum.)

Preis 1 K.

Alt- und Neuindische Kunstgegenstände aus Prof. Leitners jüngster Sammlung. 1883. (Österr. Museum.)

Preis 1 K.

Katalog der Spezial-Ausstellung von Schlössern und Schlüsseln (Sammlung Dillinger) im k. k. Österr. Museum. 1885. (Österr. Museum.)

Preis 50 h.

[S. 201]

Illustrierter Katalog der Ausstellung kirchlicher Kunstgegenstände. 1887. Mit 44 Illustr. (C. Gerolds Sohn.)

Preis 2 K.

Katalog der Kaiserin Maria Theresia-Ausstellung 1888. (Druck von C. Gerolds Sohn.)

Katalog der Ausstellung von Amateur-Photographien. 1888. (Klub der Amateur-Photographen.)

Katalog der Spezial-Ausstellung österreichischer Kunstgewerbe zum 25. Jahrestage der Gründung des k. k. Österr. Museums. 1889. (Österr. Museum.)

Preis 40 h.

Katalog der Spezial-Ausstellung von Gobelins und verwandten Gegenständen. 1890. Mit Einleitung von J. v. Falke. (Österr. Museum.)

Preis 40 h.

Führer durch die Kostüm-Ausstellung, 17. Jänner bis 30. März 1891. (Österr. Museum.)

Preis 40 h.

Katalog der internationalen Ausstellung künstlerischer Photographien. 1891. (Klub der Amateur-Photographen in Wien.)

Preis 40 h.

Katalog der Spezial-Ausstellung von farbigen Kupferstichen. Mit einer historischen Einleitung. 1892. (C. Gerolds Sohn.)

(Vergriffen.)

Katalog der Spezial-Ausstellung mittelalterlichen Hausrats. Mit einer historischen Einleitung. 1892. (Österr. Museum.)

Preis 60 h.

Katalog der archäologischen Ausstellung. 1893. (Österr. Museum.)

Katalog einer Spezial-Ausstellung der Schabkunst. Mit einer Einleitung und sechs Heliogravüren. 1894. (Österr. Museum.)

Preis 1 K 20 h.

Katalog der Wiener Kongreß-Ausstellung. Fünf Auflagen. 1896. (Österr. Museum.)

Führer durch die Ausstellung von Arbeiten k. k. kunstgewerblicher Fachschulen, 1901. 1901. (Österr. Museum.)

Katalog der Ausstellung von Bucheinbänden und Vorsatzpapieren, 1903. 1903. (Österr. Museum.)

Katalog der Ausstellung von Alt-Wiener Porzellan, März bis Mai 1904. 1904. (Österr. Museum.)

Ausstellung von älteren japanischen Kunstwerken, 1905. 1905. (Österr. Museum.)

Ausstellung österreichischer Hausindustrie und Volkskunst. November 1905 bis Februar 1906. 1905. (Österr. Museum.)

Katalog der Ausstellung alter Gold- und Silberschmiedearbeiten, April bis Mai 1907. 1907. (Österr. Museum.)

Katalog der Winterausstellung 1897/1898. 1897. (Österr. Museum.)

[S. 202]

Katalog der Winterausstellung 1898/1899. 1898. (Österr. Museum.)

Katalog der Winterausstellung 1899/1900. 1899. (Österr. Museum.)

Katalog der Winterausstellung 1900/1901. 1900. (Österr. Museum.)

Katalog der Winterausstellung 1901/1902. 1901. (Österr. Museum.)

Katalog der Winterausstellung 1903/1904. 1903. (Österr. Museum.)

Katalog der Winterausstellung 1906/1907. 1906. (Österr. Museum.)

Katalog der Ausstellung österreichischer Kunstgewerbe. 1909/1910. 1909. (Österr. Museum.)

Katalog der Ausstellung österreichischer Kunstgewerbe. 1910/1911. 1910. (Österr. Museum.)

Katalog der Ausstellung österreichischer Kunstgewerbe. 1911/1912. 1911. (Österr. Museum.)

Katalog der Frühjahrsausstellung österreichischer Kunstgewerbe, verbunden mit einer Ausstellung der k. k. Kunstgewerbeschule Wien, Mai bis Juli 1912. 1912. (Österr. Museum.)

Katalog der Ausstellung österreichischer Tapeten-, Linkrusta- und Linoleumindustrie, verbunden mit einer Ausstellung von Tapetenentwürfen und von historischen Tapeten, 20. Mai bis Juli 1913. 1913. (Österr. Museum.)

Katalog der Ausstellung österreichischer Kunstgewerbe 1913-1914. 1913. (Österr. Museum.)

Hans Sibmachers Stick- und Spitzen-Musterbuch. Nach der Ausgabe vom Jahre 1597 herausgegeben vom k. k. Österr. Museum. 1866. (C. Gerolds Sohn.)

Preis 8 K.

Originalstickmuster der Renaissance, in getreuen Kopien vervielfältigt und mit Unterstützung des k. k. Handelsministeriums herausgegeben 1873. Mit Einleitung von R. v. Eitelberger. (Schulbücherverlag.)

Dasselbe. 2. Auflage (R. v. Waldheim.)

Preis 6 K.

Stickmuster, mit Unterstützung des k. k. Unterrichtsministeriums und mit Benützung der besten Vorbilder entworfen von E. Drahan. (Wien, Hartinger & Sohn.)

Preis 5 K. 76 h.

Wilh. Hoffmanns Spitzenmusterbuch, nach der Originalausgabe vom Jahre 1607 photolithographiert. 1876. (Österr. Museum.)

Preis 3 K. 60 h.

[S. 203]

Spitzen-Album, gelegentlich der ersten Ausstellung von Spitzen- und Nadelarbeiten mit Unterstützung des k. k. Handelsministeriums herausgegeben 1876. 30 Lichtdrucke. (Österr. Museum.)

(Vergriffen.)

Italienische Renaissance-Spitzen- und Stickmusterblätter. 26 Spitzen- und 7 Stickmusterblätter in Lichtdruck nach den Stickmusterbüchern von Bartolommeo Danieli, des Math. Pagano etc. (Österr. Museum.)

Einzelne Blätter 60 und 50 h.

— — 10 Blätter aus dem Spitzenmusterbuche der Isabetta Catanea Parasole. Lichtdrucke. (Österr. Museum.)

Venezianische Musterblätter aus dem XVI. Jahrhundert für Passementerie-Arbeiten und verwandte Techniken. Photolithographien. Mit Einleitung von R. v. Eitelberger. 1879. (Österr. Museum.)

Preis 4 K.

Dreger, M., Entwicklungsgeschichte der Spitze. Mit besonderer Rücksicht auf die Spitzensammlung des k. k. Österr. Museums herausgegeben mit Unterstützung des k. k. Ministeriums für Kultus und Unterricht. Mit 84 Tafeln. 1901. (A. Schroll.)

Preis 24 K.

Die burgundischen Gewänder der k. k. Schatzkammer. Meßornat für den Orden vom goldenen Vlies. 12 Blätter Photographien mit Text von J. Falke. (Österr. Museum.)

(Vergriffen.)

Die byzantinischen Buchdeckel der St. Marcus-Bibliothek in Venedig. 10 Blätter Photographien mit erläuterndem Text von J. Falke. 1867. (Österr. Museum.)

(Vergriffen.)

Umrisse antiker Tongefäße zum Studium und zur Nachbildung für die Kunstindustrie sowie für Schulen. Zweite vermehrte Auflage. 19 Blätter Autographien. (Österr. Museum.)

Preis 6 K.

Ornamente antiker Tongefäße zum Studium und zur Nachbildung für die Kunstindustrie sowie für Schulen. 15 Blätter in mehrfarbigem Tondruck. (Österr. Museum.)

Preis 10 K.

Salvetat, Über keramische Dekoration und Emaillage. Zwei Abhandlungen, aus dem Französischen übersetzt. (Österr. Museum.)

Preis 2 K 40 h.

Trachtenbilder von Albrecht Dürer aus der Albertina. 6 Bl. in Chromoxylographie ausgeführt von F. W. Bader in Wien. (Österr. Museum.)

Preis 12 K.

Ottavio Stradas Entwürfe für Prachtgefäße in Silber und Gold, gezeichnet für Kaiser Rudolf II. Faksimiliert. (Becksche Univ.-Buchhandlung [A. Hölder]).

Preis 15 K.

[S. 204]

Gefäße der deutschen Renaissance (Punzenarbeiten). Im Auftrage des k. k. Handelsministeriums herausgegeben, 16 Tafeln in Folio mit Text von Franz Schestag. 1876. (Schulbücherverlag.)

Preis 10 K.

Das Wiener Heiligthumbuch. Nach der Ausgabe vom Jahre 1502 samt den Nachträgen von 1514 mit Unterstützung des k. k. Handelsministeriums herausgegeben. Mit Einleitung von Franz Ritter. 1882. (Gerold & Comp.)

Preis 8 K.

Möbelformen der französischen Renaissance. Nach den im Österr. Museum und in andern Sammlungen befindlichen Originalen unter Leitung von Prof. E. Herdtle aufgenommen und autogr. von Schülern der Kunstgewerbeschule. 2 Hefte à 6 Tafeln. 1881. (Österr. Museum.)

Preis à 4 K.

Prachtmöbel und Geräte vom Ende des XVIII. und Beginn des XIX. Jahrhunderts, größtenteils aus dem Besitze Sr. kaiserl. Hoheit Erzherzogs Albrecht. In Lichtdruck von V. Angerer in Wien, herausgegeben vom k. k. Österr. Museum. 15 Tafeln. 1884. (Österr. Museum.)

Preis 24 K.

Falke, J. v., Rahmen. Eine Auswahl aus der Sammlung des k. k. Österr. Museums auf 50 Lichtdrucktafeln. 1892. (A. Schroll.)

Preis 35 Mk.

— — Holzschnitzereien. Eine Auswahl aus der Sammlung des k. k. Österr. Museums auf 55 Lichtdrucktafeln. 1893. (A. Schroll.)

Preis 35 Mk.

— — Mittelalterliches Holzmobiliar. 46 Lichtdrucktafeln. 1894. (A. Schroll.)

Preis 40 Mk.

Photographien alter Möbel von der Ausstellung im Österr. Museum 1874. (Hofphotograph V. Angerer.) Preis der ganzen Kollektion: aufgezogen 84 K, unaufgezogen 56 K, einzelne Blätter:

aufgezogen 1 K 20 h, unaufgezogen 80 h.

Kunstgewerbliche Flugblätter. 55 Bl. in Kart. (R. v. Waldheim.) Preis 6 K. Einzelne Blätter à 10 h zu beziehen durch das Österr. Museum.

Reproduktionen von Original-Zeichnungen und kunstgewerblichen Gegenständen. 1883. Bisher 2 Hefte à 12 Bl. (V. Angerer.)

Studien und Entwürfe von Ferdinand Laufberger. Aus seinem Nachlasse herausgegeben. 1884. 1 Heft mit 12 Bl. (V. Angerer.)

Arbeiten der österreichischen Kunstindustrie aus den Jahren 1868-1893. Zum 25jährigen Jubiläum der Kunstgewerbeschule des k. k. Österr. Museums für Kunst und[S. 205] Industrie. Herausgegeben von der Direktion. Wien, (Gesellschaft f. vervielfält. Kunst.)

Der Wiener Kongreß. Kulturgeschichte, Die bildenden Künste und das Kunstgewerbe, Theater, Musik in der Zeit von 1800 bis 1825. Mit Beiträgen von Bruno Bucher, Josef Folnesics, Eugen Guglia, Ludwig Hevesi, Eduard Leisching, Karl v. Lützow, Hans Macht, Karl Masner, Alois Riegl, Franz Ritter, Wilhelm Freiherrn v. Weckbecker, Hugo Wittman unter der Redaktion von Eduard Leisching. 1898. (Artaria & Co.)

Altorientalische Teppiche. Im Anschluß an das in den Jahren 1892 bis 1896 vom k. k. Handelsmuseum in Wien veröffentlichte Werk „Orientalische Teppiche“. 4 Lieferungen mit zusammen 25 Tafeln in farbigem Kombinationsdruck. Mit einem Vorwort von A. v. Scala, Einleitung von Wilhelm Bode, Text von Friedrich Sarre. 1906-1908. (Leipzig, Karl V. Hiersemann.)

Preis à Lief. 85 Mk.

Folnesics, Josef und E. W. Braun, Geschichte der k. k. Wiener Porzellan-Manufaktur. 42 Tafeln und 147 Illustrationen im Text. 1907. (K. k. Hof- u. Staatsdruckerei.)

Preis 120 K.

Leisching, Eduard, Zur Geschichte der Wiener Gold- und Silberschmiedekunst. (Separatabdruck aus „Kunst und Kunsthandwerk“, VII. Jahrgang.) 1904. (Artaria & Co.)

— — Die Ausstellung von alten Gold- und Silberschmiedearbeiten im k. k. Österr. Museum. (Separatabdruck aus „Kunst und Kunsthandwerk“, X. Jahrgang.) 1907. (Artaria & Co.)

Dreger, Moritz, Der Gösser Ornat im k. k. Österr. Museum. (Separatabdruck aus „Kunst und Kunsthandwerk“, XI. Jahrgang.) 1908. (Artaria & Co.)

Walcher von Molthein, Alfred, Die deutsche Keramik in der Sammlung Figdor. (Separatabdruck aus „Kunst und Kunsthandwerk“, Jahrg. XII.) 1909. (Artaria & Co.)

Guglia, Eugen, Die Besuchs- und Gelegenheitskarten der Sammlung Figdor. (Separatabdruck aus „Kunst und Kunsthandwerk“, XIV. Jahrgang.) 1911. (Artaria & Co.)

Rosenberg, Marc, Studien über Goldschmiedekunst in der Sammlung Figdor. (Separatabdruck aus „Kunst und Kunsthandwerk,“ XIV. Jahrgang.) 1911. (Artaria & Co.)

Leisching, Eduard, „Theresianischer und Josefinischer Stil“. (Separatabdruck aus „Kunst und Kunsthandwerk“, XV. Jahrgang.) 1912.