The Project Gutenberg eBook of Good housing that pays

This ebook is for the use of anyone anywhere in the United States and most other parts of the world at no cost and with almost no restrictions whatsoever. You may copy it, give it away or re-use it under the terms of the Project Gutenberg License included with this ebook or online at www.www.moredirect.org. If you are not located in the United States, you will have to check the laws of the country where you are located before using this eBook.

Title: Good housing that pays

A study of the aims and the accomplishment of the Octavia Hill Association, 1896-1917

Author: Fullerton L. Waldo

Illustrator: John Singer Sargent

Release date: February 18, 2023 [eBook #70068]

Language: English

Original publication: United States: The Harper press, 1917

Credits: Richard Tonsing and the Online Distributed Proofreading Team at https://www.pgdp.net (This file was produced from images generously made available by The Internet Archive)

*** START OF THE PROJECT GUTENBERG EBOOK GOOD HOUSING THAT PAYS ***

Transcriber’s Note:

The cover image was created by the transcriber and is placed in the public domain.

Octavia Hill From a Painting by Sargent

GOOD HOUSING THAT PAYS
A STUDY OF THE AIMS AND THE ACCOMPLISHMENT OF THE
OCTAVIA HILL ASSOCIATION
1896–1917

By
FULLERTON L. WALDO
Philadelphia:
THE HARPER PRESS
1012–20 Chancellor Street
1917
Copyright 1917
by
Harper Printing Company
PRINTED IN THE UNITED STATES

TABLE OF CONTENTS

I
Page
Foreword 7
   
II
Octavia Hill 11
   
III
The Association 21
   
IV
Days Afield 77
   
V
Does it Pay? 103
   
VI
Appendices 111–121
   
Index 123

LIST OF ILLUSTRATIONS

Page
Portrait of Octavia Hill Frontispiece
A court improved 20
Calling for a change 23
Montrose Street 29
Casa Ravello 35
Monroe Street 41
Workman Place 45
Workman Place—Interior view of yard 47
Interior view of Workman Place 49
East Rittenhouse St., Germantown 53
East Rittenhouse St., rear, after improvement 55
New Houses—East Rittenhouse St. property 57
Plan of dwellings for the Philadelphia Model Homes Company 61
Plans of Richmond Houses 62–64
Houses of the Richmond Group—Playground in the rear 67
Gaul St. houses, Richmond Group 69
Chart showing the increase in the number of properties owned by the Octavia Hill Association from 1896 to 1915 73
Philadelphia homes altered to tenement houses 79
Franklin Court before renovation 87
Franklin Court after renovation 89
Court of North Third St. property before renovation 97
Court of North Third St. property after renovation 99
7

I
FOREWORD

Philadelphia is called the City of Homes with good reason. Come into her ample confines from any point you please and you see row upon row of little two-story, stone-stepped houses of red brick, perhaps with a grass-plot front or rear, shade trees in a singular variety, and a certain distinctive contentment and prosperity in the very air above the myriad simmering chimneys.

For all her malodorous misgovernment of time past, whose survivals are being eradicated step by step, with a long stride forward for each disheartening setback, it is a crowning glory of Philadelphia that thousands upon thousands of these little houses have held their own all these years, instead of the teeming, noisome rookeries that are the bane of many another metropolis.

A million people—more than half the population—live in single dwellings.

There are tenements, of recent origin: there is in prospect a tenement problem. But the satisfaction of the developed instinct of the home-builders and housekeepers of Philadelphia does not lie in the direction of the sky-scraping multiple dwelling, which replaces a front porch with a fire-escape, makes a box of geraniums or a rubber-plant do duty for a garden, festoons the vista between towering walls with “the short and simple flannels of the poor,” and suspends the growing child like Mahomet’s coffin half-way between a clouded heaven of grimy skylight or gravelled roof and the cluttered inferno of the pavement far below.

Philadelphia families, accustomed to think of health and comfort largely in terms of the upgrowing generation, prefer privacy to promiscuity, and love their own vine and fig-tree, rising from the ground level, with the tenacious affection that attaches to a patriarchal inheritance. Where the individual home is an impossible luxury, the multiple dwelling that is reared must recognize the right of the family to every procurable blessing and convenience of the single house.

8The pages that follow describe the effort of a thoughtful group of Philadelphians to provide cleanly homes and a healthy environment for families in modest circumstances or in self-respecting poverty. This effort—now twenty-one years old—has outgrown the stage of experiment, but it never will deny new light nor wholly abandon, however it may adapt, the ideals that are Octavia Hill’s own spiritual legacy. Who this great and good woman was and what she did for humanity are explained in the opening chapter. The life-story of the work in Philadelphia that perpetuates her name and her influence is next set forth. The reader is then taken into the places where the Association has labored to clean out and to build up in order that sun and air and running water may perform their medicinal offices for body and soul together; that germs and vermin may be routed with the dirt that breeds them; that babies may have a chance to grow into decent and useful citizens; that a sense of neighborliness and interdependence may be fostered even among those whose nationality, religion and language are diverse.

From first to last this is an enterprise of business, and not of charitable dole. We therefore are given to see the “friendly rent-collector” going from door to door, gently but firmly insisting upon payment when the stipulated sum falls due. We find her lending an ear as “guide, philosopher and friend” to a wide category of troubles great and small—none too large and none too minute for her fearless and sympathetic consideration. She does not give alms. She makes no vague and lavish promises of benefits to fall like manna from the skies. She bestows aid upon those who help themselves. She is a walking delegate, not of insurrection and discontent but of courage and self-respect, and the inculcation of thrift and cleanliness and personal responsibility.

We are taken on his rounds with the Superintendent, whose function is the oversight of the work of tearing down and building up, of constructing and of reconstructing, in all its phases. We see that a great deal of the effort of the bricklayer and the carpenter, the plasterer and the plumber, under this shrewd and constant oversight goes to the rebuilding of old houses, and the adaptation of decadent dwellings to the modern advantage 9of those who have suffered under conscienceless and grinding owners, mindful of profit only.

The work of the Association in the capacity of agent for properties it does not hold is set forth, and the question of the worth-whileness of the undertaking is finally considered.

The writer has been aided without stint at every turn by those whose names appear in the text, and whose self-effacement precludes a proper acknowledgment of their help. He will remember always the mothers and fathers and children met in the course of his social exploration from house to house. He has merely written this little book: they have been the making of it.

Philadelphia,
September 1, 1917
11

II
OCTAVIA HILL

December 3, 1838–August 13, 1912.
“Let us be gentle, because we know so little.”
—Letter to my Fellow-Workers, 1879.

“But, if you let one touch of terror dim your sight, and flinch before the most terrible upheaval of rampant force, or threat; if, for popular favor, or seat at board, or success on platform, you hesitate to speak what you know to be true, then shall your cowardice and your ambition be indeed answerable for consequences which you little dream of.”

—Ibid, 1889.

Many a Browning Society has little to do with Browning, and many a reading circle takes Shakespeare’s name in vain: but in the case of the Octavia Hill Association there is so close a correspondence between the work and the practical idealism of the woman whose name it bears that a study of her career of service to humanity in England and thus throughout the world sheds light upon the organized and incorporated effort in Philadelphia.

Octavia Hill was the eighth daughter among eleven children of James Hill of Peterborough. Her mother was the third wife of Mr. Hill, who inherited his father’s successful business as corn-merchant and upon the proceeds came to grief as a banker. Altruist, reformer and book-lover, the financial panics of 1825 and 1840 were too much for him. Upon his mental and physical collapse, Octavia’s mother took her daughters to a cottage at Finchley, provided by her father, Dr. Southwood Smith, the noted sanitarian.

When Octavia was thirteen, her mother removed to London to become manager of a Guild for the employment of women. One of the workers at the Guild lent Octavia books and pamphlets on the life of the poor, which so greatly depressed her that “she began to think that all laughter or amusement was wicked.”

12But she was cured of that delusion when she was given an active part in the work of the Guild, and found how necessary fun and frolic are to relieve the monotony of working lives.

The little Octavia was put in charge of a work-room in which girls of about her own age made toys. Since she was poor herself, she realized to the full their lives of drudgery and hardship, and she did all she could to make them happy. Some years later she wrote of this period: “We were so very, very poor, and home was like a little raft in a dark storm, where the wonder every day was whether we could live through it; and now the sea looks calm, even if there are waves; and we have leisure to look at the little boat in which we sail. I wonder if it will ever be painted with high colors.”

It was at about this time that Octavia asked Ruskin to teach her drawing; and his assent brought a new and a constraining influence to bear on all her life. “I would give years,” she wrote after the meeting, “if I could bring to Ruskin ‘the peace which passeth all understanding.’” Ruskin told her she was “far more accurate” than any of his college pupils. No wonder Ruskin, the artist and ameliorist at once, found her an apt pupil, taking fire from the gleam of his own restless inspiration.

An address by Kingsley, delivered before an association of women created to promote sanitary reform, helped Octavia, at twenty, to visualize her objective. Kingsley adverted to the fact that small houses were passing more and more into the possession of individuals, and declared that legislation must recognize the fact. “He was not going into the question here; it would have to be attended to, but it seemed a great way off. Therefore he hoped women would go, not only to the occupiers, but to the possessors of the house, and influence people of ‘our own class.’”

In this, her summary of the speaker’s somewhat vague and not over-optimistic conclusions with regard to the possibility of legislative action, Octavia seems to be feeling a challenge to the deepest in her nature, and to a maturing if not a finally fixed conviction.

At the end of 1860, just after Octavia’s twenty-second birthday, came an event of moment—one of the great crises in her life, her biographer styles it—in the removal to 14 Nottingham 13Place. She arranged to have poor women come to the house weekly to sew. One night a woman fainted, and Miss Hill’s sympathetic inquiry elicited the fact that she had not slept the previous night; she had been washing clothes and rocking the baby’s cradle at the same time with her foot.

Miss Hill called at the poor woman’s home next day, and found that it was a damp, unsanitary kitchen.

She then tried to find other and better quarters, but there was no place where they would take the children. She was given in her quest to realize that at her very door there were squalid, teeming homes like those from which the little toy-workers came; and she brooded upon the sorrowful fact.

Under the cloud she came to Ruskin to bring him some of her drawings. She found him in a pessimistic frame of mind.

“I paint, take my mother for a drive, dine with friends, or answer these correspondents,” he said, as he pulled out some letters from his pocket, “but one longs to be doing something more satisfying.”

“Most of us feel like that at times,” ventured the devoted pupil.

“Well, what would you like to be doing?” was Ruskin’s reply.

“Something to provide better homes for the poor,” was the girl’s answer.

Ruskin wheeled sharply about in his chair.

“Have you a business plan?” was his challenge.

Then and there Octavia Hill’s life-work was born.

Ruskin told her he had no time to attend to the details of management as landlord, but he said he would buy a tenement house if she would run it for him.

He wanted five per cent. on his investment. He didn’t care for the money, he said, but he thought others would be far more likely to follow the example set if the enterprise were put on a business basis from the start.

“Who will ever hear of what I do?” exclaimed Octavia.

But she entered whole-heartedly into the fulfilment of the suggestion, and said she would do her best to make the scheme pay.

Then began the long, long search for a house, with a garden, where she might create modest and wholesome apartments for 14the poor. Landlords and agents as soon as they learned what she was after interposed all manner of objections.

In answer to one of these heartless rebuffs Octavia exclaimed: “Where, then, are the poor to live?”

“I don’t know,” said the agent. “I only know they’ve got to keep away from the St. John’s Wood Estate.”

In the spring of 1865, she was able to announce triumphantly that Ruskin had bought for her, for a term of fifty-six years, three houses in a court close by. The tenants came with the houses. She had schemes for the recreation of the children, and she meant to secure a playground for them. “The plan promises to pay; but of this I say very little; so very much depends on management, and the possibility of avoiding bad debts.” To Mrs. Shaen, wife of the lawyer who negotiated the sale, she wrote presently: “The money part is very regular and simple, just so much paid into Ruskin’s bank each quarter; but to me the work is of engrossing interest. We have three houses, each with six rooms; and we have managed gradually to get the people to take two rooms, in many cases.” The garden had come with Ruskin’s enthusiastic purchase of six more houses; and the cup of the busy landlady’s satisfaction is filled to overflowing. “The children seem to have so few joys, and they spring to meet any suggestion of employment with such eagerness, instead of fighting and sitting in the gutter, with dirty faces and listless, vacant expression. I found an eager little crowd threading beads last time I was in the playground. We hope to get some tiny gardens there; and Ruskin has promised some seats. I hope to teach them to draw a little; singing we have already introduced. On the whole, I am so thankful, so glad, so hopeful in it all; and, when I remember the old days when I seemed so powerless, I am almost awed.”

Here we see in embryo several present day social movements of wide outreach, all at once:—the suggestion and direction of children’s games; the cultivation of home and school gardens; community singing.

The new owner found the houses occupied—to quote her own words—“by a desperate and forlorn set of people; wild, dirty, violent, ignorant as ever I have seen.”

15“I worked on quite alone about it,” she tells us, “preferring power and responsibility and work, to committees, and their slow, dull movements.”

But as soon as she let her friends know what she was doing, they rallied in force to her assistance.

Presently in the crowding multiplicity of detail her life became, she tells us, “a fight for mere existence. References, notices, rents, repairs, the dry necessary matters of business, take up almost all time and thought; only”—and here comes the saving clause—“as, after all, we are human beings, and not machines, people round, and all we see and hear, leave a kind of mark on us; an impression of awe, or pity and wonder, or sometimes love.”

“Here I am,” she writes in another letter of about the same date, “head and ears deep in notices about dustmen, requests for lawyers to send accounts, etc., etc.... I’ve just come in from a round of visits to the nine houses; and somehow it’s been a day of small worries about all sorts of repairs, and things of that kind. It is only when the detail is really managed on as great principles as the whole plan, that a work becomes really good.” That last sentence holds the vital germ of Octavia Hill’s own philosophy, living on in the work of the Association that bears her name.

Instead of giving alms she gave herself. The student of her work cannot fail to note how sedulously she refrained from handing out money when that would have been the easiest thing to do. In 1869 she had read a paper before the Social Science Association on “The Importance of Aiding the Poor Without Alms-giving,” and on this point she was obdurate. Even her strong champion Ruskin was unwilling to go all the way with her in this policy, and he shrank from contact with the ugliness that she met to give it battle day after day.

The Artisans’ Dwelling Act in 1875 was a great parliamentary victory for housing reform, and it was in large part Miss Hill’s victory. Moreover, the Committee which investigated the operation of the Act five years later owed much to Miss Hill’s continued cooperation. This is the period of the specialized effort of Miss Hill in behalf of Open Spaces. When the bill for the artisans’ houses came up for its second reading in the House 16Miss Hill was present, tremulously eager of course to behold its reception and to know its fate. Suddenly, to her intense gratification, a speaker brought forward an article she had written for Macmillan’s Magazine.

“Instead of quoting dry facts and figures, he read aloud from it the description of the wonderful delight it gave me to see the courts laid open to the light and air.”

It may be remarked that no compilation of facts and figures will ever convey a fair idea of the work of Miss Hill or the work of the Octavia Hill Association.

By 1877 Miss Hill’s work had grown till it concerned the welfare of 3,500 tenants and the prudent husbandry of some $200,000 in trust funds. Lord Pembroke gave Miss Hill $30,000 to buy houses, and paid a worker. Then she had to go away to rest, and the years from 1878 to 1880 were spent chiefly in travel, that took her to the Levant, though she kept in contact with her ruling passion by intimate and affectionate correspondence.

Upon her final return she was asked by the Ecclesiastical Commissioners to undertake the management of much of their property in Southwark. She accepted the charge. She began the successful movement which lasted six years, from 1883 to 1889, to add Parliament Hill, and a tract adjoining, to Hampstead Heath. This achievement must stand among her greatest benefactions to humanity. It meant obtaining $1,500,000 by private gift and municipal appropriation, and not merely saving a great playground of the poor but doubling its area.

She took charge of forty-eight houses in Deptford, in South London, in 1884, and in 1885 accepted the responsibility for seventy-eight more in the same region. In 1887 the number of tenants had increased to 5,000. The Red Cross Cottages and Garden in Southwark opened in June of this year are salient examples of Miss Hill’s magic wand in ousting ugliness and creating graciousness and beauty in its place. The hall, designed for music and other neighborhood entertainment, has unusual decorations by Walter Crane, representing just such actions of peaceful heroism as any one of us, at any time, might be called on to perform. The first picture was that of Alice Ayres, a servant girl, who saved children from a fire in Southwark. Since the 17heroine came from their own walk in life, and was known to some of them, the tenants felt a living link of interest with the painting.

The burden of the Deptford Cottages was progressively taken over by an enlarging number of assistants. Though many of these were volunteers, since Miss Hill never surrendered her belief in the system that brought women of refinement and leisure into contact with those whose lot was toiling poverty, the desirability of the service of professional supervisors was recognized, and over each group of houses as served by the volunteer assistants there was set a paid worker to direct the collection of the rents and all the diversified effort for the welfare of the tenants.

After a time these head women and their charges, while they never ceased to look to Miss Hill for guidance and inspiration, became more and more independent of her actual oversight, and as they gained confidence and knowledge the work became progressively decentralized.

Miss Hill was one of the pillars of the Kyrle Society, created by her sister Miranda, which sought to bring beauty into the lives of the poor, to secure open spaces, and to convert city burial grounds in congested areas to the uses of the living. She was a prime mover in the Charity Organization Society, earnestly striving to keep before that body the paramount importance of personality in charity, and the influence of enthusiastic and warmhearted individual effort for individuals. She was a member of the Women’s University Settlement in Blackfriars’ Road. She was one of the founders of the National Trust for Places of Historic Interest or Natural Beauty. She was a member of the Royal Commission on the Poor Laws. She saved land along the banks of the River Wandle from desecration, for the perennial joy of the poor. After her “Homes of the London Poor” had been translated into German by Princess Alice, the Octavia Hill Verein was formed in Berlin. Edinburgh, Glasgow and Dundee took counsel with her, and installed her methods in groups of houses municipally controlled. The housing system in Amsterdam was influenced by her work, and traces of it are to be found in Sweden. Students of her methods came from near and far to be instructed. The effort of such women as Ellen Collins and 18Josephine Shaw Lowell in New York gladly acknowledged the impress of Miss Hill’s ideals.

Aside from her personal correspondence, the record of beneficent activity is to be found in her two volumes, “Homes of the London Poor,” and “Our Common Land,” and in the series of annual “Letters to My Fellow-workers,” privately circulated, which began in 1873 and continued until December, 1911.

“The main tone of action,” she affirms, in “Homes of the London Poor,” “must be severe. There is much of rebuke and repression needed, although a deep and silent under-current of sympathy and pity may flow beneath. If the rent is not ready, notice to quit must be served.”

An all-important factor is the “friendly rent-collector” who, while firm in her insistence upon prompt payment of the rent, forms a living link of sympathy and perception between the landlord or landlady and the tenant, and among the tenants themselves. The thorough training of this collector is essential, and for this training Miss Hill left minute prescriptions.

In her Letter for 1879, Miss Hill says,—and she repeats the passage in the Letter for 1896,—“All the smoky chimneys, broken water-pipes, tiresome neighbors, drunken husbands, death, disease, poverty, sin, call not only for your sympathy but for your action.”

“You cannot deal with the people and their houses separately. The principle on which the whole work rests, is that the inhabitants and their surroundings must be improved together,” she writes in “Homes of the London Poor.”

Miss Hill wanted trees planted and vines trained against the houses, and gardens wherever possible. She cites with approval the example of children who thrust flowers in a crevice in the wall, to make it, as they said, “like it was the day we had the May-pole.” “A bunch of flowers brought on purpose,” is mentioned among the gifts that are not destructive of independence, and that assist what she beautifully calls the “return to the old fellowship between rich and poor.” “She takes them flowers” is part of her commendation of one of her friends who went tactfully among her people. In a touching Letter she speaks of 19widows who came home from a country outing with wild flowers to surprise the children when they woke in the morning.

She pleads for organized, directed play, in behalf of children “wholly ignorant of games,” who “have hardly self-control enough to play at any which have an object or require effort.” She holds that there must be play supervisors for a playground she has started, and “these I hope to find more and more.”

In one of the Letters she asks for public music definitely planned and schooled. “I hope that we may have a more organized body of singers, led by a conductor whom they know, and ready to sing in out-of-the-way places.” In another Letter she refers to the value of uplifting music on Sundays, and of a violin class.

Of a cadet corps for the boys she heartily approved. “There is no organization which I have found influence so powerfully for good the boys in such a neighborhood.” The Boy Scouts of today would have been to her a cause for devout thanksgiving.

In the Letter for 1907 she gives it as her belief that the work of agency in the management of properties for others is destined to expand significantly. This, of course, has become a most important part of the work of the Octavia Hill Association.

With each of the Letters there appears a financial balancesheet reduced to simplest terms of receipts and expenditure. Behind these items, she declares, are “trembling hopes and fears about each individual.”

The book “Our Common Land” sets forth chiefly Miss Hill’s views on the vital issue of open spaces,—“open air sitting-rooms” she called them. She yearns to bring the people at large into the air and the light of day. The two great wants in the life of the poor are the want of space and the want of beauty. She has much to say of the mortmain of the city graveyard that keeps the living out of an available breathing space.

The last decade of Miss Hill’s life saw the fruition of the years of anxiety and uncertainty, but there was no cessation of labor. “Up to within three days of her death,” writes her biographer, “she continued to see her friends and fellow-workers, using to the utmost her failing strength, and endeavoring to arrange for the efficient carrying on of the many works in which she took 20such a keen interest.” When they told her that the end must be, she said, thinking only of her work, “I might have given it a few more touches, but I think it is nearly all planned now, very well.” On the night of August 13, 1912, in the words of her beloved Chaucer, her “spirit changed house.”

“O human soul! as long as thou canst so
Set up a mark of everlasting light
Above the howling senses’ ebb and flow,
To cheer thee, and to right thee if thou roam—
Not with lost toil thou labourest through the night!
Thou mak’st the heaven thou hop’st indeed thy home.”

A Court Improved.

21

III
THE ASSOCIATION

Any enterprise of social amelioration has its doubting Thomases and its Job’s comforters to contend with at the beginning, and the Octavia Hill Association has not been exempt from the need of explaining why it should exist, and why good citizens should uphold its ministration.

There are terrible homes for the underworld of Vienna called “Massenhotels.” It is a common experience to find twenty or thirty people of both sexes living in one room, each occupant paying ten cents a week for a quarter of a bed. Sometimes the room is windowless. Disease is rife, and the stench of the filthy bodies and the filthy clothing that clutters the rotting walls is intolerable.

“Thank God we have nothing like that here in Philadelphia!” exclaimed a good woman, throwing up her hands at this description. “It’s too bad that they can’t have the Octavia Hill Association in cities that need it more.”

But these festering, sweltering Poles, Jews, Slovaks and Croats of darkest Vienna are the submerged ones of a capital whose municipal motto is “On with the Dance;” whose name is the synonym of gayety and folly. These miserable folk, who call a little thin potato soup and a thimbleful of bad brandy a square meal, may have reached a lower stratum of existence than most Americans have seen. Does that excuse a complacency that takes it for granted that whatever is out of sight under the lid in Philadelphia, San Francisco, Chicago or New Orleans is all right?

Philadelphia has a Civic Club that has been a blessing to the city in its work for the reign of law, through the virtuous energizing of good women. It has battled for everything that makes for better conditions of housing and of living in a city. The list of good works it has brought out of dreamland into the light of common day is as diversified as the life of the great city 22which the persistent effort of this Club has sweetened and ennobled. It was but natural that the Octavia Hill Association should have its genesis among friends in council who met in the hospitable quarters of the Club in the winter and spring of 1895–96 to study the large and many-angled problem of fair play for the metropolitan poor.

There had been previous efforts, such as that of the Benevolent Building Association of 1865, to provide bright and cleanly dwellings for families of limited earning capacity. In 1885 a lending library for children, in the heart of a negro district at Seventh and St. Mary Streets, brought home to its benevolent promoters the need of a new and improved order of living in the hovels where the books were circulated. It was plain that a transformation was not to be wrought merely by the magic of good books. People must take hold of people; life must come into stimulating contact with life; the socially uplifted must discover that the economically downtrodden were their neighbors. Mr. Theodore Starr had already made an inspiring beginning near at hand. He had bought and razed horrid eyesores of dwellings and had put up in their place rows of well-built houses that appealed to a better class of tenants. The result of his enterprise was felt throughout the region. With the name of Theodore Starr, honoris causa, must be associated those of Edith Wright Gifford and Hannah Fox. The latter not merely bought and improved dwellings in this St. Mary Street district but personally undertook their management upon the successful plan of Octavia Hill which she so intimately understood. When she had studied the local problem in its practical aspects for several years, she met the beloved, untiring altruist, Mrs. William F. Jenks and others in the conferences mentioned, and in these sessions a report was discussed and prepared. They then went before the Civic Club with the report, and asked for its sanction and its furtherance. The Civic Club responded instantly and whole-heartedly, and the Octavia Hill Association was formed as an independent organization, to have for its specialized concern the provision of homes of the right sort, for families of modest means.

23

Calling for a Change.

25Cooperation became corporation, under the laws of Pennsylvania, June 25, 1896. Nathaniel B. Crenshaw was the first President; Frank H. Taylor was chosen Treasurer, and Mrs. Thomas S. Kirkbride became Secretary. The original Board of Directors comprised Miss Fox, Mr. Crenshaw, Mrs. Jenks, Mrs. Kirkbride, and Mr. Taylor.

Mrs. Kirkbride—a tower of strength and of consecrated purpose in this work as in all movements for the greater good of the greater number in Philadelphia—expressed so perfectly the purpose of the new organization in her first report as secretary, (January 1, 1897) that we cannot do better than to use her statement here:

“The object of the Civic Club,” she wrote, “is ‘to promote by education and active cooperation a higher public spirit and a better social order.’ The Octavia Hill Association, although an independent organization, works for the same higher spirit and better order, on its own definite and restricted, but most important, lines. It sees in insanitary, dilapidated, and overcrowded dwellings, influences which lower the moral and the physical health of Philadelphia. Against these evil influences it aims to enlist the cooperation of citizens who, well housed themselves, desire the same advantage for less fortunate Philadelphians. This cooperation is solicited on strict business conditions, and it is believed that a safe investment of capital and a fair rate of interest are offered.”

This first report announced that the modus operandi of the Association would be “to refit old properties and small houses, first of all putting in modern plumbing and so far as possible removing all unhealthful surroundings.” The report then described that ideal of the community of interest between landlord and tenant, realized through the friendly rent-collector as the intermediary, which is the central and the most inspiring feature of the personal phase of the undertaking. It was also announced that the Association stood ready to assume the kindly oversight of private property, to buy houses offered at a figure which would not be prohibitive of moderately profitable purchase and renovation, and to issue stock to subscribers. “The Association’s strongest claim upon the confidence of the community,” it was declared, “lies in the fact that its philanthropic interests are 26founded on true business principles; its business interests upon the principles of a sound philanthropy.”

Upon this platform devised twenty-one years ago, the Association has stood, and continues to stand.

The stock company, empowered by its charter to hold, sell and lease real estate, fixed the par value of the stock at the low figure of $25, so that a great many persons might have a share and an active sustaining interest therewith. The distribution of profits would thus be effected easily, in the form of dividends on the capital stock. These dividends for the first two years were 4½ per cent. per annum; the annual dividend since that time has been 4 per cent. At the end of 1916 the outstanding capital stock was $221,475, with an authorized capital of $300,000. There was a surplus of about $16,000, and the usual dividend of 4 per cent. was declared, payable February 1, 1917.

At the time of its incorporation as a stock company, the Association had a capital of $20,000. Many of the original group of stockholders were members of the Civic Club, who not merely subscribed but induced their friends to subscribe, thus giving an effectual assistance in the expansion of the Association that is beyond evaluation. At a special meeting in November, 1898, it was voted to increase the capital stock to $50,000. At the same meeting the number of directors was enlarged from five to seven, and Miss Helen L. Parrish and R. Francis Wood were added to the Board. In 1911, Miss Parrish became the secretary. She had studied the work of Miss Hill in London at first hand for some months, so that her experience has created a personal link across the seas between the work of the altruist in London and that of the Association here.

Again and again, since the original purchases were made, individual members of the Board of Directors have assumed the management of properties, and have found a keen personal satisfaction in collecting the rents themselves and thus obtaining a first hand insight into the work that could be obtained in no other way. They have accordingly brought to the council-table a practical and detailed knowledge such as few philanthropic administrators have gained from within. Each of the directors is in active service on one of the Committees, which are those of 27finance, new property, office-administration and rent-collecting, construction, inspection. As the work grew out of the day of small things, the increasing burden of executive supervision demanded the whole time of a personal representative of the Board, and in 1908 a superintendent was employed. Frederick C. Feld, a man of tact, enthusiasm and technical knowledge, now fills this all-important office. Miss Garrison, the chief rent-collector, has two regular and several volunteer assistants, and brings to her work a rare combination of sympathetic interest and the requisite firmness with the saving sense of humor wherein philanthropists and reformers are so often—rightly or wrongly—declared deficient.

The Association gladly accepts intelligent volunteer assistance, but it believes also in the engagement of salaried employees who follow the assured routine of professional occupation. There are a bookkeeper, a stenographer, who has charge of the office, and a varying number of mechanics in the jurisdiction of the superintendent. When the Association began its work, the collectors depended for their stipend upon a commission of 5 per cent. from the rents collected. The clerical work was distributed among the directors and the treasurer’s office. The first salaried employee was engaged in 1901; the employment of the bookkeeper dates from 1907. It will be seen that the business affairs of the Association rest upon a foundation not dependent on the continued proffer of unremunerated aid. This is the basis which seems best, if the system is to be universally applied and standardized. The problems of housing and sanitation are day-in and day-out problems that require a constant vigilance and not a divided interest or a sporadic enthusiasm that can detach itself at pleasure from the object of its concern. The work of volunteers is by no means undervalued in its unselfish service to this Association. They have done, and are doing, admirable work. It is a great relief to these volunteers themselves to feel that if they must miss certain times and seasons, or withdraw altogether, the bottom will not fall out of the beneficent enterprise with which they have been identified.

Furthermore, if the Association is understood to be an honest and legitimate competitor in the open market with other real 28estate operators whose business is plain business, with no tincture of philanthropy, it does not seem expedient to rely upon gratuitous service in work for which the ordinary operator must carry a pay-roll. Such a procedure, if the influence of an object-lesson is sought, does not convince the dealer who is without philanthropic assistance that he can live up to the standards of decency, comfort, and cheapness his benevolent rival sets and still make a satisfactory profit.

It does not fall within the scope of this discussion to follow from street to street or from one congested area to another each of the separate acquisitions in the long list of purchases and leases which the Association in the twenty-one years of its history has made, or to recapitulate all the managerial responsibilities which, to the gratification of the owners, it has from time to time assumed. But to the acquisition and development of certain typical properties we may profitably devote our attention, as symptomatic of what has taken place with the entire number. We must bear in mind, moreover, the wise principles of selection that have guided the Association in deciding where to employ its little army of busy hands in tearing down and building up, in redeeming foulness to fairness, in letting air and light enter where these had long been strangers.

The Association has stipulated that the properties it took over should be in need of reconstruction and improvement; that the price should be sufficiently low to allow of the necessary repairs and still leave a fair return on the sum invested; that the group dealt with should be large enough to present a conspicuous object-lesson to the community. Many a neighborhood must be—and is—a little ashamed to look itself in the face, after regarding the spick-and-span aspect of the Association improvement adjoining its unseemliness.

In the properties acquired by the Association in the older parts of the city, these three types, speaking generally, are to be distinguished—the house that was built for one family and is now occupied by several families; the small, one family house on the narrow street or alley, having a yard of its own; the three-room rear dwelling, set in rows of from two to perhaps ten houses behind a house fronting upon a recognized thoroughfare. With the latter type there may be two facing rows, at the rear of two or three front lots. Or there may be a courtyard built round three sides. In the control of the Association as agent are several model tenements. It has erected a few small new houses, and will build more of these in future, to an indeterminate extent. It has built one large group of model houses for one or two families.

29

Montrose Street. Typical Group in Congested Italian Quarter. Brick Houses in Front Replaced Frame Houses Beyond Repair. Before Renovation Tenants Were Dependent on Open Privy Vaults With Insufficient Water Supply and the Extreme Conditions of Neglect and Disrepute.

31If the people living in an old house acquired by the Association are law-abiding and respectable they are not disturbed. Sometimes it is necessary to oust occupants whose room proves better than their company.

In July, 1896, title was taken to the first of its properties by the Association—five houses near Seventh and South Streets. Four were small houses, one was a several-family dwelling. These properties, after being set in order, were profitably managed, and it would have been possible to pay a dividend, but it was decided that it was better business for the first year to establish a surplus with the proceeds.

In May, 1897, eight small houses on Fairhill Street and one on Lombard were added to the Association’s property. The Fairhill Street houses were in a colored neighborhood. In February, 1899, seventeen houses on League Street came into the possession of the Association. These houses needed and promptly received new plaster, new woodwork and paint. The Association had League Street put on the city plan, and obtained the introduction of an ordinance to secure proper drainage. As a result of its purchase a kindergarten was started, with an average attendance of thirty pupils, for the swarms of children in the neighborhood. It was conducted by the Social Science Department of the Civic Club, with which the name of Mrs. Edward Longstreth, a devoted servant of the public weal, will ever be associated. Fairhill Street was repaved in 1899, no doubt to keep pace with the new and progressive ownership of the eight houses, and the water supply was increased by new pipe lines. Ten houses of the Theodore Starr Estate—one a large dwelling with eight two-room apartments—were put under Association management in this year.

Miss Parrish has made a study, “The Improvement of a Street,” published as a tract by the Association, which describes 32the League Street development. League Street formerly bore the somewhat significant name of Reckless Street. It is between Front and Water Streets, and many of the men—largely Irish—are boatmen, fishermen on the Delaware, or longshoremen on the wharves. They have long slack seasons when they are exposed to the loafer’s temptation of the gin-mill. In this neighborhood the beautiful little Old Swedes’ Church, built in 1900 on the site of an earlier block-house, is a landmark. In the green God’s acre of the Episcopal sanctuary, with its quaint old parish buildings and the sexton’s house, Alexander Wilson the famous ornithologist lies buried.

But ancient history or present picturesqueness meant little to the brawling population outside the gate of the churchyard, where switching-engines chugged along the docks and factory chimneys clogged the air and iridescent surface drainage meandered from yard to yard and made alleys pestilential. Foul privy-wells undermined the yards and the foundations of the houses; the rafters had in many places rotted away; the cellars were repositories of rubbish.

There was fine raw material here among the boys and men for a hand of guidance and an inspiring personal presence—but most of it was very raw indeed. The drink wrought mischief among the womenfolk too; the children ran at large; the gangs of hoodlum boys played hide-and-seek with the policemen to steal lead pipe, to shatter windows, to break into the vacant houses and despoil them. Six of the houses taken by the Association were unoccupied. Each house was in a deplorable condition.

The expenditure on these houses by the Association averaged $186.

The brickwork had to be painted; plumbing, painting, carpentering and plastering were necessary. At first the tenants were often unruly and irresponsible; fights were of frequent occurrence. Though the rents were low—$6.50 to $10.00 a month—the tenants often fell behind in payment, and there were many unprofitable “unlets.”

But with unwearied patience the Association strove to create among the people in its houses a sense of thrift, of honor, of self-respect, even of community spirit. It did not permit itself to 33be discouraged by backsliding or ungratefulness. It fought on for the sake of the regeneration not merely of seventeen houses but of a community, and in 1905 it was able to offer the remarkable result of $1432.00 paid in rents out of $1445.50 due, with a return of 7½ per cent. on the investment, after paying to the Association a commission of the same percentage on the rents collected. A constant demand was created for the houses. The average period of occupancy of the present tenants is seven years and five months. The average net revenue has been nearly 6 per cent. The result is as forceful evidence as could be presented of the influence of the regular visits of the friendly rent-collectors. The Southwark Settlement—a fine and flourishing organization doing a splendid work near by—grew out of a play room and a Mother’s Club of the Octavia Hill Association. In 1916 the Association bought, under-drained and repaired the five remaining houses of the street.

But the Association did not confine its work within four walls. It took a bare, depressing, ash-heap area 20 by 80 feet, added to it the site of a house pulled down, and filled the vacancy—now known as the Hector McIntosh Playground—with swings, games and a sandpile. An ice-water fountain was placed on the sidewalk. The women said that pitchers which once went out for beer came back after that filled with ice-water instead.

One example of this kind is worth no end of homily. It is an epitome of the successful effort of the Association.

From year to year the list of properties owned, or managed by agency, has lengthened. The Casa Ravello, owned by Dr. George Woodward and operated by the Association, was opened in 1903 for the special benefit of Italians. It stands at the corner of Seventh and Catharine Streets, and right on the corner, in a store-space that could be rented for $40 a month, is a most valuable outpost of the Starr Centre Association which shows poor mothers what to do for their babies. In June, 1917, 219 different babies under two years of age were brought here for consultation. Nearly all were Italians. There were a few Jews and one colored child. “History cards” are kept, and the fluctuation of weight is traced by a graphic curve. There are home visits by nurses, and two doctors keep office-hours.

34The Casa Ravello has four stories of brick, the windows made attractive by their gay boxes of geraniums, and air and light are at every window through the liberal space the courtyard leaves. The iron stairways come up through fire-towers, and there are netted verandahs safe and roomy for the youngsters of the family and the mothers resting or at work. On the roof in July and August is a playground, and a summer school for the children. Of these there are 79 in the building, and in midsummer, 1917, there was an average attendance of 45 in the school. They wear little red tags with their names, that the stranger may distinguish tiny black-eyed Domenico from the toddling frolicsome Bettina.

The mothers use the roof too—for gossiping, embroidery, for hanging clothes, for the baby’s nap in a preferred location of the hammock. There is a swing for larger children, and—safely shut away between-whiles in a cement-floored bin—there is a piano for the dance-lovers of Italy, great and small. All this for thirty-four families, at a rate which at its maximum is $14 for one of the three four-roomed apartments that boast a bath-tub.

On September 22, 1903, Emily W. Dinwiddie, who had been a City Inspector of the Tenement House Department of New York, began an investigation in behalf of the Association and under its direction,—an investigation that lasted nearly a year. The cost was defrayed by special contributions. It resulted in a report which is in all ways a model for the emulation of others engaged in social research. The Bureau of Building Inspection and the Board of Health granted her every facility and permitted her freely to accompany their inspectors. Her report, entitled “Housing Conditions in Philadelphia,” embraced the results of her thorough personal examination of 600 houses. For every dwelling-place investigated a card of minutely particularized details was filled out, of which facsimiles are presented, together with telling pictures, maps, and tables of simple and explicit arrangement giving according to nationality the statistics of every phase of the living conditions ascertained.

Miss Hannah Fox was chairman of the directing and assisting committee of the Association; the other members were Dr. Frances C. Van Gasken, Helen L. Parrish, Robert P. Shick, Dr. George Woodward, E. Spencer Miller. Lawrence Veiller of New York, with his wide official experience of tenement problems, was of much assistance.

35

Italian Tenement Known as Casa Ravello. Thirty Apartments of Two and Four Rooms Each. First Floor Arranged for Stores.

37The three areas studied were distributed and representative. One was the block between Eighth and Ninth Streets, Carpenter and Christian. A second was the segment of North American and of Newmarket Streets lying between Vine and Callowhill. The third took in the block bounded by Sixteenth, Eighteenth, Lombard and Rodman Streets.

Here are some of the things Miss Dinwiddie found:—

“One tenement visited was a three story house, without fire-escapes, containing a grocery store, a fish stand and a meat shop on the first floor. Above in the seventeen living rooms of all kinds—kitchens, bed-rooms and dining rooms—were eight families, consisting of thirty-three persons. A goat was kept in the room back of the grocery, and three dogs upstairs.

“A row of houses faced on an alley whose width varied from three feet two inches to three feet eleven and a half inches.

“Five houses on one court, of which four were occupied, had cellars flooded with sewage from a leaking soil pipe, the foul water standing about a foot deep in all but one of the buildings.... Beds and bedding, said to have been cast aside because someone had died upon them, and it was ‘bad luck’ to use them again, were not infrequently found in cellars.”

In a certain alley “one hydrant was the only fixture for eleven families in ten houses.” A colored woman in one of the foul courts said: “I’m sorry to have you see my house lookin’ dis way, lady, but ’tain’ no use tryin’ to be clean; we ain’t got but one hydrant for dese yere five houses, an’ we ain’ had no water for a week, since de pump busted.”

Animals kept on the premises are a serious evil. In a tenement visited, “two rooms on the top floor were given up to the raising of fowls, and the floors and parts of the walls were covered with filth; in another house the door from the inside cellar stairs was pushed open during an inspection and a goat stalked in; in yet another, chickens were kept in a fenced-up corner of a third story room, used at the same time as a kitchen and a bedroom. Under a shop in one dwelling-house, white mice and rats, 38guinea pigs, rabbits, and dogs were kept for sale. At about the time of the festival of Yom Kippur, many yards and shed rooms in the Russian-Jewish neighborhoods were seen covered with blood and refuse of slaughtered fowls. The worst case found was that of a slaughter house and dwelling in one building. About thirty sheep were kept in the second story, which was reached by an inclined runway from the narrow side alley, giving entrance from the street to the rear of the house. Down stairs a room was used for slaughtering, and from 30 to 100 sheep were killed daily. The butcher and his family lived in the house, having a kitchen on the ground floor and attractively furnished rooms upstairs at the front. There were also dwellings adjoining on every side.”

Travellers in Tibet have described the ridges of filth that accumulate in the middle of village streets and freeze in winter. Tibet is on the other side of the world, and those whose complacency is not to be disturbed like to believe that we have nothing so abhorrent here. But listen to Miss Dinwiddie. “The condition of the sidewalk varies with the seasons. In winter the alleys and parts of the sidewalk are often covered with frozen refuse of various kinds and ice from surface drainage. The writer has seen the occupants of an alley obliged, for several weeks, to climb over a hard frozen mass about two feet high, blocking up the entire outer end of the court. In summer, on the other hand, garbage accumulates rapidly, and the odors from the decomposition of such matter and from the pools of drainage water are offensive. As a visitor from ‘uptown’ remarked while taking an alley picture, ‘If one could photograph the smells, it might be possible to give an idea of this place.’”

Among the heads of the 843 families, there was represented every occupation from that of card-sharp to that of minister or rabbi; in the social strata rag-pickers, scrub-women and organ-grinders were at the bottom, while opticians, pharmacists and machinists stood at the top. Of unskilled laborers the total number showed 39 per cent., and there was an equal proportion of skilled laborers. Commercial pursuits were represented by 16 per cent., and the remaining 6 per cent. followed special occupations. The bankers, musicians, organ-grinders, street cleaners, candy makers and boot-blacks were in all cases Italians; of the 3937 fruit, candy and fish dealers and rag-pickers all but two were Italians. The worst instance of the sweating evil was found in an Italian tailor shop. Laundry work at home was confined to the colored district. Rag-picking (among Italians only), dress making, tailoring, cobbling, cigar making, fish cake making, herb brewing, plain sewing, scissors sharpening and umbrella mending were the other occupations carried on in living rooms. Fruit, vegetables and candy sold by trucksters were often stored in living rooms over night. The fire risk does not need to be emphasized in the case of one house, occupied by two families, in which a marionette show took place nightly on the ground floor, where smoking was permitted. Fish stores, bakeries and dance halls were adjuncts of other crowded dwelling-places.

The families living in apartments paid on the average $5.63 a month for rent; those in one family dwellings paid $10.36—almost twice as much.

In her full and simple suggestions for remedial action, Miss Dinwiddie urged virtually the program of the Octavia Hill Association. There should be strictly enforced regulations concerning congestion, water supply and toilet accommodations, air and light. Cellars and basements must not be used for sleeping purposes, nor should animals be kept and slaughtered on the premises. Ignorance and indifference on the part of landlord and tenant alike, the investigator held, is the great obstacle in the way of reform. The personal worker who will see clearly and report frankly and fearlessly is indispensable. Such workers, it is clear, are provided by the superintendence and the friendly rent-collection of the Octavia Hill Association.

The fruit of Miss Dinwiddie’s long and conscientious labor with the Committee’s cooperation was a comprehensive legislative measure embodying the ten years’ experience of the Association and dealing with the adaptation to the purposes of three or more families of houses originally built for one. An earlier law, of 1895, made the building of tenement houses, as such, so costly that few since that time have been built for families of small incomes. Its present day application is almost wholly to the erection of high-class apartment houses. The new measure prepared and backed by the Association came before the legislature 40of 1905, and the selfish interests that would have suffered by its passage fought it tooth and nail. Undismayed, the Association and its friends rallied and returned to the attack, and in 1907, to their great satisfaction, it became a law. In the meantime, in 1906, two ordinances were put before the city Councils by the Association through its Committee: one providing for underdrainage where a sewer connection was feasible; the other prescribing improved water facilities, for court and alley houses in particular. These ordinances did not pass, but in the agitation of the matters upon which they focussed the attention of the City Fathers and to some extent of the public at large, a useful educational result was reached, for models illustrating the conditions the Association sought to remedy were put on view at Horticultural Hall, meetings were held, and the councilmen were taken to see how the other half lived and to be impressed by the necessity for drastic changes.

When in 1907 the act providing for the licensing and inspection of tenement houses was passed, the Director of Public Health and Charities asked the Association to help him frame the rules to govern the work of the new division of tenement house inspection. The aid of the Association was given without stint, and upon the Committee’s recommendation Miss Caroline Manning was appointed as the first inspector.

It thus appears that the Association was prime mover in bringing the municipal administration to take action for the systematic examination and regulation of living conditions to ensure the health and comfort of the occupants of houses in hitherto neglected areas. Out of this instigation grew, as an arc of an ever-widening circle, the specialized activity of the Philadelphia Housing Commission, now known as the Housing Association.

Delegates from forty social and philanthropic agencies met in the Mayor’s reception room September 9, 1909, and organized the Commission. A particular function of the organization has been to obtain and enforce enlightened and equitable laws, and, with that end in view, to appraise the public of its effort and secure a distributive popular support. The Housing Association is performing a service of inestimable usefulness in its study of the direct relation between an evil domestic environment and the character and physical condition of those who are constantly exposed to it. It receives and acts upon thousands of complaints each year, and carries on extensive and intensive campaigns of public education by literature, illustrated lectures, and exhibits.

41

Monroe Street. A Typical Court After Renovation. Three-Room Houses With Cellar and Separate Toilet. Running Water in Kitchens. Rent $8.00 Per Month.

43Resuming our examination of typical properties in the care of the Octavia Hill Association, we find one of the most inspiring examples in the group of houses at Workman Place.

This large and picturesque court is situated on Front street between Pemberton and Fitzwater. In Colonial days several of the houses belonged to the Mifflin family; later they became part of the Workman estate, and finally Mr. and Mrs. E. W. Clark acquired the group by instalments and turned it over to the Association to manage.

There are twenty-two houses in all, built of red brick. Five of these face on Front Street, and these, with one on Pemberton Street, have several occupants each. Behind the Front Street dwellings, surrounding the ample open space of what was once a large garden, are the remaining houses, in groups, conveying a delightful impression of an island of peace and privacy in the midst of the sweltering sea of humanity in this loud and crowded foreign quarter. In the houses that face on Front Street there are wainscotted halls, carved balustrades and mantelpieces with elaborate designs of ships and grapes and fluting that bespeak the past glories of the more deliberate day of minuet and sedanchair and the soft light of candles. Even the ancient windowpulleys were made of mahogany. One has only to read the itemized list of the household goods owned in 1754 by George Mifflin, Jr., as given in the Pennsylvania Historical Magazine, to realize the difference between that day and the present, wherein the Polish seamstress bends above her work in a room still haunted by the ancestral presences of those who were as deft in turning the heel of a stocking as in pouring tea. In the smaller houses there will be found Irish tenants who survive the Polish invasion of the neighborhood.

On Pemberton Street there are two small vine-clad cottages with “G. M. 1748” set out in black bricks against the red, betokening George Mifflin’s ownership. These houses were doubtless 44occupied by his servants. They are not unlike the little “Letitia Cottage” of Penn in Fairmount Park. The Association set above windows and doorways slight projections that enhance the aspect. Betwixt these cottages an iron gateway admits to the large enclosure shaded by great trees, on which all the tiny gardens of the houses surrounding abut. The base of each tree is rimmed by a seat. There is abundant room for clothes-lines, not infringing on the space for the children’s play. A pavilion is at one side. On the Fitzwater Street exposure is a temporary shelter to impound homeless animals till the S. P. C. A. wagon comes to claim them.

At the corner of Front and Fitzwater Streets, through the generous initiative of a daughter of Mr. and Mrs. Clark, is Workman Place House, a Settlement of such demonstrated value to the region round about that it deserves more than passing mention.

It is conducted by the Alpha Pi Fraternity of young women alumnæ of the Agnes Irwin School. The Matron has taken hundreds of mothers and children of the neighborhood during the summer into the country, which is as novel and startling to many of these people as America was to the sailors of Columbus. The great fact of Fairmount Park itself is news to an incredible number. University of Pennsylvania students have taken the boys to summer camps. There has been supervised play in summer, and in the winter months there is a carefully scheduled and well-attended routine of classes and meetings for young and old. All these people have a racial affiliation with the dance, and even after the Mothers’ meetings in the Good Neighbors’ Club, dancing to the pianola is an exuberantly joyful exercise. Christmas parties are red-letter events. The entire admirable enterprise is sustained by bazaars, sales of old clothing, and gifts in cash and in kind.

The little vegetable and flower gardens at the rear or in the forecourt of each of the Workman Place houses are sources of not inconsiderable pride to the occupants. Anyone who saw the central area before the Association took hold here must be amazed at the transformation. The solid board fences that dissected the space in all directions have been removed, the rubbish has been carted away, wells and cesspools have been filled, and the houses themselves—in a deplorably decrepit state—have been renovated from top to bottom. The generous owners have not sought an income from the property. Any returns have been left in the hands of the Association, as the contracting agency, for improvements or for the acquisition of other houses.

45

Workman Place. Street Side of Small Houses. Built 1748. Supposed to Have Been Servants’ Quarters of the Mifflin Mansion.

47

Workman Place. Interior View of Yards Now Arranged in One Large Open Space With Playground, Sand Piles, Swings, Etc.

49

Interior View of Workman Place, Showing Shelter House and Playground.

51A heartening example of the civic spirit generated in this region by the presence of this great object-lesson of Workman Place under the wise and watchful rule of the Association was the flag-raising that occurred in midsummer, 1917, on the Fitzwater Street side of the courtyard. Benjamin Barton, a resident of the block, went from house to house inducing his neighbors to scrub the steps and the cobbles till they shone with the lustrousness of Spotless Town; then they all, at his suggestion, hung out brave new flags, the eagles of Poland on their red and white field prominent among them. Little Maria Barton, dressed as the Goddess of Liberty, stood on the rear seat of the hard-working Ford car belonging to the Association and released the Star-Spangled Banner over the street, midway of the block. Mr. Barton and others made speeches, and Fitzwater Street is still talking of its great day.

The playground at Workman Place, the use of the roof of the Casa Ravello, the Hector McIntosh Playground at Front and League Streets and playgrounds in Richmond and Germantown in connection with properties about to be described, are noteworthy examples of the manner in which the Association is realizing Octavia Hill’s own insistent prescription of open spaces. The Hector McIntosh Playground, to which we have already referred, carries the name of the devoted second President of the Association. It dates from 1902, when two friends of the Association gave the land. Small as it is, even after the addition of the site of 957 South Front Street, it has played a most useful part in the lives of its patrons, young and old. Stockholders have generously subscribed funds for its maintenance, and during certain summers, in addition to the fun of the swings and games and sandpile, and the work of the morning kindergarten, there has been a series of seven or eight concerts of harp and violin costing a dollar apiece on the average, and bringing out a delighted throng to sing and to dance with the diminutive orchestra. 52The Board of Recreation and the Playground Association, always in sympathy with the objects of the Octavia Hill Association, have liberally cooperated in this work, in such ways as planting trees or providing a teacher.

In January, 1911, the Association was requested by a physician to turn a noisome group of houses, breeding-places of pestilence and notorious hospital-feeders, on East Rittenhouse Street in Germantown, into something that would not be a standing rebuke to the community and the worst possible advertisement of the thriving and progressive suburb. After a meeting at the house of Mrs. Elizabeth Lean Head, residents of Germantown subscribed for stock in the Association to the amount of $20,825, on the understanding that the fund would be wholly devoted to the purpose specified.

The Association thereupon acquired Nos. 523 and 531 to 551 inclusive, with a total frontage of 210 feet on East Rittenhouse Street and a depth of 165 feet. The houses, near the Reading Railroad, were occupied by Italians. There were 25 houses, some of them run-down and filthy beyond the power of words to portray. There was no underdrainage and two hydrants provided all the water there was. Externally there were gaptoothed sections of picket fence flat on the ground or sagging drunkenly; smashed boxes and wrecked barrels were the least, repulsive feature of the promiscuous clutter under the heavyladen clothes-lines. One building, a mere outhouse, rented for 50 cents a month, and its wretched occupant had just been removed in a dying condition from tuberculosis. Within were the old, familiar features of ruin and decay and smells unholy. Three houses were at once torn down. Others were renovated from attic skylight to cellar floor, with the installation of modern toilet facilities; and two new brick buildings—two stories high, well lighted and well ventilated—were built with apartments for 14 families. The two-room apartments rent for $6.50 per month, and the four-room apartments for $11.00. In the entire operation there are quarters for 35 families, and at the rear is a large space available for a general playground and for tenants’ gardens. There was much stone-work, and the difficult site necessitated a great deal of blasting in the solid rock.

53

East Rittenhouse Street, Germantown.

No Supervision on the Part of Owners or Agents Produces These Conditions.

55

East Rittenhouse Street, Rear, After Improvement.

57

New Houses, East Rittenhouse Street Property, Germantown.

Housing Seven Families. Rental, $6.50 for 2–Room Flat, $9.00 for 3–Room Flat, $11.50 for a 4–Room House. Separate Entrance, Toilet, Cellar, Water Supply for Each Family.

59It has not been a triumphant progress from strength to strength with these Germantown houses and their untrained and ignorant Neapolitan and Sicilian occupants. Many of the men are unskilled laborers for the city, content to earn a little and spend the money in long seasons of idleness. Two volunteer rent-collectors, speaking Italian, have been of great assistance, and the summer playground, a visiting nurse, and garden allotments have strengthened the hold of the Association upon the tenants.

The transformation wrought by the summer of 1917 was truly wonderful. In place of the abomination of desolation described in the front yards of 1911, corn waved, and beanvines flourished. Besides the gardens thriftily cultivated by each householder where lettuce, celery and tomatoes grew in abundance, there was a large community garden with a square plot for each tenant, kept carefully weeded. From the windows giving upon the street the flag of Italy flew, and on the steps the mothers of little Italy sewed and gossiped and watched their bambini at play. In the pavilion of the ample central yard were happy families enjoying the shade, the children playing games, the babies napping in their tiny hammocks swung from the eaves. The whole offered as charming a picture of contentment in a congenial environment as one would care to see.

A group of new houses in the district known as Richmond, an entire block of model dwellings for workingmen, represent a distinct departure from the policy to which the Association adhered for many years. But the enterprise, to which the Board gave most of its time and thought in 1914, recommended itself to the deliberate judgment of the members for two leading reasons—first, that it was becoming constantly harder to find old downtown houses for renovation which could be bought and altered at a cost permissive of a dividend, and, second, that the demand is waxing day by day for carefully designed and suitably equipped low-priced dwellings, since the operative builder is unaffected by philanthropy, and is building to sell or else to rent his houses for at least $15 a month.

The Property Committee of the Board obtained an option on a tract in Richmond and was about to close the bargain when the rude hand of war, that has paralyzed so many efforts for the 60world’s good, descended on the market and made it prudent to defer action until the spring of 1915. Then the more cheerful financial prospect seemed to justify a resumption of the task. A lot adjoining the one originally chosen, measuring 212 by 165 feet and fronting on Cambria Street, was obtained. The total cost of the land and the dwellings that were put on it was $63,000.

“The Philadelphia Model Homes Company” was created by the Board as a separate corporation to finance the undertaking, to own and operate the dwellings, and to continue its work in the future for any similar group it might be deemed wise to create if the first venture justified itself.

The new corporation started with a nominal capital of $2,000. This sum was presently raised to $20,000; and the capital stock was entirely taken by the Octavia Hill Association, which named the directors and entered into absolute control. The rest of the cost of the operation—$43,500, or about two-thirds of the whole—was obtained by the sale of first mortgages, each secured on a particular lot and dwelling, and yielding 4.4 per cent. interest. The Finance Committee devised the scheme because, in the first place, it would limit the financial liability of the Association to the $20,000 of its actual investment, and in the second place the first mortgages at fixed interest on specific properties would more readily secure takers than dividends on the stock of the corporation.

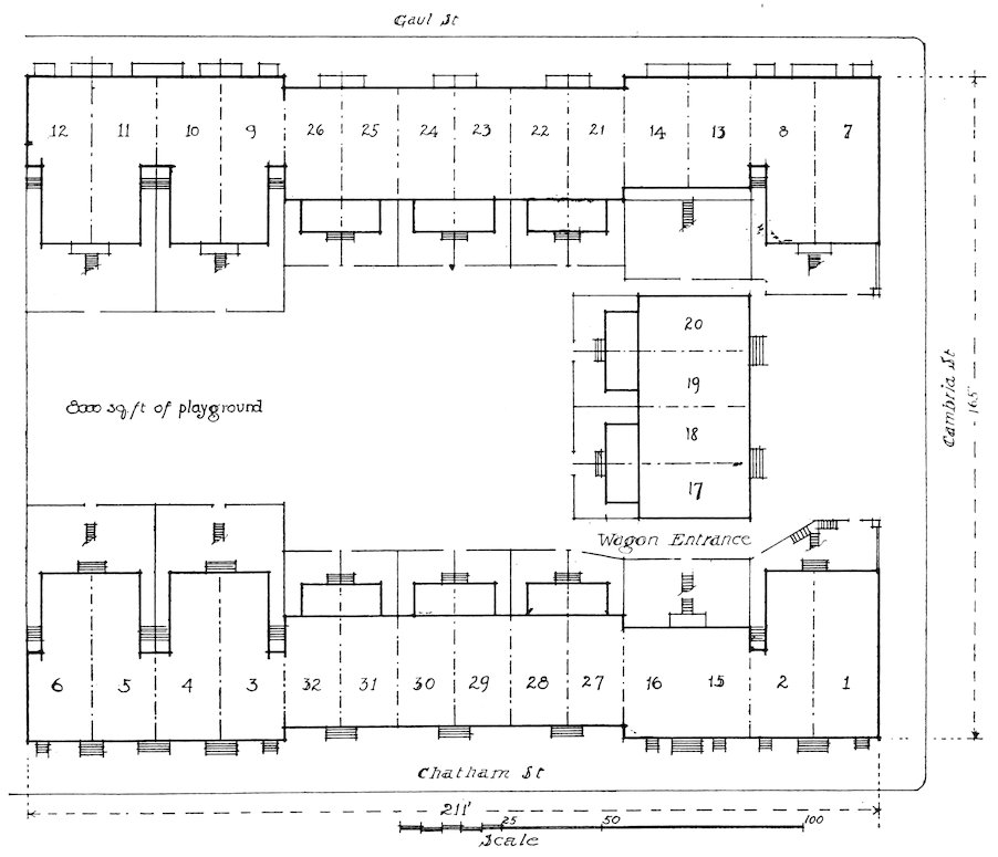
The block comprises sixteen one family and sixteen two-family houses. Their appearance is very attractive. On the west and the north is a new, wide city playground, giving a clean sweep of sun and breeze. The houses surround on three sides a large gravelled central area which creates a private playground—an obvious advantage for the little ones who would be out of place in the big, public playground designed for older and more active children. At one end is a play pavilion, and the gardens with open fences reach to the playground at the rear of the houses. The central courtyard is entered by a driveway that permits of the collection of ashes and garbage without littering the sidewalk in front of the houses.

An easy question is, why couldn’t these houses have front verandahs on both stories? The equally easy answer is that such verandahs add to the first cost and to the subsequent rental. There are balconies at the rear.

61 DWELLINGS for the PHILADELPHIA MODEL HOMES COMPANY John Irwin Bright Architect
62 One Family Houses Nᵒˢ 17–32. Date 6–15–15 John Irwin Bright Architect 1701 Chestnut St Phila

Plans of Richmond Houses.

63 Small Two Family Houses—Nᵒˢ 13–16

Plans of Richmond Houses.

64

Diagram Showing Arrangement of Richmond Houses.

65Work was begun in the summer of 1915, and in December the houses were completed and occupied. The work was done under Mr. Feld’s daily supervision, and done well, without a general contract. Thus a substantial saving was effected, and the construction is abreast of the standard set in work carried out on the usual plan.

In each case a tenant was ready for the house when it was ready for him. The rental is $8.50 per month for an apartment of two rooms and bath, with a pantry having wash-tubs and a range in one of the rooms. Each of the two families in an apartment house has a partitioned share of the cellar. An apartment of two rooms, kitchen and bath is to be had for $10.50. The rental is $13.50 for the one family houses, which give the tenant five rooms, with bath and furnace. There is at all times a waiting-list for these eminently delightful and desirable little homes close to a particularly busy center of diversified manufacturing enterprise.

At the end of the eleven months to November, 1916, the rent amounted to $5,517.65 out of a possible $5,676,—the difference being due to the fact that periods of occupancy did not precisely overlap. After deducting expenses and interest paid on mortgages the Model Homes Company was able to show a profit of $1,873.19; of this sum it set aside $400 for a depreciation account; and it paid to the Association $1,400, which was a seven per cent. return on the $20,000 invested by the Association. (See page 121.)

A rebate of one-half of one month’s rent was made to tenants who had lived in an apartment or a house a year and done no careless damage requiring repairs. Trees were planted in the yard and before the houses, and the occupants have always evinced a lively interest in their little garden-plots. The nationality census is interesting. In the first year there were these families: Scotch, 3, German, 5, French, 2, Norwegian, 5, Swedish, 1, Italian, 1, American-born, 31 (18 of Irish extraction),—a total of 48.

In 1914–15 the Association shared the gratitude of certain poor families which had no work in sight for the bread-winner, 66by arranging with the Emergency Aid Committee to supply the necessary materials and supervision if the Committee would provide the wages of laborers and mechanics engaged in repair work on the properties. Nine men began work on this basis in February, and fifty at one time were finally employed. The work was continued until July, when funds were no longer available. In all, eighty men benefited by the arrangement: seventeen painters, eight carpenters, fifty-five laborers. From the Emergency Aid Committee $4,000 was received, and was disbursed for wages, tools, car-fare and incidental expenses. Two hundred houses were completely put in order and painted, yards were repaved, fences were rebuilt, grading was done, and a vacant area was prepared for gardening purposes. Moreover, men who knew nothing of plastering or cement work learned how to do it, and thus acquired a new accomplishment of market value. They put down floors, relaid walks, whitewashed cellars, and concreted walls where dampness had exuded. Some of these men who came as utterly green hands still remain in the employ of the Association.

In 1916 the Whittier Centre, with whose purposes the Association is wholly in sympathy, carried out a plan for improved housing facilities for the negro population. The Centre is organized for the study of this problem, and for practical measures devised as the outcome thereof. It formed the Whittier Centre Housing Company, with a capital of $25,000, which took title to property at Dickinson and Opal Streets. The planning and construction of the first group of houses was put in the hands of the Association, and Mr. Feld supervised the building of seven two-family dwellings with apartments of three rooms and bath, at a rental of $3.00 and $3.50 a week. As an indication of the lively demand for such cleanly and attractive quarters, it should be noted that there were two hundred applications for the fourteen apartments available.

That this enterprise pays is shown by the fact that in midsummer of 1917 a dividend of 5 per cent. was paid.

67

Cambria Street Houses of the Richmond Group. Playground in the Rear, Between the Side Rows of Houses. One Family Houses. 5 Rooms, Bath, and Heater in Each. Rent, $13.50 Per Month.

69

Gaul Street Houses, Richmond Group. First and Last Four Houses Are Two-Family Houses, With 3 Rooms and Bath on Each Floor. Rent $10.50 Per Month Per Apartment. The Houses in the Center of the Group are 5 Room Dwellings. Rent $13.50 Per Month.

71As for houses for negro tenants owned by the Association, an interesting group will be found along Naudain Street between Seventh and Eighth, and in the vicinity. Here simple rooms may be had for a couple at the low figure of 80 cents a week, or $1.00 for larger rooms. The standard of self-respect and cleanliness among the tenants is high. Many of the houses were formerly dens of the lowest order, and the Association does not relax its vigil to prevent a recurrence to former conditions. In all there were, in 1917, 125 colored families in houses owned or controlled by the Association. It is probable that in the near future the Association will take over other properties west of Broad Street and south of Lombard in the district into which negroes are moving. The Association is hopeful of doing much more in the future to help the negroes find good homes.

The number of houses owned by the Association at the beginning of 1917 was 179; the number of families in these houses was 244. The agency properties in charge of the Association numbered 224, and there were 460 families housed in them. This gives a total of 704 families in 403 dwellings.

Agency properties have been handled by the Association, to the expressed satisfaction of owners, since it was in the second year of its existence.

The Association charges 7½ per cent. for its management; a charge fully justified by the quantity and the quality of its executive supervision.

The properties handled for others may be thus classified: first, houses received from owners who built with an intent frankly philanthropic, and who realized that the Association was qualified by experience to run these properties to the greater advantage of owner and tenant; second, houses bought at the suggestion of the Association and left in its hands for reconstruction and management; third, houses held as ordinary business investments, and committed to the oversight of the Association for the sake of an assured lucrative result; fourth, houses received from trust companies or estates; fifth, houses turned over by charitable or philanthropic institutions which have received them as bequests.

In the last connection, it is to be observed that the legacy is made to perform a twofold service. Low-wage families are assured a good home at a small cost; and the legatee receives a return which may be put to philanthropic uses. Of course in 72some cases there is so much to be done to rehabilitate the property bequeathed that for a time there is no income from it. But the possible dual objective of a legacy is worth the thoughtful consideration of those who would have a bequest mean as much as possible to those who come after them.

It is seen from this brief review of the impersonal side of the business operations of the Association that in certain particulars the procedure of Miss Hill has been modified. Miss Hill relied largely on volunteer collectors. The Association in addition to its unpaid collectors employs several who are paid. Miss Hill obtained purchasers for houses which she desired to improve. The Association, as a stock company, has purchased outright a number of houses. It has realized that whereas certain landlords on a grand scale in London controlled vast areas, in Philadelphia, aside from the Girard Estate, with its admirable model homes for persons who can afford them, there are very few owners of large, undivided tracts where blocks of model houses might be created. So it has been accustomed to purchase its groups piecemeal from a number of owners.

It is probable that in the future the Association will undertake to an increasing extent the construction of new dwellings. For a long time to come, if not always, it will continue to renovate old dwellings, for the old dwellings, situated in the congested areas, are the abodes of most of the poor, who are traditionally averse to uprooting; and often the poor feel much more at home in an old house “fixed up” than in a new house to which the adjustment only comes by the slow stages of a social education. Of course a point is reached, especially on a soaring market for all building materials, when it pays better to build anew than to make over the old. The philanthropic side of the Association’s endeavor will cling to the old houses. The sheer business astuteness of the enterprise will erect new dwellings. The problem is to keep the due proportion between the business and the philanthropy.

73 CHART SHOWING INCREASE IN NUMBER OF PROPERTIES OWNED BY THE OCTAVIA MILL ASSOCIATION FROM 1896 TO 1915

74The tenants of the Association are not allowed to sublet or to take in lodgers without explicit authorization. That this regulation is sensible is obvious. Any other course would lead to all the evils of overcrowding and of positive immorality which the organization was created in large part to fight. The housing of the single man is not attempted. The Association is aware of the importance of the bachelor’s problem. It is a matter that the munition-factories and other industrial plants in quest of shelter for their employes are daily called upon to consider. Were its means and its executive facilities less limited, there is no doubt that the Association would grapple as courageously and as successfully with this issue of the housing of the single man as with the problem of the housing of families.

Charles H. Ludington, President of the Association, says in his report for the year 1916: “It is also the desire of the Board to give as much publicity as possible to the special lines of service which the Association is now prepared and equipped to offer—(1) Advice with regard to the restoration to approved standards, and the altering for profitable use of old or unsanitary dwellings. (2) Undertaking, after submitting estimates, the entire carrying out of such improvements and the future supervision and management of the property for the owners if desired. (3) The management of residential properties held by institutions or corporations, insuring for them the maintenance of sanitary and proper conditions, together with the social service offered to the tenants by the Association through rent-collectors trained in our methods. We have frequently been able to render valuable assistance of this kind both to individual owners and to institutions owning real estate of this character, which, through neglect or merely formal management, has deteriorated. Instances have been brought to our attention where, entirely without the knowledge of the owners, conditions have existed not merely unsanitary but also otherwise highly objectionable and which would have subjected the owners to just criticism. This the standards of management of our Association will absolutely prevent. (4) Industrial housing by employers for their employees. The interest in this subject is showing marked increase, and the Association is ready to place its experience and facilities at the disposal of corporations or firms considering the matter, and to prepare plans, procure estimates and supervise construction, and if desired to undertake the management of such properties in and about Philadelphia. (5) Improved housing for wage earners. The 75experience and information which the Association has gathered, especially in recent years, qualifies it in the judgment of the Board in tendering its services as an expert to anyone who may be ready to consider this character of investment. There is unquestionably in our judgment a need in Philadelphia for new building of this kind, i. e., for dwellings that will rent for under $15.00 per month. The operating builder is supplying only houses of a more expensive grade and for quick sale, because there is more profit in this for him. That sanitary, durable and comfortable dwellings can be built for rental at less than $15.00 per month, and made to yield under proper management a return of 5 per cent. has been repeatedly demonstrated in this and other cities. To any interest that is willing to consider such investment with the further view of meeting a community need, we should offer our services. From our own actual experience in this field and our knowledge of similar undertakings elsewhere, our organization can, we believe, render valuable help in the planning and execution of such projects.”

77

IV
DAYS AFIELD

To read of the work of the “friendly rent-collector” in cold print is one thing; to feel the pulse of it by personal contact is another matter.

Dr. E. R. L. Gould, in a report that he made to the Commissioner of Labor in 1895 on “The Housing of the Working People,” described at length Miss Hill’s system of rent-collecting, which made the process so much more than a soulless, impersonal proceeding.

He said, “There are abundant testimonies to the efficiency of rent-collecting as practised by Miss Hill. Her system has been adapted with uniform success in many large cities in Europe and to a smaller extent in this country.... The moral influence of Miss Hill’s system has been to admit women to a greater extent into the management of housing companies, a practice which has undoubted advantages. Several of the large London dwelling companies acknowledge that their success, financially and morally, only began with the introduction of rent-collecting through lady volunteers.”

A bad tenant is not turned into a good one merely by a periodic demand for money. If all tenants were always in comfortable circumstances, if they never suffered from lack of employment, if protracted illness disabling the bread-winner of the family never spelt acute privation for the rest, if every poor and ignorant foreigner understood from the first his relation to the community and to society at large, and scrupulously maintained this relation for his part, the “friendly rent-collector” might be superfluous. But as conditions stand, the very soul of the Octavia Hill system is this personal contact which has the business transaction for its immediate warrant; and by the acid test of business results its efficacy is demonstrated.

In the great majority of cases the rent-collector does not have to ask a leading question: the tenants are ready enough to flock round her and pour their woes into her ear. Her appearance 78is often the signal for a fusillade of questions, petitions, and complaints.

“Am I going to get that paint for my stairway, please ma’am?” “The rain last week leaked into the cellar something terrible.” “The water in the backyard won’t drain off. The bricks around the hydrant has all sunk down.” “It’s been four days since the man was here to take away the garbage.” “The neighbors keeps puttin’ ashes in the garbage can, and garbage with the ashes. Sure I dunno who’s been doin’ it.”

Such are the petty complaints that all the rent-collectors hear on all their rounds. These matters might be considered to be wholly within the domain of the superintendent and his mechanics. But the tenants do not differentiate. Their appeal is to anyone who may be supposed to be connected with the Association. Sometimes they ask modestly, meekly. Sometimes they ask in accents of more or less defiant challenge. Miss Hill herself describes how she was locked into a room by an irate woman who said she wouldn’t pay the rent till the mantel was repaired, in a house so recently taken over by the new landlady that there had not been an opportunity to attend to the matter.

The friendly rent-collector bides her time, keeps her tongue behind her teeth, and makes allowances for the previous condition of servitude to low ideals and to grasping landlords, which has been that of many of her charges.

The real reward of the work to the right sort of worker is in this lively, daily chance to meet the people and to help them in their problems by the service that is better than the outright gift of money.

Here, for a trivial instance, we come to a humble door where the rent is due, and a poor man has great boxes of laces which he means to move upstairs and store where he lives. There is really no space for the stuff in the one room that he shares with wife and baby. He plans to sell his wares from his cart beside the curbstone on the morrow. The boxes are nearly as big as an upright piano. He cannot afford another place for storage. That is his problem. To you and to me, living in a whole house, the advent of such boxes would be nothing to worry about. But if this vendor can’t secure from the friendly rent-collector a suspension of the unwritten rule against overcrowding his small space, he is in a grievous predicament.

79

Once the Homes of Philadelphia’s Merchants and Business Men. Changing Neighborhood Conditions Made it Necessary to Alter These Houses for Tenements. Each House Has 5 Apartments, 2 to 3 Rooms Each. Rent, $5.50 to $13.00 Per Month.

81A few minutes later we find a whole court in an uproar over an incident that would mean little to those of us who have gardens of size and gardeners of skill. One of the fathers living in the court—a one-armed man—has spent a blistering Sunday afternoon inducing morning-glories to cling to the strings he has put up against the high board fence. The little plot of ground on which his plants grew was perhaps thirty feet long, and a foot and a half wide. He took pride in the result, and his neighbors praised it. When his back was turned a little Polish child of two, living next door, came trotting along, pulled down the wire netting he had arranged in front, and tore off the vines that he had laboriously twisted round the strings.

The indignant neighbors insist, in conclave, that the mother stood in the doorway laughing while the child wrought this mischief. To the friendly rent-collector the mother, with small English but with a profusion of gesture, explains her injured innocence. After long and excited parley, in which everyone who is at home in the court takes part, peace is restored, and the tactful mediator leaves behind her smiles and good humor in place of sullen resentment.

In this case the chief complaint the neighbors brought was that the mother—who was supposed to know so little of our tongue—had used such AWFUL language!

“I didn’t use to be a good woman myself,” said another mother in this court. “My mother didn’t use to be a good woman, either. But now my daughter’s comin’ on, and I want her to be different. I want her to be a Christian. She sings hymns somethin’ lovely.”

In an Italian yard near by are old railway-ties high piled, to be chopped into kindling. In their enthusiasm for saving money, the householders are likely to fill the court as high as the roofs with the beams, if not restrained by the rent-collector’s timely warning that they must leave some room for other purposes.

One of the houses shows menacing patches of brown specks on the plastering of a tiny bedroom—that means the larvæ of 82vermin. In a hole in the midst of each patch are the live insects. The friendly rent-collector makes a careful note of the fact. There is an evil day in store for this common pest of the tenants in old houses, when the Association shall bring its batteries of formidable disinfectants to bear. The Association is not fond of spreading wall-paper over the surfaces where insects live and thrive.

Here is a young man with a moral inheritance that the friendly rent-collector knows by heart. He has a job slicing bacon with a meat-packing concern. Today is a holiday, he explains. Query: will he hold down the job, or go on drifting? The fever of the wandering ne’er-do-weel burns in his veins. His father is a dipsomaniac, who runs amuck periodically with a carving-knife and finds his foes in his own household. He once killed a man and escaped to an adjoining State. Detectives caught him and he was lodged in the “Pen.” He blamed his wife for it, and sent her letters demanding $80 for a shyster lawyer to get him out. He sent her pictures of caskets, as portents of her fate when he should finally emerge from durance vile.

At last she raised the money and got him out. He wept on the doorstep—the neighbors, whose heads were at all the windows, said he shed buckets—and she took pity on him and abandoned her design of procuring a separation. He has been home for a few days, and on this particular day husband and wife are off on a picnic together. The son knows all the story. How long is the peace to last? Will the boy in time follow in the erratic footsteps of the father?

Here is another sinister family history that faces the visitor. The mother is feeble-minded. There are five children. Two of the boys and two of the girls inherit the maternal defect. The other child, a girl, is normal. The father works by fits and starts. A former source of income to the family was a woman boarder of bad character. The Society for Organizing Charity and the Society for the Prevention of Cruelty to Children have interested themselves in these derelicts, and the Octavia Hill Association is trying to help.

Another kind of trouble constantly cropping up is that of the victims of rascally insurance-agents. They turned over their 83books to the agents to keep. The agents took the money and either did not enter the sums or recorded them incorrectly. In some cases those who expected an old-age pension or at least their burial expenses will not get a cent.

“But,” someone may ask, “what has this humanitarian effort to do with rents and dividends? Couldn’t the money be obtained and no questions asked, no advice given, no ‘hard-luck stories’ heard? Business is business. Let the charitable societies, the soup kitchens, the Salvation Army or what you will, look out for the other side of the matter.”

The answer to this contention is that a conscientious landlord can hardly be satisfied to accept money from any sort of house without knowing or caring how it is obtained. Several times in the experience of the Association the owners of houses which had descended to base uses were shocked and grieved inexpressibly to learn of it. In one instance a good lady residing in England who had never seen the property managed by her agents in Philadelphia couldn’t believe the tales that were told her concerning its condition. The agents themselves were unaware of the facts until the Association reported to them the lively horrors. Owner and agents alike were glad to have the houses pass into the control of the Association, which at once converted them into dwellings which no longer were a blot on the ’scutcheon of the City of Homes.

The question of repairs, when the tenants make their requests or the rent-collector’s inspection discovers places where they may be needed, is a matter determined by urgency, and by the amount of money already expended on the property, and by the evinced cooperative spirit of the tenant. It stands to reason that slovenly and destructive occupants are not accorded the same attention that is given to the representatives of those who are clean and careful and prompt in their payments. What a difference there may be on opposite sides of a thin partition-wall! On this side of the wall is a family inclined to dirt and disorder, because of its unperfected social education. On the other side of the wall, only a few inches away, the floor, neatly carpeted, is spotless. The center-table holds a gaudy lamp, or a vase of dried grasses, or lurid paper flowers. There are pictures on the walls, of saints 84or landscapes or the family, in crayon,—perhaps the bridal couple arm-in-arm, or the head of the house in the gorgeous uniform of a Polish benefit association.

One may find the bureau turned into a shrine, with a crucifix and candles; or perhaps the royal family of Italy is a prized possession in a glorious flamboyancy of colors.

The rent-collector refers all-important questions of improvements to the superintendent for his decision. Part of her special care it is to see that the plumbing is in good order. The Octavia Hill Association is largely responsible for the considerable reduction of the number of cases in which six or eight or a dozen families in a court live off the same hydrant. In one court visited, a pet dog had been giving considerable trouble, since he had learned to turn on the water himself, and would leave it running.

Garbage and ashes come under the rent-collector’s supervision, too. When the former is thrown where the latter should be, it becomes necessary to inquire more particularly who had watermelon for dinner, who had chicken, and who had corn-ears—perhaps at a dollar a dozen. In one case where an orthodox Jewish family was blamed by neighbors, the supposed culprits were exonerated by the discovery of a ham-bone in the can when the lid was lifted.

Just as the work of a Red Cross nurse in a war-hospital is a different matter from a debutante’s dream of it, so the inspection by the rent-collector may become a very plain and prosaic, undecorative business indeed. She has to see, to think, to know. Nothing is too small for her attention.

The “Conditions of Tenancy” printed in the monthly rent book which the collector carries for receipts, gives the rules she must enforce. All rents must be paid promptly in advance. The tenant will be required to pay for any damage due to his or her own carelessness. The tenant must replace glass broken in the windows, if it is the tenant’s fault. Lodgers must not be taken nor rooms sublet without the collector’s written permission. Cellars and yards are to be kept free from rubbish, and no animals are allowed in the premises. Garbage and ashes must be kept separate, and rubbish and paper must have their own receptacles. Tenants must keep the sidewalk clean and free from obstruction, 85and must attend to the removal of ice and snow. Nails or hooks must not be driven in the woodwork without permission, and nothing is to be built in the yard. Each tenant is responsible for a set of keys, which must be surrendered upon vacating. In tenement houses each tenant must do his or her share in cleaning halls, stairs and yards.

There are also explicit suggestions for the care of bathrooms, kitchens, plumbing and garbage cans. There is a brief direction printed on the inside of the cover for the collector’s ready reference, giving the addresses and the office-hours of various dispensaries, hospitals and other institutions which may be a present help in time of need to the tenants.

A colored woman on her knees scrubbing a floor that already seemed clean, explained that one couldn’t be too “pertickler about them germs.” The germs, she explained, were so small you couldn’t see them, but they certainly could raise a dreadful rumpus inside a person or a home. She did not know of Metchnikoff or Pasteur or Lister, but she grasped the important idea.

A janitor for a house or a group of houses may be appointed by the Association from among the tenants, at a nominal fee—taking the form, perhaps, of a dollar a month subtracted from the rent. The janitor takes charge of the garbage and the ashcans, and cleans out the houses that are to be rented. She sees to it that the tenants sweep their rooms and hallways and stairs, each doing a part of the premises used in common. The janitor is encouraged to consider herself a working partner of the Association, and she is usually proud of her post.

An important part of the collector’s duty is to ascertain and report damage done to plumbing. The plumber also notifies the Association of any damage that is to be traced to the tenant, and the latter defrays part of the cost of repairs by instalments till the whole amount has been paid.

Careful calculation showed that in a group of 140 families, for one year, the cost of repairs for plumbing due to the tenants’ carelessness was $32. The real estate officer of a large trust company declared this an excellent record.

As the rent-collector of tact and insight makes her rounds the mechanical transaction of requesting and receipting for the 86rent is accomplished frictionlessly and with dispatch in the great majority of instances. The services of the constable, at a cost of $2.00, to dispossess a family are rarely and very regretfully called into requisition. But the Association stands for no shillyshallying. It requires prompt payment. It insists that those who occupy its houses shall fulfil the few simple regulations it has established. It does not hesitate to invoke the arm of the law when the need arises, and the tenants soon become aware of the fact. Most of them, happy to be under a fair and considerate landlord, are punctual, peaceful and contented. “I’ll never get another landlord like you,” said an old Jew, compelled for reasons of his own to move, as he trudged dolefully away wagging his beard.

The cases in which the Association has to proceed to the extreme penalty of eviction may be similar to that of the woman who represented herself as a widow with four children. The children were mythical. She took in four male boarders, in flagrant defiance of the strict rule that forbids taking boarders or subletting without the Association’s consent. There was nothing to do but to put her out, inexorably.

The rent-collector takes with her wherever she goes her moneybag, containing a small card-catalogue to check off payments, which are entered in the office ledgers, receipt-books, blank forms for leases, and paper for memoranda. Sometimes tenants who fail to have the sum ready when the call is made promise to bring it to the office, and rarely do they fail to keep their word. Italians are particularly punctilious in their payments. The man who after an absence of two months came back and paid up for the whole time, though there were a few days he was not, bound to pay for, saying proudly, “I am an honorable gentleman,” was merely typical of his compatriots.

87

Franklin Court. Yard Conditions When Property Was Bought, For Five Front and Thirteen Rear Back-to-Back Houses, Huddled Together on Adjoining Alleys.

89

Franklin Court After Renovation. The Rear Houses Thrown Together and Now Rented in Sets of One, Two or Three Rooms. Suggestive of What May Be Done to Give Better Light and Air and Sanitary Conditions in Similar Houses.

91Ordinarily it is not the great crises of life and death that confront the sympathetic rent-collector. But she never can tell what will meet her round the corner. Here sits a man who was for years a baker, and he is utterly forlorn. His sister bustles cheerfully about the room, making as brave a pretence of keeping a home as she can with some sorry sticks of furniture and a few cracked dishes. The ailing brother has just come back from the hospital, and there is a package wrapped in a bit of Polish newspaper on the table before him. The rent-collector unwraps from it a brown bottle of medicine bearing the label of the Polish doctor to whom he had gone straight from the contrary hospital advice, to secure a nostrum for his heart-trouble. He insists that he never will return to that hospital which kept him in bed so long and did nothing for him. He will never be able to work again, he reiterates monotonously.

Those who have labored in France among soldiers blinded in war, to restore a hopeful mood in which a man takes hold on life again, know what means a wise, kind woman will use with a discouraged man who finds his cross too heavy to carry and has succumbed to a melancholy listlessness. She brings him round by degrees to a more rational frame of mind, and in place of the closed door she shows him an open window. Was not the result worth tarrying for, a few minutes? Even from the commercial point of view is anything gained by having tenants who are at odds with destiny, or anæmic, if not acutely ill, from bad air, bad smells, foul vaults and cellars, surface drainage and contaminated food? Was not Miss Hill entirely right when she declared that tenants and their surroundings must be improved together?

Here was another trouble to be adjusted by the patient universal arbiter. Italian children sat on Polish steps and refused to be dislodged. Out of a cloud no bigger than a child’s uplifted hand came a storm that threatened to destroy the peace of the street. Five nations presently swept into the melee. No great matter, you say—but even so the world-war started.

Wagon drivers for the meat packers’ distributing houses struck for a dollar a week more. A little butcher couldn’t afford to let his chopping block stay idle. He borrowed a push-cart and a neighbor helped him and he fetched the meat himself, running the gauntlet of the angry teamsters. But that is the reason, if you please, that he hasn’t the rent today. There is so often the slenderest margin between a sufficiency and dire distress in the case of the poor. To most of us a strike is in the newspapers. To them a strike is in their lives—it may come like a bolt of lightning crashing through the roof to disrupt a home.

92Perhaps the reckless joy-rider or motor-truck driver will never know how many little children are kept within doors by their mothers for fear they will be run over if they play in the street. But the rent-collector knows. There are so many children shrieking and sprawling over the cobbles already that it doesn’t seem as though there could be any left in any of the houses. But there are always plenty more. Here are some, too tiny to be allowed to go to the city swimming-baths. In the heat of summer they wear scarcely any clothes, and their puny limbs stick out from their tattered garments like twigs from a bird’s nest. They sit here in the darkened room where their mother is sewing on trousers which she “finishes” at nine cents a pair. The mother explains that she doesn’t dare let them go out into the street—they might get run over. So here they sit, listless, pale, forlorn. They laugh outright when you play a child’s game on your fingers for them, and are loath to have you go.

In another house sits a fair-haired girl with blue eyes, one of them sadly atwist, and a scrofulous disfigurement marking what is almost a pretty face. She is perhaps fourteen years old. You start to talk to her and you find she is deaf and dumb. She has been at a school for such unfortunates, the rent-collector explains, and this is her summer vacation. It is certainly vacant enough.

Here are houses just about to be transferred to the Association. Italians, mostly, occupy them. Notice the English sparrow that flutters into a crevice of the bricks, where it wholly disappears as it finds its nest. There is the common phenomenon of one hydrant outside, for half-a-dozen families. In a dark angle of a yard, behind a woodshed cluttered and foul, there is a pool of stinking black water out of which you can fish rotten burlap and odds and ends of the social history of all the houses. The curious children have turned pale green, like sprouts in a cellar, and their arms are thin as pipestems. The stench that emanates from the pool seems to have something to do with it. The mother says—somewhat proudly—that a doctor has said that her children have sluggish livers. She looks at you with a furrowed brow as she wipes her hands in her apron. She is wondering whether there is any hope of anything better in the way you are looking at her. “The landlord,” she says, not knowing 93of the change to another regime that is imminent, “never does nothin’ to the place but just collect the rent.”

A few years ago behind the rear wall of a large church there was a pocket that those who praised God on the other side of the wall knew nothing about. It adjoined a court of nine houses which the Octavia Hill Association had acquired and improved. Through the court the inmates of the four evil and invisible dwellings made their hasty escape to the street when the law was on the trail that the gospel never found. The owner was a well-to-do negro, who was content to take his money from an agent and ask no questions. The agent was appealed to, again and again, to put an end to the bedlam of drink and gambling, of fighting and obscenity that made night hideous on the premises. Providentially the owner died and the houses were bought by a friend of the Association who turned them over to its care. There was nothing to do but to evict the tenants. Polish immigrants of the poorest were put in. In the first year after the change the rent-collector was able to show every cent collected. In the second year the result was the same. In the meantime the Association received its usual 7½ per cent. commission for collecting the rents and the owners received in the first year 6.4 per cent. and in the second year 6.5 per cent. on the investment.

Another striking object-lesson among many that might be cited as to the value of the quiet influence of the rent-collector—an influence that permeates as subtly as yeast—is to be seen in the group of houses for the negro population on Naudain Street near the offices of the Association, to which reference has already been made. One of these houses, since it is given over to single old women, has come to be called the “Old Ladies’ Home.” Would one find exemplary contentment let him talk with an old crippled, blind woman who lives on the top floor. “She is able to iron a shirt-waist without a wrinkle,” says the friendly rent-collector. The order and the cleanliness of these rooms is remarkable. There are stories of the plantation-life to be heard at the lips of the old-time “Mammy” of Dixieland. There are the manners of the great houses that have become historic landmarks, and of the days before “Uncle Tom’s Cabin” was written. The whole House of Bishops of the A. M. E. Church 94has to find room on the walls somewhere, and you will discover that devout communicants are on their knees every night for the younger generation who may fall a prey to the lures of the Devil along the Great Black Way of South Street.

As for the all-important role of the Superintendent, it is hard to see where his work begins or ends. There are just as many troubles as he will give ear to. Here is a Jewish woman who turns loose a flood of appeal and interrogation and never stops, when either the rent-collector or the superintendent comes in sight. All she wants is all there is to want; only a “blue sky” concession would satisfy her claims. But behind all this importunity is maternal ambition. A piano in the house, and the daughter’s lessons, mean stinting for all the rest, as in the case of a home—not controlled by the Association—where a druggist’s clerk lives and we find the kitchen range, the dinner-table and a Steinway baby-grand crowded together in one small room.

The Association has its own force of mechanics, for work old and new, and the superintendent is their “boss.” They have a repair shop in the basement of the office at 613–15 Lombard Street for any work that is not to be done on the premises. There they keep supplies of small hardware, paint and lumber to be used as the call comes.

These mechanics attend to everything except the plumbing, the roof-repairs, and the larger operations that involve considerable plastering and brickwork. The plumbing is always as simple as it can be, and when it is once installed the maintenance chiefly means keeping the drains to the sinks and toilets in working order.

When houses are taken over for alteration, galvanized sinks with slate backs are put in, except that in the better houses one-piece enameled iron sinks are used. The water supply, run through galvanized pipe, issues at brass spigots. Not much lead pipe is used—it is tempting to thieves. The sink taps are iron.

One of the first things to do to an old house toward its rehabilitation is to scrape off the paper. The Association has no love of many thicknesses of paper concealing long neglect and the insidious lairs of insects, and it generally applies paint or calcimine 95instead. Ten or twelve coats of paper are common, and as many as twenty-seven have been removed from the walls of one room. When the walls are scraped the breaks in the plaster are likely to be alive with the vermin. The walls are painted or calcimined in light tones that make an agreeable contrast with the woodwork. Many tenants want paper, but they can be taught in time the sanitary advantage of the alternative.

The exterior brickwork, frequently buckling and crumbling, requires much attention, and often many feet of new wall must be built, or a wall entirely replaced. Broken doors and rotting window-frames and sashes are frequent items of expense. It is a mistake to renew glass in a sash too weak to hold it. A new sash is a truer economy in the long run than one that is patched up “to do.”

It might look as though in the case of a wrecked window-blind (usually blinds are not found on Association houses) or a worn-out washer for a spigot the tenant might display sufficient initiative to attend to the necessary repairs himself; but there are so many ways of doing things wrong and of damaging Association property that the Superintendent actually prefers to have the tenants let things alone till he and his own men can come.

A three story house at 1326 Kenilworth Street might be chosen as an apt example of the superintendent’s reconstructive work. The rental of the house before the Association took charge was $16 a month. It was sublet to negro tenants who paid in all about $50 a month for their quarters.

It is now being rearranged for two-room apartments, one on each floor, which will rent for eight dollars a floor per month, the rent payable in weekly instalments. There is a toilet on each floor, and there is a sink in each kitchen. Superfluous partitions that prevented the free circulation of light and air have been taken out. A gesture of the superintendent’s arms, as though he were lashing out in a gymnastic exercise, told one more than his words. “I must get light and air,” he said; and one thought of Octavia Hill’s insistence on this point.

One of a row of little houses in the rear is $8 a month. The former owner put in a few cheap articles of furniture and collected $20 a month. Under the Association the furniture is that 96of the tenants. Improvements now being installed will add a dollar a month to the rent. These little houses are called “one, two, three houses,” because they are of three rooms only, one over another.

What an oasis we find here, as we look from the upper windows! The houses round about—not Association property—have ruinous shacks at the rear that hold broken boxes and barrels, superannuated chairs and bedding and broken-down baby carriages. There is no clear space to sit under a shade-tree, or plant morning-glories, or put a sandpile. One longs to see the workmen who are paving the Octavia Hill courtyard below turn their attention to the whole vicinity.

In the case of the property at 948–952 North Third Street, from six privy-wells in the court, which extended partly under the kitchens, one hundred barrels of filth in each case were taken. From another well, ten feet in diameter and twenty-five in depth, 275 barrels were taken. The figures convey some slight idea of the superintendent’s task as sanitary engineer. The men, overcome by the stench of these vaults which had not been thoroughly cleaned—it is said—in eighty years, worked in relays to obtain the necessary breathing-spells.

There were disreputable tenants when the Association came to this court; tenants who had influence with powers political and defied the new administration to oust them. A law unto themselves, they made night both hideous and dangerous to respectable neighbors. The drinking, brawling, immoral occupants had to go, and today’s tenants are a very different sort.

A Serb who inhabits one of the houses in the cement-paved court at the rear is secretary of his lodge, and describes with pride the school for thirty Serbian children which he and his countrymen have started at Third and Brown Streets near by. In another house a woman is making some embroidery to be sold for her church. She has been working on stems for artificial leaves to trim hats, and she has made $3.50 to $5.00 a week laboring from dawn to dark, at two cents and a half for a gross of stems. But she is happy because she has a good husband, and this is pin-money. The children of another house have taken a cast-iron bath-tub and made for themselves a joyous swimmingpool with a few feet of hose provided by their father. No wonder is it that former residents who recently returned to the court to visit failed to recognize the place, and were about to retreat abashed as trespassers. At the back of the court is a good example of the wire fence installed in many places in place of the solid board fence, to permit of the free circulation of air. It should be noted that the solid blinds of old-time Philadelphia dwellings are similar undesirable barriers to the medicinal out-of-doors. So many tenants need to be taught the therapeutic virtues of fresh air!

97

Court of 948–952 North Third Street Property, Before Alterations. Surface Drainage, One Hydrant for Six Families. Toilet Not Underdrained and Overflowing at Time of Purchase.

99

Court of 948–952 North Third Street Property, After Alterations. Each House Has 4 Rooms, Water in Kitchen, Gas, Toilet. Rent, $8.50 Per Month.

101Damp walls constitute a serious problem for the superintendent. Tenants constantly complain of leakage into cellars. Often the water collecting against the sashes of cellar windows or seeping under them rots the sashes. If plastering is done directly on brick walls, the dampness will come through in cold weather and appear in the form of “sweating” on the inside. Much experimentation has developed the fact that the cheapest and most satisfactory procedure is to give the walls several applications of the substance known as tunlin. In some places this has been in use three years on the walls and still keeps the moisture from coming through.

By paying cash or by discounting its bills the Association has become a desired customer, and the superintendent keeps his eye out for a rise in prices or the possibility of a good bargain.

For instance, in the Kenilworth Street houses we note that the new window-sashes are of bass wood, a good-looking and easily-handled material. It now costs considerable more than it did a little while ago. We find that the superintendent, before the price soared, bought a quantity for $15 that would now cost $200 at least. It is, he explains, soft enough to work in, old enough to have dried out, and the best possible material for satisfactory mitre-joints.

We find that he bought twenty-five kegs of nails, in anticipation of the rise, two days before there was an advance in price of 40 cents a keg. When it is necessary in all ways to keep down prices for the sake of low rents, and the dividing-line between profit and loss is so precisely drawn, a saving of $10 on one such transaction is no trifling affair.

102Nor does the Association save by cheating its tenants as the former landlord did in the house where the twenty-seven thicknesses of wall-paper were removed. It was found that this particular miscreant had used manure instead of hair as a binder for the plaster.

By standardizing the various minor hardware a further saving is effected. There are rim locks of uniform pattern for the outside of the door, mortise locks of one type for the inside.

The paint is of much the same color. That means a match is readily obtainable without making a special mixture.

All houses are fitted up for gas, an inexpressible relief to the housekeeper who must otherwise face the hot range in summer.

Every effort is made to conserve the backyard trees, and it is the superintendent’s favorite theory that these trees are meant to be sat under and played under, as well as to shade the windows and the courts.

The Association in its office-building at 613–15 Lombard Street utilizes the first floor for its own purposes, and rents the two upper floors to careful tenants. The repair shop in the basement has been mentioned. All day long the tenants of every race, and condition come to pay the rent or to seek light upon the wide range of personal and social problems indicated in the preceding pages. They are given to feel that the office is their office, and that a deaf ear will never be turned to anyone who really needs and honestly deserves counsel. They are receiving free of charge—though they may be unaware of the fact—a business and a social education. They find the data bearing on their individual cases card-catalogued, and if they should be guilty of evasion, an accurate system of book-keeping will bring them to confusion. No record of a transaction in the business of the Association depends upon haphazard recollection or mere say-so. The office-hours are conducted without fuss or flurry, the floors are spotless, the desks are cleared for action. Waste motion is eliminated, the virtues of thrift and of system are illustrated, and still there is heart and human feeling in the enterprise. It is not possible to visit the headquarters without realizing at once the atmosphere of sincerity and diligence and practical success that surrounds the work. It is philanthropy; and it is business.

103

V
DOES IT PAY?

Now we come to the question—does it pay? Obviously there are two sides to the answer, one the material, the other the spiritual. Let us consider, in the first place, the actual cash return.

We have already cited the satisfactory financial results in the case of a few typical properties. It is a postulate that those who are looking for the largest possible dividend on an investment without regard to any other consideration will scarcely be satisfied with the 4 per cent. which the Association is paying. The stockholders of the Association and the directors as a rule are glad to realize that their investment is providing good homes for the poor at low cost, and they are content to forego the somewhat higher profits that might accrue if nobody cared how the tenants lived.

A trust company, in behalf of an estate, had charge of a group of small houses erected as model homes for the poor. Under the trust company’s management, the average gross income from these houses for three years was $72 per month and the net income was $14.34 per month. The property came under the control of the Association. During the first two years under the new order the gross income was $148, and the net income was $70. The trust company, far from the scene, sent a clerk or depended on the services of a local real estate agent. Neither personally interested himself in the welfare of a tenant. The Association sent the friendly rent-collector who immediately reported the need of repairs, watched the workmen, stood at all times in the closest personal relation to the living problem of the householder, and obtained good tenants as soon as vacancies occurred, thus reducing to a minimum the losses due to unlets.

We see that under the system of absentee landlordism the net returns were about a fifth of the gross receipts, while under the system of constant personal vigilance the net returns were about one-half of the gross income.

104The inherent possibilities of the Association’s system extended to Chambers of Commerce or Boards of Trade or Women’s Clubs are almost infinite. One of the best rent-collectors the Association has had says that the essential things are “to know the value of money and of punctuality, a little housekeeping, a little home-making—the rest will come in the doing.” Collectors of this type, in the employ of the Association, could give invaluable aid as agents to trust companies and other organizations that occupy a fiduciary relation toward the owners of property in the congested areas.

The organization and operation of the Model Homes Company, formed to build the group of houses in the Richmond district, have been described. To show how closely, from long experience, the Association figures on the cost of repairs and other expenses, a leaf may be taken from the account books of the Model Homes Company. These estimates and actual costs are, except as noted, for a year ending November 29, 1916.

Estimated Actual
Taxes $ 780.00 $ 779.97  
Water rents 382.50 382.50  
Repairs & allowances 675.00 327.75 (11 mos.)
Depreciation 450.00 450.00  
Unlets 302.00 138.10 (11 mos.)
Losses   9.00 (11 mos.)
Fire Insurance 30.88 30.88  
Liability Insurance 26.66 26.68  
Cost of Collection 441.75 413.60 (11 mos.)
Interest on Mortgages 1,870.00 1,575.36 (11 mos.)

Here is another example of the profitable handling of houses that had seen better days.

In 1903 the Association bought as agent two four-story brick houses about half occupied by a low class of negroes. Everything within and without was as bad as it could be. The houses had been converted from private residences into tenements without the knowledge of the city authorities. Behind the larger houses were six of the little “one, two, three” houses, all served by one hydrant. The owners had relied entirely on an agent 105who cared for nothing but the rents. When at last they saw what they had on their hands they were horrified, and parted with it for a lower price than they had named at first—$4,870.26. The alterations and repairs came to $3,214.06. The ground rent was $1,700. The insurance was $45.00. Five per cent. commission to the Association for making repairs added $160.70, giving a total cost of $9,990.02.

Now let us see what the Association got out of it, after putting in toilet facilities, skylights and windows, repairing roofs and rain conductors, plastering the walls and painting the woodwork, providing fire-escapes and making all minor repairs. In the larger houses the weekly rents were 78 cents per room, and in the smaller 55 cents per room, or $1.65 for the house.

The rents in the first year, 1904, were $1,210.95. Taxes were $126.21; water rents, $41.50; repairs, $174.37; 7½ per cent. commission to the Association, $90.80. This gave a balance to the owner of $778.07, or a net return of 7.7 per cent. on the investment.

In the year following the rents were $1,203.55, and the balance to the owner was $822.81, or 8.2 per cent. net on the investment.

The Association does not expect to show a return greater than 4 per cent.; it does not promise even this. It finds it advisable in some cases to withhold a return for a time and turn back what profits there may be into the improvement of the property. This has been done by the express desire of the owners in certain instances. A temporary stringency of the market and the high cost of building materials or of labor are conditions that are instantly reflected in the balance sheet of an organization traveling on so close a margin. But prudent husbandry has made it possible to show that while the return in exceptional instances has fallen below four per cent. it has frequently risen to double or nearly double that figure. We have seen that on the League Street houses in the Second Ward the return soon after occupation was 7.5 per cent. per annum, and these were houses in an exceedingly dilapidated condition. The North Third Street property from which the hundreds of barrels of filth were taken showed a return of six per cent. in the first year.

The total income of the Association for 1916 was $26,496.23. 106From rentals there accrued $18,834.23; the agency commissions totalled $3,792.84; the dividend on Model Homes Company stock was $1,400.00; commissions on new construction and renovation planned and supervised for other owners amounted to $2,469.16. As the expenses of operation came to $17,799.26, the net earnings for the year were $8,696.97. The dividend of 4 per cent. payable February 1, 1917 left a small balance of $13.26 to add to the outstanding surplus of $15,973.01,—a surplus chiefly created by gifts and bequests to the Association.

It should be noted that the above showing is made in spite of certain adverse circumstances. Materials and labor had risen in price. The sum of $896.40 was charged against the year’s earnings for repair work undertaken in cooperation with the Emergency Aid Committee. A capital stock tax of one-half of one per cent., collected on the entire issued capital, covered a period of 14 months and amounted to very nearly $1,200. Under such conditions as these it would have been impossible to maintain the four per cent. dividend without the commissions earned on the planning and supervision of new construction and initial renovation of agency properties, as well as the customary agency fees. There is no doubt that the Association, which is very distinctly a philanthropic institution to which the business administration is incidental, should be relieved of the heavy burden of the capital stock tax. The dividends the Association periodically declares are paid to attract investors in dwellings for the poor. They are not earned for the sake of enabling those who own small houses to amass a fortune.

Such work as that of the Octavia Hill Association brings returns that are beyond the immediate cash appraisal, and creates a satisfaction deeper than any that has to do with the dollar-sign. In scores of American cities that are now planning good homes at low rates for earners of modest wages, made necessary by the rapid expansion of industrial interests, it is realized that it is fundamental to civic prosperity, as well as to individual felicity, to give the people who are not rich the fullest measure of comfort and happiness procurable for what they are able to pay. The public is learning day by day what it has a right to expect, and is finding out that the corruption of politics, while 107pretending to confer a benefit, often perpetrates the rankest fraud. The taxpayer, intelligently informed, is demanding the worth of his contribution to the city treasury. The children in school are acquiring that salutary discontent with things as they are and that spirit of intelligent interrogation that are the conditions precedent to human progress. For it is rightly said that asking questions is the beginning of reform.

Such an understanding as that which the Octavia Hill Association promotes between landlord and tenant pays dividends in the supreme pleasure it is to any wise and kind trustee of great wealth to know that his money is easing the burden of living for the humble toiler. The absentee landlord, content with an agent’s accounting, who does not care to take the trouble to see who occupies his houses and what kind of houses are occupied, can never realize the cordial satisfaction that one who takes an intimate personal interest in his property experiences.

The investment is in so much more than bricks and mortar, concrete and cast iron. It is an investment in human lives, and it underwrites the welfare of the city, the country, the world in the age to come by assuring the health and happiness of the unborn. If he who makes two blades of grass grow where one grew before is a benefactor, then what is he who tears down a ramshackle tenement and rears in its place such a house as the Casa Ravello, where many families enjoy the privileges of privacy and individuality, or a group of houses such as those in the Richmond district, where the children have abundant play room and each occupant controls half his house, or a small home for one family of which so many examples are entered on the books of the Association in various localities and at varying prices, all within a modest range?

The Octavia Hill investor can be very sure his dividend does not come from living conditions that it would perturb an active conscience to know about. There is nothing that need fear exploitation. A constant prophylactic scrutiny prevents those living conditions that are the shame of every city that in this twentieth century tolerates them.

If the Association were engaged in its blest business for the money only, it could not have enlisted through all these years 108the intense interest of so many who have realized in their own experience the correlation of the kind of house a person lives in and the kind of character that is therein developed. Too long have we taken it for granted that the poor love to live poorly: a survival of the mediæval tradition that only the nobles had noble emotions, and that the crowd merely existed as a foil to the luminous brave deeds of a chivalry monopolized by the upper classes. Today we feel that

“The best things any mortal hath
Are those that every mortal shares,”

and in that faith those who know what it means to have “the social conscience” plan and act.

Year after year the Annual Reports of the Octavia Hill Association have presented with brevity and precision the summation of the progress in the twelve months. Here are set down the statement of net earnings, the explanation of unusual expenditures, the current history of properties long in possession of the Association or newly acquired, the transfer of property for any reason, the peculiar problems that have presented themselves, the formation of subsidiary or contributory bodies, the particular objectives in view or the directions in which the Association is prepared to offer especially helpful service. The audited Treasurer’s Report appended enables one to see in its clear and simple presentment where every cent has gone, and what the return has been on the Agency Account for each property. But for all the explicit story, one still must read between the lines to comprehend completely what has been going on in each of the homes which—without an odious paternalism—has come under the trained and keen observation of the friendly rent-collector and the executive superintendent.

The question of whether the enterprise pays or not is put on the highest ground by those who best understand what the Association is not merely trying to do but effectually doing. Go to the little Hector McIntosh playground and watch the children laughing and caroling in the swings, digging in the sandpile and pretending a sea-beach, sliding uproariously down their little wooden toboggan, racing about at tag, gay as butterflies, and ask them if it pays. Go to the mothers in the shade of the trees of 109Workman Place, or culling fresh vegetables and flowers from their own little gardens, there in the thick of the maelstrom of the shabbiest part of the city, and ask them. Go to those of the negro race who have hitherto been forced to live on the Jim Crow leavings of everything, whether they wanted to be clean and decent or not, and ask them. But do not ask the landlords who are losing money because the poor are discovering what it is reasonable to demand of every landlord. Do not ask a miser or a skinflint or a misanthrope if it pays.

This study has been completely a failure if it has not disclosed the fact that sense and sentiment are yokefellows to mutual advantage in this undertaking. There must always be those for whom philanthropy and business cannot discover a common denominator. That is why the personal examples of Octavia Hill and of those who follow in her train are of value, for these examples prove to a thinking majority that such work as theirs is not the altruism of dreamy, vague enthusiasts, but that of persons with “their souls in the work of their hands,” who are translating into a balance on the right side of the ledger their aspiration for better things for “the poor and him that hath no helper.” In twenty-one years this program and its outworking have been submitted, not once, but again and again, to the pragmatic test, and have emerged triumphant.

The principles on which the enterprise was founded and is conducted promise its immortality and its expansion indefinite. It conflicts with no extant organization except the cohesion of the predatory forces of greed and deception. It does not mean the duplication of effort or the multiplication of superfluous offices; it does not economically call for amalgamation with other societies of parallel function. It meets a need that is real and constant, and it invokes the support and cooperation of good citizenship. It must be allowed to help the city more and more, and in its turn it must always receive the official aid which has been and is generously accorded.

In every large city a problem similar to that which has faced the Association must be met, if the community does not shirk the obligation to its own dependent stratum. In every large city the prestige of the whole community is impaired if dirty 110streets, a lack of good water, smoke-clogged air and disreputable hovels are constituents of the social order. It is a truism that wherever a large working population congregates these are evils that call for a vigil unceasing. The fundamental advantages that make life livable for rich and poor alike are not wafted on the breath of a pious aspiration. They come by somebody’s downright work for them. They come by the banded effort of good citizens. They come by an unremitting holy warfare on all Apollyon’s brood of evils that are the sequel to the reign of the spoilsman in politics. If it be a true religion that visits the fatherless and the widows in their affliction then this is a work that may well engage the attention of the professors of that religion, for it keeps a roof over the heads of many who cannot satisfy a mercenary landlord’s demand. Its appeal is various and profound; its outreach is beyond any hard-and-fast limitation; its record is an open book of progress step by step, season by season toward a goal clearly seen from the start. The Octavia Hill Association has kept faith with the sainted memory of her whose name it bears; it has kept faith with the great public of the city which it is destined to serve more largely as its resources increase and its assistants multiply; it has kept faith finally, with its own ideals, which are those of all who believe in that

“far-off divine event
To which the whole creation moves.”
111

APPENDIX I
OFFICERS AND DIRECTORS OF THE OCTAVIA HILL ASSOCIATION

Charles H. Ludington, President
Curtis Publishing Company.
Theodore J. Lewis, Vice-President
Morris Building.
Joseph R. Carpenter, Jr., Treasurer
The Pennsylvania Company.
Miss Helen L. Parrish, Secretary
313 South Tenth Street.
Miss Edith F. Biddle
John Irwin Bright
Arthur C. Emlen
Miss Hannah Fox
Nathan Hayward
Edgar B. Howard
Miss Mary H. Ingham
Dr. H. R. M. Landis
Miss Esther Lloyd
Stacy B. Lloyd
Dr. Mary T. Mason
Earl B. Putnam
Isaac W. Roberts
Parker S. Williams
Dr. George Woodward
OFFICE OF THE ASSOCIATION
613 AND 615 Lombard Street
Frederick C. Feld, Superintendent
112

APPENDIX II
BY-LAWS OF THE OCTAVIA HILL ASSOCIATION

Article I. Name.

The name of the Association shall be “The Octavia Hill Association.”

Article II. Objects.

The objects of this Association are as stated in its certificate of incorporation, as follows: “Holding, selling and leasing real estate.”

The aim is to improve the living conditions in the poorer residence districts of the City of Philadelphia. To accomplish this purpose the Association buys dwellings and other real estate and improves them so as to make them habitable and healthful. It endeavors thereby to improve the moral and physical condition of the tenants. It offers its services as agent to other owners of like properties. In this capacity it attends to collections, alterations and repairs, clerical and special work, general oversight, etc., and makes a fair charge for such services.

Article III. Principal Office.

Section 1. The principal office of the Company shall be in the City of Philadelphia.

Section 2. All meetings of stockholders of the Company and the meeting of Directors shall be held at the office of the Company, or other convenient place in the City of Philadelphia.

Article IV. Meetings.

Section 1. The annual meeting of the stockholders shall be held at such hour and place as the Directors may appoint, on the fourth Monday of January in each year.

113At the annual meeting the Directors shall present a report of their proceedings and of their financial transactions, and it shall be in order for any stockholder to present for consideration any subject relating to the welfare of the Association. Notice of all annual meetings to be mailed to the last recorded address of each stockholder as furnished to the Secretary as hereinafter provided, at least five days before the date of said meeting.

Section 2. Special meetings of the stockholders may be called by order of the Board of Directors when deemed necessary by them, or on the written request of at least five stockholders, and notice of such meetings shall be given in the same manner as above provided in the case of the annual meetings.

Section 3. The stockholders present in person or by proxy at an annual meeting shall constitute a quorum; at special meetings one-third in interest of the stockholders in person or by proxy shall be required to constitute a quorum. All proxies shall be dated within ninety days of the meeting when they are to be used.

Section 4. The stockholders at the annual meeting may name a maximum sum, all or any part of which in their discretion, in such proportions as they see fit, the Directors may appropriate as salary for the Officers.

Section 5. At each annual meeting the stockholders shall elect twenty of their own number by ballot, to act as a Board of Directors. The majority of the votes cast shall elect. At such election the stockholders shall appoint two persons to act as Judges of the election, and the election shall be conducted in accordance with Section 8 of the Act of Assembly of April 28th, 1874, regulating corporations. Cumulative voting shall be allowed as provided for in Section 10 of the said Act of 1874, and amended by Act of April 25th, 1876.

Section 6. The Board of Directors shall hold stated meetings on the day and immediately after the annual meeting. It shall hold regular monthly meetings at such place and on such day and hour as it shall from time to time determine. Special meetings shall be held upon the call of the President or two Directors, 114said call to be mailed to the Board of Directors at least three days before the time of meeting. Those Directors who are present shall constitute a quorum for the transaction of business, provided not less than three are in attendance.

Article V. Directors.

Section 1. The business of the corporation shall be managed by a Board of twenty Directors who shall be elected by the stockholders at each annual meeting, and shall hold office for one year or until their successors shall be chosen.

Section 2. In case of the death, resignation, disqualification or removal of any of the Directors, the Board of Directors may fill the vacancy by the election of a member for the unexpired term. The Directors shall elect the Officers of the Company, viz.: President, Vice-President, Secretary and Treasurer. The Secretary and Treasurer may or may not be Directors.

Section 3. The Directors shall have full authority to make contracts and shall take all steps necessary for the conduct of the business; they shall have power to appoint whatever officers, agents and employees may be necessary to properly carry on the business of the Company, and to discharge them at any time, and prescribe and fix the compensation of such officers, agents or employees, subject to the vote of the stockholders, as prescribed in Article 4. They shall have full control and management of all the business of the Company, and may delegate to such Agent or Agents, as they deem best, such of their powers as they may find necessary and for the advantage of the Company to so delegate.

Section 4. They shall cause the books of the Treasurer to be audited immediately before each annual meeting and shall exhibit to the stockholders at the annual meeting, or oftener if expedient, a statement or report showing the financial condition of the Association; the amount due by the Association, the amount of profit and loss sustained during the year. They shall judge of the expediency of declaring dividends, and if declared, the amount. They shall also report fully upon the moral side of the work.

115

Article VI. Duties of Officers.

Section 1. The President shall perform the usual duties of the President, shall attend and preside at all meetings of Stockholders and of the Board of Directors, shall convene the Board of Directors whenever in his judgment a session is required, or whenever requested to do so, as provided in Article 4. In the absence of the President the Board of Directors shall appoint a President pro tem.

Section 2. The Secretary shall act under the direction and superintendence of the President, attend all meetings and keep in suitable books the minutes thereof, superintend the keeping and have charge of the books, papers and records pertaining to his office, sign such documents as shall require his signature, issue notices for all meetings and perform generally all the duties incident to the office of Secretary.

The address of each stockholder shall be kept by the Secretary, which address shall be furnished by the stockholder. He shall have custody of the corporate seal, and attest it whenever applied.

Section 3. The Treasurer shall give bond for the faithful discharge of his duties in such sum and with such sureties as the Board of Directors from time to time may require. He shall have charge of the funds of the corporation, shall keep its accounts, and exhibit a statement of its affairs at the annual meeting of the stockholders, and at each regular meeting of the Directors. All money belonging to the Company shall be deposited in its name in some bank of Philadelphia approved by the Directors, and shall be drawn therefrom only by checks signed by the Treasurer, who shall pay no bills unless approved in writing by the Chairman of the Committee, or of the sub-committee, authorized to contract them. The Treasurer shall keep the stock books of the Company in proper form.

In the Treasurer’s absence the Board of Directors may delegate one of their number to act as Treasurer pro tem. It shall be possible for a Trust Company to act as Treasurer.

Article VII. Stock Certificates.

Section 1. Certificates of stock shall be issued under the 116seal of the Company, and be signed by the President and Treasurer of the Company and attested by the Secretary.

Section 2. No transfer of stock shall be allowed except by transfer on the books of the Company, in person, by the person to whom issued or by his or her duly authorized attorney. The Secretary shall cancel the original certificate before signing a new one in lieu thereof.

Section 3. No certificate of stock shall be transferable on the books of the Company while the assignor of such certificate of stock shall be indebted to the Company, unless a majority of the Board of Directors authorize such transfer.

Section 4. Duplicate certificates may be issued for those lost or destroyed under such terms as may be prescribed by the Board.

Article VIII. Transfer Books.

The transfer books of the Company shall be closed for five days next preceding the annual election and the days appointed for the payment of dividends.

Article IX. Order of Business.

1.
Roll Call.
2.
Reading the Minutes of the previous meeting.
3.
Report of the Officers or Board.
4.
Reports of Special Committees.
5.
Report of Regular Committees.
6.
Unfinished Business.
7.
Communications.
8.
New Business.
9.
Elections.
10.
Adjournment.

Article X. Amendments.

These By-Laws may be altered or amended at any meeting of the stockholders duly convened, or at any annual meeting, provided notice that an amendment will be offered shall have been given in the notice for the meeting. No change shall be made in these By-Laws except by vote of two-thirds of the stock represented at such meeting.

117

APPENDIX III
Tables Showing Work and Growth, Income and Valuation of Property of the Octavia Hill Association

Growth of Octavia Hill Association, 1896–1916

Properties Families
Year Total Old New Houses Tenement Total One Family Houses Two Family Houses Tenements
For one Family For two Families
1896 5 5   4   1 10 4   6
1897 14 14   13   1 19 13   6
1898 14 14   13   1 19 13   6
1899 31 31   30   1 36 30   6
1900 34 34   32   2 45 32   13
1901 35 35   32   3 50 32   18
1902 40 40   36   3 56 36 2 18
1903 36 36   33 1 2 48 33 2 13
1904 40 38 2 35 3 2 54 35 6 13
1905 39 37 2 34 3 2 53 34 6 13
1906 46 44 2 39 3 4 67 39 6 22
1907 46 44 2 39 3 4 67 39 6 22
1908 50 48 2 42 3 5 75 42 6 27
1909 65 61 4 54 6 5 93 54 12 27
1910 82 78 4 67 8 7 122 67 16 39
1911 120 116 4 103 10 7 162 103 20 39
1912 124 112 12 101 16 7 172 101 32 39
1913 124 112 12 101 16 7 171 101 32 38
1914 143 131 12 116 20 7 189 116 40 33
1915{ 143 131 {12 {116 {20 7 {189 {116 {40 33
32[1]   {32[1] {16[1] {16[1]   {48 {16 {32  
1916{ 147 143 {6 {121 {18 8 {196 {121 36 36
32[1]   {32[1] {16[1] {16[1]   {48[1] {16[1] 32[1]  

1. Includes houses owned by Philadelphia Model Homes Co.

118

Character and Growth of Agency Properties

Properties No. Families
Year Total Old New One Family Two Family Tenement Total One Two More than two
1898 17 17   17     17 17    
  29 29   25   3 49 25 2 22
  29 29   25 1 3 49 25 2 22
  37 37   26 3 8 89 26 6 57
  43 43   31 3 9 101 31 6 64
  64 63 1 42 8 14 177 42 16 119
  79 78 1 54 10 15 209 54 20 135
  104 103 1 79 10 15 234 79 20 135
  120 117 3 88 11 21 287 88 22 177
1907 120 117 3 88 11 21 287 88 22 177
  145 142 3 111 13 21 321 111 26 184
  176 173 3 140 15 21 357 140 30 187
  182 178 4 143 16 23 346 143 32 171
  179 175 4 140 16 23 343 140 32 171
  181 177 4 141 14 26 386 141 28 217
  189 185 4 141 13 32 392 141 26 222
1914 210 206 4 168 11 37 435 168 22 251
1915 220 210 4 170 11 39 451 170 22 259
1916 228 214 13 172 18 38 464 172 36 256

Returns on the Four Oldest Properties

Property Years Acquired Net Return 1900 Net Return 1915 Net Return 1916
518 So. 7th St. 1896 4.8% 5.6% 5.4%
529 Lombard St. 1897 4.6% 5.8% 5.6%
Front & League Sts. 1899 4.5% 5.3% 4.6%
514 S. 7th St. 1900 3.1% 5.2% 1.5%
119

Income from Typical Properties

Location of Properties Date of First Care Income First Year Income Second Year Income 1915 Income 1916
Franklin Court 1906 $1,394.38 $1,534.68 $1,475.09 $1,474.59
502–4–6 Kater St. 1898 437.20 410.50 468.00 468.00
510 South 7th St. 1903 357.35 431.20 454.83 449.70
708 Lombard St. 1909 710.75 720.00 725.50 [2]
304 League St. 1909 241.50 227.00 268.25 274.50
241–3 Queen St. 1910 621.75 724.50 826.05 939.93
414–6 Perth St. 1903 263.75 334.00 336.00 336.00
Webster St. 1899 909.40 968.95 1,055.50 1,024.00
422 Perth St. 1904 165.00 162.00 168.00 168.00
Rodman & Naudain Sts. 1901 1,122.50 1,166.33 1,263.25 1,207.25
521 Randolph St. 1907 280.25 238.25 293.00 288.00
510 Reese St. 1899 222.00 228.35 270.00 250.75
523 Reese St. 1901 446.71 483.95 562.05 535.15

2. Under Alteration in 1916.

The Salaried Workers

Staff Monthly Salary Octavia Hill Association Properties Agency Properties
% of time Amount of Salary % of time Amount of Salary
A $200.00 66.67 $133.34 33.33 $66.66
B 83.33 47.91 39.93 52.09 43.40
C 65.00 50.00 37.50 50.00 32.50
D 70.00 18.97 13.08 81.03 56.91
E 50.00 66.67 33.34 33.33 16.60
F 50.00 43.25 21.62 56.75 28.38
Total $518.33   $273.82   $244.51
120

Table Showing Per Cent of Original Cost Spent in Repair and Annual Average Net Return in Properties Owned by the Octavia Hill Association

Location Year Purchased Original Cost of Property   Cost of Original Repairs % of Repairs of Original Net Return First Year Net Return 1912 Net Return 1916 Average Annual Net Return No. of Years on Which Revenue Computed
518 S. 7th St. 1896   $7,193.95   $3,333.05 46.33 4.8 3.3 5.4 5.2 17
529 Lombard St. 1897   7,000.00   2,648.90 37.84 4.6 6.0 5.6 5.4 17
Front and League St. 1899   8,500.00   3,171.70 37.31 4.5 3.8 4.6 5.1 17
514 S. 7th St. 1900   3,800.00   317.67 8.35 3.1 6.6 1.6 5.9 16
722–24 Lombard St.} 1904   5,462.95   981.37 17.96} 6.6 5.2 4. 5.4 12
717–19 Nandain St.}     578.68 new houses 3,288.03 }
234–6–8 Monroe St. 1906   12,942.25   1,464.33 11.31 5.6 4.8 4.3 4.4 10
306 League St. 1908   2,655.92   387.78 14.60 3.2 0.9 4.5 2.9 8
516 South 7th St. 1908   5,213.18   458.94 8.80 6.2 4.1 1.6 4. 8
417–21 Perth St. 1909 417 658.84   655.28 99.58} 7.0 6.5 7. 6.7 13
    421 878.57   673.35 76.69}
427–29–31 Montrose St.[3] 1909   9,742.61 (new) 6,218.82 63.83 5.3 4.8 3.8 4.6 6
235–7–9 Queen St. 1910   12,176.80   2,711.16 22.26 4.8 4.9 3.1 3.9 6
304–6–8 Lombard St.[3] 1910   9,075.50   1,983.71 21.85 2.5 3.6 3.0 3.2 6
613 Lombard St. 1910   2,549.40   1,253.58 49.18 4.9 4.2 3.4 3.9 10
523–551 East Rittenhouse St. 1911–12   38,577.881 (new and old)     3.1   4.2 3.9[3] 4
North Front St. 1911   17,599.25   5,350.96 30.40 3.1   2.6 1.7 4
Addison Court 1914   2,350.00   650.00 27.65 8.7 3.6 6.1 5.7 14
723–25 Naudain St.[4] 1914   2,011.15   424.80 21.12 6.4 5.3 5.8 5.3 11
948–50–52 N. 3d St. 1914   15,112.71   6,135.39 40.59 3.8   3.5 3.6 2
3–5–7–9–11 League St. 1916   3,603.25   1,692.48 32.00     6.4 6.4 ½

3. Property under alterations during 1916—figure given for 1915.

4. Property sold in 1916—figure given for 1915.

121

Rent Collections

Year Value of Property Rents Collected
1896 $10,500.00 $466.70
1897 18,705.00 1,001.17
1898 20,048.90 1,709.91
1899 30,386.13 2,567.43
1900 35,965.27 3,187.08
1901 39,160.27 3,381.36
1902 42,493.85 4,142.85
1903 39,213.18 5,271.45
1904 49,564.21 4,772.40
1905 47,789.95 4,962.36
1906 60,807.20 5,688.09
1907 62,496.53 6,339.89
1908 68,285.41 6,346.70
1909 82,474.35 7,455.12
1910 109,530.19 9,254.92
1911 148,216.13 11,623.13
1912 180,012.95 14,149.92
1913 181,347.78 15,295.08
1914 210,031.83 17,585.60
1915 228,031.83 18,444.74
1916 276,026.63[5] 24,672.50[5]

5. Includes value and collections of the Philadelphia Model Homes Co.

Philadelphia Model Homes Company

The Returns for 1916. (See pages 60–65.)
Total Possible Income from January 1st, 1916 to Dec. 31st, 1916 $6,144.00
  Unlets 124.35
     
Total Net Collections $6,019.65
       
EXPENSES
       
Repairs $265.35  
State and Federal Taxes 120.27  
City Taxes, 1916 779.97  
Water Rents, 1916 382.50  
Insurance, Fire and Liability 75.97  
One-half of one month’s rent to tenants 129.40  
Interest on $43,550 at 4.4% per annum 1,916.20  
Depreciation 500.00  
7½% Commission on Collections 451.40  
   
$4,621.06
     
      $1,398.59
  Cost of Lot $10,332.50  
  Cost of Houses 53,217.50  
   
 
  Total $63,550.00  
  Cash Invested by Octavia Hill Association $20,000.00  
On mortgages at 4.4% per annum $43,550.00  
Net Percentage on $20,000 invested by Octavia Hill Association 6.6%

Reports of the Philadelphia Housing Association may be had from the Secretary, John Ihlder, at 130 South Fifteenth Street. A list of Low-Cost Housing Developments in the United States, carefully annotated by Mr. Nolen, is given in the pamphlet entitled “A Good Home for Every Wage Earner,” by John Nolen, Sc.D., City Planner; published by the American Civic Association, Union Trust Building, Washington, D. C.

123

INDEX


TRANSCRIBER’S NOTES
  1. P. 78, changed “the signal for a fusillade of questions, petitions, complaints” to “the signal for a fusillade of questions, petitions, and complaints”.
  2. Silently corrected obvious typographical errors and variations in spelling.
  3. Retained archaic, non-standard, and uncertain spellings as printed.