Title: The Business Library: What it is and what it does
Author: Louise B. Krause
Release date: January 7, 2016 [eBook #50875]
                Most recently updated: October 22, 2024
Language: English
Credits: Produced by Donald Cummings, Adrian Mastronardi, Les
        Galloway and the Online Distributed Proofreading Team at
        http://www.pgdp.net (This file was produced from images
        generously made available by The Internet Archive/American
        Libraries.)
By
LOUISE B. KRAUSE
Librarian
H. M. Byllesby & Company
Chicago
SECOND EDITION REVISED
Journal of Electricity
San Francisco
1921
Copyright
Journal of Electricity
1921
To
H. M. BYLLESBY AND COMPANY
whose generous cooperation has made
possible the successful application
of Library Science to the
business of their
organization
As the publishers desire to issue a second edition of "The Business Library" the following additions and revisions have been made.
Articles of value on the subject of business libraries which have been published since the first edition was written have been added to "References for Additional Reading"; minor additions have been made to the text, and the prices and editions of all reference books mentioned have been brought up to date, and some additional titles have been added.
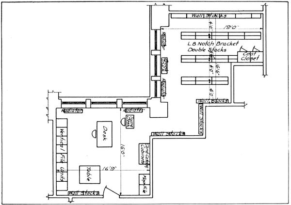
Three drawings of floor plans which have been used for business libraries have been added to Chapter Seven as of possible value to business firms making small library layouts.
L. B. K.
Chicago, Illinois.
November 1, 1920.
This handbook has been written with the purpose of giving brief comprehensive information to the business man on the subject of the business library as an indispensable earning factor in the conduct of business enterprises. It aims to tell how to organize and maintain a business library, what to do in order to get the best results from it, and to show by concrete illustrations, gathered from the experience of firms maintaining library service, what the business library is worth as a financial asset.
The subject matter is not designed to set forth the work of any one class of business libraries, but is a composite study of many. It records business library facts as observed by the author during ten years of service as a business librarian, and as such, may be also of value to librarians contemplating the undertaking of business library work.
The references given at the conclusion of each chapter have been selected from a large mass of printed material on the subject, on the basis of practical supplemental reading only and are not designed to be exhaustive reference lists.
The author makes grateful acknowledgment to her Library School class-mate, Renee B. Stern, now Editor of "The Woman's Weekly," for most helpful advice, and to her friend, Virginia Fairfax, Librarian, Carnation Milk Products Company, Chicago, for generous criticism and correction of the manuscript.
L. B. K.
October 1, 1919.
Chicago, Illinois.
| PAGE | ||
| I | THE ORGANIZATION OF THE BUSINESS LIBRARY | 7 | 
| II | THE SERVICE RENDERED BY THE BUSINESS LIBRARY | 23 | 
| III | PERIODICALS—HOW TO USE AND HOW TO FILE THEM | 30 | 
| IV | GOVERNMENT DOCUMENTS AND THE BUSINESS LIBRARY | 50 | 
| V | TRADE CATALOGS, PHOTOGRAPHS AND LANTERN SLIDES | 59 | 
| VI | CLASSIFICATION AND CATALOGING IN THE BUSINESS LIBRARY | 70 | 
| VII | MECHANICAL EQUIPMENT FOR THE BUSINESS LIBRARY | 81 | 
| VIII | REFERENCE BOOKS FOR THE BUSINESS LIBRARY | 95 | 
| IX | THE ESSENTIAL QUALIFICATIONS OF THE BUSINESS LIBRARIAN | 110 | 
| INDEX | 123 | 
THE BUSINESS LIBRARY
WHAT IT IS AND WHAT IT DOES
What is meant by the word library? Twenty-five years ago it could be accurately defined as a collection of books on a series of shelves, and although this old definition still partially describes its present form, the true interpretation of what a business library really is, can be stated best by saying that it is a genuine service department, whose chief business is to give information to the members of a firm on subjects of vital importance in the conduct of their business.
The business library is not limited to a collection of books, but contains information in any form, namely, periodicals, pamphlets, trade catalogs, photographs, lantern slides, and also manuscript notes which are accumulated in connection with the specific work of an organization. The business library even goes so far in its service as to supply information which is obtained by "word of mouth" in advance of its appearance on the printed page.
8
Before the business library came into being as a special department of business organizations, and before public libraries were making a specialty of collecting information on business subjects, the business man picked up his supply of information in haphazard fashion. He was told by a business acquaintance, often a salesman of a special line who was doing business with him, of some trade literature or government documents in which he would find useful information, or he discovered references to valuable books, pamphlets or documents in his casual reading of newspapers and periodicals. As a last resort, in cases of emergency he telephoned to various business organizations whom he thought could tell, out of their experience, what he wished to know.
Business has, however, grown too large in its multiplicity of interests for the business man to get his information in so desultory and unorganized a fashion, for the business man must be a good forecaster and interpreter of conditions, not by means of guesswork but by the aid of obtainable facts, and he must study and analyze a large number of related subjects. The success of many of our richest industries is due in large measure to this particular element, the wise forecasting of conditions to come, for, as a recent periodical article stated, "business is a procession of problems; big or little, any business must keep moving ahead, finding its way past one pitfall and obstacle after another. In another sense business is a matter of vision; the foresight that9 looks long ahead to new opportunity and to the ways and means of realizing it, is an essential in the growth and progress that brings success."
Business men have long since recognized that rule of thumb methods have passed away, and that they not only can not learn by experience exclusively, but that the utilization of the knowledge of other men recorded in reliable business data is of the highest value.
Present day competition makes it imperative also that every business man knows as much as his competitor, and he must have therefore not something on a subject but everything of value on a subject, and it must be exact and authoritative information which he can trust. Business data must also be kept strictly up to date, which under present-day conditions is no easy task, as information is out of date almost before it is off the press.
The business man not only needs to collect accurate, exhaustive, up to date information, but he needs to have it so well organized that, at a moment's notice, he can put his fingers upon the exact information he desires. The systematic organization of information into quick working files means an enormous saving of time and money, and in large business organizations the employment of a trained librarian to do this work is a most valuable asset.
Check up if you can, the amount of time wasted annually by the average business man through lack of having the information he desires immediately at his service. Waste of time means waste of money.10 It is not worth while having an expert, whose time may be worth anywhere from twenty-five to one hundred dollars a day, waste any of it in trying to find information in government documents, which he is not particularly adept in locating, because he lacks a working knowledge of the enormous range of government publications.
The writer is acquainted with an engineering firm of national reputation, which has made a collection of library material, which has been cared for, or rather much neglected by a stenographer of the company, who has no time nor library experience to give to its adequate administration. This firm when urged to introduce organized library service, and thus make their collection effective, stated that their library was not used enough by their organization to warrant the expense. Investigation proved, however, that one of their expert chemists, whose time was valued more per week than that of a trained librarian would be per month, was making a systematic business of hunting his own library material, and had listed his references in many closely written notes, in order to be able to locate the material again if he should need it. The value of the time the chemist spent on his research would have covered a librarian's salary and made it possible for him to give more time to his firm on the problems which his expert knowledge was able to solve.
The essential principles in organizing a successful business library can be briefly stated as follows:
11
1. Centralization of material within the business organization.
2. Coordination of the business library with the facilities of the public and special libraries of the city in which the business library is located.
The first step in establishing a library in a business organization is the centralization of all the printed material available in its different offices or departments. This is exactly what is not done in a large number of business houses. Books, pamphlets and other valuable information are scattered among the various members of the organization, who treat them as personal property and preserve them in their private desks as carefully as a squirrel hides his store of good nuts. In many business organizations the policy of the employes in regard to information seems to be, to hold on to everything of value for one's personal use, regardless of how much value the information might be to another member of the organization, and also regardless of the fact that the material has been paid for out of the company's funds.
It should be said, however, in defense of the practice of not putting information into a central library, that it is not always based upon thoughtless or selfish habits, but upon lack of confidence; there is a fear that if information passes out of the hands of the man into a central library, that when he12 wishes to use it again, in a hurry, that he may not be able to locate it promptly. This feeling is not without reasonable foundation, as it is based on the irritating experience which some business men have had in using central correspondence files which, in many offices, are poorly administered and cannot produce desired information promptly. The business library, when administered by a qualified librarian, not only can produce all filed material promptly, but in one large corporation, known to the writer, has so successfully handled material that the officers and employes send their information to the library, as a safer and more reliable place to keep it for quick reference, than the drawers of their own desks.
Centralization of library material gives all the departments the benefit of everything the company has collected on a special subject, and often makes it unnecessary to duplicate information for the use of several departments. Centralization makes it possible also to have in one place a complete record of all library material owned by the company which can be loaned as small working collections to any department.
The fact that a central library department has on record what material is temporarily or permanently kept in all the departments, makes it possible also for it to act as a clearing house between all departments in locating desired information. This principle does not apply of course to corporations of such magnitude that their activities comprise several distinct lines of business; in such a case each department would require a specialized collection of13 information, which would become the library of that particular branch of the industry.
It should be kept clearly in mind that the business library has a distinct province from correspondence files, which primarily take care of the letters accumulated in the transaction of business. The business library is in no wise concerned with such records. Its function is not to take care of the records which are created by the activities of the company, but to collect and bring into the company all possible knowledge and information of value from a large variety of outside sources.
The business library also has a distinct province of activity apart from the statistical department of an organization. The function of the latter is to correlate and interpret data which are created either by the activities of the organization or obtained from outside sources, because of value in relation to the various projects of the organization. The function of the library in relation to the statistical department is to supply the printed information which that department needs in its work of correlating and interpreting data.
Many statistical departments have made the mistake of endeavoring to collect and preserve material for their work, which particularly belongs in the business library, with the result that they have cumbersome files of heterogeneous information, badly classified and cataloged, and which do not yield, either quickly or accurately, information when desired. The files of the statistical department should cover only the data which are the result of the par14ticular activities of the company, together with valuable original records which are neither correspondence nor library material.
After the resources for information which exist within the business organization have been adequately centralized the next important step is to coordinate these resources with all other existing library facilities of the city in which the business firm is located. There should be a thorough survey of these libraries in order to ascertain as far as possible the content and availability of their resources. This is an important factor in the creation of a business library, when one considers the problem of shelving much material, within the more or less limited space occupied by a business organization. Floor space in skyscrapers is too valuable to be used as a mere storehouse for printed material used only on rare occasions, and there is also the added expense of a staff of workers to care for a large collection. The business library must, therefore, be considered solely as a working laboratory, and care taken not to include in it material which will be seldom used, particularly in cities where business organizations congregate and where are located large public libraries having excellent resources which can be used to supplement the "working laboratory" collection of the business organization.
15
This principle will not apply, however, to those business libraries which are maintained at the headquarters of national associations. Such libraries must collect everything on their subjects, and be prepared to be a central bureau of information on their specialties, for their membership throughout the United States. For example, the libraries of the National Safety Council and the Portland Cement Association, located in Chicago.
This policy of coordination was expressed in the following words, by a large corporation several years ago when it organized its library: "We will keep our library down as far as possible to a small working collection, and our librarian shall be a go-between us and the other libraries of the city when we want information not available in our own collection." Thus the busy man of affairs is able to keep in touch, through his librarian, as proxy, with many avenues of helpfulness, which would be closed to him were it not for the fact that he had been far-sighted enough to employ a librarian to act for him in these matters of detail.
Public library facilities, while they supplement can never be a substitute for a library within a business organization, for different groups of business people who are vitally interested in one particular subject, or more often in only one phase of a subject, will naturally collect and know more about that subject than a general library serving a thousand and one interests can be expected to do.
The business librarian who is given the confidence of the officers of his organization, gets satur16ated with a knowledge of the business of the organization and is able to sense in advance what information will be needed, and will be prepared as far as possible for the emergency when it comes.
All librarians of public libraries will undoubtedly agree to the statement that they are not in a position to act as confidential library adviser to rival business corporations. The Public Library must deal impartially with all inquirers and cannot give precedence to any inquirer simply because he is in a hurry. Every man must wait his turn because the needs of other inquirers are equally important with his.
If the Utopian state should ever arrive when our public libraries have all the money necessary to meet the every information need of the community, the argument that the public library should serve the interests of business men, who are tax payers, in such a manner that it would not be necessary for them to have libraries within their business organizations, can be answered by a parallel suggesting that the public library should so serve all the interests of the public that no one need have a library in his own home. A business organization desires to make its own selection of material, on the basis of its needs and tastes; it wishes to have this material close at hand without any borrowing restrictions, so that it can be used quickly, without loss of time, and without the limitations which would be imposed if it were the property of some one else, and required particular care to keep it intact, for the business17 man often wishes to clip or give away the printed information in his possession.
The business library is, however, not antagonistic to the public library at any point. On the contrary, the business library must coordinate its resources with those of the public library and work in harmony with it.
The large business organization which can afford to employ a librarian, and the small business firm which cannot, will find a wealth of helpful material in the public libraries of their vicinity.
Many of the smaller public libraries which are not large enough to maintain special business departments are giving most excellent service to business men. A number of the large public libraries of the country are making a specialty of serving business needs through departments organized particularly to serve business men. Some of these are the Division of Economics and Documents of the New York Public Library, the Business Men's Branch of the Free Public Library of Newark, New Jersey, the Technology Department of Carnegie Library of Pittsburgh, and the Industrial Department of the Los Angeles Public Library. The John Crerar Library of Chicago is a free reference library covering sociology and natural and applied science, which cannot be excelled by any other library collection in the United States in the facilities which it offers to business men. Every business organization should get acquainted with the public library of its city and ascertain what that library is able to do for it.
18
The cost of maintaining a business library is in no sense comparable with its value; for the help which a business library may give in a single instance is often of sufficient value to offset its cost of maintenance for a whole year. For example, a business firm had a law suit in a distant city and sent one of its employes to give expert testimony in the case. This employe found as the hearings in the case progressed, that he could strengthen his testimony if he had at hand figures showing the market price of lead for the past ten years. There was no time to spare in obtaining these data. He sent a telegram to the home office, which was received at 11:30 A. M. saying that he would call them by long distance telephone at noon and to have the figures ready. The head of the department to whom the message was addressed, with some perturbation, appealed at once to the librarian of the company, who was able in ten minutes to produce a table giving a summary of the prices desired, which had been printed in a technical journal. The company won the law suit and in comparison with the large amount of money saved, the salary of the trained librarian who knew how to meet the emergency, was a very small item.
No two business libraries are comparable as to cost of maintenance. Each must allow for financing on the basis of its individual needs and the money it can afford to spend.
If a business firm owns the building which it occupies it does not have to consider the rental of19 floor space for the library. If it has a liberal policy of advertising in the best technical or trade journals, it will need to spend very little on periodical subscriptions, as it will receive copies free on account of advertising. If it is a liberal user of the publications of the United States Government, it will find they cost little or nothing, and in any case the amount spent by business libraries for information special to a particular industry is never very large, because often the most valuable data cost practically nothing to secure.
Mechanical equipment, which will be discussed in chapter seven, is largely the initial expense, and the amount of money to be spent each year for additions to the original equipment will be quite small. The principal annual expenses in maintaining a business library are the salaries of the librarian, and assistants if required, and the additional expense of stenographic and office boy service.
The great mistake made by some business firms in maintaining library service has been the employment of inadequately trained librarians who do not produce high grade results. It is this lack of library education and experience, on the part of a number of so-called business librarians, which has been a hindrance to the recognition of what the business library really is and what it can do. The writer saw, some time ago, the sorry spectacle of one of the largest corporations in the country trying to inaugurate library service under the direction of a fourteen-dollar-a-week file clerk, who had not a single educational requirement necessary for the success of the20 undertaking. Such firms generally proclaim business library work a failure, instead of admitting they have made a wrong start and that they should have employed a high grade trained librarian.
Many firms having well organized correspondence files, which are giving satisfactory service, have conceived the idea of adding to their established filing department, and to the duties of their head file clerk, the library service which they judge their organization demands. They fail to appreciate the fact that a filing department, while it has some mechanical technique in common with an organized library, has an entirely different purpose, and does not require on the part of those in charge, educational qualifications at all comparable to those required of a librarian who must have not merely a large knowledge of library technique, but also must know books, and have a knowledge of a broad range of sources, from which adequate information can be drawn when any problem arises; for the business librarian must be a thinker as well as a worker and not a mere clerical machine. On the other hand, the trained librarian is competent to supervise correspondence and any other kind of files if the situation demands it. The essential qualifications for successful business librarianship are stated in the last chapter.
In conclusion, it should be said, that in establishing library service, a business organization must be willing to give such service a reasonable length of time to grow into the work of the organization. A wisely selected collection of material, adapted to the21 needs of the business, and thoroughly organized to give quick and accurate results, should be tested just as a piece of machinery is tested, namely, set up the apparatus, put it in full operation under competent supervision, and in the case of the business library, the verdict cannot but conclusively be—"it works."
List of special libraries in United States and Canada (in American library annual 1916-17 p. 378-408).
Carr, B. E.
Formation of a financial library. Special libraries June 1919, p. 125-27.
Day, M. B.
Portland cement association library. Library journal Jan. 1919, p. 27-28.
Glenn, M. R.
Library of American bankers association. Library journal April 1917, p. 283-84.
Johnston, R. H.
Bureau of railway economics library. Special libraries June 1918, p. 129-31.
Krause, L. B.
The public utility library. Journal of electricity Dec. 15, 1918, p. 556-57.
Greenman, E. D.
The functions of the industrial library. Journal of industrial and engineering chemistry June 1919, p. 584.
Macfarlane, J. J.
Philadelphia commercial museum. Library journal April 1917, p. 278-79.
Nystrom, P. H.
The relation of the public library to the private business libraries. Special libraries Feb. 1918, p. 35-37.
Same article Library journal March 1918, p. 154-57.
22
Parmelee, J. H.
The utilization of statistics in business. American statistical association quarterly publication June 1917, p. 565-76.
Purinton, E. E.
Building an office library. Independent Dec. 16, 1918, p. 214.
Rife, R. S.
Functions of the library of a banking institution; pamphlet printed by Guaranty trust co., New York city, 1919.
Rose, A. L.
The service of a business library; pamphlet printed by National city bank, New York city, 1920.
Secrist, Horace
Statistics in business New York, McGraw-Hill 137 p. $1.75.
Spencer, Florence
Financial library of the National city bank of New York. Library journal April 1917, p. 282-83.
Spencer, Florence
What a public library cannot do for the business man. Special libraries Oct. 1917, p. 177-18.
23
The service rendered by the business library is intensive rather than extensive. The business man is not interested in making a good library showing in regard to the quantity of material on the shelves or in the files of his library, but he is vitally interested in the quality of the material; he has just two objects in view, he wants specific information and he wants quick, accurate, comprehensive service. The organized business library steps in to render this service by knowing what information to get, how to get it, how to keep it up to date, how to file it and how to apply it effectively to business problems.
If the subject which the business man is investigating has a scientific basis, the library puts him in touch with the best authorities on that science and the standard practices which it maintains. If the business man is investigating a new enterprise, or a banker is considering a loan, he must make a careful survey of all the factors which enter into it, in order to make a decision as to its stability and probable financial success. Such problems demand a large amount of information which can be furnished by the business library, as it is prepared to furnish data giving sources of different kinds of raw ma24terials, manufactured products on the market and cost of manufacturing, the possible extent of the market for a competing product, cost of labor, coal and data on certain sections of the country as good business centers, based on a study of population, post office receipts, bank clearings and transportation facilities.
If shipping to foreign countries is contemplated the business library will furnish information on modes of packing, effects of climate on goods, transportation, customs duties, foreign credits, and similar items. Thus the business library is prepared to select, arrange and put into form for ready use, information ranging from methods of rock tunneling, to the consideration of the advisability of putting a new commercial fertilizer on the market.
"The Americas," published by the National City Bank, New York City, contains in its December 1917 issue, an article entitled, "One Feature of German Organization in Engineering and Foreign Business," the contents of which bear directly upon the importance of information as an indispensable asset in the prosecution of successful business.
The article states that industrial corporations in Germany before the war employed an officer called an Economic Director, who, "in the plan of organization of his company, is attached to the office of the President, or is an appendage of the Board of Directors. He has to organize complete information from various sources, and his authority is sufficient to organize this well. He obtains statistical information, foreign and domestic newspapers and periodicals, and the output of various bureaus of news is regularly received by him.
"His business is to keep his Executive informed on the instant of every development in many parts of the world that will mean a change of cost of production or a change in de25mand for the company's products. He must know what is going on in the regions where the company's manufacturing materials originate. He must keep his eye upon conditions affecting production, price and transportation. He must not miss any new source of supply, or any coming diminution of old sources. On the other hand, he must follow every development, political, social or economic that means an increase or a falling-off in the demand for particular kinds of machinery. If there is anything doing anywhere that is significant of a call for more sugar machinery, or a drop in the demand for textile machinery, in this particular man's business, he must judge its full value and advise his board of it.
"It is said of a man who was economic adviser to a German corporation that manufactured materials for railway construction and equipment that he had not only organized his supplies of information of what was going on over the world so that he reported to his board every tender for supplies from every part of the world, but he was expected to analyze general developments everywhere so thoroughly, as to predict in advance the regions where new railways would soon be built, or extensions made. His work, it is said, frequently resulted in his company's bringing about, in direct or indirect ways, the promotion of the new transportation enterprises he predicted. It is now believed that this idea of definite organization of economic information and intelligence has been carried out in order to apply to the after-war business situation by Germany."
The American Business Library is a step in the direction of helping to do for American business what this "German Economic Director" was doing for business in Germany and it is more than time that American business interests use the business library to its utmost capacity.
One of the important departments in modern business organizations served by the business library, is the publicity department which is the outcome of the recognition of the dependence of any business26 upon the public's understanding and appreciation of what it has to offer, in order to successfully carry on its work, whether that be a manufactured product or the service of a public utility. In this day of economic investigation and criticism, it is vital to success that industries exploit their work and products clearly and logically, not only as a means of advertising but also to win and hold that all-important asset known as public good-will.
The publicity department strives to make the public understand the organization and its work and has charge of preparing direct advertising, for daily papers and periodicals, and in many utility corporations prepares copy for the financing and marketing of securities.
A live publicity department cannot do its work without ample library resources as its needs are encyclopaedic, for it is constantly preparing copy which calls for the most accurate and comprehensive data and it must keep up to date on what is currently issued in the lines of business in which it is particularly interested. Library service is so indispensable in publicity work that in a number of cases the library has been organized in the business house as a part of the work of the publicity department.
The business library is also a great service to executives because the heads of business organizations today are concerned not only with the particular business of their own office, but with many economic and public affairs for the betterment of the27 community and the nation. The work of the modern business man, as expressed by a recent technical periodical, "because of the constant multiplication of problems to be settled and the great number of regulating agencies, is steadily growing more important. The successful business man must be a thinker and a man of affairs; he appears before Congressional Committees and before state and federal commissions; he must know whereof he speaks, and he must know principles as well as facts, history as well as present conditions." In the midst of varied and large responsibilities, he knows he can not depend upon his own personal reading and study to keep all the important facts and figures which he needs at his finger tips, for the successful executive must not burden himself with too much detail.
He therefore turns to his librarian, who knows his personal point of view and his needs, and who is as necessary to him as his secretary. Sometimes the head of a business organization appeals to an assistant officer to give him the data he requires, and the assistant officer turns to another one, and he in turn goes to the library; the fact remains that sooner or later the request comes down the line to the librarian.
There are several types of men with whom the business librarian has to deal in doing research on business problems. One type of man who uses the business library is the one who comes in occasionally and browses among the books without communicat28ing to the librarian in charge what subject matter he is looking for. This type of man does not purposely mean to be secretive, but he does not know how to use the service of the library and the librarian which are at his disposal. Often he turns away from his perusal of an encyclopedia with a disappointed look, and in one case when the librarian asked what he was looking for, replied that he was trying to find the address of Mills College but that it did not seem to be in the Encyclopedia Britannica. Had he told the librarian at the start what he wanted the address could have been given him from another reference book in about one minute's time.
Another type of man with whom the business librarian has to deal, is the one who conceals his specific object when he asks for information, and does not therefore make it possible for the librarian to procure the information desired in its most simple and direct form. For example, an engineer once asked for descriptive periodical articles dealing with the construction and equipment of some large hotels. The librarian, of course, thought that what he had in mind was to make a study of the equipment, whereas all he wanted to get out of these articles was the names of firms who had installed certain mechanical devices. This information could have been collected much more quickly than in the time it took for the librarian to make a complete list of satisfactory descriptions of the kinds of buildings for which he asked.
The type of man who uses the business library most effectively is the one who takes his librarian29 into full confidence as to what he is doing, and what he wants to do, and gives the librarian not only the opportunity to produce what he has asked for, but also to make helpful suggestions as to material which he possibly has not thought of in connection with his problem. The business man who thus directs and uses his trained librarian and his specialized collection gets the service which counts and has annexed an indispensable asset to the earning power of his organization.
Cameron, W. H.
What does library service do for you in your business? Public libraries June 1918, p. 256-57.
Gourvitch, P. P.
An organized commercial laboratory. Youroveta review (165 Broadway, New York City) March 1919, p. 82.
Hosmer, H. R.
Some axioms of service in the use and abuse of special libraries. Journal of industrial & engineering chemistry June 1919, p. 582-83.
Hungerford, Edward
Are you "too busy to read"? System March 1920, p. 486.
Lewis, St. Elmo
Value of the specialized library for the business man. Special libraries May 1913, p. 69-71.
Loomis, M. M.
Libraries that pay. Independent June 26, 1913, p. 1436-38.
Nystrom, P. H.
The business library as an investment. Library journal Nov. 1917, p. 857-62.
Same article National efficiency quarterly May 1918, p. 29-38.
30
Periodicals are the most fruitful source of information for any business, and there is periodical literature of value being issued constantly on every conceivable subject. Every industry and profession has its journals and in them will be found the latest and best information.
The value of periodicals in a business organization was very ably stated some time ago by the secretary of an electrical association, and as this testimony is not from a librarian but from a practical business man, it seems worth while to quote as follows:
"The technical or trade journal of today is the livest and most 'up-to-now' assistant a business man has. It is carefully edited, well-printed, fully illustrated and thoroughly indexed both as to literary matter and advertisements. It is the 'always ready reference' of the minute, and the official, head of a department, or even workman, who does not use it to its fullest capacity, is neglecting one of his best friends. I have been surprised to find how many of the larger companies are actually stingy when it comes to paying out money for subscriptions to their trade and technical journals. They talk about one, two or three dollars per year as if it were that many hundreds; they look at the expenditure as if it were an expense instead of an investment, which, properly handled, will bring good returns.
"In no other way can any business man, no matter how high or low his position, keep so fully abreast of the times in his business as by early and careful perusal of his trade31 and technical periodical, from its front to its back cover, and from no other source can he obtain the 'immediately useful' so well as he can from a well filled and indexed present volume of those same publications."
"Printers' Ink" has also stated the case as follows:
"The manufacturer, desirous of keeping his finger on the pulse at Washington, who will spend ten dollars, or fifteen dollars, or twenty dollars a year for business papers and other periodicals that specialize with respect to business news from the national capital, can be pretty well assured that he has every tip that could come to him via the intelligence office, that asks a fee of fifty or one hundred dollars per annum. Indeed, it has happened, not once but dozens of times this past year or two that business journals, etc., carried information days and even weeks before it was sent out in the mimeographed 'letters' and 'bulletins' which the former bureaus distributed, marked 'confidential' and 'not for publication.'"
Not only do periodicals contain lengthy articles on special subjects, but every item in them from cover to cover is of value; for example, in engineering periodicals the business library is greatly aided by the current news notes on books, pamphlets, meetings and people; information on state and federal legislation; prices of materials and second-hand material for sale or wanted to purchase, new construction notes, new devices and best makes of standard supplies.
The brief notes found in current periodicals, announcing the publication of trade pamphlets, reports of state boards, special committees, private corporations and bulletins published by universities, lectures delivered at colleges and papers presented32 at state meetings of associations, are most valuable guides in collecting pamphlets, which although in many cases may be had for the asking, represent a collection of valuable data which can not be replaced by the expenditure of any amount of money and yet most of it costs only a polite letter of request.
The business man or the business librarian will first of all desire to select the periodicals that best cover the needs of his organization. If he wishes to ascertain the titles of periodicals on special subjects in order to obtain sample copies for examination, or if he has the title and wishes to find the frequency of issue, the place of publication and subscription price, there are several books that give such information and which should be found in the public library of his city. It is advisable also for him to see a list of all periodicals which are on file at his public library with a view to examining those which may be suited to his immediate needs. The following books will give information about periodicals on special subjects.
Ayer & Son's American Newspaper Annual Directory with mid-year supplement, published by N. W. Ayer, Philadelphia, $10.00.
2400 Business Books, published by H. W. Wilson Company, New York, 1920, price $5.00.
Severance Guide to the Current Periodicals and Serials in the United States and Canada. A new edition will be published shortly by George Wahr, Ann Arbor, Michigan, price $6.00. This new edition will contain a list of House Organs published in the United States. A recent list of House Organs may be found in Printers' Ink, August 29, 1918, and subsequent issues, and a list of Employees' Magazines may be purchased from Printers' Ink for twenty-five cents.
A list of periodicals published by the United States Government can be obtained free of charge from Superintendent of Documents, Washington, D. C.
33
 
Sample of a daily and monthly periodical checking card. Weekly periodicals are checked on the cards ruled for daily issues. The back of the daily check card is ruled for "Ordered of," "Price," "Date" and "Bill date." They should be filed alphabetically and kept in a file box on the librarian's desk for quick reference.
Note.—As this volume goes to press the Library Bureau announces new forms for periodical checking cards which are an improvement on those shown above.
The care of periodicals is one of the important
pieces of work which consumes a large portion of the
business librarian's time. All periodicals received by
the business library are stamped, as soon as the mail
is opened, with the word "Library" and the name of
the firm, and checked on monthly or weekly card
records, size 3 by 5 inches, specially ruled for the
purpose and obtainable from library supply firms.
This card record enables the librarian to know if all[Pg 34]
[Pg 35]
copies to date have been received and on the back
of the card also provides a record of expirations and
renewals of subscriptions. A notation may be made
also on this card of the names of persons to whom
the periodical is to be regularly sent.
 
After the periodicals are checked, the librarian should go through them rapidly, keeping well in mind all the topics of particular interest to the organization, and also special requests from individuals for the latest information on subjects, which they have designated as being of present value to them. It is a good plan also to ask heads of departments who read periodicals regularly every week, to call the attention of the librarian to any special articles which they think valuable and to which they might wish to refer again. This strengthens the librarian's reading and makes doubly sure that no information of importance is overlooked.
All articles or items of importance are assigned a subject heading (which will be discussed in the chapter on cataloging) and a card is made for the subject card index to periodical material. The trained librarian will know how to discriminate and reduce this indexing to a minimum.
Some one may ask at this point why it is necessary for the librarian to do subject indexing to periodical articles when there are good printed indexes to them, such as Readers' Guide to Periodical Literature, Industrial Arts Index, and the Agricultural Index, published by The H. W. Wilson Com36pany, New York City (samples and prices upon application) and in addition The Engineering Index, recently acquired by the American Society of Mechanical Engineers and published monthly in the Journal of that Society with an annual cumulated volume. There are several reasons why subject indexing must be done by the librarian; first because these printed indexes do not index many of the periodicals which are of importance to the business library and second, because in the periodicals which are covered by these indexes, there are many items of importance to business firms which are too short to be entered in the general printed indexes. The time element is also an important factor in the business library, as the subject card index is made at once and immediately ready for reference, while the printed indexes are of necessity never strictly up to date. For example, an engineering firm was desirous of keeping up to date on all increases in gas and electric rates throughout the country, due to the increased cost of production, on account of higher prices of materials. Various journals reported such items each week, sometimes in not more than a dozen lines. In such a case the librarian's minute reading and quick indexing was invaluable, and gave a service not to be expected of the printed index.
A word should be said, however, at this point in regard to the value of printed indexes, for example the "Industrial Arts Index." Periodicals are sealed books without indexes, and printed indexes are invaluable working tools, first, because no business librarian will attempt the impossible task of making a37 subject card for every article of value in current periodicals, and second, because a live business organization in these days of sudden changes in economic conditions cannot possibly foresee every subject in which it may be interested. When these unexpected subjects arise for which the business librarian has not made provision, the printed indexes come to the rescue and serve the need most admirably. The indexes to separate volumes of individual periodicals, which the publishers issue at the completion of each volume, and in many cases do not send unless requested to do so, are not of great value because, with few exceptions, the subject indexing is poor. Many of them invert the title of the article in order to enter it under the most striking word which it contains, without consideration of its real subject content, and without further consideration of the three, four or more subjects on which the article is very likely to contain valuable information.
After the periodicals have been read and subject indexed by the librarian, as necessity requires, and this should be done immediately on mail delivery, they are sent to the desks of the members of the organization who are most vitally interested in any special information which they contain. Methods of circulation vary in different types of business libraries; some business libraries which serve a large constituency prefer to make typewritten or mimeographed lists of subject references to articles in the periodicals received during the week, and circulate38 these lists throughout the organization, asking the men to send to the library for any article they desire to read. This method does not suit busy executives who have no time to read a list and make a selection, and who wish the material itself put in front of them.
Some business librarians route their periodicals,
attaching a slip with a list of names indicating the
next person to whom the periodical is to be sent,
when a reader is finished with it. Other business
librarians send the individual periodicals direct to
one man only, with a slip attached calling his attention
to the article of special interest to him. As soon
as he is through with the periodical, he puts it in his
outgoing basket and it is returned to the librarian,
who sends it to a second man, with a special note of
the contents for him. This method seems much more
desirable than to route periodicals, because they
most often fail to route—they simply side track!
The periodical gets laid aside on some one's desk and
the librarian does not know whether it is being
passed along promptly or not, whereas if the periodical
is sent direct to one individual and is not
promptly returned, the librarian goes after it, if it is
important that it should go to someone else in the
organization, without unreasonable delay. In large
organizations with hundreds of employes to be
reached, the routing of periodicals is absolutely necessary.
The practice of the librarian of one large
corporation is to subscribe for one copy of each
weekly periodical for every five men who desire to[Pg 39]
[Pg 40]
read that periodical and one copy of each monthly
periodical for every seven men. To insure quick
routing, the names of delinquents are put at the end
of the list of those to whom the periodical circulates,
and the names of the men who have proved that
they pass on the periodical quickly are put at the
top of the list.
 
Samples of 3 by 5 inch charging cards. These cards may be purchased in ten colors, ruled in either four or six columns. Some business librarians put the borrower's record on a white card, and the record made under the name of a periodical on a colored card. Some business librarians omit the date of circulation. The initials on the right hand card shown above, are those of the men in a business office who are to have the periodical sent to them regularly. The cards bearing the names of the borrowers should be filed in a charging tray in alphabetical order, as should also the cards bearing the names of the periodicals. In a business library, it is not necessary to file by date as is done in public libraries.
Books loaned from a business library may be charged in a similar manner, i.e. a card bearing the name of author and title of the book taking the place of the card bearing the title of the periodical as shown above. The book card is kept in a pocket, pasted on the front or back cover of the book, when the volume is not in circulation.
The circulation or routing slip which is attached to each periodical bears the following: "Please keep this magazine in circulation. To be of value it must reach every man on this list within a week. If you cannot read it now, send it on without checking off your name and it will be returned to you later. Mark at the right of your name the page number of any article that you believe should be indexed for future reference."
A simple loan record on 3 by 5 inch cards specially ruled and of which illustrations are shown, should be kept under the name of the man to whom the periodical is sent, and also under the name of the periodical, in order that the librarian can tell on a moment's notice where any issue of a periodical is and also what each man has charged against him. Books and other library material may be charged in the same manner.
Business men in general, so experience proves, exercise no particular responsibility either to return material or to replace it, for the business organization has no rules for lending, and the responsibility of knowing what material is out of the library, where it is, and that it is brought back or replaced, falls upon the librarian. The business librarian with his41 loan record as a guide tactfully asks if the business man is finished with the material, and if so, collects it; in some cases the collection is made without asking, when a visit to a man's office clearly shows that the material is side-tracked and dusty. This is one of the most tedious duties which falls to the business librarian's lot, but one of the most important ones, for the function of the librarian is to get material used freely, and not hoarded.
Business men who always get what they want from their library on a moment's notice do not appreciate the time and patience such service requires on the part of their librarian, for no genius is involved in the case of the librarian who always has ready on the shelves what is needed. Often a business man who literally wants material on a minute's notice, is the one who is most careless in cooperating with the librarian by returning material, and who does not want to stop a moment to have a loan record made. Sometimes a business man gets in a hurry for library material, which the librarian says he already has, but which he insists is not in his office, whereupon the librarian goes to his office, and pleasantly and often humorously unearths it from the bottom of the pile of material on his desk or table.
In the matter of the loaning of material the
business librarian certainly has to be characterized
by the words "long suffering," for he must make no
excuses and deliver material in spite of the delinquencies
of others. If some one at this point protests
that it is unfair to the business librarian, the
answer is, that the business man has a right to do as[Pg 42]
[Pg 43]
he pleases with his own, and that the business librarian
exists to save a busy man from the error of his
ways, for it must be remembered always that the
business library is organized to give service to men
of affairs, burdened with large responsibilities. All
business men are not careless in returning material,
and certainly minor employes have no right to be,
but it will have to be admitted that business men,
who never think of taking the trouble to return
material are in the majority.
 
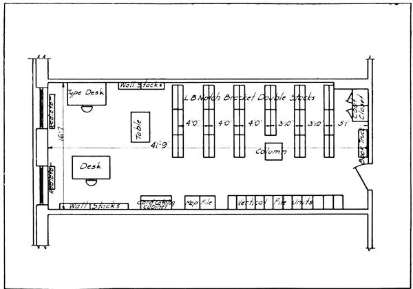
A corner of bound periodicals in the library of H. M. Byllesby & Company, Chicago. The worth while periodicals devoted to any one industry are comparatively few and bound volumes do not take up so much space as might be imagined. A three foot shelf will hold six or seven years of one periodical.
After the current periodicals have made their last tour of the offices they come back to the library to be filed for future use. What disposition shall be made of them? Shall important articles be clipped and filed and the remainder of the periodical thrown away, or shall a complete file be kept for six months or a year and then thrown away, or shall files be kept complete and bound for permanent books of reference? The latter method represents the best library practice for the following reasons. No business organization or business librarian is prophetical enough to foresee exactly what information will be useful to keep in a business library for future use, when one considers the variety of valuable material found each week in the periodicals, which cover the activities of a certain line of business. Complete files of bound periodicals constitute one of the most valuable reference aids that any business library can possess. Clipping valuable periodicals might in some instances be compared to cutting out an article from a valuable encyclopedia.
44
One of the values of having periodicals bound is that they do not get lost or misplaced or carried off so readily, as a separate number or a clipping would. Bound volumes do not take up so much space as might at first thought be imagined, for a three-foot shelf will hold the bound volumes of the larger size periodicals for a six or seven years period, and the number of worth while periodicals devoted to any one industry (excluding of course the annual volumes of societies) are comparatively few, and twelve to fifteen sets would be the maximum for any one business library.
The replacing immediately of a lost or mutilated periodical is one of the important duties of the business librarian, for it is reasonably sure that the lost or mutilated number has something of real importance in it, else it would not have been so treated by any member of the organization; it is also important to replace it as soon as possible, because often back numbers are difficult to obtain.
Business men as a rule know nothing of the principles of satisfactory binding and generally give the work to commercial printing establishments who misplace pages and sections, and make mistakes in titles and volume numbers in lettering the backs. If a business house does not have a librarian to supervise its binding, it should be careful to select if possible a bindery which specializes in library binding and will do the work in accordance with the best library practice. An illustration is shown of correct position and style for lettering the backs of bound volumes.
45
 
46
It is not advisable to bind the volumes of every periodical received, for many are only of passing interest, and while it is advisable to keep such an unbound file for a year or two, at the end of that time the librarian will be guided by his experience and use discretion in disposing of out of date material.
 
The best method of preserving the current numbers of periodicals which are to be permanently bound or preserved without binding is by the use of Library Bureau pamphlet boxes, or similar makes, made in a variety of dimensions.
The "L. B. pamphlet box" is made of heavy chip-board covered with glazed paper or black cloth, and half of one side doubles back on itself permitting of easy consultation without removal of the contents. These boxes stand on edge like books and are dust proof.
"Wood C. C. pamphlet case" is made of seasoned
wood and covered with durable paper. This case has
a closed top and open back and is therefore not dust
proof and has to be taken off the shelf to consult the[Pg 47]
[Pg 48]
contents. For general use the L. B. pamphlet box is
preferable for business library work. Some business
libraries also use a specially made box of heavy
cardboard covered with book cloth and with a card
label holder on the back, similar in style to the "Wood
C. C. pamphlet case," and which can be made by
any good paper box factory, at prices ranging from
fifteen to twenty cents each on quantities, according
to the size desired. H. Schultz and Company, 519
West Superior Street, Chicago, Illinois, advertise
quotations on stock of this kind. A photograph is
shown of the style of boxes used by the National
Safety Council, Chicago, for filing copies of current
circulars which are distributed to their members.
 
Clipping may be legitimately indulged in, when an article of interest is found in a single number of a periodical, to which the library does not subscribe. Newspaper items, of course, must always be clipped and there will be always material like printed leaflets which will require the same kind of filing as clippings.
Clippings are best filed in vertical file units, and methods of filing and indexing are discussed in Chapter VI. The "U-File-M" binder strips manufactured by the U-File-M Manufacturing Co., Syracuse, New York, are exceedingly useful and satisfactory for fastening clippings, single sheets or thin booklets into vertical file folders. These strips need to be visualized by samples in order to clearly understand how they work, but they can be described49 in general as gummed strips a half-inch in width and 11 inches long with forty-four gummed tabs one-eighth of an inch wide affixed, which can be pulled out from under a protecting strip with the finger nail. The eleven-inch strip or any cut off portion, can be glued horizontally or vertically into a folder and papers or clippings attached by the gummed tabs.
Business firms who wish to keep up with any special information appearing in the daily press often employ a press clipping bureau. Such service always furnishes quantity rather than quality, as no attempt is made to select only items of real value. For example, a firm specializing in the manufacture of canned milk ordered a clipping bureau to send it all newspaper clippings on milk and among the clippings sent was one of a milkman arrested for speeding, and similar clippings were frequently sent. If very special information from the daily press is desired the clipping should be done by a person within the organization who has intimate knowledge both of the subject and of the need.
SOME DEALERS IN BACK NUMBERS OF PERIODICALS
Abrahams Book Store, 145 Fourth Avenue, New York City.
F. W. Faxon Company, Boston, Massachusetts.
The H. W. Wilson Company, New York City.
50
The United States Government is the leading publisher of accurate and reliable information bearing upon all kinds of business activities. No question should ever be investigated or data collected by a business firm without taking into consideration the valuable sources of government information on that particular subject. The "Youroveta Review," in its March, 1919 issue, says:
"It is not only safety and accuracy in the performance of its regular duties, but also expansion and development at which a progressive firm is aiming; and this can be attained only when the business is analyzed from all aspects of practical interest, when the horizon is being constantly searched, and endeavors are made to explore new commercial avenues."
Studies of mineral, oil and gas deposits, tests of boiler and furnace efficiencies, analyses and tests of fuels, production of crops and cattle, labor problems, electrolysis, standards for gas and electric service, foreign trade, water power and statistics of all industrial activities, constitute a few of the subjects on which the government periodically reports.
The daily paper called "Commerce Reports," which gives reports and business tips on trade and industrial conditions, gathered by American Consular officers at their respective posts throughout the world, is an invaluable periodical for business men in this after-the-war period of trade development.
51
The United States Shipping Board has issued a valuable series of free pamphlets in the interest of export trade, some of which are:
World Trade; A List of Books on World Trade.
Selection of Books on Foreign Languages.
Ships and the Ocean; A List of Books on Ships, Commerce and The Merchant Marine.
Foreign Countries; A List of Books on Foreign Countries.
Many practical illustrations could be given, if space permitted, of the use made by business firms of government publications. For example, a large mail order house made a decision, based on consulting the Weather Bureau's temperature records in the different sections of the country for a range of years, as to what date would be best for sending out, to various districts, advance catalogs advertising summer and winter wearing apparel; while an engineering firm, designing a gas holder to be erected in a northern city, decided on the factor of safety to be adopted against the lowest possible temperature, by consulting the weather reports for the lowest temperatures which prevailed in that section for a long range of years.
To keep thoroughly informed on the large body
of constantly growing data issued by the government,
to know how to procure it without delay and
apply to a specific problem is no small accomplishment,
and this is one of the important reasons
why the business man needs the assistance of a
trained library worker. The average business man[Pg 52]
[Pg 53]
gets mentally lost in the thick woods of government
documents; he either does not know which department
or bureau of the government can give the specific
information he desires, or he does not know
how to procure, in the shortest time, desired data
which he knows the government has on file.
 
The best way for the business man to find out
what information is in print and can be procured for
his personal use, is to write direct to each department,
or special bureau, for the catalog of their
available publications. For example, the Bureau of
Foreign and Domestic Commerce issues a catalog of
Bureau publications which is described as a "review
of information available to manufacturers and exporters
in the bulletins issued by the Bureau." The
Navy Department issues an "Index to Specifications
for Naval Stores and Material" which is very useful
to many classes of business men who are drawing up
specifications for the purchase of various kinds of
material. The list of publications of the United
States Geological Survey is a most valuable guide in
procuring bulletins on water power and irrigation,
mines and mineral resources, as well as important
papers on economic geology, namely, oil, gas and
other useful minerals. The United States Bureau of
Standards, the Bureau of Census, the Bureau of
Mines, all publish catalogs of papers issued by them,
which are of the greatest possible value to business
men. These bureaus, in addition to their printed
catalogs, issue supplemental lists of new publications
each month and the "Monthly Catalog of United
States Public Documents," issued monthly, price[Pg 54]
[Pg 55]
fifty cents per year, obtainable from the Superintendent
of Documents, also gives a list of all the
publications of all departments of the government
issued each month.
 
 
The Superintendent of Documents issues free of charge, forty-four lists of documents, for sale by his office, on certain subjects, such as Roads, Labor, Foreign Relations of the United States, Finance, Transportation, etc. A complete list of these subjects can be found in Swanton's Guide to United States Government Publications (Bureau of Education Bulletin 1918, No. 2), page 127, obtainable from Superintendent of Documents at twenty cents per copy. This guide is a most useful compilation as it describes briefly the work of each department of the government and kind of publications issued by them, stating where they can be obtained and what classes of publications are free and what are for sale.
56
Government publications which ordinarily may be obtained free by applying direct to the Bureau issuing them, if out of stock may often be bought from the Superintendent of Documents. The Superintendent of Documents requires that all publications ordered from him be paid for in advance, and this involves some difficulty, as often a man does not know how much money to send to procure the publication, if he has not seen the price quoted. Some business libraries, to save delay in ordering, deposit twenty-five dollars in advance with the Superintendent of Documents against which the cost of documents ordered can be charged. The old idea of procuring publications through a Congressman or Senator is the poorest kind of method of obtaining what is wanted in a hurry, for many government documents will not cost the business firm anything and those for which a charge is asked cost a very small price. The Superintendent of Documents sells coupons which may be sent in payment for documents ordered from his office. The disadvantage of the coupon method of purchasing is that the buyer must know in advance the price of the documents in order to send the correct amount in coupons.
Some of the departments of the government issue advance mimeographed sheets of information and will also give out, in advance of printing, data on file in the department to firms which make special request for it, and have also been known to reply promptly to telegraphic requests.
Some of the bureaus of the government have district offices in a few of the large cities of the57 United States, for example, district offices of the Bureau of Foreign and Domestic Commerce, Weather Bureau, etc., which are of great service in obtaining data in a hurry, and the business man should ascertain the resources of his city in this respect. He should also not forget to use the collection of government documents at his Public Library when he wants to use publications of which he cannot obtain a copy for his own immediate needs. Some of the smaller public libraries do not have their government documents fully cataloged and immediately available so that the business man must not infer, because he cannot find certain government information at his public library, that it does not exist.
The individual states of the United States also publish valuable documents through their state boards and commissions with which it is well for the business man to be acquainted. Many of the individual states have similar boards and commissions which report annually or biennially, both in bulletins and regular reports, such as state engineer, state geologist, state mining department, state insurance department, state experiment station, bureau of labor and industrial statistics, state public utilities commissions and special commissions created to deal with any particular problems or industries, peculiar to the individual state. The best guide available to current state publications is the "Monthly List of State Publications" published by the Library of Congress, fifty cents per year. The chief drawback in58 the use of this list is that it is always several months behind in being published, as is also the "Monthly Catalog of United States Public Documents." The current trade periodicals often note the issue of any important state publications more promptly and are a great aid in keeping up to date on this information. Public Affairs Information Service, a cumulated index published by H. W. Wilson Company, New York City, and which is noted more fully in a subsequent chapter on Reference Books, lists a number of state publications of value.
Fairfax, Virginia
Pamphlets and clippings in the business library; pamphlet printed by Journal of Electricity, San Francisco.
Kaempffert, Waldemar
Putting Uncle Sam to work. McClure's magazine Dec. 1916, p. 11.
Reinick, W. R.
Public documents as a commercial factor. Special libraries Nov. 1913, p. 175-77.
Rogers, S. L.
Value of statistics to business (census bureau). Manufacturers' record Oct. 23, 1919, p. 34-35.
Ulm, A. H.
What the census bureau can tell you about business. Printers' ink monthly May 1920, p. 37-38.
59
Several methods for filing and indexing trade catalogs have been advocated by various writers, but the most generally approved practice is to file in legal size vertical file cabinets, with a shelf to accommodate large bound volumes which are too bulky to go into the drawers and whose disposition on shelves instead of in file drawers may be noted by a symbol on the index card, and also by a reference sheet placed in the file where the catalog would be alphabeted.
All trade catalogs should be filed alphabetically by the names of the firms issuing them, rather than under subjects, because often a single pamphlet, or volume, may list a variety of materials which can not be classified under a single subject name, thus avoiding numerous cross subject references.
 
 
Engineers are prone to endeavor to apply a
decimal subject classification in filing trade catalogs,
with the result that they fall into many intricate
difficulties. However, small offices using only a few
trade catalogs on special subjects can file under subjects
with other library material if desired. (The
organization of an alphabetical subject file for miscellaneous
data is described in Chapter VI.) All[Pg 60]
[Pg 61]
trade catalogs filed under the names of the firms
should be subject card indexed, because it takes less
time to make a working index than it does to look
through various catalogs to find desired information
when there is no index.
 
The method of indexing should be as follows: there should be a card made for the name of each firm issuing the catalog, and the address of the firm may be added to this card in order to use it as a mailing list if desired. The subjects, i. e., specific names of merchandise, which the catalog covers and any well known trade names, should be written on the face of this main card (see illustration) and additional cards made for the subjects and any important trade names, and all of the cards should be62 filed in a single alphabet. A Cutter number (which is explained in detail in the chapter on cataloging) may be put on each index card and trade catalog, in order to facilitate the alphabetizing and quick location of individual trade catalogs. The subject index in Thomas' Register of American Manufacturers, an invaluable tool to purchasing departments, is a great aid in selecting subject names to be used in the trade catalog index.
Photographs are important sources of information for any business firm, as they visualize printed or written descriptions and make an accurate and unchangeable record which does not permit of any misunderstanding, as is sometimes the case in reading a printed account. Every industry should have a photograph file illustrating the various aspects of its products or the installations and construction for which it is responsible and which may be supplemented by any photographs which can be obtained on similar work done by firms other than its own.
Banks and investment houses should have photographs of all tangible properties on which they issue securities, as they have been found to be of great aid in making a stock and bond offering concrete in the mind of possible customers.
Photographs are best filed by mounting singly or in groups on a standard size photo-mount board 11 by 14 inches and put into architectural size vertical file drawers. A dry mount process by the use63 of gum tissue and a hot iron is much to be preferred to the ordinary method of mounting, as photographs expand when wet and shrink in drying, thus subjecting the mounting board to more or less warping unless heavy pressure is used.
 
A photo-mount board 11 by 14 inches in size. The title of the photograph with date when taken is lettered across the top and the classification number is shown in the upper left hand corner.
Photographs for business purposes may be filed geographically or by subjects, according to the use which is to be made of them. An engineering firm building structures in different parts of the country file their construction photographs under the name64 of the state and city in which the work is done; all the cities of a single state are arranged in alphabetical order under the state name. The individual photograph boards are numbered in accession order which makes the photograph of latest date the highest number under each city.
 
In order to avoid writing the name of the state and the name of the town on the corner of each photograph, this particular library uses on each board the Dewey Decimal Classification history number for each state with the first letter of the name of the city below this decimal number, to which is added the accession number of the photograph. This combined number is used on the corner of the index card65 on which is also entered the name of the city followed by the accession number of each board and the title of the photograph with the date on which the photograph was taken.
Each photograph may be cataloged on a separate card if desired and subject cards can also be made to any photographs and filed alphabetically with the geographical index cards.
When subject filing of photographs is desired the Dewey Decimal Classification subject number, or a modification of that system, or the name of the subject written out in full or the Cutter symbol for it (which is described in Chapter VI), can be substituted in place of the geographical classification number.
There are two methods of filing slides. One is to file slides in a cabinet containing drawers similar to a card catalog case, the slides being filed horizontally rather than vertically. The other method is to use a specially designed filing cabinet containing sliding file leaves which pull out at right angles to the cabinet, which is designed on the sectional unit plan for growth; the leaves have each a capacity of about fifty or sixty slides which are held in place by means of channel grooves which provide for examination of the slides without handling, and also permit of quick removal of each slide as needed. Complete descriptions of such cabinets may be obtained from the Multiplex Display Fixture Company, St. Louis, Missouri, and from G. S. Moler, 408 Uni66versity avenue, Ithaca, New York. Both makes have been satisfactorily used by a number of business organizations.
 
The drawer method of filing slides costs less than the cabinet with sliding file leaves, and also takes up less space. It has been found in the experience of libraries handling large numbers of lantern slides which are used freely that they are not as fragile as they appear to be; they do not break easily and can be fingered as rapidly as a card index file in a similar drawer. A piece of white paper can be easily slipped behind the slides in the drawers to67 bring out their details when they are being consulted.
 
Lantern slides may be classified and card indexed for business purposes in the same way that photographs are and care should be taken to have the file number and title of the slide plainly lettered along the top edge of the face of the slide.
68
Collections of lantern slides for art and architectural purposes require more elaborate classification and cataloging but such requirements do not come within the scope of this treatise.
In some business libraries where the slides are loaned out of the city it may be advisable to index them on a 4 by 6 inch catalog card, instead of the standard 3 by 5 inch card, in order to allow room to paste on it a photograph of the lantern slide which will show its detail when the slide itself is not immediately available.
Half-tone, zinc and electrotype cuts may be classified in the same way that photographs are but filed in flat drawers. A reduced photograph of the cut may be pasted on the index card similar to the plan noted above for lantern slides.
Business firms having large collections of maps which need to be specially filed and recorded will find helpful suggestions in a small pamphlet entitled "Making Maps Available," by Beatrice Winser, published by the American Library Association, 78 East Washington Street, Chicago, Illinois, price five cents.
69
Cook, G. L.
A library of trade catalogs. Library journal May 1919, p. 307-308.
Nourse, F. M.
Finding the needle in the haystack (photographs and cuts). System Feb. 1919, p. 218.
Peck, E. E.
Trade catalog file. Library journal July 1919, p. 442.
Selection of trade publications of manufacturing companies. The booklist April 1919, p. 285.
Stokes, C. W.
Classification and filing of photographs. Printers' ink August 3, 1916, p. 82-86.
70
All books and pamphlets received by the business library should be classified by subject, i. e., all material on a given subject should be brought together under the same subject number. The most satisfactory working scheme of subject classification which has yet been devised and which is most generally used is the Dewey Decimal Classification, Edition 9, 1915, which can be purchased from the Library Bureau, price $6.00. No subject classification is perfect and the Dewey Decimal Classification will not fit all business libraries equally well, but its elasticity of form and its notation is such that any expansion which may be required by the specialized character of the business library may readily be made by the trained librarian. The following list of extensions to the Dewey Decimal Classification may be of interest to engineers:
"Extension of the Dewey Decimal System of Classification Applied to the Engineering Industries," by L. B. Breckenridge and G. A. Goodenough, published in University of Illinois Engineering Experiment Station Bulletin 9, revised edition, 1912.
"Extension of Dewey Decimal System of Classification to Cover Municipal Engineering," by R. De L. French, in Canadian Engineer, Nov. 12, 1914.
"Extension of the Dewey Decimal System of Classification to the Gas Industry," by D. S. Knauss, American Gas Institute, October, 1914.
71
"Extension of the Dewey Decimal System of Classification Applied to Metallurgy, Metallography and Assaying," by R. M. Keeny, Colorado School of Mines Quarterly, Golden, Colo., April, 1911.
"Proposed Classification for an Engineering Library," by E. H. Frick and Esther Raymond published by American Society of Civil Engineers, 1916.
It must be remembered that business libraries
are small and the number of books and pamphlets to
be classified are few as compared with the enormous
collections in public libraries, so that the much discussed
question of new classifications which arises
periodically is not of so vital importance to the business
library as might appear, especially so when one
recognizes the importance of making an exhaustive
subject catalog to all material, which relieves the
business library from any undue difficulties in classification.
It will readily be seen that no subject classification
can bring together on the library shelves
all information on a subject, for the reason that some
books and pamphlets cover several well defined subjects
and the book can stand on the shelf in one subject
position only. Such difficulties are met most satisfactorily
by a subject catalog in which subject
entries are made under the most specific subject
heading and not under a broad term which includes
several well defined divisions of a general subject.
For example, a book on steam engines should be subject
cataloged under "Steam engines" and not under
"Engines," while a book on various kinds of engines
should be subject cataloged under "Engines" and not
under "Mechanical engineering." The book on engines,
if it treated of Marine engines, Gas engines[Pg 72]
[Pg 73]
and various other types could also have cards made
under those subjects in addition to the card which
was made under "Engines."
 
The pamphlet noted above is filed under "Safety movement" and an entry is made under the author's name for the card index, showing upon its face the subject names under which subject index cards have been made
 
If a pamphlet covers two or more subjects a subject card may be made for each subject. The subject under which the pamphlet is filed is shown by the Cutter book number. In this particular instance, the pamphlet is placed in the file under "Safety movement."
This method permits of a book or pamphlet being entered under any number of specific subjects on which it gives information and thus the subject catalog brings together all the information in the library on a specific subject, although it may not stand together on the shelves or in a vertical file.
 
All material put into vertical files need not be filed necessarily by a numerical subject classification such as the Dewey Decimal Classification; on the contrary a number of business libraries, which use the Decimal Classification for material put on the shelves, have organized most successful vertical files74 of miscellaneous material, clippings, pamphlets, etc., by the alphabetic-subject method. This simply means that the material is assigned, instead of a subject number, a specific subject name similar to that put on a subject catalog card and is filed alphabetically under that subject name written out in full upon the folder, to which may be prefixed a Cutter number assigned from the subject name of the material. The Cutter number, primarily designed to alphabet authors, is the first letter of a word combined with certain figures, designed to keep words in alphabetic order by their initial letter and the figures following it. The Cutter three figure alphabetic-order table, price $2.70, or the Cutter-Sanborn alphabetic-order table, price $3.00, both for sale by the Library Bureau, are equally good for use in the alphabetic-subject file. The Cutter two figure table may be used for a small collection of material. No business firm should attempt to install an alphabetical-subject file unless the work is done under the direction of a trained librarian who has had thorough training in cataloging and in the assigning of subject headings. The best information in print on the details of alphabetical-subject filing for business libraries is to be found in a pamphlet entitled "Pamphlets and Clippings in the Business Library" by Virginia Fairfax, published by the Journal of Electricity, San Francisco.
The advantage in using a Cutter number is, that it makes a convenient brief notation to use on the material to be filed and on the catalog card to show75 where the material is placed in the file. For temporary files of ephemeral material both the Cutter number and the card cataloging may be omitted. The alphabetic-subject file obviates the difficulties which arise when the business library finds it has material on subjects for which the Dewey Decimal Classification has not adequately provided.
Printed information on corporations collected by banking houses is most satisfactorily filed alphabetically under the name of each corporation with sub-divisions (i. e., mortgages, reports, etc.) under each corporation name where necessary.
Business men as a whole do not understand what cataloging involves nor its supreme importance. Most of them call it card indexing and think they have provided amply for it when they have purchased a card catalog cabinet and a supply of cards, without realizing what someone has recently said in a business periodical, that "the number of employes and the generosity of mechanical equipment are not the essentials of high grade production. Brains and floor space are unrelated." A card catalog to be a success, as a working tool, must be made according to a code of standardized rules by some one who has been thoroughly taught to use them. A code of catalog rules given to a novice who attempts to catalog by them without previous instruction will yield about as satisfactory results as an automobile does when it is operated by some one who has never run one before, and whose only knowledge consists76 of what he has read about it in a handbook. The truth of this contention is apparent when one considers that strict uniformity and accuracy must be maintained, not only in making author entries but particularly in making what the trained librarian calls subject headings with "see" and "see also" references which the business man is often heard to call cross indexing. (See Hitchler, Cataloging for Small Libraries, Chapters 5 and 6.) Cataloging must be as accurate as bookkeeping; a wrong figure, a mis-filed card or the entry of information under an incorrect subject, makes the catalog as useless as trying to unlock a door with a key that does not fit. The American Library Association, 78 East Washington Street, Chicago, Illinois, has issued a valuable list of suggestive "Subject Headings for Use in a Dictionary Catalog," third edition, price $2.50, which indicates proper terminology with cross references, and to which each business library will probably make many subject additions to suit its specific needs. The subject headings used in the "Readers' Guide to Periodical Literature" and the "Industrial Arts Index," mentioned in a previous chapter, are also of help to the business library in determining adequate subject headings for the card catalog. The ability to assign subject headings and cross references correctly requires both broad knowledge and a high degree of training and is one of the important assets which the business librarian derives from a library school education.
For the benefit of small offices which have a limited collection of material and will need to do very77 little cataloging or indexing, the sample author and subject cards are given to illustrate correct form.
Further helpful suggestions can be obtained from Hitchler's Cataloging for Small Libraries, published by the American Library Association, 78 East Washington Street, Chicago, Illinois, price $1.25.
 
The Library of Congress publishes catalog cards printed on the standard 3 by 5 inch card, one form of card only for each book, namely the author or main entry card, with suggestive subject headings printed at the bottom. To this card, if purchased, may be added the classification number of the book in the particular business library, and additional cards may be bought on which may be put the subject headings. Not many business libraries have made use of these printed cards issued by the Library of Congress, because business library material is so limited and78 specialized in selection that not enough Library of Congress catalog cards can be used to make it worth while to spend time in checking up what cards the Library of Congress issues, which can be used by the business library. The business library is always in a hurry to have its material cataloged and put on the shelves at once, and ordering and waiting for receipt of Library of Congress cards does not generally permit of quick enough work.
 
It is advisable that the card catalogs to material in the business library should be, as far as possible, alphabeted together in a single file, because information on a subject found in a book is cataloged under a specific subject heading, information on the same subject found in a periodical article is entered under the same subject heading as that used for the information in the book, and the same subject heading is79 used in the card catalog for the material which, because of its form, is put into the vertical file. The filing of these three subject cards together instead of in three separate card catalogs, namely, to books, periodicals and vertical file material, will show at once what the library has on that particular subject with a saving of time in consultation, as well as eliminating the risk of forgetting to look in three separate catalogs when investigating a subject, and avoiding the danger of mis-filing a card in a wrong catalog. If desired, references to periodical articles and vertical file material may be put on colored cards to show more quickly the disposition of the material in the library. Photographs, lantern slides, cuts and maps are best cared for by a separate card catalog to each file.
Colegrove, M. E. & McVety, M. A.
List of subject headings for information file. Elm tree press, Woodstock, Vt. (Modern American library economy series).
Dana, J. C.
Color and position filing. Elm tree press, Woodstock, Vt. (Modern American library economy series).
Dickey, P. A.
Care of pamphlets and clippings in libraries. H. W. Wilson & Company, New York City.
Fairfax, Virginia
Pamphlets and clippings in the business library; pamphlet printed by Journal of Electricity, San Francisco.
Krause, L. B.
Engineers' technical file. Engineering record Dec. 18, 1915, p. 760-61.
80
Krause, L. B.
Indexing data on stream flow and rainfall. Engineering record Jan. 31, 1914, p. 140-41.
McVety, M. A. & Colegrove, M. E.
Vertical file. Elm tree press, Woodstock, Vt. (Modern American library economy).
Ovitz, D. G.
The "Readers' Guide" and the vertical file. H. W. Wilson Company, New York City.
81
It is the purpose of this chapter to give an outline of the equipment required by the business library to do its work adequately. Some business men make the mistake of thinking that the mechanical equipment which they purchase will make a satisfactory library, while others put their faith in employing a librarian who they expect will create library service with the expenditure of very little money for facilities and tools for carrying on the work.
Both opinions are wrong, for the business library needs adequate equipment with which to perform acceptable service quite as much as it does a skillful librarian.
No business firm should consider establishing library service unless it is willing to provide suitable space for it, for the best librarian in the country cannot give satisfactory service with books and material scattered in various places, wedged in tightly and stored on top shelves or in storerooms where there is not quick access to them.
The writer knows of several business firms, who from lack of sufficient library space store their periodicals, and as far as any real use is concerned they might as well not have them. Often the plea82 of lack of floor space is a superficial reason and only indicative of the fact that the firm is following a short sighted policy and has not really waked up to the tremendous value of having such material in order and readily accessible.
In selecting the floor space for a business library a square or oblong portion of space without columns or jogs in the walls is preferable, as it permits of the most economical arrangement in putting in the required fixtures. Good daylight is of course most desirable but if this is not possible, care should be taken to have artificial light of high grade which can easily be provided by a system of indirect electric lighting supplemented by drop lights wherever necessary.
The library floor space should be completely covered with cork carpet both for cleanliness and quiet, and it should be laid before any shelving is set, in order to avoid cuts and seams which catch dirt and also look bad if the carpet is laid after immovable fittings have been installed.
In placing shelving for books, the most economical and compact arrangement is the stack plan, i.e., double faced bookcases set at right angles to a wall space and as close together as possible, but allowing ready access by narrow aisles not less than thirty inches wide between the tiers. The remaining wall space may be utilized by vertical files or wall shelving to supplement the capacity of the stack layout, but no business library of any considerable size should be laid out on the plan of wall shelving only, as it is a most unnecessary waste of space.
83
 
The space assigned for the business library should be primarily selected to accomplish best the work the library is designed to do, and this principle is entirely compatible with a dignified and attractive library layout, if it is done by someone who has both a knowledge of the work of the library and of the most approved library equipment. The floor plans of three business libraries are shown to illustrate the economical placing of shelves, vertical files and furniture in a given space.
84
 
85
Shall the library stack be wood or metal, open or enclosed with glass, and shall it have fixed or adjustable book shelves? Open metal stack, 7 feet 6 inches in height, with 7 adjustable shelves, 3 feet long, eight or 10 inches wide, in each tier, or open wood stack of the unit type, 6 feet 10 inches high, with adjustable shelves are both suitable, with a preference for wood, because it ordinarily costs less and looks better in a small library room. Some business offices which have only a few books are using wood bookcase units with sliding glass doors. These answer the purpose for very small collections in private offices, but if there is to be any real growth they constitute too great an expense in proportion to the number of books shelved, and are not economical in saving floor space. Even when such wooden units are placed together in double stack form they are not comparable in economy with metal or open wood stack because they are less durable, hold a less number of books per shelf, can not safely be built up to as great a height and do not save space by having adjustable shelves for books of varying heights. Glass doors to bookcases in a live business library are a pest and the only service which they really perform in keeping out a little dust does not compensate for their added expense especially when dust can be readily removed from open shelves by the use of a vacuum cleaner.
 
Plan No. 1 (850 square feet) has three windows at one end of the room and the librarian's desk, reading table, vertical files and card catalog cabinet are placed advantageously near these windows for good daylight. There is room also for additional desks near the windows.
Book stacks are placed at right angles to the windows at the rear of the room but require artificial light. The remaining wall space is used for wall stacks.
The best method for a business firm to pursue
in acquiring the most suitable and best arranged
shelving for a library is to have their librarian ask
one or two reputable firms making a specialty of[Pg 86]
[Pg 87]
library fittings to furnish drawings, descriptions
and prices of their stack, and also make suggestions
as to its best arrangement in a given floor space.
The trained librarian who has been educated in the
details of good and poor equipment and who knows
what an adequate layout should be, will readily point
out the merits and weaknesses of the specifications
in regard to standardization, simplicity and price.
It is always economical to equip even the smallest
business library with a high grade standard make of
shelving, which will never have to be discarded as
the library grows, and which can always be matched
when additional shelving needs to be purchased.
It must be remembered also that the business library is often not permanently located in a particular space because the layouts of all offices of business organizations are subject to change, due to growth in the business, and therefore library shelving which is well made, and of standard parts and which can be moved readily as occasion demands is most desirable.
The floor space for the business library should
not only provide for adequate shelving, but should
allow for vertical files and their growth. The value
of adequate vertical filing equipment can not be over-estimated,
because so much of the working material
in the business library must be kept in vertical files.
It is essential that drawers move easily and quietly
and do not get out of order, as this affords a great
saving in labor as well as quick service for the busy[Pg 88]
[Pg 89]
[Pg 90]
man who wants the contents at his immediate disposal.
 
Plan No. 2 (700 square feet) has two windows at the end of the room but requires a different layout from Plan No. 1 because of the dimensions of the room.
The narrow width of the room makes it impossible to place all of the vertical files near the daylight. The layout is an exception to the general principle that book stacks should be placed at right angles to windows, because the room is too long and narrow to permit of any daylight penetrating the aisles between the stacks if so placed, and a more economical arrangement is effected by placing the book stacks at right angles to a wall.
 
Plan No. 3 (600 square feet) showing two small rooms at right angles opening into each other with three windows in each room.
The first room is used for the librarian's desk, vertical files, card catalog cabinet and one wall stack for reference books, while the second room is used for the book stacks which are set at right angles to the windows thereby giving ample daylight between the stacks without the necessity of artificial lighting. Wall stacks are also used where possible to complete the capacity of the room.
The first room is used for the librarian's desk, vertical files, card catalog cabinet and one wall stack for reference books, while the second room is used for the book stacks which are set at right angles to the windows thereby giving ample daylight between the stacks without the necessity of artificial lighting. Wall stacks are also used where possible to complete the capacity of the room.]
There are a large variety of makes of vertical files which are bewildering to the average purchaser in their rival claims for superiority. What the purchaser needs as a guide is not a long list of all the makes of filing cabinets on the market but a brief comment on the kinds of cases which are worth while and the reasons why they are satisfactory.
 
These four styles of unit vertical files in wood are the same height and depth and permit of additions by the removal of the ends. They are the most suitable kind of files for business library work.
In order to allow for growth, filing cabinets of the unit type only should be considered, as this type provides for expansion by the addition of new units,91 for flexibility, in that the units may be easily rearranged as new units are added, and for economy of space in that the greatest variety of drawers or files will occupy minimum floor space.
There are two kinds of unit filing cabinets, namely, the horizontal type in which cabinets are placed one on top of the other, with removable top, and the vertical type in which units are placed side by side, with detachable ends.
Excellent illustrations of the various useful combinations possible with both types may be found in the trade catalog of the Library Bureau, entitled "Unit Filing Cabinets in Wood."
The mechanical operation of all file drawers should be the best obtainable. Trays should be rigidly made and yet light enough to be easily handled. Vertical filing drawers should be mounted on roller bearing slides in order that they may run easily when loaded, for as one manufacturer states, "The efficiency of every card and filing system depends directly on the ease and precision of the mechanical operation."
If wood cabinets are selected, care should be taken that these are purchased from a manufacturer who will guarantee that the woods used are well seasoned and perfectly kiln-dried so that there will be no shrinking, swelling or warping. These are necessary qualifications which can not be assured when purchasing the lower priced cases on the market.
 
Wood cases are preferable to steel for library
use, not only because of the appearance, but also[Pg 92]
[Pg 93]
because they are less noisy. Steel cabinets, despite
the rubber protectors or buffers which do not wear
for any length of time, are noisy. The fire resisting
qualities of steel are negligible as an argument for
their use in the average business library.
All card cabinets for library use should be made for the standard centimeter size library catalog card which is approximately 3 by 5 inches and should be purchased with round rods to pass through the lower margin of the card, so that the cards can not be accidentally spilled out or carelessly removed and misplaced.
A good quality of card should be selected, for experience proves it is a waste of time and money to put permanent records on a poor grade of cards; guides with celluloid tips are more durable than bristle board ones.
The best cards on the market have both evenly cut edges and sufficient stiffness to permit rapid fingering and are made of durable stock. These points are particularly emphasized because one of the faults of many business offices is the buying of cheap card supplies without taking into consideration the reason why more expensive cards are really the most economical.
No matter by whom the equipment and supplies of a business organization are ordered, the business librarian should always have the privilege of specifying grades and makes if the best results are to be obtained. It is never advisable for the sake of gen94eral office uniformity to force supplies upon the business library which are not best suited for its work, and the librarian is always the best judge of the most suitable ones by reason of trained judgment, and experience.
The ordering of books and periodicals should always be done by the librarian, who is thoroughly acquainted with the publishing field, and under no circumstances by the general purchasing department of an organization.
A few well known firms dealing in library supplies are as follows:
Democrat Printing Co., (supplies) Madison, Wis.
Gaylord Brothers, (supplies) Syracuse, N. Y. This firm makes a variety of pamphlet binders which are much used by many business libraries and are well worth investigating.
Library Bureau, (equipment and supplies) New York City, Chicago and branches in other cities.
Art Metal Construction Co., (equipment) Jamestown, N. Y. and branches in other cities.
Refer also to advertisers in the periodicals, "Library Journal" and "Public Libraries," which may be seen at the Public Library.
Leffingwell, W. H.
The office through a microscope. National efficiency quarterly August 1918, p. 85-111.
Library Bureau
Library supplies catalog no. L1018.
Unit wood book shelving catalog no. 70314.
Unit filing cabinets in wood catalog no. 8929.
Steel book stack catalog no. 70814.
95
All business organizations, whether they employ a librarian or not, have need of some reference books for general information as well as for special information along the lines of their individual work. If a librarian is not employed the reference books are not so valuable as they might be, because there is generally no one at hand so skilled in manipulating their indexes and contents, that the exact information required is immediately forthcoming; for it is in the field of reference books particularly that the business librarian acts as "Open Sesame" to the business man. The ability to find information is a matter of training; it does not suffice merely to possess books or to be told of existing resources. This truth was stated in a homely fashion some time ago by a practical engineering journal, which said:
"Books are just as much engineering tools as wrenches, hammers, or cold chisels, and it takes practice to successfully manipulate them. We have all probably laughed at the novice's first attempt to use a monkey wrench, a can can be just as clumsy with the books that he consults to assist him in solving his problems. Just as it took considerable time to acquire skill in handling tools about the plant, it also takes a lot of time to acquire the knack of getting information out of books," or to state the case in the words of the founder of the famous Poole's index system, "The facile proficiency in the use of books does not come by intuition."
It is the purpose of this chapter to make some practical comments on the best reference books for96 business libraries, from which each individual business library can make a selection according to its special needs.
The list aims to include only such reference books as have been found to be of actual use, and to exclude all references to books which although excellent in their lines, have no place in the work of the business library, and no further apology will be made for their omission.
No attempt is made to describe bibliographically the books listed. This has been well done for most of them in Kroeger's Guide to the Study of Reference Books, third edition, published by the American Library Association, 78 East Washington Street, Chicago, 1917, price $2.50. The few business men who have time to give to the detailed study of reference books will find this guide an authoritative treatise on the subject, and on file at the Public Library. Another useful aid in the selection of books for business libraries, both reference books and books on general business subjects, is entitled 2400 Business Books, third edition, issued by the H. W. Wilson Company, New York City, 1920, price $5.00. This volume is very useful in showing what literature is in print on various business subjects, but as the entries are not annotated it is not a guide to the relative value of the books listed.
Three excellent lists of worth while books on business subjects are A Select List of Books for97 Business Libraries, by Paul H. Nystrom in "National Efficiency Quarterly," May, 1918, A White List of Business Books, by John Cotton Dana, printed serially in "The Nation's Business," November, 1917-July, 1919, and Five Hundred Business Books published by American Library Association 1919.
Some publishers of business books whose catalogs may be had for the asking are as follows:
D. Appleton & Company, New York City.
Macmillan Company, New York City.
Harvard University Press, Cambridge, Mass.
Ronald Press, New York City.
A. W. Shaw Company, Chicago, Ill.
Two bibliographies on financial and economic subjects of value to business men are The Stock Exchange Business and Corporation Finance and Investment, published by The Investment Bankers Association of America, 111 West Monroe Street, Chicago, price $1.10 each.
In selecting reference books for a business library it is wise to keep in mind the following facts. It does not necessarily follow that because a book is printed on a subject it is therefore authoritative and worth while purchasing. Examine and test the credentials for worthiness of every reference book carefully. Even the best reference books fall down at some point and must be used with judgment. No matter how excellent a reference book appears to be in its accuracy and completeness, remember it is of no value to the business library unless that library has particular use for it. It is almost as serious a fault in98 a business library to have more books than are needed as it is to have too few books to meet the needs. A good purchasing rule to follow, is to buy only after it has been clearly demonstrated that the library has no book which will give certain information desired, for it has been found that a few well selected reference books will answer a multitude of questions, and some of the business libraries doing the best work have comparatively few working tools of this class. It must be remembered also that it is not sufficient to buy a copy of an annual publication once, but that the latest edition must be purchased each year in order that the information may be kept strictly up to date.
The first and foremost reference book which a business office needs is an English dictionary, for the men who dictate and the stenographers who write reports and letters must have an authoritative source to which they can turn for definitions, spelling, synonyms, hyphenation and pronunciation.
The two best single volume dictionaries, costing about sixteen dollars each, are the latest editions of the Standard Dictionary, published by Funk and Wagnalls, and Webster's New International Dictionary, published by Merriam. Of these two dictionaries the preference of many scholars is for Webster, although the Standard is considered most excellent on present day words and their meanings. One of the drawbacks in using Webster hurriedly is the divided page. In the upper part of the page the99 main words of the language are given, and in the lower part in smaller type are given the minor words, foreign phrases and abbreviations.
In an office which prepares a great deal of advertising material, or "copy" for publication, a thesaurus dictionary will be very useful. March's Thesaurus Dictionary of the English Language, Philadelphia Historical Publishing Company, "designed to suggest immediately any desired word to express exactly a given idea; a dictionary of synonyms, antonyms, idioms, foreign phrases, pronunciation, a copious correlation of words," may be purchased for $15.00, if an elaborate dictionary of this kind is to be desired. Roget's Thesaurus of English Words and Phrases may be purchased in several editions, prices $1.25 up to $2.00.
The business library will do well to provide a few books on business English, punctuation, capitalization, abbreviations and correspondence forms, a few of which are the following:
Vizetelly Desk Book of Errors in English, New York, Funk & Wagnalls, $1.00.
Putnam's Correspondence Handbook, New York, Putnam, $1.75.
Lewis Business English, Chicago, LaSalle Extension University, $1.40.
Manley & Powell Manual for Writers, University of Chicago Press, $1.25.
University of Chicago Manual of Style, University of Chicago Press, $1.50.
United States Public Printer Style Book, a compilation of rules governing executive, congressional and departmental printing, Washington, Superintendent of Documents, $0.15.
100
If a business library finds it needs any foreign language dictionaries, possibly French and Spanish, bilingual ones can be obtained in one volume editions from any first class book dealer at a cost of not more than $3.00 a volume.
The new edition of the Century Dictionary and Cyclopedia is a luxury for a business organization and need not be considered in this list, but the business library must have a general encyclopedia, and the best one for the American business office is without doubt the New International Encyclopedia, published by Dodd, Mead and Company in 23 volumes, latest edition 1916. Price bound in library buckram, $7.50 per volume.
Its advantages for business use over the new edition of the much recently advertised Encyclopedia Britannica, are that the point of view of the articles covers American needs better, that all information is alphabeted under the most specific subject word, so that no index volume has to be consulted as is the case in using the Britannica, and that there are ample "see" references, if the subject looked up is entered under a different terminology.
In regard to its authority, comprehensiveness, illustrations, maps and bibliographical references at the end of the articles, the New International ranks in the first class of encyclopedia productions. It can be purchased printed on the much exploited India paper if the saving of shelf space means more to the business office than does the rapid turning of leaves.101 The India paper leaves are apt to stick together and also crumple easily. The most desirable binding is library buckram rather than flexible leather, which some business libraries have been unwise enough to purchase. Dodd, Mead and Company also issue an excellent annual encyclopedia entitled the New International Year Book, as a supplement to the New International Encyclopedia, which brings the Encyclopedia down to date at a cost of $6.50 per volume.
The World Almanac and Encyclopedia, published for the New York World both in cloth and paper binding at 50 and 35 cents per volume, is an invaluable addition to the business library, no matter how well supplied it may be with pretentious encyclopedias. It is strong on statistics of all kinds which are brought down to date and contains a wide range of miscellaneous information which cannot be found readily in more expensive handbooks. It has an excellent index and is generally the best book to consult in a hurry in answering the many miscellaneous questions which arise in a business office. It has been estimated that it will answer 25% of the questions which come up in every day business experience.
Lippincott's New Gazetteer of the World, a geographical dictionary, Philadelphia, Lippincott, 1906, price $10.00, is useful but much out of date in its statistics.
The United States Bureau of Foreign and Domestic Commerce publishes each year the Statistical Abstract of the United States at 50 cents per volume, paper binding, or it may be had in cloth. This ab102stract gives tabulated statistics covering a number of years on the natural resources and various economic activities of the United States. This Bureau also publishes annually a valuable volume of statistics entitled Foreign Commerce and Navigation of the United States, which gives statistics of imports and exports of different classes of merchandise with rates of duty, quantities and value.
For commercial, political and statistical information about foreign countries the Statesman's Year Book, a British publication issued annually by Macmillan, at $7.50 per volume, is a valuable addition to any business library. It also gives a list of the best books on each country and its most important government publications, and includes a list of books relating to the war and a diary of its principal events. Maps of the different countries are also included.
The American Newspaper Annual, a directory published by Ayer and Son, Philadelphia, price $10.00, gives a list of all newspapers and periodicals published in the United States and territories, Canada, Cuba, West Indies, arranged by states and cities, with maps of the states and information about the industries and institutions of each city. It gives the population of cities and towns of the United States and Canada whose population is over 3,000. It lists all publications in foreign languages printed in different states of the United States and also gives a list of trade papers for certain industries. A mid-year supplement is free to subscribers.
103
Rand McNally's Commercial Atlas of America, published annually, price $35.00, is the best atlas of its kind on the market for a business office. The maps are indexed, and information on population, express offices, United States money order stations and the railroads of each town and city are given. This atlas has maps of the largest cities. Steamship and interurban lines are also shown.
Another valuable guide is the Official Hotel Red Book and Directory of the United States, Canada, Mexico, Cuba, Hawaii, West Indies and South American cities, published annually by the Official Hotel Red Book and Directory Company, New York City, price $6.00. This guide lists hotels under cities with brief notes on accommodations and rates.
Another similar guide is American Travel and Hotel Directory, published annually by Harold W. Phillips, 1133 Broadway, New York City, at $5.00 per volume.
The Official Guide of the Railways and Steam Navigation Lines of the United States, Porto Rico, Canada, Mexico, Cuba, also time tables of railroads in Central America, is published monthly by the National Railway Publication Company, New York City, $14.00 per year. It gives the current time tables in effect and the maps of the various railroads with indexes of their stations, and a general alphabetical index of all railway stations in the United States, Canada, Mexico, showing on what railroads a given place is located, with a similar index for points reached by water routes.
104
United States Official Post Office Guide, issued annually with eleven monthly supplements at $1.00 per year, gives information about mail rates and post office rulings, and also gives a complete list of the post offices in the United States.
The business library will find it helpful to obtain a single volume published by the Census Bureau entitled Abstract of the Thirteenth Census of the United States, 1910, which may be procured from the Superintendent of Documents, Washington, D. C., at the cost of $1.00. This abstract gives in condensed form with explanatory text, statistics to be found in the eleven volumes report of the 1910 census covering population, agriculture, manufactures and mining of the United States as a whole, individual states and principal cities. This abstract volume is issued in special editions for each state of the United States, which give special statistics pertaining to that state.
In regard to population figures, it is probably not generally known that the Census Bureau has issued bulletins giving estimates of the population of cities for each year subsequent to 1910, so that population figures for 1910 need not be considered as the latest official figures available. The 1920 census is being compiled as this volume goes to press.
The reference collection of a business library must be strong in books which will serve as directories of persons and industries, in order to answer questions on "who is who" and "where and what" are certain business organizations. The important point for consideration in selecting directories for a105 business library is that they must be not only accurate but as nearly up-to-date as possible, to be of real value.
Who's Who in America, a biographical dictionary of notable living men and women of the United States, giving brief biographical data and addresses of over twenty thousand Americans prominent in business and public affairs, professional life, or as authors, published biennially by A. N. Marquis and Company, Chicago, $7.50 per volume.
There are also similar brief biographical dictionaries published for certain states and cities which will be well known to the public libraries in those particular localities, and which will not be listed here as they are not of general interest to all localities; for example, The Book of Chicagoans, Who's Who in New England, Directory of Directors in the City of New York.
Every business library will need the latest edition of the Congressional Directory, as all business firms have at some time correspondence with, or need information on, congressmen, committees, departments and bureaus of the Government, also diplomatic and consular service. This volume may be purchased from the Superintendent of Documents, Washington, D. C., for 60 cents, in cloth binding.
The membership lists of national organizations representing different professions and industries are also very valuable, such as the membership of the American Society of Mechanical Engineers, American Society of Civil Engineers, and other associa106tions devoted to business interests as well as to professional work. The city directory and telephone list of any community must not be forgotten as helpful reference aids, also state gazetteers, and the collection of directories of various cities to be found at the public library will be found most useful.
G. P. Putnam Sons, New York City, publish a handbook called Directory of Mailing Lists, Obtainable in Book or Pamphlet Form, price $2.50, which tells where printed mailing lists of certain industries or classes of people may be obtained free or at a reasonable price.
Public Affairs Information Service, a weekly or bi-monthly cumulated service, according to the needs of subscribers, and cumulating in an annual volume, published by the H. W. Wilson Company, New York City, is a subject index to articles in current periodicals, pamphlets and books covering current economic problems. Price upon application. It is a valuable index to consult at the public library, as it is too expensive for the small business library.
Thomas' Register of American Manufacturers—"first hands in all lines"—is an indispensable directory. It is published annually by the Thomas Publishing Company, New York City, price $15.00. The entries are in three main sections. The first section classifies the manufacturers according to their products, in an alphabetical subject list; the second section lists the manufacturers alphabetically by their names, gives addresses, branch offices and officials for many of them; the third section lists all the popular trade names alphabetically, and there is an107 alphabetical index of subjects at the beginning of the volume, with plentiful cross references to all the subjects listed in section one.
Hendricks' Commercial Register of the United States is similar to Thomas' Register, but is especially devoted to the interests of contracting and construction industries. It is published annually by S. E. Hendricks Company, New York City, price $12.50.
Exporters and importers will find most useful, Kelly's Directory of Merchants, Manufacturers and Shippers of the World, 1921, Kelly Publishing Company, 70 Fifth Avenue, New York City, price $20.00.
The organization, personnel of management, earnings and financial history of industrial corporations in the United States are given in Moody's Manual of Railroad & Corporation Securities, published annually by Poor's Publishing Company, New York City. The publisher expects to issue the 1921 edition in four volumes as follows:
Vol. I—Railroads.
Vol. II—Public Utilities.
Vol. III—Industrials.
Vol. IV—Mining and Oil Companies.
The 1921 price will probably be $15.00 per volume.
Moody's Analyses of Investments is published in four parts as follows:
Part I—Steam Railroads.
Part II—Industrials.
Part III—Public Utilities.
Part IV—Government and Municipals.
108
These volumes cover much the same ground as the manuals just noted with the addition of ratings. They are published by John Moody, 35 Nassau street, New York City, at $15.00 per volume.
The Manual of Statistics Stock Exchange Handbook, similar in contents to the Poor & Moody volumes but not as full, is published annually by The Manual Statistics Company, New York City, at $12.00 per volume.
Investment Bankers and Brokers of America, issued annually by Sites Publishing Company, 441 Pearl Street, New York City, $17.50 per volume, is a useful directory to be used to supplement Rand McNally Bankers' Directory, issued semi-monthly in January and July, Chicago, price $25.00 per year, or the Bankers' Encyclopedia, issued semi-annually in March and September, New York, price $10.00 per volume.
Money and Investments, by Montgomery Rollins, "a reference book for the use of those desiring information in the handling of money or the investment thereof," is an excellent dictionary of financial terms, published by Financial Publishing Company, Boston, Mass., edition 4, price $3.00.
For the business firm who wishes to keep up to the minute on the latest information of what is going on in the world as affecting trade and finance, the Standard Statistics Company, 47 West street, New York City, issues Standard Daily Trade Service at a cost of $120.00 per year, which delivers each morning by first class mail a conveniently indexed and itemized digest of the important news regarding109 crops, commodities, countries, legislation, taxation, Federal trade regulation, transportation, etc., and in addition gives the subscriber the benefit of a Personal Service department for special information of value to him individually which does not appear on the daily report sheet.
In addition to the Daily Trade Service, the Standard Statistics Company also issues a similar daily service entitled Corporation News Service, which summarizes all the corporation news of the country. It also issues a Corporation Card and Bond Card Service which furnish daily revised card descriptions of corporations and bond issues.
The Federal Trade Information Service, 31 Nassau street, New York City, is similar in frequency and form of issue to the standard Daily Trade Service but is not as comprehensive in scope, as it covers only the activities of the Federal Government.
There is scarcely any industry which has not put out a reference handbook or directory covering its special field, and it is impossible in a brief treatise to list all of the reference books which pertain to a large number of industries. The best printed list from which to determine what directories and handbooks have been issued for certain industries is 2400 Business Books, which has been previously noted. Consult also the trade journals, and above all, do not forget to use the reference facilities to be found at the public library.
110
Thoughtful consideration of what the business library does will inevitably lead to one conclusion, namely, that the librarian, who is the director and inspiration of the work, must have greater educational qualifications than can be found in the average office employe who is engaged either in the capacity of stenographer or file clerk. The qualifications which are necessary to make a successful business librarian may be definitely stated as follows:
1. A college education or its equivalent.
2. A library school education or its equivalent.
3. Certain innate mental and social traits.
4. The business man's point of view.
The business librarian, no matter how well educated, will never have a superabundance of knowledge for the prosecution of the task, for the ramifications of business subjects are innumerable and touch the sum total of human knowledge; and while no one person can be master of all subjects, yet a college education, and the mental training which it implies, should give not only a wider knowledge, but a power of adaptability and versatility in working111 with information, which constitute an indispensable asset in the prosecution of business library work.
The type of college graduate who makes the best business librarian is the one who is able to exercise a high degree of concentration, think clearly and quickly, analyze subjects, understand cause and effects, make logical deductions and wise discriminations, express ideas clearly and to the point, and be able to discuss intelligently the information which he passes along to the business man.
It is only just to state at this point that some college graduates do not measure up to the standards which have been indicated, and that there are many well-educated men and women without college degrees who do; every man or woman must be judged on the basis of individual merit. A business organization, however, can make no more serious mistake than to think it can put its library work into the hands of some one of limited education, who, although he knows the work of the particular business by long apprenticeship, has not the important requisite of a larger point of view which is the result of a broad education, no matter by what means obtained.
W. H. Cameron, when general manager of the National Safety Council, writing of library work as an aid to that organization, stated the facts exactly when he said: "The problem of the industry, the application of the library's information, the method of presentation and the utility of the service, all require trained minds."
112
A liberal education, however, is not sufficient in itself to make a business librarian, unless that education has included the second requisite in the list of qualifications, namely, education in approved methods of library science, according to the standards taught by accredited library schools.
What is meant by library science, and why is it necessary that a business librarian should be trained in it, in order to do adequately the work of the business library? Library science is the standardization of the most approved methods of doing library work, based on the results of many years of study and practical experiment by librarians of large ability who have given their full time and energies to the task. In brief, methods of library work have been standardized by library experts and reduced to a practical, economical, effective science.
If this be the case, what possible justification can be found for business firms who waste time and money, in addition to getting no adequate results, in devising original methods for doing their library work? Trade periodicals, for several years, have published a number of articles treating of original methods adopted by various firms for filing and indexing their printed information. These original schemes reveal many weaknesses and discrepancies and also that many business men are entirely ignorant of the fact that library science has already produced much more excellent ways of working. No man is competent to work with any principle of sci113ence, much less modify it, until he is first master of it.
The structure of the business library must be built on the solid foundation of established library science, and there is no fact which business men need to realize more, than that library science as taught in professional library schools is not a simple code summed up in a few text books to be readily mastered by a novice and improved upon at will, but, on the contrary, that it covers a wide range of material, and must be studied by the use of many books devoted to classification, cataloging, reference work and other related subjects. True, there are primers of library science, but as well give a novice a primer on the steam engine and expect him therefore to be adequately equipped to run a power plant, as to put a novice with a library primer in charge of a business library with its highly specialized needs. A business organization would not think of engaging either a stenographer or a bookkeeper who is not trained to do his particular work; how much more, therefore, should a business librarian measure up to recognized standards of library training in order to perform adequately the difficult and important work which he is called upon to do.
The argument for the employment of a trained librarian can be briefly summed up in five words: the trained librarian knows how.
The trained librarian knows how to get and how to use sources of general information, how to keep up with the latest data on business subjects, how to use quickly and accurately the facilities of large city114 libraries, how to use all kinds of printed indexes, how to classify, catalog, and index material according to standard practice, so that no time or money is wasted in experimenting with inadequate systems, and last but not least, knows how to have a place for everything and everything in its place, so that desired information is immediately available.
As has been intimated, some college graduates cannot grade up to business library requirements, so also, some library school graduates are not suited for business library work, and rarely is a library school graduate, who has not been seasoned first by some thorough library experience, before coming into business library work, fitted for the task. Some trained librarians get so obsessed with the red tape and detail of their library training that they never dare to be original in modifying and adapting their fundamental library principles to new conditions and business problems, and therefore cannot create the type of service which is essential for business.
Some of the advocates of business libraries, having seen library trained people who have "fallen down on the job," speak slightingly of library training, and go to the other extreme, saying that the successful business librarian is born and not made. This is not true, because no innate qualification ever carries with it the ability to succeed in the absence of the proper training. "Both the heritage and the training of the faculties must go hand in hand to insure success." Trained librarians should be estimated by business men in the same manner as they estimate other skilled workers. When an engineer,115 or in fact any professional man, fails on a piece of work, his employers do not condemn engineering or professional schools as a whole, but try another trained man on the job. If a business man has made a wrong estimate in selecting his librarian, he should not quarrel with library training, but get a higher grade librarian.
The failure of some business librarians who have had both college education and training in library science is due not to inadequate knowledge but to lack of personal qualifications, and while personal qualifications alone will not make a successful business librarian, neither will a college education and training in library science make a successful business librarian without certain innate mental and social traits.
The mental and social traits required for success in any line of business work apply with equal force to the business librarian, and it is not necessary to enter into any academic discussion of them at this time. Everyone knows that good health, accuracy, thoroughness, common sense, good judgment, tact, integrity of character, and memory (particularly in library work) are indispensable to success in any career, but there are certain traits which a long term of service in a business library and an intimate acquaintance with many business librarians have made clear to the writer, as necessary to success in the business of being a business librarian.
The business librarian must be an executive; he must have not only a balanced view of every detail116 of library work in relation to its particular whole, but he must especially have an adequate vision of library work in relation to the whole work of his organization, and he must have the ability to see this relationship without waiting for some one to point it out to him. Finally, he must be able to relate the particular business and its existing service, to the work of the world at large.
A librarian serving a prominent business organization was recently asked by the writer, what was the scope of the work of their publicity department in furthering the interests of the organization as a whole, with the result that she could not tell. This librarian only knew that her business was to catalog, classify, put away and be able to get out again the material which was assigned to her care. The executive head of another important business organization has often complained because his librarian was afraid to take any initiative and always waited to be told what detailed policy should be pursued by the library; he was too busy to have to carry it on his mind, and more than that, he really did not know, and needed a librarian who did.
The business librarian must see the need, make the plan, and get all the mechanism necessary for its accomplishment into thorough working order, and have backbone enough to hold the point and have power to make others see it. There is no place in a business library for the mere "bookkeeping" methods of a recorded and finished job, for the work of the business library is never finished; it is a living force, and like all living things, it is subject to con117stant change and progress and never gets to the finished stage which suggests the orderly quiet calm of a graveyard!
What the business man wants from his librarian is results, and it is the business of the librarian to know the best way of getting them. The well qualified librarian can give results abundantly, if the business man will delegate authority to act independently in matters of detail, conferring on his librarian as he should, the freedom of action which he gives to the well qualified head of any department, and trusting his librarian to come to him for a conference when the occasion demands. There is no greater handicap to a well qualified librarian than the type of business man who does not delegate authority, and who because of his success in other lines of business, attempts to guide his librarian in matters of library policy about which he knows absolutely nothing.
The business librarian must be unusually resourceful and know how to meet an urgent need for information with quick decision and immediate action. He never says "impossible" until he has tried every possible source of supply.
Probably one of the finest compliments ever paid a business librarian was given by the executive head of a large institution who, having seen the resourcefulness of a certain business librarian in several difficult situations, remarked, "I am confident that if a twenty-story building fell down on Miss B——, she would find a way to get out from under it," and he might also have added truthfully, "and118 she would also keep a spirit of enthusiasm in the venture," for to the true business librarian the fascination in the game of finding things never wears out.
The business librarian will not be punctilious about adhering to a time schedule for work or to any standard of rights or privileges; he will put the demand of his work first and his personal interests second. If it is necessary to break an important personal engagement made for his free time, because business of importance has arisen in the office, he will do so without any question or irritation. If he can best serve the company in an urgent need, he will not wait to be waited upon by an office boy, but will go himself rather than trust a boy who cannot be relied upon to hurry. The business librarian will not be old-maidish or fussy over any irregular demands which upset his routine work; there is no place in business for the trained librarian who tells a busy man of affairs he cannot have what he wants until certain regular routine has been carried out, and in return the business man should trust his librarian with a freedom of action which is not subject to a time clock or a time schedule.
The business librarian must be able to work harmoniously with "all sorts and conditions of men," and he must convince every one whom the business library serves of honest good-will and impartiality to all, and genuine loyalty to the organization which he serves. He will be discreet and will not gossip about company business on the aside in the office, or on the outside, and last but not least, he ought to have119 a saving sense of humor. These qualifications may seem exceedingly trite, but the lack of them has been a severe handicap and a glaring defect in many people filling different kinds of business positions.
The successful business man knows the value and power of acquaintance as a business asset, and the business librarian must maintain a wide acquaintance and friendly relationships with other library and business workers, both for practical help and general stimulation. It is a real part of the work of a business librarian to take time to cultivate these outside relationships and attend library conferences, at the expense of the business organization by which he is employed. The importance of these outside relationships has been noted in the first chapter, as helpful ways of getting information not in print.
The business man who keeps his librarian's nose on the grindstone of routine work, so that he never has an opportunity for outside fellowship and the stimulation that comes from it, soon loses more than he gains by such a policy.
The business librarian must also have a genuine and intelligent interest in current political and economic events, and in the kind of information in which business men as a class are interested. He must know the contents of the daily newspaper as well as does the closest reader among business men, so that he will not do as one librarian did—endeavor to give an inquirer an item three weeks old when the latest news on the subject was in the yesterday120 morning's paper, or waste time looking up statistics on a South American town, which current news reports as having recently burnt down. He must be a constant and thoughtful reader on subjects which pertain to the business of his organization.
The business librarian must have the promoter spirit; he must see that the information which he has on hand is applied and working, and he must be alert enough to see in some measure the undeveloped sides of an industry, and endeavor to bring into the organization, information which may stimulate it to new activities.
To sum up all requirements for a successful business librarian: he (or she, as the case may be) must have a liberal education, plus a knowledge of library science, and a sympathetic understanding of business needs, together with the vision and personal power necessary to apply the field of print effectively in meeting these needs.
In conclusion, the business man must face fairly several facts, the chief of which is, that in only a limited number of cases have business libraries measured up to the standards which have been outlined in this handbook, because business firms have not engaged librarians who have the necessary qualifications for success. Some business men have not recognized that there are librarians and librarians, and that many so-called ones are not adequately equipped for business library work. Business men are at fault also because they often do not give personal attention to the selection of a librarian, but leave this selection to an employment manager or a121 welfare worker who very often does not know just what essential qualifications are necessary for such a position. Sometimes the business man does not want to pay the price for an efficient librarian, for no efficient librarian can be obtained for the average file clerk or stenographer salary. One high grade librarian will accomplish more work, both accurately and effectively, than two mediocre ones can possibly do, and is therefore a money-saver.
If there is any doubt in the business man's mind as to whether there is enough library work in his organization to keep a trained librarian continuously busy, it may be said, that in no instance which has come to the knowledge of the writer, has a trained librarian ever been employed by a business organization which has not found there was immediately developed a valuable library service which required the full time and energy of the librarian.
Bostwick, A. E.
Some principles of business-like conduct in libraries 1920 30 p. American library association, 78 East Washington Street, Chicago.
Brush, M. C.
The so-called librarian's real duties. Special libraries, June 1917, p. 83-84.
Greer, A. F. P.
Professional ethics for the library worker. Library journal Nov. 1917, p. 891-92.
Kilduff, E. J.
Necessary characteristics of the private secretary. (In his Private secretary p. 293-17).
Rathbone, J. A.
Library school courses as training for business librarians. Special libraries Nov. 1917, p. 133-35.
122
Walter, F. K.
Training librarians for business libraries or branches. Paper read before Professional training section American library association conference 1919. Library journal Sept. 1919, p. 578-80.
123
Obvious typographical errors have been silently corrected, but other variations in spelling and punctuation are unchanged.
The half title immediately before the title has been removed.