Title: Manufacturing Cost Data on Artificial Ice
Author: Otto Luhr
Herman Friedl
Release date: July 11, 2009 [eBook #29375]
                Most recently updated: January 5, 2021
Language: English
Credits: Produced by Don Kostuch
Manufacturing Cost Data 
ON 
Artificial Ice 
MADE IN 
ACCORDANCE WITH 
OTTO LUHR 
CONSULTING ENGINEER 
&
HERMAN FRIEDL 
ARCHITECT 
ICE MAKING SYSTEM 
PATENT APPLIED FOR 
154 WEST RANDOLPH STREET 
CHICAGO, ILL. 
Ice for Commercial Purposes 
ICE for commercial purposes is obtained in two ways: either by cutting during the winter time from our lakes and rivers and storing in large Ice Storage Houses located alongside, or by freezing pure clean water by means of artificial refrigeration.
All authorities are agreed that artificial ice is more sanitary than natural ice and it is only a matter of time when the use of natural ice will be prohibited except in special cases when the purity of its source of supply is beyond doubt.
Our improved method of making artificial ice will cut the labor cost down to the minimum and will enable the manufacturer to profitably sell artificial ice at the price natural ice can be harvested. The logical result thereof will be the building of a large number of modern ice plants all over the country to supply the market with artificial ice in place of the present natural ice.
We do not claim any wonders for our system but believe that the
following points of advantage will convince any practical ice
manufacturer that the labor cost has been cut in two.
 
Second. Our air supply is permanently connected to the cans and the supply to each can can be regulated, if required.
Third. We have a continuous air supply to the cans during freezing as well as during thawing, dumping and filling. Our air supply never ceases.
Fourth. Our air is automatically cooled down to the temperature of the brine in the tank thereby eliminating all possibility of moisture in the air pipes.
Fifth. Our cans are held in a solid frame of steel work and are connected to the crane from the time the cans are pulled until they are put back into the tanks, thereby doubling the life of the cans.
We give herewith data covering the cost of manufacturing ice and will
guarantee that under reasonably fair management the number of men
required will not be exceeded. 
Do not fail to carefully analyze the following cost data. They may seem extremely low but a thorough study of our system will prove them to be very conservative.
[1]
NUMBER ONE 
Manufacturing Costs Per Ton of Ice 
Using Electric Power at Present Chicago 
Rates for Power and Labor
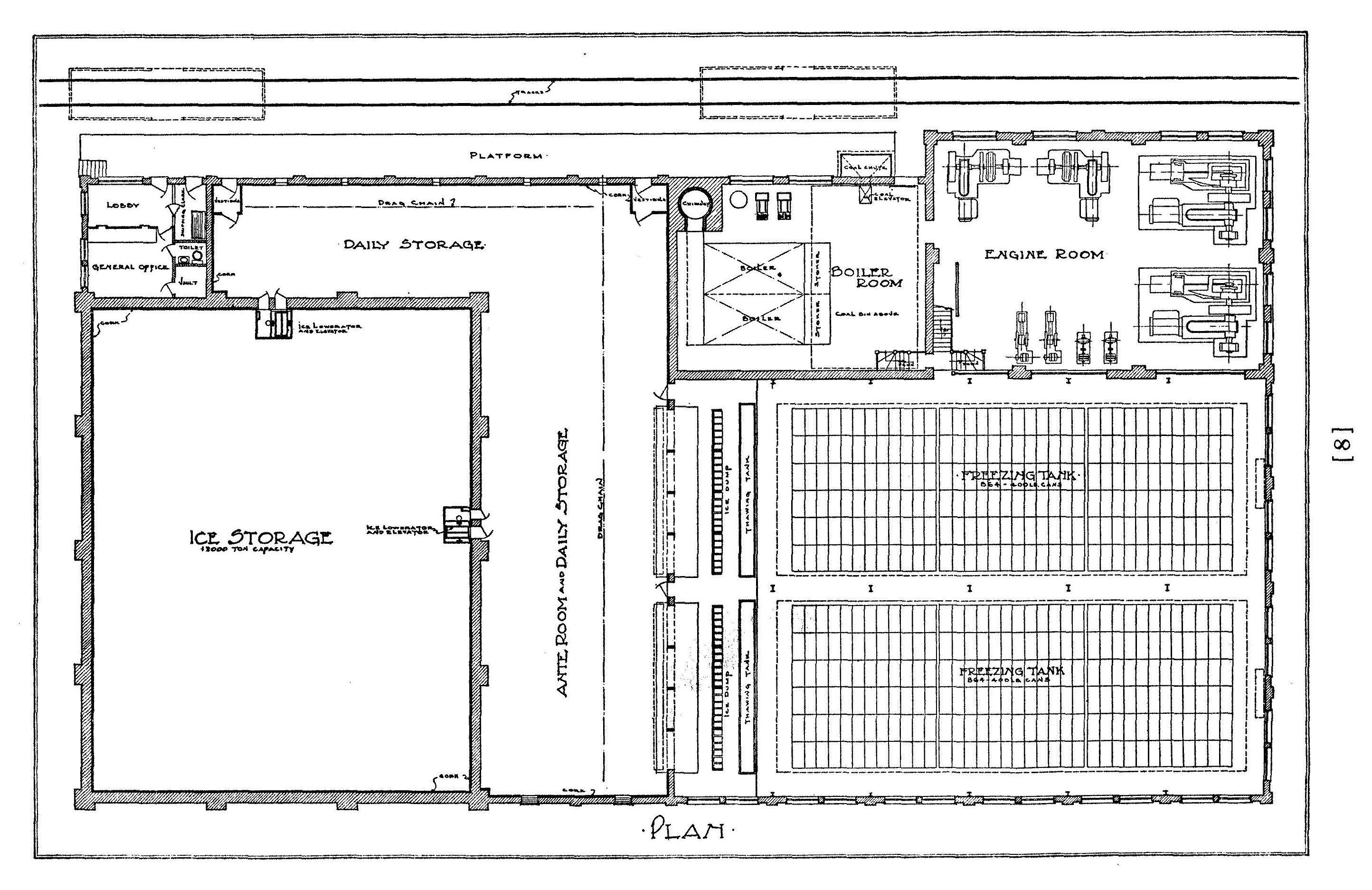
Capacity of plant, 240 tons of ice per day, using 2692 cans of 400-lb. capacity.
18000-ton storage house.
Average current requirement for freezing one ton of ice, including storage cooling and all auxiliaries, 55 K. W. hours.
Average cost per K. W. hour, .9 cent.
Current cost per ton of ice, 55 x .9, equals 49.6 cents.
Assuming one month's shut-down for inspection and repairs, the total output of 240 tons of ice for 333 days amounts to 79,920 tons, or roughly speaking 80,000 tons of ice.
Adding 1/2 cent per ton of ice for the required heating, the total power 
cost of making 80,000 tons of ice is (80,000 x .50) = $ 40,000.00 
| 1 chief engineer per day | $ 10.00 | 
| 3 engineers per day | $ 8.00 | 
| Total per day | $ 34.00 | 
| 365 days at $34.00 equals | $ 12,410.00 | 
| 3 men pulling ice and setting it up in store-room. | per day $ 6.00 | 
| 3 men in store-room | per day $ 6.00 | 
| 1 shipping clerk | per day $ 8.00 | 
| Total labor | per day $ 44.00 | 
| For filling the winter storage house and taking the ice out of it will require 3 additional men for five months, equals 150 days x $18.00, equals | $ 2,700.00 | 
240 tons of ice equal 1200---400-lb. cans. As 24 cans are pulled at one time it requires 1200 / 24 = 50 pulls per day, or one pull every 29 minutes. The ice-puller has therefore ample time to set up all ice pulled in storage house as directed.
| Cost of Ammonia at | 2 cent per ton | $ 1,600.00 | 
| Cost of Oil and Waste at | 2 cent per ton | $ 1,600.00 | 
| Cost of Water at | 3 cent per ton | $ 2,400.00 | 
| Cost of Salt at | 72 cent per ton | $ 400.00 | 
| Plant Maintenance and Repairs |  | $ 3,500.00 | 
| 1 Manager and Salesman, per year | $ 5,000.00 | 
| 1 Bookkeeper, per year | $ 2,400.00 | 
| Stationery, Telephone, etc | $ 600.00 | 
| Total Cost | $ 8,000.00 | 
| 8 per cent interest on $350,000.00 investment | $ 28,000.00 | |
| 8 per cent interest on value of land ($20,000.00) | $ 1,600.00 | |
| 8 per cent interest on $10,000.00 working capital | $ 800.00 | |
| 3 per cent depreciation on $350,000.00 | $ 10,500.00 | |
| Insurance (estimated) | $ 1,500.00 | |
| Taxes (estimated) | $ 3,500.00 | |
| Total | $ 45,900.00 | 
| Manufacturing cost including office expense | $ 1.10.840 | 
| Overhead charges | $ 0.57.375 | 
| Month | Ice produced per day | Ice sold direct per day | Ice stored per day | Ice Sold from storage daily | Total Ice stored in 30 days | 
| January | 240 | 65 | 175 | 5250 | |
| February | 240 | 65 | 175 | 5250 | |
| March | 240 | 115 | 125 | 3750 | |
| April | 240 | 165 | 75 | 2250 | |
| May | 240 | 300 | 60 | ||
| June | 240 | 400 | 160 | ||
| July | 240 | 400 | 160 | ||
| August | 240 | 400 | 160 | ||
| September | 240 | 350 | 110 | ||
| October | 240 | 200 | 40 | 1200 | |
| November | 240 | 140 | 100 | 3000 | |
| December | None | 65 | 65 | ||
| Tons | 20700 | ||||
| Less Tons | 1950 | ||||
| Total Tons | 18750 | 
During the month of December, the Ice Plant will be shut down for overhauling and repairs, and part of the ice stored during November will be sold in December, therefore, requiring a total storage capacity of 18,750 tons, of which 750 tons will be stored in the ante-room and 18,000 tons will be stored in the big winter storage.
| Month | Tons per day | Total Tons | 
| January | 65 | 1,950 | 
| February | 65 | 1,950 | 
| March | 115 | 3,450 | 
| April | 165 | 4,950 | 
| May | 240 | 7,200 | 
| June | 240 | 7,200 | 
| July | 240 | 7,200 | 
| August | 240 | 7,200 | 
| September. | 240 | 7,200 | 
| October | 200 | 6,000 | 
| November | 140 | 4,200 | 
| December | 65 | 1,950 | 
| Total output tons | 60,450 | 
NOTE--These sales can only be realized if the dealer has at least 18,000 tons of natural ice on hand to enable him to take care of the family trade during the hot months.
If no large supply of natural ice is on hand hardly 50,000 tons can be sold, thereby increasing the cost per ton considerably.
POWER COST: 
Due to numerous starting and stopping of compressor during the slack
months the maximeter charges will be higher and therefore it must be
assumed that 60 K. W. hours will be required per ton of ice instead of
55 K. W. hours for continuous consumption. 
60 K. W. hours per ton of ice at .9 cent per K. W. hour equals 54 cents per ton. Adding 1/2 cent per ton for the required heating the power cost for making 60,450 tons of ice equals 60,450 x 54.5 cents, equals $ 32,945.25
| 1 chief engineer per day | $ 10.00 | 
| 3 engineers per day | $ 8.00 | 
| Total per day | $ 34.00 | 
| 365 days at $34.00 equals | $ 12,410.00 | 
| 6 ice pullers per day | $ 6.00 | 
| 3 air men per day | $ 6.00 | 
| 6 storage house men per day | $ 6.00 | 
| Total per day | $ 90.00 | 
| 184 days at $90.00 equals | $ 16,560.00 | 
| 6 pullers per day | $ 6.00 | 
| 4 storage house men per day | $ 6.00 | 
| Total per day | $ 60.00 | 
| 91 days at $60.00 equals | $ 5,460.00 | 
| 3 pullers per day | $ 6.00 | 
| 3 storage house men per day | $ 6.00 | 
| Total per day | $ 36.00 | 
| 92 days at $36.00 equals | $ 3,312.00 | 
| 1 shipping clerk per day | $ 8.00 | 
| 330 days x 8 equals | $ 2,640.00 | 
| Cost of Ammonia at | 2 cent per ton | $ 1,209.00 | 
| Cost of Oil and Waste at | 2 cent per ton | $ 1,209.00 | 
| Cost of Water at | 3 cent per ton | $ 1,813.50 | 
| Cost of Salt at | 1/2 cent per ton | $ 302.25 | 
| Plant Maintenance and Repairs | $ 2,800.00 | 
| 1 Manager and Salesman per year | $ 5,000.00 | 
| 1 Bookkeeper per year | $ 2,400.00 | 
| Stationery, Telephone, etc | $ 600.00 | 
| Total Cost | $ 8,000.00 | 
| 8 per cent Interest on $280,000.00 investment | $ 22,400.00 | 
| 8 per cent Interest on value of land ($12,000.00) | $ 960.00 | 
| 8 per cent interest on $8,000.00 working capita | $ 640.00 | 
| 3 per cent depreciation on $280,000.00 | $ 8,400.00 | 
| Insurance (estimated) | $ 1,200.00 | 
| Taxes (estimated) | $ 2,500.00 | 
| Total Overhead Charge | 36,100.00 | 
| May, June, July, August, September and October require: | ||
| 3 ice pullers | per day $ 6.00 | |
| 3 storage house men | per day $ 6.00 | |
| Total | per day $ 36.00 | |
| 184 days at $ 36.00 equals |  | $ 6,624.00 | 
| March, April and November require: | ||
| 3 ice pullers | per day $ 6.00 | |
| 2 storage house men | per day $ 6.00 | |
| Total per day | $ 30.00 | |
| 91 days at $ 30.00 equals |  | $ 2,730.00 | 
| December, January and February require: | ||
| 3 ice pullers | per day $ 6.00 | |
| 1 storage house man | per day $ 6.00 | |
| Total | per day $ 24.00 | |
| 92 days at $ 24.00 equals | $ 2,208.00 | |
| 1 shipping clerk | per day $ 8.00 | |
| 330 days x 8 equals. | $ 2,640.00 | |
| Total Labor Cost. | $ 14,202.00 | 


COST OF POWER: 
A modern, highly efficient and economical steam driven high speed
compressor plant must be installed so as to get the maximum power out
of coal. The boiler room will contain two 250-H. P. water-tube boilers
with automatic stokers and coal bin overhead holding two weeks' supply
of coal. Steam pressure 175 lbs. As the firing of the boilers is
automatic and requires practically no work on the part of the
engineers, no firemen are needed. Ashes will also be removed
automatically. The engine room equipment will consist of two 175-ton
high speed compressors, direct connected to two Simple Condensing
Una-flow Engines; also two generators, two cooling tower water pumps,
two air compressors, switchboard, etc. All to be equipped with the
latest labor and power-saving devices.
Equipped as above, 25 tons of refrigeration can be easily obtained from
one ton of ordinary 12,500 B T U coal. 1.8 ton of refrigeration is
required to produce one ton of ice including the required cooling of
storage house. 
Therefore the power cost of making one ton of ice with coal at $5.00
per ton equals $5.00 divided by 25/1.8 = 37 cent. (One cent per
ton of ice is added for heating of dipping tank water.)
Assuming one month's shut-down for inspection and repairs, the total
output of 160 tons of ice for 333 days amounts to 53,280 tons of ice. 
| 1 chief engineer | per day $ 8.00 | |
| 3 engineers | per day $ 6.00 | |
| 1 shipping clerk | per day $ 6.00 | |
| 3 men in Storage House | per day $ 4.00 | |
| Total | per day $ 44.00 | |
| 365 days at $44.00 per day equals | $ 16,060.00 | |
| Additional labor cost for putting 12,000 tons into winter storage and taking out at $4.00 per day | $ 1,200.00 | |
| Total Labor Cost | $ 17,260.00 | 
| 1 Office Man (Manager and Bookkeeper) | $ 3,000.00 | |
| Stationery, Telephone, etc. (per year) | $ 300.00 | |
| Total Office Expense | $ 3,300.00 | 
| Cost of Ammonia at 2 cent per ton | $ 1,065.60 | 
| Cost of Oil and Waste at 2 cent per ton | $ 1,065.60 | 
| Cost of Water at 3 cent per ton | $ 1,598.40 | 
| Cost of Salt at 1/2 cent per ton | $ 266.40 | 
| Plant Maintenance and Repairs | $ 2,200.00 | 
| 8 per cent interest on $220,000.00 investment equals | $ 17,600.00 | 
| 8 per cent interest on value of land ($10,000.00) | $ 800.00 | 
| 8 per cent interest on working capital ($7,500.00) | $ 600.00 | 
| 3 per cent depreciation on $220,000.00 | $ 6,600.00 | 
| Insurance (estimated) | $ 1,000.00 | 
| Taxes (estimated) | $ 2,000.00 | 
| Total overhead charges | $ 28,600.00 | 
| Overhead charges | $ 0.53.7 | 
| Manufacturing Cost (total) | $ 0.87.2 | 
A modern, highly efficient and economical steam driven high speed compressor plant must be installed so as to get the maximum power out of coal. The boiler-room will contain two 200-H. P. water-tube boilers with automatic stokers and coal bin overhead holding two weeks' supply of coal. Steam pressure 175 lbs. As the firing of the boilers is automatic and requires practically no work on the part of the engineers, no firemen will be needed. Ashes will also be automatically removed. The engine room equipment will consist of two 100-ton high speed compressors, direct connected to two Simple Condensing Unaflow Engines; also two generators, two cooling tower pumps, two air compressors, switchboard, etc. All to be equipped with the latest labor and power-saving devices.
Equipped as above, 25 tons of refrigeration can be easily obtained from one ton of ordinary 12500 B T U coal. 1.8 tons of refrigeration is required to produce one ton of ice, including the cooling of the storage house.
Therefore, the power cost of making one ton of ice with coal at $5.00
per ton equals $5.00 divided by 25/1.8 = 37 cent. (One cent per ton of
ice is added for heating of dipping-tank water.
Assuming one month's shut down for inspection and repairs, the total
output of 100 tons of ice for 333 days amounts to 33,300 tons of ice. 
The total power cost of making 33,300 tons of ice is therefore, 
33,300 x 37 cent, equals $ 12,321.00 
| 1 Chief Engineer per day | $ 8.00 | |
| 3 Engineers per day | $ 6.00 | |
| 2 Storage House Men per day | $ 4.00 | |
| Total per day | $ 34.00 | |
| Total 365 days at $34.00 per day | $ 12,410.00 | |
| Additional labor cost for putting 7,500 tons into winter storage and taking out at $4.00 per day | $ 750.00 | |
| Total labor cost | $ 13,160.00 | 
| 1 Office Man (Manager and Bookkeeper) | $ 3,000.00 | 
| Stationery, Telephone, etc. (per year) | $ 300.00 | 
| Total Office Expense | $ 3,300.00 | 
| Cost of Ammonia at | 2 cent per ton | $ 666.00 | 
| Cost of Oil and Waste at | 2 cent per ton | $ 666.00 | 
| Cost of Water at | 3 cent per ton | $ 999.00 | 
| Cost of Salt at | 1/2 cent per ton | $ 166.50 | 
| Plant Maintenance and Repairs | $ 1,500.00 | 
| 8 per cent interest on $150,000.00 investment | $ 12,000.00 | 
| 8 per cent interest on value of land ($7,000.00) | $ 560.00 | 
| 8 per cent interest on $5,000.00 working capital | $ 400.00 | 
| 3 per cent depreciation on $150,000.00 | $ 4,500.00 | 
| Insurance (estimated) | $ 700.00 | 
| Taxes (estimated) | $ 1,360.00 | 
| Total overhead charges | $ 19,520.00 | 
| Overhead charges | 68.7 cent | 
| Manufacturing Cost | 98.3 cent | 


| Harry A. McDonald | President | 
| Nelson J. Dessert | Vice president | 
| Carl F. Siclaff | Vice president | 
| Harry J. Weigand | Treasurer & Comptroller | 
| Jerome H. Remick | Ice Cream Sales & Service | 
| J. Harry Brickley | Retail Milk Sales | 
| Oliver G. Spaulding | Legal Department | 
| Richard L. Baire | Advertising | 
| Frank McVeigh | Purchasing Department | 
| Ben F. Taylor | Ice Cream Production | 
| Ben F. Taylor | Ice Cream Delivery | 
| Edward C. Krahl | Henry St. Production | 
| Doc Grayson | Laboratory | 
| John Kostuch | Plant Engineer - Maintenance | 
| John Kostuch | Power & Refrigeration | 
| J. Harry Watson | Transportation | 
| J. Harry Watson | Shops | 
| H. Terry Snowday | Wholesale Milk Sales | 
| Carl O. Tuttle | Butter Department | 
| Tom Wood | Credit & Collections | 
| J. McWilliams | Detroit Creamery Farms | 
| Garages | Detroit Subs. (Advisory) | 
| Auto Shops | Detroit (Met. Area) | 
| Subs. (Advisory) | |
| Paint Shops | Detroit & Subs. | 
| Electrical Shops | Detroit Subs. (Advisory) | 
| Carpenter Shops | Detroit & Sub. (Advisory) | 
| Stables | Detroit (Advisory) | 
| Barnmen | Sub. (Advisory) | 
| Washers | |
| Blacksmiths | |
| Wagon Shops | Detroit & Subs | 
| Harness Shops | Detroit & Subs. | 
| Plumbing Shops | Detroit | 
| Sign Shop | Detroit & Subs. | 
| Tin Shop | Detroit & Subs. | 
| Special Delivery and Trucking | Detroit (Main) | 
| Branch Trucking | |
| Special Trucking |