Title: El Kab
Author: James Edward Quibell
Release date: December 9, 2008 [eBook #27466]
Language: English
Credits: Produced by Steven Giacomelli, Jason Isbell, Anne Storer
        and the Online Distributed Proofreading Team at
        http://www.pgdp.net (This file was produced from images
        generously made available by Case Western Reserve University
        Preservation Department Digital Library)
Transcriber’s Notes:
1) [.a] = dot above a
2) Spelling of Sneferu / Snefru left as in the original.
3) Any reference to scale (eg: ⅓ life-size) has been left as in
the original - however as the reproduction of images varies from
the original, these are no longer accurate.
BY
J. E. QUIBELL.
IN ASSOCIATION WITH THE WORK OF
SOMERS CLARKE and J. J. TYLOR.
LONDON:
BERNARD QUARITCH, 15, PICCADILLY, W.
1898.
LONDON:
PRINTED BY WILLIAM CLOWES AND SONS, Limited,
STAMFORD STREET AND CHARING CROSS.
| INTRODUCTION. | ||
|---|---|---|
| sect. | page | |
| 1. | Course of work | 1 | 
| 2. | Chance of inscribed tombs | 2 | 
| 3. | Description of site | 2 | 
| CHAPTER I. | ||
| The Earliest Tombs. | ||
| 4. | Mastabas and stairway tombs | 3 | 
| 5. | Ka-mena mastaba | 3 | 
| 6. | A mastaba | 4 | 
| 7. | Compound mastaba | 4 | 
| 8. | Nefer-shem-em | 5 | 
| 9. | Early black cylinder | 5 | 
| 10. | Smaller mastabas | 5 | 
| 11. | Stairway tomb with inscribed cylinder | 7 | 
| 12. | Open graves | 8 | 
| 13. | Majūr and cist burials | 9 | 
| CHAPTER II. | ||
| Date of the “New Race” Remains. | ||
| 14. | Variety of names | 11 | 
| 15. | First dating erroneous | 11 | 
| 16. | Evidence from El Kab | 12 | 
| 17. | From other sites | 12 | 
| 18. | Doubtful points | 13 | 
| CHAPTER III. | ||
| Middle Kingdom Cemetery. | ||
| 19. | Early XIIth dynasty tombs and the wall | 13 | 
| 20. | Tombs in detail | 14 | 
| 21. | Later XIIth dynasty tombs | 14 | 
| 22. | Beads | 15 | 
| CHAPTER IV. | ||
| New Empire Monuments. | ||
| 23. | Few XVIIIth dynasty remains | 15 | 
| 24. | Temple of Amenhotep III. | 16 | 
| 25. | Foundation deposits | 16 | 
| 26. | Temple near the east gate | 17 | 
| 27. | The date of the wall | 17 | 
| 28. | Bronzes | 17 | 
| 29. | Pigeon-house | 17 | 
| CHAPTER V. | ||
| Description of the Plates. | ||
| 30. | Plate I. | 17 | 
| 31. | Plates II-VI. Photographs | 17 | 
| 32. | ” VII-IX. Mastabas and tombs | 19 | 
| 33. | Plate X. Alabaster vessels | 19 | 
| 34. | Plates XI-XII. Libyan and early pottery | 19 | 
| 35. | ” XIII-XVII. XIIth dynasty pottery | 19 | 
| 36. | ” XVIII-XIX. Marks on pottery | 20 | 
| 37. | Plate XX. Pottery, scarabs, and cylinders | 20 | 
| 38. | ” XXI. Foundation deposits | 20 | 
| 39. | Plates XXII-XXVI. Plans | 21 | 
| 40. | Plate XXVII. Contents of tombs | 21 | 
| I. | Tomb plans. | 
| II. | Old Empire stone vases, etc. (photographs). | 
| III. | Sandstone statue of Nefer-shem-em, and group of objects from the tomb of Ka-mena (photographs). | 
| IV. | Sandstone table of offerings and two stelæ (photographs). | 
| V. | XIIth dynasty statuette and ushabti, a late bronze, etc. (photographs). | 
| VI. | Diorite, alabaster and pottery vessels of Old Empire (photographs). | 
| VII. | Sketches of mastabas. | 
| VIII. | Sketch of a mastaba, and box of ivory and glaze veneer. | 
| IX. | Views of a stairway tomb. | 
| X. | Alabaster vessels, XIIth and IVth dynasties. | 
| XI. | Libyan and Old Kingdom pottery. | 
| XII. | Old Kingdom pottery. | 
| XIII. | Pottery, early XIIth dynasty. | 
| XIV. | XIIth dynasty water-jars. | 
| XV. | ”” pottery. | 
| XVI. | ”” ” | 
| XVII. | ”” ” | 
| XVIII. | Marks on Old Kingdom pottery. | 
| XIX. | ” Middle Kingdom pots. | 
| XX. | Pottery, scarabs and inscribed cylinders. | 
| XXI. | Foundation deposits. | 
| XXII. | Plan of cemetery E. of town. | 
| XXIII. | ” mastabas N. of town. | 
| XXIV. | ” tombs in S.E. angle of the enclosure. | 
| XXV. | Plan of gateway in wall. | 
| XXVI. | ” temple of Thothmes III. | 
| XXVII. | Catalogue of small Libyan tombs. | 
1. It was on Mr. Somers Clarke’s proposition that El Kab was selected for last winter’s work of the Research Account. Mr. Clarke has for some years been interested in this site, and has published some of the XVIIIth dynasty tombs there. He wished to see the smaller tombs excavated, and the great area inside the town examined, so, with his colleague, Mr. J. J. Tylor, he offered a considerable subscription to the funds, on condition that El Kab should be the selected site. To Mr. Jesse Howarth, equally with these gentlemen, we are indebted for that support without which the excavations could not have been carried out.
We arrived at El Kab on the 1st of December, and within four days had cleared out several of the uninscribed tombs in the famous hill, and had made them into a most comfortable house. Nothing in Egypt makes so pleasant a dwelling as a rock-tomb. In a house in which window and door are one, and three sides and the roof are of solid rock, there can be no draughts, and the range of temperature night and day is very small. We had a room each, another for a dining-room, and in two more I packed away my forty workmen. These were nearly all men known in previous years at Kuft and Naqada, for the natives of El Kab are few in number and of inferior physical strength, so that their labour at two piastres a day was dearer than that of the picked Kuftis at four. All the conditions of work were very pleasant, much better than I have known in Egypt before. No crowd of loiterers and dealers’ spies haunted the work as at Kuft, no robbery by workmen threatened us as at Thebes. Surveying poles were left out for weeks together; at most villages they would have been stolen the first night for firewood.
There was some delay in getting the necessary permission for digging; after a fortnight’s waiting we received it, and began to work upon the XIIth dynasty cemetery. Halfway through March the digging was gradually brought to an end, and map-making and packing occupied the time till we left in the beginning of April. Fifty-four boxes of pottery and other objects were brought to England, were exhibited during the month of July at University College, and were then dispersed to various museums, Oxford, Philadelphia, Chicago and Manchester, receiving the largest shares. I have to acknowledge much help received both in Egypt and England. To Mr. Clarke, besides the financial support mentioned already, we owe thanks for help in the work of excavation, in plan-making, drawing, etc., and for his untiring hospitality. To Miss A. A. Pirie, who was with us for the later two-thirds of the season, we are indebted for several coloured drawings of tombs, etc., now at University College, and to her, as also to my sister, for constant aid in the varied daily occupations of the digger, tasks in which their experience makes them most valuable helpers, and which they cheerfully added to the labours of desert housekeeping. In England, several friends have helped in the work of unpacking, exhibiting, drawing plates, etc., notably Miss Griffith, Miss Murray, Mr. Herbert Thompson and Dr. Walker. Few outside the little ring of diggers and their friends know how much drudgery in Egypt and in England is taken off our hands by friendly helpers, working without a thought of reward.
2. The site of El Kab is a large one. The area inside the town walls alone would have required to clear it five times the money we had at our disposal; and besides that, there was the hill of XVIIIth dynasty tombs, the cemeteries outside the walls, and the temples far up on the desert. It was necessary to make careful choice of such spots as would repay the labour expended on them. The most obvious [Pg 2] place to search would be the sandstone hill in which we lived, where the fine inscribed tombs of Paheri and Aahmes are well known. But is there much chance of finding inscribed tombs anywhere in Egypt except at Thebes? We know that the tomb was left open for the visits of relatives, and open it must always have remained, unless it got drifted up with sand, or unless the quarrying of another tomb on a higher level sent down a mass of chips which hid it. At the capital, tombs were often lost for long periods in this way; in less crowded cemeteries the accident would seem to be less likely to happen. Many traces in the existing tombs at El Kab show that earlier tombs were quarried away in order to make room for them. This would seem to minimise the chances of finding anything valuable of early date; and if by chance some inscribed tomb still remains hidden in the talus of chips in the lower part of the hill, the business of making a thorough search there would be so long and expensive that it will probably remain undiscovered.
3. The greatest monument at El Kab is the town wall, the huge mass of which must arrest the attention of every passer-by on the river. It encloses a great square of about 580 yards in the side; the walls are 40 feet thick, and in most places still reach a height of 20 feet. The diagonal of the square runs, roughly, N. and S., and the S.W. wall is parallel to the river. The S.W. corner has disappeared; indeed the river now runs over the point where it must have stood. There is evidence that the Nile has moved eastward at this point, but not to any great extent, within the last 2000 years, for some remains of a landing-stage, believed to be Roman, can still be seen a little south of the town. About a quarter of the area inside the walls was cut off from the rest by a curved double wall, and only inside this smaller area are there many traces of buildings. Here, in the early part of the century, was a large mound, but now the sebakhin have carried it all away, and we look over a most desolate space, at one part red with the broken pottery of all periods, thrown out from the sebakh-digger’s sieve, at another white with the salt that everywhere permeates the soil. A few great brick walls remain, and the foundations of the temple, but no part of the superstructure. Outside this town, but inside the great square of the walls, the character of the ground is quite different. There are no great masses of pottery, hardly any brick walls; in the lower parts little parallel ridges in the soil show that cultivation has been carried on there within the last few years; for the rest, the ground is covered with pebbles, much like the untouched desert, and here and there are fragments of pottery, evidently of early date. These were most numerous on two or three slight rises which, as we afterwards found, had contained groups of tombs. Thus, on the day we arrived, was presented the first puzzle of El Kab. The greater part of the enclosure had never been inhabited, at least by people living in houses and using pottery. What, then, could have been the purpose of the huge walls? The north wall (strictly, the north-west, but called north for convenience) could be crossed by walking up the great sand-slope, which reaches to its top on both sides. This is driven up by the prevalent north wind. A similar, but much smaller, heap has drifted against the north side of the south wall. From the top of the north wall one has a good view of the whole neighbourhood. The town lies at the mouth of a wide valley, flanked by broken ranges of sandstone hills. An hour’s walk up this valley is to be seen the little square block of Amenhotep III’s temple, the great isolated rock of the graffiti, and, rather nearer, the small temple of Rameses. The low hill to the left, half a mile away, is the hill of tombs. The row of black dots sloping downwards to the east are the doorways of the tombs; they follow the bed of soundest rock. Further to the north is a rock looking, in the distance, like a huge mushroom. This is a hill of which there remains only the upper part, resting on great pillars; the flanks of the hill and all the inside of it except these pillars have been quarried away, the stone being used probably for the temples of El Kab. The strip of cultivated land is very narrow at this part, often less than 500 yards wide.
Immediately to the east of the walls the ground has been disturbed, being covered with small and equal rises and depressions; scraps of XIIth dynasty pottery scattered over its surface showed that here was the cemetery of the Middle Kingdom.
Note.—I stopped for five hours at Kafr-es-Zaiat on the railway journey from Alexandria to Cairo to examine a site, which may be the Serapeum of the Saite nome. On the map, in the Description de l’Egypt, some ruins are marked as the village of El Naharieh, north of Kafr-es-Zaiat. I found, on talking with the people, that ruins had existed there thirty years ago, but that now all the ground they had covered had been brought into cultivation. Under the mats in the mosques some blocks of granite of old Egyptian work may be seen, and I [Pg 3] noticed the cartouche of Necho twice. The sheikh of the village had, too, a fine lintel, used as a gate-post. This he kindly had moved for me, and on it I saw the name of the Serapeum of the Saite nome, Hat-biti, again with the cartouche of Necho. (Cf. de Rougé, Géographie de la Basse Égypte, p. 22.)
THE EARLIEST TOMBS.
4. The lower parts of the ground inside the enclosure had been very thoroughly looted, chiefly by the natives of El Kab, when cultivating. We found many small graves about 6 feet long, 2 feet wide, and waist deep, but containing no bones, and with so little pottery in them that it took some time to determine their period. But in the two low mounds to the north, and the larger one in the south, graves of several kinds soon appeared. Of these one set were clearly later than the rest. Their enclosure walls, within which several burials were found, were at right angles to the great wall of the town, and cut through the other graves (mastabas) which, though parallel to one another, were skew to the town walls. These earlier tombs were of several types: (1) mastabas with square shafts; (2) mastabas with sloping “stairways,” both of crude brick; (3) burials in the kind of large earthenware pot that our workmen call a majūr; and (4) burials of that now well-known type which has been called New Race, Libyan, Neolithic, etc., and which is distinguished by the contracted position of the body with the head to the south, and by a very definite class of pottery, paint slabs, beads, etc. The mastabas were found both within and outside of the town walls, one group (Pl. XXIII) lying quite close to them. On three diorite bowls found in these graves (one inside the walls, the others outside) the name of Sneferu appeared. As this is the only king’s name occurring in any of these tombs, it seems probable that most of them may belong to the reign of Sneferu, or to the period immediately following. And the town walls, being built through the Old Kingdom cemetery, are, of course, the later in date.
About thirteen “stairway” tombs and thirty-seven mastabas were examined. The precise number cannot be given, for when the walls of the mastaba are entirely denuded, and only the well is left, one cannot be sure that the grave was ever of the mastaba form. Of smaller graves which yielded any evidence, there were about fifty-three; but many more, which, from their position, orientation, and size, could be assigned to the early period, were quite empty, or contained only a few potsherds.
5. The most important mastaba was that of Ka-mena (Pl. XXIII). It is one of a group which we found under the great mound of drifted sand on the north side of the wall. Pl. VII gives two views of this group of tombs during the process of excavation. The low walls are denuded near the end of the sand-slope to a single brick’s height; in the centre they are a metre high, and they sink again towards the end under the great wall. They are built with recessed panels, and were originally plastered and painted white. Round the whole tomb runs a boundary wall. The two small closed chambers at the end of the last passage (corresponding to those which, in the tomb of Nefer-shem-em, contained his two statues) were empty, but a few fragments of the legs of a small sandstone statue were found near. In the E. wall itself there are two niches; in and near them were found many small pieces of worked limestone, some inscribed. They are copied in Pl. XVIII, 49-53 and 55. The face in 49 retained a touch of green paint on the cheek, an important piece of evidence for the dating of the Naqada tombs, the occupants of which also used this method of adorning themselves. The pieces, 53 and 54, seem to be parts of a stela; 50 and 55 are from the bases of limestone statues.
The inscriptions give us Ka-mena’s name, and show him as a king’s acquaintance and a priest.
The chambers inside the mastaba, left blank in the plan, were found filled with brick earth; this was cleared out, but nothing save a scrap of IVth dynasty pottery was found. The earth was doubtless thrown in in this way to economise bricks; the cross walls would serve only to keep this loose earth from falling down the well in the centre. The well was about 15 feet deep, filled with thick, damp clay, the bottom being, even in January, very near the water-level. The chamber was to the south, closed by a rough-hewn slab of sandstone three inches thick. It should be noted that the sandstone in the neighbourhood breaks naturally into very flat plates, so that it is easy to pick out slabs which, with very little dressing, will serve for building; such pieces were found in many of the early tombs. This slab being removed, the chamber was found to be full of a very tenacious clay, much of which had to be cut away with a knife, for in so tough a substance a light blow with an adze [Pg 4] has no effect, and a heavy one may damage some valuable object before it can be seen. The whole chamber was lined with flat sandstone blocks, but the thin roof slabs had given way under pressure of the earth above. The style of building was irregular (v. Pl. I), the blocks being fitted, but not squared. The body had lain on the west side, with its head north; no trace of a coffin remained, and the bones were a mere white paste, only to be distinguished by scraping sections with a knife through mud and bone. Under the whole body was a bed of white sand. Near the entrance were six vases (XI, 12), of a shape and fabric indistinguishable from a late Neolithic form common at Naqada, and opposite the middle of the body was a group of important objects. These were: a model granary in rough red pottery (Pl. VI), each little storehouse having an opening above, closed by a stopper; another similar granary in fragments, three vertical alabaster jars, an alabaster circular table, and the group of bowls and model tools shown in Pl. III. These last consist of—
(1.) A bowl and ewer, probably of copper, not of bronze.
(2.) A bowl of porphyry, a flat bowl of a beautiful light-coloured and translucent diorite, and a flat dish made of a darker variety of the same stone. This last is inscribed with the Ka name of Snefru, Neb Maat, the chisel-like sign of the maat being written on the convex side of the sickle, and the door-frame of the name surmounted by a hawk.
(3.) A set of model tools, axe, knife, adzes and chisels, shown again in outline on Pl. XVIII, 56-65. These have been analysed by Dr. Gladstone, who writes as follows:—
“The largest fragment gave—
Per cent.
Copper 98·4
Arsenic 0·3
Iron 0·2
Bismuth trace
Lead trace
Antimony trace?
Oxygen as cuprous oxide trace
It is, of course, essentially copper, the minute quantities of the other constituents being due, in all probability, to impurities in the ore. The total absence of tin is the most notable feature.”
6. The small mastaba W. of Ka-mena’s is of simpler construction. The brickwork may have been recessed, though this could not be ascertained, as its walls were only two bricks high, and the panelling in the other mastabas does not reach so near the ground. There is no enclosing wall, but there is a passage on the east side, with low cross walls which I do not understand. The chamber at the bottom of the well is to the south; it was not closed by a stone. Near the mouth, to the east, was a small coffin of red pottery; its size showed it to be that of a child buried in a contracted position. Between the coffin and the side of the chamber was a diorite bowl; south of this were two vertical jars and a circular table, all of alabaster. On the west side of the chamber lay the body, on its left side, and with the head north; the arms and legs were sharply bent, the heels being brought close to the hips.
7. To the west of this is the compound mastaba marked C in the plan. The southern half was built later than the northern, the panelling of which can be seen inside the first well beyond the cross wall. The spaces marked 1, 3 and 6 are only chambers filled with clay; 2, 4 and 5 are all tomb wells.
The well (4) was exceptional in that its chamber was to the west and not to the south. It was 5·3 m. deep, and scattered through the earth in it were coarse pots of the types in Pl. XII (23, 30, 31, 33, 34, 40). Inside the chamber were two vertical alabaster jars, a circular table, a diorite bowl, fragments of malachite, a small river shell containing white paint, and one of the pots (XI, 12) like those in Ka-mena’s tomb.
At the bottom of the next well (5) stood one of the large hemispherical pots (majūrs) which were used as coffins (XX, 5). It was 60 cm. in diameter, but was empty and inverted. Against the mouth of the chamber was a stone slab two metres high, one side of it much broken away. The chamber was, as in all these tombs, filled with thick mud, and scattered through this mud, or on the floor, lay the following objects: a diorite bowl of the ordinary shape, containing a small vase of alabaster inverted over a mass of green paint (malachite), a smaller bowl also of diorite, an alabaster table upside down, and two more alabaster vessels.
Below these lay what once had been a very curious box. The pattern of the lid is shown in Pl. VIII, 2. It is composed of small flat strips of ivory, 1 mm. thick, and of pieces of glaze, blue and black; these had apparently been glued on to a background of wood, but this had entirely decayed, and the thin film of decoration was left in the mass of heavy clay. After clearing it sufficiently to learn its nature and size, we drove a piece of tinplate under it, and so lifted out the whole lump of earth in which it was contained. [Pg 5] Inside the house we could at leisure scrape away the soil from one side, and pour melted beeswax in its place, then turn the whole over and repeat the process on the other side. In this way a large piece was brought to England embedded in wax. This wax was afterwards removed, and replaced on the inside by plaster of Paris. The size of the box was about 12 inches long by 8 inches broad, and 5 inches high. It had been much crushed, and the sides could not be saved. The contents were a small porphyry bowl (X, 44), a shell, and some green paint.
8. The mastabas C, Ca, and D were contained in the same boundary wall. C appears to be the earliest, then Ca, then D. The inner half of the passage between C and D is lined with stone; at the end, bricked up in a little chamber, were found the two statues of Nefer-shem-em; to him, therefore, belonged the tomb D. The statue to the west was in sandstone (Pl. III), a standing figure, ⅓ life-size; the head was missing, only a few fragments of it being found below the statue. The surface of the stone had been covered with a fine layer of plaster, reddened with haematite, of which some traces remained; the skirt was painted white.
The other statue of limestone represents Nefer-shem-em seated. The head is well preserved, and the whole statue is a good example of Old Kingdom work, though not of the most finished style, and much damaged by salt. It does not show the “Schminkstriche.” The inscriptions incised on the base of the standing figure, and on the right side of the chair of the seated one, are the same:—
Suten rekh se hez neter hon Nefer-shem-em.
(Number in Ghizeh Catalogue, 650.)
The mastaba D of Nefer-shem-em is of the ordinary type, with two niches on the east, two chambers filled with brick earth, and a central well. This well was filled with bodies, not buried with care, but thrown down in every contorted attitude. The position of twenty-three skulls and bodies was noted, and then, as no plan or arrangement appeared, the rest were left to be taken out by the men. A scarab of Amen-ankh-as, found in one of the bodies on the upper level, appears to give the late XVIIIth dynasty as the date for this mass of burials.
9. The next mastaba (E) is of a curious form; the S. niche is over one of the wells instead of being in the outer wall. Both wells were cleared until we were stopped by water. From one came the fragments of a pottery sarcophagus of the small type.
The small mastaba (301) nearer the town wall was of more interest. In its well were found fragments of the rough early pottery (Pl. XII), of the short type of earthenware coffin, and of a majūr (XX, 5), also a piece of a diorite bowl, on which the name Sneferu had been very roughly scratched, and a small (¾-inch) black stone cylinder (XX, 32). This is of a type already fairly well known from bought specimens (there are twenty-one in the Edwards Coll.), and suspected to be early, but not hitherto found by a European. The engraving shows a figure seated before a table and wearing a huge wig.
10. The next mastaba (No, 288) was inside the town. Just to the south of the tomb passage, as if thrown out from it, lay a great many pots of coarse pottery of the shapes shown in the top of Pl. XII. These pots were also found in the passages between mastabas, and fragments of them in very great quantities were scattered over the tombs, especially over those of the “stairway” type. This suggests that the coarse pottery was used, not in the interment, but for the offerings brought by relatives to the tombs. They were placed, probably, opposite the niches, and when they became inconveniently numerous, were thrown away over the tomb wall. Several hundreds of these pots were found, heaped together, behind two mastabas to the north of the wall (Pl. VII, C, D).
The tomb had been robbed. Fragments of one of the large, circular, bowl coffins (XX, 5) were scattered through the earth all down the shaft, and the great slab which had closed the door was thrown over at the bottom of the well. The chamber was empty, but under the flat stone were found fragments of a slate dish, of an alabaster table, and of four diorite bowls. Of one of these, the largest I have seen (Pl. II, 1), more than two-thirds of the pieces remained; it was inscribed, in neat, deep characters, suten biti Sneferu, the name of the king being written without the cartouche. In this tomb was also one of the coarse bars of pottery that I have found both in Old Kingdom and in Neolithic tombs, the use of which is by no means clear. They were, when complete, about 2 feet 6 inches long, and 4 inches thick; they are flat on one side, rounded on the other. The sides of one Neolithic tomb at Ballas were lined with bars of this kind. In another, the body was sheltered by a large inverted dish resting upon several of them; frequently fragments of two or three were found in a tomb. Perhaps they were used as supports for the coffin.
[Pg 6] In tomb No. 312, which was probably a mastaba, though the walls were not observed, the well was but 2 metres deep. The chamber was at the west, and was just large enough to contain the pottery coffin and a few pots. The coffin was of the short type (3 feet long); the body lay on its left side, crouched up, head to the N., and face E. One bone from the foot lay outside the coffin at the foot end, where also lay a small bowl of diorite, part of another in limestone, bracelets in shell and horn, an ivory hairpin, and a shell containing green paint. Through the earth in the tomb-shaft were scattered a large number of coarse pots (Pl. XII, two of 41, 45, 43, a hundred and four of 22, more than a hundred of 31).
In tomb No. 318, the burial chamber lay to the west of the well, 2 m. above the bottom of it, 3·7 m. from the top. The bones were scattered and broken, but the chamber was so small that the burial must have been a contracted one. There remained a diorite bowl (11 inches diameter), a vertical alabaster jar, a smaller one containing green paint, and part of a bowl in a good red ware, of the same open shape as the bronze bowl of Ka-mena’s tomb.
No. 315 contained a fragment of sculpture (XVIII, 55). No. 319 had the regular group of alabaster table and small and large diorite bowl, with two of the long egg-shaped pots (XI, 12), a vase with a spout (Pl. XII, 55), and one of the open red pottery bowls, as in No. 318, and Ka-mena (Pl. XII, 51).
Next comes a group of tombs with square wells, and chambers closed by a large block of stone, which tombs are probably mastabas, although the panelled brickwork was not found.
No. 42. A large square well, 200 m. to the N. of the town wall. Scattered in the earth were fragments of all the common coarse varieties of IVth dynasty pottery, and also of the bowl-like coffins (XX, 5). The half of an ivory cylinder (XX, 33) and the small black cylinder (XX, 31), with an inscription which is, apparently, not Egyptian, were found amongst them; there was also a small slate dish, and the egg-shaped pot (XII, 49).
No. 88, inside the town, was a well 2 metres deep. The chamber was closed by a large stone (1·00 m. × ·65 m.), but an entrance had been effected behind it. There remained in the chamber four stone bowls of the shapes so often found together (X, 22, 39, 44, 48), and in the shaft were part of a majūr, and twenty-five coarse pots (nineteen of XII, 23, two of 37, four of 31).
No. 101. A well, 3 metres deep, with chamber to the south, contained, with the regular coarse pottery, the less common shape XII, 26, and also some fragments of the later Neolithic large vases (Naqada, XL, 40 or 46). Necks of these same vases were in No. 150 with the coarse pottery, and also one of the yellow clay dolls, about 15 cm. long, representing a woman with very long legs, and a great square-ended wig. These dolls are well known, and were supposed to be of the Middle Kingdom. There was no sign in this tomb of a secondary burial, so it may be that the dolls are even of the Old Kingdom.
No. 185. At 2·10 metres below the surface were the pieces of a small pottery cist, a majūr (complete), under which lay the body, in the contracted position, the head to the south, a stone bowl, and an ivory comb, together with a few beads, felspar discs, and shell-shaped beads of serpentine, apparently of Neolithic style. Forty cm. lower were some cylindrical beads in green glaze, and shells with the stains of green paint. In the earth above were scattered examples of the regular series of coarse pots (XII, 23, 31, 35, 45).
No. 187, a well 3 metres deep, contained only an inverted pottery cist, inside which was a body lying upon the left side, with the head to the north.
No. 191, a well 2·50 metres deep, was peculiar in that it contained no chamber; the body was protected from the earth above by a double roof of sandstone slabs, supported on other slabs at the sides. The body was sharply bent up, the knees being nearly opposite the mouth; it lay on the left side with the head south. At the head stood an alabaster vase (X, 31) of a late Neolithic shape. This tomb, but for its exceptional depth, might be classed among the Neolithic interments.
In No. 192 the body was in an abnormal position, for while the arms lay at full length, and the thighs in a line with the body, the knees were so sharply bent that heels and hips were in contact. The head was to the north, and the face east.
No. 204 was another square well with a chamber below, which had been closed by a thin brick wall; it contained a square, flat, slate palette, parts of a slate dish, and three pots of a Neolithic shape (XI, 12).
No. 228 was a square well near a group of stairway tombs. In it were two burials, the first in a pottery cist placed in one corner of the well at 1·5 metres from the surface. The body was contracted, the head to the north; the only object placed with the body was a shell near the hips. Below this cist lay another [Pg 7] body in a wooden box painted white. This also was in the sharply contracted Neolithic position, hands and knees both before the face; the head lay to the north, and the body was on its left side. Lower still in the well were pots of the coarse Old Kingdom types. Both these bodies, presumably, are secondary burials.
No. 231 contained three pots of Old Kingdom types (XII, 23, 54, 31), with fragments of a large majūr (XX, 5), and one sherd of a thin ware, black inside, and decorated outside with rows of pricked marks. This cannot be distinguished from certain fragments obtained in the Neolithic cemetery at Ballas.
No. 280, a well north of the wall, sunk below water-level, but in the filling were found the regular group of coarse pots (XII, 31, 36, 35, 33).
In 197 the coarse pottery occurred with chips of malachite, and in 233 with a vertical alabaster vase and fragments of a large vase identical with a large late Neolithic shape.
11. We next turn to the other large class of tombs, those entered by stairways. These may all have been mastabas. The characteristic massive brick walls remain in several cases, in one, at least, retaining the recessed panel work and niches. But it may be that these stairway tombs are rather older than those mastabas which have square wells, and it seems best not to group them together. The appearance of these tombs may be seen in Miss Murray’s black and white reproduction of two sketches by Miss Pirie (Pl. IX).
The first view shows the stairway, as seen from below, looking northward; in the other view one is supposed to be looking southward at the vertical end of the shaft, the tomb entrance and the stone door.
All these tombs were robbed, excepting, possibly, one. This (St. 2) was the smallest tomb of the kind that I have seen. The stair was reduced to a couple of roughly cut steps; the total depth was only 1 m., and though a large stone slab had been placed as a door to the burial chamber, a robber had only to pierce 20 cm. of soil to get into the chamber through the roof. The chamber, which was about a metre square, was filled with a thick damp clay. The bones had decayed so much that only a few parts could be identified but distinctive fragments of the skull, the hip ends of the two femurs, a tibia, a radius and ulna, enabled one to see that the body had lain on the left side with the head to the north. Before the face was an ivory cup (shape X, 44). Below the body was a little red dust with spots of white in it, probably the remains of a wooden coffin painted white.
In and below the white paste, which was all that was left of the bones of the hand, were two nuggets of gold (one 18 dwts. = 28 grammes) and a handful of barrel-shaped carnelian beads mixed with very small beads of gold. By scraping away the earth very gently, one could see that the gold beads had been strung together to form bands 5 or 6 mm. broad, alternating with bands of carnelian. A gold bar, 2 cm. long, pierced with five holes, had clearly served to hold the strings on which the beads were threaded. There was also a bracelet of a single thick gold wire. The total weight of gold was about 4 oz. (125 grammes). In the N.W. corner of the tomb, behind the head, were five vessels of ivory, two very coarse vertical jars (14 and 19 cm.), two bowls (23 and 26 cm. diameter), one with a spout (X, 26), and a bowl of the speading shape of Ka-mena’s bronze (XII, 51); there was also a small double vase of limestone (X, 15). A little steatite plaque with the inscription Neb.ra was stated by the workmen to have come from this tomb, and there is no reason to doubt them; but I did not actually see it in place. The name Neb.ra is one of the three Ka names on the shoulder of the famous archaic statue No. I at Ghizeh, and the name on the plaque may perhaps be the same, though it is not written in the square Ka frame.
In the side of the tomb were two small balls of limestone and one of carnelian, in shape and size like playing marbles, and some fragments of malachite. By the door were some chips of diorite bowls. The marbles were clearly part of a set for a game (cf. Naqada, Pl. VII), and the fact that the set was incomplete, and that the stone bowls were broken, makes it probable, in spite of the presence of the gold nuggets, that the tomb had been partially plundered. The early robbers may easily have passed over the gold, for the moist and tough clay hides small objects only too well; it was only the weight of two small lumps of clay that betrayed to me the presence of the nuggets inside.
The quantity of gold remaining in so small a tomb shows how rich the large interments may have been, and how strong was the temptation to rob them.
In Stairway 1 the lines of the surrounding mass of [Pg 8] brickwork were traced, but the walls were not high enough to show the recessed panels, which probably once existed.
In Stairway 6, a large tomb, coarse shapes of pottery (XII, 23, 35) were found, and also vertical alabaster jars, fragments of an alabaster table, and of bowls, hairpins of ivory, and an oblong slate palette with two stone rubbers. This was of one of the later shapes of Naqada. There was also a large pot (of the shape XII, 49, but larger), similar to the later pottery of the New Race.
Stairway 5 must be counted in this group of tombs, though it differed from the common type in three respects. It was much larger, the brickwork being 41 metres long by 20 wide; instead of an open stairway it had a small shaft opening into a long inclined plane which led down to the burial chamber; the chamber, too, was very large (7 m. square). The recessed brickwork remained on the west side, and the passage which led to the niche on the east side can still be traced. The clearing of this tomb formed a tedious task for six men during three weeks, and nothing important was found. A pot (X, 29), found inside the great chamber, suggested that it had been entered during the XVIIIth dynasty, and three alabaster vases (28 cm. high) were most probably canopic jars from some late burial. This tomb is a prominent object to anyone looking north from the El Kab wall, and has the appearance of a natural mound.
Another stairway tomb was remarkable for the great number of coarse limestone and alabaster vertical jars which were piled at the bottom of the stair. There were 150 of these, but nothing else in the tomb, except a few pieces from a bowl of brown incised ware (XX, 1), somewhat like the rare incised pottery found at Naqada.
Staircase 8 contained a stand of coarse pottery and a small coarse saucer (XII, 31, 44), the rough handmade vase (XII, 23), fragments of large water-jars of better ware, and two alabaster bowls, one of the sharp-edged type (XI, 33), the other of the common shape, drawn in at the mouth (XI, 44); there were also two mud jar-seals of flat saucer-like shape.
In Stairway 9 the sides of the shaft had been plastered with mud. The stone door of the burial chamber was still standing, the robbers having apparently found it easier to force their way through the comparatively soft earth above the great slab. We were frequently able to trace their mode of entrance, and found that they sank their shafts at the deep end of the stairway, never clearing the long flight of steps. This would seem to show that the robberies took place while this method of burial was remembered. This tomb contained fragments of one of the large hemispherical pots used as coffins (majūrs), and pieces of a large jar of polished red ware, the lines of polish on which run lengthways; this ware again cannot be distinguished from the Libyan. There was also a vertical jar of veined marble, the horizontally-pierced handle of a typical Libyan stone vase, an alabaster bowl and a vase (X, 43), with a couple of coarse pottery bowls of IVth dynasty type (XII, 37).
Stairway 10 contained only the coarse pottery, but the common jars (XII, 23) bore a series of simple marks made before firing (XVIII, 21-4, and a triangle).
Stairway 12 had been robbed, though the sandstone door had not been moved. The body had been laid in a wooden box (80 cm. long), which nearly filled the chamber. The wood had disappeared, but the thin layers of paint still kept their place. The body lay on the left side, contracted, the head to the north. A small diorite bowl stood near the head of the coffin, and a common alabaster vase in the earth above it. Round the bones of the arm were carnelian beads of short barrel shape.
No. 226 was exceptional in the position of the entrance to the tomb chamber. On descending the stairway, one found oneself at the base of a large well, in the east side of which, and not visible from the stairway, stood the great door. In the filling was found a good flint knife, of the usual early type, with small handle, but much inferior to the finer Neolithic work.
The contents of this series of tombs have been given thus in detail, in order to show that the same grouping of objects occurs over and over again, and that they can therefore be with confidence attributed to the original burials, though if only a single tomb had been examined there would be no proof of the contemporaneousness of any object in it. It will be observed that the contents of the stairway tombs are very closely similar to those of the mastabas with square wells, but that objects characteristic of Neolithic tombs—green paint, double vases, marbles, etc.—are rather more numerous in the stairway tombs. This makes it seem likely that the stairway tombs here at El Kab are earlier in date than the mastabas with square wells.
12. Next we may describe the small graves, generally [Pg 9] about 3-4 feet deep, in which there is no chamber for burial, but the body is laid in the shaft or open grave. These were found chiefly inside the fort of El Kab, though a few were outside the walls. Some were distinctly of Neolithic type, but of that later variety in which the fine black and red pottery is not found. Of the earlier type, only one small group of twenty graves was discovered; these were well outside the town, on the west side of the railway, and so thoroughly cleared out that only half a dozen chips of pottery remained to show their real nature. But of the later kind many examples were found, and still more numerous were the empty graves which, by their size and position, seemed to belong to the same class.
This type is characterised by the contracted position of the body, the vertical jars with cordage pattern, the square slate palettes, the flat alabaster dishes, and four shapes of alabaster vases (X, 22, 44, 48, 31), two of which often occur also in the mastabas. The first group obtained were inside an oblong brick building, which showed red in the distance, the colour being due to the great number of broken pots of the Old Kingdom (XII, 20, 23) scattered over it. The earth within its walls was found to consist largely of these pots, of which there was an unbroken layer, two feet thick. Below this we came upon the Neolithic tombs. The walls were of the small bricks which we soon learnt to associate with the work of the Old Kingdom in El Kab. It is not probable that the walls had any relation to the tombs, for they were not quite parallel to one another, and there were more tombs outside these walls. But it is important to observe that a thick layer of the coarse pottery of the Old Kingdom here overlies Neolithic tombs. It is just possible that the pottery may have been thrown by cultivators upon this mound, but the probabilities against this seemed to me very strong. In one of these tombs (L, 2) the body was found complete, lying on the left side, with the head to the south. At the head end were one wavy-handled pot of a late type (XI, 3), two vertical jars (as XI, 5), with cordage pattern, a square slate palette, and above these a pot (XI, 9), with decoration in wavy red lines; also an alabaster cup (X, 38), containing six finger-bones. At the other end were a bowl, and two vases of well-known forms.
The middles of the graves were generally empty, and bones were rarely found; the stone bowls, which formed the bulk of the finds, were at the north and south ends. It does not seem worth while to transfer from the notebooks the full description of each of these small tombs, for they have been so thoroughly robbed and turned over that the position of the different objects in the tomb has no particular meaning, but it may be well to give a short catalogue of the objects found (v. Pl. XXVII). Each of the tombs is about 1·50 m. to 2·00 m. long, ·90 m. wide, and 1·50 deep.
In one tomb (No. 237) the body was laid in a wooden box (length not seen, ·40 m. broad, wood 3 cm. thick), in a contracted position, with the head to the south, but the bones were disturbed, and the pottery lay at various levels, not all on the floor of the tomb. There were traces of mat-work at the north end.
No. 241 was lined with four stone slabs, and another that lay near had served for roof. In the filling was a head of some animal (? antelope) made of the coarse red pottery of the early period.
No. 206 had a fragment of a square Neolithic palette, an alabaster bowl with a spout (X, 19), a taller bowl, also of alabaster (X, 30), and a lot of beads—felspar discs, long cylinders of copper (?) and steatite.
13. The only untouched small tomb (No. 166) lay to the north of the town. The plan of this tomb is given in Pl. I, 7, and the objects in collotype in Pl. II, 2. The tomb was cut in the hard black mud, of which the ground north of the wall is formed, to a depth of .9 metre. The northern half was occupied by an inverted large hemispherical bowl (majūr XX, 5); though inverted, it was quite full of thick black mud, in which the bones of the deceased were embedded. The head lay to the north and the face east, the body of course contracted. South of this a tall alabaster jar lay on its side, and at the end of the tomb a squat alabaster jar, a smaller one of the same type, and two pots (XI, 7, 8) of a rather smooth pink ware, with red lines and dots painted over it. The smaller pot is really a lid, and is pierced at the top for suspension. Between the majūr and the side of the tomb were some pieces of ivory (1 inch by 3⁄16 inch), probably the veneer from a box like that in Pl. VIII, 2. From the mud in the decorated pot the following small objects were picked out: two ivory hairpins, three bracelets, a disc of ivory with a grooved rim, a polished brown pebble, a small alabaster cup (X, 44), two shells, both with green stains inside, with beads of ivory, green felspar, gold, carnelian, blue frit, and serpentine, and, most important of all, an inscribed cylinder of translucent steatite. The inscription [Pg 10] given in Pl. XX, 29, is perhaps a name compounded with that of a king, the latter being in a cartouche. If this reads ka-ra, it may be conceivably En-ka-ra of the VIIIth dynasty (though I do not think this likely), or, as Professor Sayce suggests, Manetho’s χαιρησ of the IInd. The first column seems to give the Hor.nub name of the king as Nefer, or Nefer-Ka.
The beads are nearly all of known Neolithic types; one form is noticeable, a blue frit cylinder with gold caps at the ends. It is convenient to mention here the other cases of burial under the large hemispherical pots or majūrs.
Two (No. 186) were found, each in a small hole west of Ka-mena’s mastaba; the first lay mouth upwards and contained the much-decayed bones of a child; the second was inverted and contained no bones, but a bowl of a rather coarse red ware, two of the very coarse IV dynasty saucers and a common pot of the same period. Another majūr lay at the bottom of a well in one of the great groups of mastabas which have been already described.
Another (No. 249) lay at the bottom of a long open grave (3·70 m.) with two burials in pottery cists. The arrangement of the bones in it could not be made out.
Another (in a well 1·5 m. deep) contained a sharp-edged bowl (XII, 53), wheel-made, covered with a wash of haematite. This was above the skeleton, which lay on its right side, doubled up, the knees before the face, the head north; below the body were traces of wood; in the bowl was a short cow’s (?) horn.
Near to this was another small well (1·30 m. deep), and at the bottom of it a small majūr, in which the position of the bones could be but partly made out. The head was to the north, the body lay on its back, with the thighs spread out wide, and one hand by the hips.
Another of these burials was in a small hole covered by a flat stone. Two shells were under the left arm. No head was found. The shoulders were on the east, humeri pointed downwards, forearms prone; the legs were bent, the knees up and south of the backbone. The last three burials were close to the large group of mastabas.
A much disturbed group of majūr burial (178) is important as giving a dated object together with one of these majūrs, the copper (?) cylinder of User-kaf (Pl. XX, 30). These majūrs were probably within the area of a mastaba, but so little of the brickwork remained that it was not possible to say whether the mastaba was made over the graves containing the majūrs, or the graves cut through the brickwork of the mastaba. On the floor of the square well lay a fragment of a flint bracelet, and some pieces of green felspar, alabaster, and malachite. In the filling were fragments of Old Kingdom pottery, of a broken pottery cist, and of the rude pottery bars. In the small chamber to the south were three alabaster vessels of the usual shapes (X, 16 and 44), and a skeleton, contracted and lying on the left side. This well was presumably that of the mastaba of which the few patches of brickwork near were the remains. Just to the south of it lay the irregular grave in which the cylinder was found. Close to the surface lay two skeletons and a majūr, the pot was to the north; the two skeletons, both in the contracted position, and with heads to the north, faced one another. Below these was another skeleton, lying upon its right side, with head to the east; below it, and to the west, another, the skull of which lay crown downwards, the line of the body north and south. This was the only skull that could be got out unbroken; it was very weak, and in spite of very careful packing, was broken before it reached England. Below this were parts of two more skeletons, and there was another in the large majūr; further, leaning in the south-west corner at the bottom of the grave, was a sandstone slab, behind which was yet another contracted burial; the skeleton was on its left side, with the head to the north. The cylinder was below the first pair of skeletons. The other objects in the tomb were a IVth dynasty pot (35), an ivory comb and spatula, a shell and some green paint. This grave had evidently been to some extent disturbed, and it is just possible that the cylinder and the burials are not contemporaneous, but the simplest explanation is that they are, and that the grave was cut through the early mastaba. When I was clearing this tomb, Mr. (now Sir William) Richmond was sitting on the edge watching me, and we were both struck with the singular shape of the unbroken skull, the strong projection of the cheekbones reminding us of the Mongol type. No great weight can be attached to this observation, as measurements of the skull could not be taken, but I mention it as showing how important it may be that any unbroken skeleton found in a majūr should be preserved. The early date of these burials can hardly be doubted, but it has not yet been determined whether they belonged to the same race as do the ordinary Neolithic graves, the majūr being a cheap [Pg 11] substitute for the wooden roof of the earlier time, or whether they belonged to some other element in the population, as the presence with them of the two illegible black cylinders would suggest.
The burials in pottery cists, not hitherto mentioned, may now be taken. These cists were found at Ballas both in “stairway” tombs and in open Neolithic graves. At El Kab they have been already mentioned as occurring in mastaba wells. The cists are short coffins, about 3 feet in length, made of a coarse and porous red ware, and are generally without lids.
In one instance (174) the cist was found between walls and beneath a roof of sandstone blocks. The skeleton, which was young, as the epiphyses were not united, lay on its left side, facing east, the head north. A small shell, with chips of malachite, was before the face. In another, the cist lay at the bottom of a square well, the body again on its left side, with the head to the north, the knees brought up before the face; the left elbow was by the side of the left hand before the face, while the right arm lay over the head. There was a little decayed linen cloth in the cist, and, near the hips, a shell.
In tomb No. 249 a majūr and two cists lay upon the sloping bottom of a long (3·70 m.) well; the majūr was at the southern end, which was lower by 60 cm. than the northern. In both cists the body lay as in the two last-mentioned graves; one contained a sharp-edged shallow bowl of red ware.
Another cist (316) lay at the bottom of a shallow well near the large group of mastabas (1·50 m. by 1·10 m. by 1·60 deep). The sides of the cist were broken down, and many of the bones were disturbed, but a part of the spinal column and the legs sufficed to show that the body had lain with the head north, but on its right side.
No. 312 has been already mentioned among the mastabas. The cist lay in a small chamber, the body on its left side, with head to the north.
DATE OF THE “NEW RACE” REMAINS.
14. The greatest interest of El Kab lay in the light that it shed on the same civilisation which had been disclosed two years before at the cemeteries of Naqada and Ballas. In these we had examined 3000 graves of a type till then unknown, and as different from the graves of the historic Egyptians as if they had come from China or Peru. The most obvious characteristic of these burials was the position of the body, which always lay in a contracted attitude, with the head to the south, never at full length, as in all other Egyptian interments. All the furniture of the graves—beads, slate palettes, green paint, ashes, flint knives and pottery—were of novel types, and without any admixture of the mirrors, ushabtis, scarabs, or any of the other furniture of ordinary tombs. Hieroglyphic inscriptions were also absent. The results of the excavations were published in “Naqada and Ballas,” and the main conclusions there set forth were that these graves were the interments of a foreign race, differing from the Egyptians of the dynastic periods in physical features and in habits; that they were probably a white race akin to the modern non-Semitic inhabitants of North Africa; and, further, that they invaded Egypt at the close of the Old Kingdom, and were again expelled by the rising strength of the Xth and XIth dynasties.
[These people were at first called by Dr. Petrie “the New Race,” but they have received other names. M. de Morgan, in his Ethnographic Préhistorique, has attributed this class of monuments to the Neolithic period, and called the men of the contracted burials “les indigènes.” The name “Libyans” has also obtained some vogue; it emphasises the undoubted distinction of race between this people and the historic Egyptians, and may perhaps be used as a general name for the people of the contracted burials until a clearer distinction than is now possible be made between (a) the Neolithic period before the advent of the dynastic Egyptians; (b) the time between the Egyptian arrival and the consolidation of the kingdom under Menes; and (c) the first three dynasties.]
15. The conclusion that these people differed from the Egyptians has not been much disputed, but the above dating has been opposed, and the evidence from El Kab convinced me that we were wrong, and that M. de Morgan was right in attributing the bulk of this civilisation to the praedynastic period. Of this dating, the remarkable finds of M. Amélineau at Abydos, and those of M. de Morgan himself at Naqada, have given very strong proof; but the more fragmentary evidence of El Kab, which led me independently to the same conclusion, may retain still a certain interest.
M. Amélineau’s excavations at Abydos began at the end of 1896—the winter after our Naqada campaign—and [Pg 12] many of the objects he found are already exhibited at Ghizeh, others are at Paris, and a few have found their way to England. Among them are many pots and stone bowls of undoubted late Neolithic type, with whole classes of objects which did not occur at Naqada, stelæ, inscribed scarabs of limestone, and clay seals stamped with the Ka names of kings. The long pots on which these inscribed clay seals still fit are of a type found once at Ballas, and so prove some connection of the Ka names with the contracted burials.
This year Sethe’s important paper (A. Z. XXXV, 1) identifying three of Amélineau’s names with known kings of the Ist and IInd dynasties, has brought a new precision into the whole question, but this, of course, was not known to us at El Kab. Yet Amélineau’s association of the Libyan pottery with inscriptions of an archaic style, which would most naturally be dated long before the IVth dynasty, made our later dating of the pottery improbable, and necessitated a re-examination of the evidence. The crucial case at Ballas was the secondary burial of a Libyan found in one of a group of stairway mastabas. The mastabas were believed to be of the IVth dynasty, because the fragments of pottery and of alabaster bowls found in them were similar to IVth dynasty objects from the cemetery of Medum.
16. This dating of the alabaster was, as we now think, rather too late, but the interment certainly proved that one Libyan died when a tomb of the early Old Kingdom had already been plundered, and lay open, affording an easy means of burial. But not only was this intrusive burial found in one stairway tomb; green paint and stone vases with horizontally-pierced handles, were found in others of the same group. These Libyan traces were also interpreted as the remains of secondary interments, but when at El Kab, I saw the same Libyan remains in the stairway tombs there, it immediately became clear that the malachite, vases, etc., more probably belonged to the original interments, not to secondary ones, that the stairway tombs (perhaps, also, the other mastabas) were but another form of Neolithic burial, and that the earlier Neolithic tombs were anterior to the Old Empire. As the digging went on, other scraps of evidence came to support this view. The coarse pottery which lay in heaps over and near the mastabas of the IVth dynasty is identical with that found in some of the small Neolithic graves.
A vase of hard red ware found in Ka-mena’s tomb, which was certainly of Sneferu’s time, was almost indistinguishable from a Libyan form common at Ballas.
One of the incised bowls—a rare but distinctive species of Libyan pottery—was found in a stairway tomb at El Kab.
The small late-Libyan graves lay between the mastabas of the time of Sneferu, not interfering with them, or dug through them, giving the impression that all were approximately of the same date.
In one tomb there was found, with undoubted Libyan pottery, a green steatite cylinder of a type known in the Old Kingdom.
In a walk taken one day over the cemetery of Kom el Ahmar, opposite to El Kab, I observed again the same mixture of Old Kingdom and Libyan pottery near a group of mastabas.
17. To this evidence must be added some considerations about the first cemetery of Naqada and Ballas, which were felt by us from the beginning as difficulties in the way of accepting the later dating to the VII-X dynasty.
The entire absence of distinctly Egyptian objects from so large a series of tombs, and even from the villages of the same period, was difficult to explain on the supposition that the Egyptians were already in the land.
The Libyans, too, as lovers of fine pottery, would surely have learnt the use of the wheel from the Egyptians, if they had come in contact with them at all; yet all the Libyan pottery (with the rarest exceptions) is handmade.
The Libyans habitually placed green paint among the other toilet articles buried near the head. The Egyptians of the early Old Empire are sometimes represented with green paint upon the face. It is more natural to suppose that this was a fashion inherited from the praedynastic times, than to suppose that so peculiar a mode of ornamentation was practised at two independent periods in the history of the country.
Lastly, there is the negative evidence from the mound of Nubt. Here Dr. Petrie found on the surface walls of the XVIIIth dynasty, with inscriptions and dated pottery; below them walls of the XIIth dynasty, with pottery again, and lower still, walls and layers of pottery of the Old Kingdom. But between these last two, no scrap of the Libyan pottery occurred, though a Libyan town lay but a quarter of a mile away.
On an examination, then, of the whole evidence from our two cemeteries of Naqada and El Kab, I [Pg 13] came to the conclusion that our first dating had been not early enough, that the latest type of tomb at Naqada was contemporary with the mastabas of the Old Empire, and that the earliest type (characterised by dissevered skeletons, very fine flint knives, great quantities of ashes, and a small number of red and black pots of good quality) must be attributed to a much earlier period.
Since then much more information has come to light. M. de Morgan’s second volume of “Recherches sur les Origines de l’Égypte” contains a summary of the discoveries made by M. Amélineau at Abydos, together with an account of the great royal tomb found by M. de Morgan himself at Naqada. M. Amélineau’s finds are recognised as being chiefly of the first three dynasties, and on an ivory plaque from the royal tomb of Naqada, Dr. Borchardt has pointed out the name of Menes himself.
The objects from this tomb are now exposed in the museum at Ghizeh, and it is interesting to observe that the pottery, the slate palettes, and the flint knives are distinctly of the later type of Ballas.
It has, then, become now fairly clear that the earliest known inhabitants of Egypt were a tall, fair race akin to the modern Kabyles. They buried their dead in a contracted position with the head to the south, and in the earliest times either mutilated the dead before burial, or kept the bodies for a long time before the final burial. The relative dates of the different varieties of their tombs can be made out, and the graves with mutilated bodies found at Naqada are much earlier than those at Abydos containing the names of I-II dynasty kings. At some period which we cannot yet date, even on the rough scale of Libyan pottery, another race or races entered the country, bringing with them writing, the practice of mummification, the art of building in brick with recessed panels, and perhaps, as M. de Morgan suggests, metals. Thus was formed the Egyptian people of historic times.
18. A point that has not been explained is the different position of the bodies in the open graves and in the stairway tombs. In the former, the head lies south; in the stairways and in the graves of Medum, it is to the north.
The burials, too, under the large pots which we call majūrs, are not understood, nor is their exact period known. As they were found in the later cemeteries of Ballas, El Kab, and Kom el Ahmar, but not at Naqada, it seems likely that they belong to the later division of the Libyan period, viz., after the Egyptian invasion, perhaps even after the time of Menes. But to which race, if to either, is not clear.
MIDDLE KINGDOM CEMETERY.
19. Inside the town walls, never outside, were found a few examples of a distinct type of tomb, with underground brick arches, pottery akin to that of the usual XIIth dynasty, but not identical with it, and stone vases of distinctive shapes. The types of pottery are shown in Pl. X, 1-28, the alabaster vases in X, 1-6.
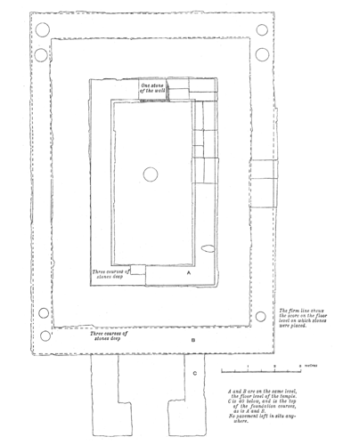
In Pl. XXIV some walls in broken line are seen which cut through the walls of three mastabas, which last are shown in dead black. The tombs in question lay parallel with these walls, some within the square chambers, some also outside; and the walls are, roughly, parallel with the great walls of the town. The method of construction seems to have been as follows: An oblong excavation, about 6 m. long by 2 wide and 3 m. deep, was made in the gravel. About half the length of this was needed for the tomb; the other half formed a rough sloping staircase for the workmen. The sides of the grave were built of brick walls, and these were covered by an arch of brick about 1·50 m. high. In this the body was laid at full length, on the left side, the head to the north; in front of the body was a great mass of pottery. The interest of this set of tombs lies in the bearing they may have on the question of the date of the wall, for if it be granted that these are probably of the early XIIth dynasty (as the pottery suggests), then we have early XIIth dynasty tombs inside, and tombs of the reign of Amenemhat III outside the walls. (There were, however, two tombs inside the walls in which the remains of the pottery were much like those in the tombs outside.) Now there is a stela from El Kab, to which Dr. Spiegelberg calls my attention (published in Stobart, Egypt. Antiq., Pl. I), which states that Amenemhat III restored the walls at El Kab which Usertesen II had built. What walls these were the stela does not state, but the evidence from the pottery would support the idea that they were the great town walls. And if this be so, the common pottery of the Middle Kingdom can now be split into two sections, between which the reign of Usertesen II will form the dividing line.
[Pg 14] 20. The tombs in detail.
In No. 203 there were only two pots and a marble vase. Traces of the roofing arch were found. The skeleton as it lay measured 1·80 m. long.
No. 205 contained pottery of shapes XIII, 2, 12, 27, 24, 20.
No. 216 contained four examples of XIII, 5, one each of 2, 19, 4, and about fifty of the small saucer, 12a.
No. 242 contained 26, 2, 3.
No. 255 contained a great mass of pottery of nearly all the shapes (2, 5, 4, 12, 9, 17), much of which lay at a higher level than the two bodies; of these, one lay upon its back, the other in the regular position. Before the face of the northern body was an alabaster vase (X, 4), a small shell and a fragment of bronze rod. Another alabaster jar (X, 3) stood by the hips of the southern skeleton.
No. 264 was in better condition than most, and contained a great number of pots, including more than fifty of the shape XIII, 22, and many of XIII, 20. Nearly all were, however, broken, for, as in all these tombs, the arch had fallen in. This tomb contained also a string of beads, barrel beads of lapis lazuli, carnelian and gold foil, and small discs of gold.
In No. 265 were found more than two hundred pots scattered in all directions; a few were nested in a recess halfway down the side of the tomb. All the shapes XIII, 1-28, except 16 and 22, were found in this tomb. There was no skeleton. A hole had been pierced in the base of every pot after baking.
One group of tombs of this period (v. Pl. XXIV) had apparently been made at one time. In three of them the skeletons remained with two or three coarse pots laid before the face. Outside the enclosure wall of another of these groups of tombs was a heap of saucers (like XIII, 12), painted inside with a rough cross of white paint. These are, by the fabric, probably of the same period as the tombs.
21. In the great XIIth dynasty cemetery outside the town the graves were of different construction, consisting of a long and narrow shaft from which, at both the north and the south ends, opened a chamber. But two, or perhaps three, tombs of this form were found inside the walls. This cemetery was well known to the Arabs, and a few years ago a party of the Qurneh dealers, armed with a bogus Museum permit, dug there for several weeks. The tombs they had rifled could be distinguished from tombs that were intact or had been plundered in early times by the sharper edges of the depressions left. Time has rounded over the traces of the earlier robberies, so that anciently robbed tombs look much like those which are intact, but in which the roof has fallen in causing a dip in the ground not unlike the top of a tomb-shaft. The cemetery lies in a shoal in the dry stream-bed, at whose mouth El Kab was placed. This shoal is a great bank of gravel and a fine clay-like detritus, the beds of which lie alternately, the thickness of each varying in different parts. The practice in the XIIth dynasty was to sink the tomb-shaft until a layer of gravel was reached sufficiently strong for a chamber to be safely cut out of it. The chambers were about 2 m. square and probably rather less than 1·50 m. high, but they were made flat-roofed, and in most cases the roof had fallen in, crushing the bones and often also the pottery below. Even if the roof was complete when we opened the tomb, it would usually fall before we could examine and clear out the interment. With only the warning of the fall of a single pebble, or just a little gutter of sand, a mass of perhaps two tons would suddenly drop with a thud. On two occasions a man was caught by some part of the fall, and once, just as the helpless man was being dug out, a clumsy helper dislodged a few more hundredweight and buried him again. These are anxious moments, for when this shifting ground has once begun to slip, the whole side of a tomb may fall at once. Happily we had no serious accident, though there were many narrow escapes. It is necessary in such work to watch the men very carefully, and to insist on their taking reasonable care, for they will, if left alone, burrow beneath dangerously overhanging masses of soil rather than take the trouble of removing them. The method in which the door of the burial-chamber was closed was not at first clear; but four or five of the large jars (Pl. XIV) were so often found just inside the entrance that it seemed probable they had been used as a building material, just as the peasants near Keneh now use the spoilt water-jars from the potteries there. Later on two of the doorways were found actually blocked up in this way—three jars in the lower tier, two more above them, and the interstices filled with mud. Probably, then, these large pots were the common water-jars of the Middle Kingdom. Other tomb-doors were blocked with bricks, very roughly laid. Coffins were very rare; there was one of unbaked clay, long and narrow; and a trace of wood (No. 121) in another grave may have been part of a coffin. But the soil of El Kab is so [Pg 15] damp and full of salt that unpainted wooden coffins may have disappeared without leaving any trace. The same causes have doubtless removed the clothes in which the dead were buried, for of these I saw no trace. The most remarkable fact was the entire absence of mummification, at least, of any effective kind. In the ground near the good XVIIIth dynasty tombs, mummies were found, perhaps the servants of the great men of the inscribed tombs. There seemed no great difference in the conditions to which these mummies and the bodies of the XIIth dynasty people had been exposed. Yet no trace of mummy-cloth, dried skin, hair, or bitumen was ever met with in the earlier cemetery. Nor in the early burials that I opened at Ballas were any mummies found, and certainly most of the mummies known belong to the XVIIIth dynasty or later. Is it possible that mummification was confined to the upper classes until the great increase of wealth in the XVIIIth dynasty led to the wider adoption of the custom?
Some of the later Neolithic bodies were, however, dried, either by artificial means or by some property of the soil, so that the whole body could be lifted out without any of the limbs snapping off. It is reported that the body of an engineer, who, not many years ago, died and was buried at Assuan, and afterwards exhumed to be sold as a mummy, was dried up in this way.
A chamber generally contained more than one body; four was a not uncommon number, and in one chamber eight persons, probably women, lay side by side. This fact certainly agrees badly with the idea just expressed of the absence of mummification. The objects found in the graves were of well-known types. Bottle-shaped vases at the head and feet, alabaster kohl pots, kohl sticks of ivory, bronze mirrors without handles, paint-slabs with their pestles and spatulæ of serpentine and basalt, with beads of green glaze and various kinds of hard stone, were the regular staple of our finds. And the date of these was already well known from Kahun and other places; indeed the date of this cemetery could be seen at once from the chips of pottery lying on the surface. This conclusion was confirmed by the two private stelæ (Pl. IV), and a cylinder of Amenemhat III, found in one necklace. Inscriptions were extremely rare; there were few scarabs, and perhaps the most interesting object was the plain alabaster statuette (Pl. V, 2), which was found close to the skull of its owner. This was the only figure of the kind found in the cemetery, and is probably the earliest dated ushabti. It represents a mummy-shaped figure; no hands, hoe, or basket can be seen, but the face is well executed.
The tombs were, of course, often robbed, how often, it was difficult to decide, for the destruction caused by the falling roof is very similar to that caused by early robbery. But it was very seldom that a skull could be preserved, or that the exact position of the bones in the body could be worked out. There had been very little re-use of the shafts; in one occurred pottery and a mirror of the XVIIIth dynasty, in another a Roman lamp; but these were exceptions; it was purely a Middle Kingdom cemetery.
22. A fine collection of beads was obtained, chiefly in hard stone. In one tomb alone (No. 156) I spent most of two days trying to recover the order in which the beads had been strung on the necklaces. Seven people had been buried in one chamber of this tomb; a great mass of pebbles had fallen from the roof, smashed the bones and pottery, and so scattered the beads that some care was needed to keep together those from one string. Some of the bodies were adorned with necklace, bracelets, and anklets, and had also a string of beads round the waist.
The commonest beads were spherical and barrel-shaped, of carnelian, haematite, and amethyst, and discs of shell, these last the commonest of all. In green felspar there were small flat discs, hawks, and hippopotamus heads. Sphinxes with human heads are generally of amethyst. Uninscribed scarabs, in carnelian, amethyst, and jasper, were not uncommon.
NEW EMPIRE MONUMENTS.
23. Singularly little is left in El Kab of any period later than the Middle Kingdom, unless, indeed, the great walls be of later date than we have supposed. The broken pottery inside the town enclosure, that is the south-west corner of the great square, seems to be of various periods, but to contain a large quantity of a fabric most like that of the XXVIth dynasty. As Nectanebo rebuilt the temple here, it is natural to suspect that this late pottery is of his reign or near it. Masses of similar pottery are to be found thrown out from several of the large tombs, in and behind the hill of Paheri. These tombs are probably of the XVIIIth dynasty, and were re-used for piles of poor burials at the later date. Of poor burials of the XVIIIth dynasty only two were found. These were [Pg 16] in the long coffins of that coarse red earthenware, fragments of which may be seen by the tourist on his way to the tomb of Paheri. There are a few robbed tombs near the foot of the hill, but no large cemetery is known. It is possible that El Kab was not a very large town at this period; the family of Paheri and Aahmes may have been the only great house of the district.
24. Some examination was made of the beautiful little temple of Amenhotep III, which lies an hour’s walk up the desert, not with the view of copying it, for that work had already been undertaken by Mr. Clarke, but in order to discover, if possible, where the original temple was. It seems more than probable that all the VIth dynasty inscriptions on the great detached rock near the temple were made by pilgrims visiting a shrine; many fragments of Old Kingdom vases also are to be found lying near. It at first occurred to me that a cemetery of the Old Kingdom might lie here, and a search was made in all likely, and some unlikely, places, but nothing was found, except a broken water-jar with a late Greek inscription. The early pottery near the temple was then turned over; it appeared to be a mere rubbish heap, with no sign of tomb or of brick building. It lies on the slope of the bank of loose detritus, on which the temple itself is built. The torrent which, from time to time, sweeps down the old river-bed, is, at this point, wearing away its southern bank. Below the heap of old pottery is a little vertical cliff, 4 m. high, in so soft a rock that it is clear the steep face has been recently formed, and the temple itself is threatened by a small stream bed behind it. It may be, then, as Professor Sayce first suggested, that the original temple stood on the northern part of the shoal which is now washed away; this idea is confirmed by our finding in the stream bed opposite the present temple the early table of offerings shown in Pl. IV, 1, with many more small fragments of inscription on pieces of sandstone. The original temple, then, has gone, the pile of pottery thrown out from it will be carried away too; even the temple of Amenhotep may be undermined within no very long period. The effects of sudden storms in the desert are greater than might be supposed. There is no vegetation to stop and absorb the rain, the ground is excessively hard, and all that does not immediately sink into the soil runs rapidly down into the larger watercourses, and forms in a few hours a deep and broad stream. Such a storm occurred three years ago at El Kab, and the inhabitants tell us that, for two days, a tributary stream entered the Nile there. The railway engineers have had to provide for the recurrence of such spates.
25. The foundation deposits may be considered together. They came from two temples—the large one within the walls, and the small temple of Thothmes III, which lies to the north of the town, and west of the hill of Paheri. In the latter the deposits were very numerous for so small a temple (v. Pl. XXVI). Under each corner of the main wall was one of the little pits filled with sand, which have now become so familiar, and at a metre’s distance along the side wall was another and larger deposit. The pits were about ·60 m. in diameter; in two, there was at the bottom a recess, filled with the small cups of brown clay. The objects are all closely similar to those found in the other deposits of this reign at Koptos and Nubt. One shape of pot, however (XXI, 14), has not been seen in a foundation deposit before, and the flat tiles (15 cm. long) of blue glaze, one in each deposit, must be mentioned. All the deposits were carefully unearthed, and the position of the different objects noted, but there was no obvious design in the arrangement.
The deposits found under the great temple are of more interest; those of Amenhotep II, under walls covered with inscriptions of Rameses II, give one more instance of the latter’s usurpations. Deposits of two other distinct classes contained no inscriptions of kings’ names, and cannot be dated. Their position is shown in the very rough sketch of the plan of the temple in Pl. I.
The contents of the different deposits is given below:—
N. 1. A polygonal sandstone mortar (XXI, 46), twenty small cups (43), three small round dishes, three taller pots (44), flat tablets of red and green glass, a bronze pan (30), five long glass beads (38), the green glaze figure (29) like a small ushabti, a small green glaze model of an ox with the legs tied together, the bronze models (33, 34, 35), a tile of dull green glaze, a model clay brick, a small piece of bitumen, and a piece of resin which burns with a smell like myrrh.
N. 4. Sandstone mortar, eye in green glaze (28), the other objects as in N. 1, but with the addition of tablets of calcite and lead.
N. 5. contained the glaze block (40), a bronze knife, a little brick of myrrh, and pottery, as in the others.
N. 2. and N. 3. consisted each of a single object, one [Pg 17] a small oblong block of iron 1½ inch long, and the other a tablet of blue frit (like 37).
These last two deposits clearly do not belong to the same builder as the rest.
The deposits of Amenhotep II contained alabaster models, the inscriptions identical with those of Thothmes III, excepting the change of cartouche.
26. The temple to the east of the central eastern gate of the town was excavated, and a XIIth dynasty tomb was found beneath it. The walls had been carried away, but the floor of the temple was nearly complete, and from the scratches made upon it by the masons the plan was recovered. This will be published by Mr. Clarke. No foundation deposits were discovered, and the only scrap of inscription was a part of the cartouche of Nectanebo.
27. No certain solution can be given of the question of the date of the great wall. Reasons for thinking it to be the work of Usertesen II have been already given, but several attempts were made to test this hypothesis. The base of the wall was cleared at several points to search for any accumulation of rubbish left by the builders, and all the gateways were examined for foundation deposits. In the east gate, at a height of 3 feet above the stone pavement, there was a layer of potsherds, painted with a rough decoration of comma-shaped dashes, and with them were some fragments of an ostracon written in late demotic. This would show that the gateway was already partly ruined and blocked in Roman (?) times. And between the row of mastabas to the north and the great wall were found the foot of an ushabti, perhaps of the XXVIth dynasty, and a pot (Pl. XX, 13), probably Roman. The first was on the ground level, the second 5 feet above it. But the position of these objects only shows that the sand-heap had not reached its present level when they were dropped, and I observed nothing quite inconsistent with the early date suggested. It should be added, however, that the stonework of the gates and the arch in the north wall seem, to Mr. Somers Clarke’s experienced eye, to show some features of a much later style. These he will describe in his own work on El Kab.
28. A group of late bronzes were found at one point in the south of the great enclosure. They were 800 in number, each mounted on a little wooden base. One (Pl. V, 3) was a fine piece, representing Nekheb adored by a kneeling figure. The rest were Osiris figures, except one, which represented Imhetep. About a hundred were 5 inches high, or upwards, of fair workmanship, made in thin bronze cast on a core. They were all piled together in a space 1·1 m. by ·6 m., not near to any tomb.
29. Near the south-east corner of the town (Pl. XXIV) was a peculiar brick building, consisting of four rows of brick pillars, six in each row, enclosed in a surrounding wall. The pillars were about 2 m. square, the passages between them only about ·80 m. wide. The actual height of the brickwork was 1·50 m. or less, but the building may have been a high one, for the base of a brick staircase remained between two of the pillars. Throughout the building were great numbers of pots, chiefly broken, of a long bottle-shape with a wide mouth, and pierced at the bottom, with a hole an inch wide (XX, 14); these pots exactly fitted certain holes left at regular intervals in the brickwork. Pots nearly of this shape, but shorter, are still used in Egypt, being built into the walls of pigeon-towers to serve as nesting-places for the birds. So far as the pottery guides us, the building might then be of Arab times, but the large size of the bricks (34 cm. × 17·5 × 11), part of a stone window found on the south side, and the smooth surface of the site before we began to dig, make it unlikely that the structure is recent.
DESCRIPTION OF PLATES.
30. Pl. I—Nos. 1, 2 and 3 are the plan, elevation, and longitudinal section of one (264) of the sunk arch tombs believed to belong to the early XIIth dynasty.
No. 4 gives the plan of the chamber in the IVth dynasty tomb of Ka-mena; 5 and 6 are rough notes of the stone walls on the east and south sides of the same chamber.
No. 7 gives the plan of the important tomb in which an inscribed cylinder was found in association with Neolithic pots (No. 166, § 13).
No. 8 is a rough-sketch plan of the great temple of El Kab, inserted to show the position of the foundation deposits.
31. Pl. II.—1. The stone vessels of the Neolithic period and the Old Kingdom, as they were shown at University College. Only one was perfect; even those that look most complete were picked out in small pieces from the gravel or mud, and were put together by the help of our friends in England. On the right hand are five slate paint slabs of the later [Pg 18] Neolithic type; nearer the wall are diorite bowls, alabaster tables, flat dishes of limestone and alabaster, a bronze ewer (from Ka-mena), and a pottery model of a granary.
No. 2 shows all the small objects from the important tomb with a majūr burial (166)—shells, ivory disc, ivory hairpins, a flint flake, a steatite cylinder, beads, ivory bracelets, two pots and two stone bowls. (For inscription on the cylinder v. Pl. XX, 29).
No. 3 represents the objects from Ka-mena’s tomb as photographed in front of our house soon after being found (larger size in Pl. III, 2).
No. 4 shows a mastaba wall when just excavated.
No. 5 is a view of our house with the stacks of pottery before it.
Pl. III.—No. 1. The sandstone statue of Nefer-shem-em.
No. 2. The bronze and stone objects from Ka-mena of the time of Sneferu, with whose name the flat diorite bowl below was inscribed. The central bowl is of very light-coloured, translucent diorite, and the deeper one of porphyry. Below are model tools in copper. (These are given in outline, Pl. XVIII, 56-65.)
Pl. IV. (Note by Dr. Spiegelberg.)
1. Table of offerings from dry stream bed on desert near Amenhotep’s temple, dedicated with the usual formula addressed to Anubis, Osiris, and Nekhbet, by “the confidential friend of the king, the treasurer, chief prophet, destroying the evil (?) [Kfau? asf?]” ... and to his father “deserving well of his god, the confidential friend of the king, the treasurer,[A] chief prophet, privy councillor of the royal treasure Shema[.a].”
This is the person mentioned in a rock inscription of El Kab, published by Stern (Aeg. Zeitschr., 1875, Pl. I r.). By this identification we can claim this tablet for the VIth dynasty.
2. The inscription of this XIIth dynasty sandstone stela from the cemetery must be divided in the middle. The right half—“the well-deserved of Anubis, Usrtsn, son of Srtuy (?)”—relates to the chief personage holding a nabút in the left hand and the well-known sceptre of command in the right.
The person behind, who carries a long Nymphaea caerulea, is “his beloved son, Khuy, son of Mryt-[[.a]]tfs,” and may be the dedicator of this stela. So we have the following genealogy:—
Srtuy (?)
|
Usrtsn—Mryt-[[.a]]tfs
|
Khuy
3. Limestone stela of the end of the XIIth dynasty, from the cemetery, dedicated by a certain Sabna to his father, who had the same name and was a prophet of Amon.
In the first line we have the formula of offering addressed to Osiris, the next contain this genealogy:—
Ankht[.a]t I
|
 Ankht-[.a]t II = Sabna I = Mrt-[.a]ts
| |
Ḥny Sabna II
Pl. V.—No. 1. A figure of blue-glazed ware from a XIIth dynasty tomb (No. 1). It represents a very flat-headed deity, with the youthful side-lock, the body in mummy form, the darker lines representing a bead network.
No. 2 is the alabaster ushabti of the XIIth dynasty.
No. 3 is the fine bronze (height 19 cm.), now at Ghizeh, representing a man adoring Nekheb; his hands are side by side before him, palms down. This is by far the finest of the 800 bronzes found together; of these 700 were worthless, the rest ordinary Osiris figures.
No. 4. A group of the peculiar pots in which the characters of a table of offerings and a model of a house seem to be combined. They are only known in the Middle Kingdom, occurred at Ballas as well as El Kab, and are common in museums. The offerings inside can be seen in good examples to be the head and legs of an ox, bread (?), and jars of water. One model shows the roof of a hut made of logs of wood, and the outside staircase.
No. 5. A group found together, consisting of a sa amulet of bronze, a dark steatite cylinder, and a little glazed steatite draughtsman with a human head and traces of some sign inscribed below. The inscription on the cylinder is copied in Pl. XX, 28, and is rather puzzling. The name in a cartouche seems to be Ka-kau-ra, which is not that of a known king. As the pottery in the tomb is of the XIIth dynasty, and the tomb is in the cemetery of that period, one might read Kha-kau-ra, Usertesen III, but his Ka name, Neter-kheperu, is known, and cannot be read in the other name on the cylinder. The cylinder is of a type known in the IVth and Vth dynasties, and [Pg 19] Dr. Petrie suggests that it may be Men-kau-ra, and that his Ka name was Men-maat, the maat being read with the straight sign only. If this be so, we must suppose that the owner of this grave had found the cylinder in some ancient site.
No. 6 shows one of the small clay figures of Nekheb found behind the stone work of the east gate.
Pl. VI.—No. 1. A group of the finest stone vases. The upright dish is of diorite; rather more than two-thirds of it was recovered, all in small pieces. It is inscribed suten biti Sneferu. The jar on the left is of green slate, the central bowl of porphyry, and the rest alabaster. All are probably of the IVth dynasty or earlier.
No. 2. On the left, in the back row, the commonest coarse pot of the IVth dynasty, on the right, a less known type (XII, 29); in the centre one of the pots of Neolithic type from Ka-mena’s tomb. In front is the inscribed piece of majūr and the model of a granary, the latter from Ka-mena.
32. Pl. VII.—The upper of these two sketches by Mr. Clarke shows the two mastabas, C and D, in course of excavation, the great wall of El Kab behind. The lower view is between D and E (cf. Pl. XXIII). It shows the two boundary walls in the centre, the steep face of sand in front, and (piled on the walls) a lot of the coarse pottery, which was here found in great quantity. The measuring rod is the 2-metre pole used in assessing the men’s work.
Pl. VIII.—No. 1 is a view of another mastaba. The brickwork, which blocks up the northern (i.e., the nearer) niche, is of later date. The two niches, or false doors, the passage or chapel, the two hollows in the brickwork that were filled with earth, and the well, in this case a very large one, are indicated in this view much as in a plan.
No. 2 is a copy made by Miss Murray of the lid of a toilette-box found in a mastaba. It is made of a veneer (? on wood) of ivory, and blue and black slips of glazed ware.
Nos. 3-9 are ivory fragments of another box.
Pl. IX.—Copies of water-colour sketches of a stairway tomb, both taken from below (by Miss Murray from Miss Pirie’s sketches).
33. Pl. X.—Stone vessels. 1-5 are of alabaster, and, with 6, come from the sunk arches, believed to be of the earlier XIIth dynasty, i.e., some time between the Old Kingdom and the reign of Usertesen II; 7-12 are of the later XIIth dynasty; Nos. 7, 8 and 10 are the common ones, the shape 7, when in stone, being, of course, not decorated. The vertical alabasters of the XIIth dynasty are very similar to some (as 23) of the earlier periods, but a slight swell near the mouth (seen well in 47) and a greater spreading at the foot (as in 23, 25) seem to me often to distinguish the early forms. The shapes from 15 onwards belong to the Neolithic and Old Kingdom graves, but 14 was in a XIIth dynasty grave (36); 15 is from a small stairway tomb, 26 also. All the shapes are of alabaster, unless otherwise marked. A rough example of No. 44 was found at Ballas, used anciently as a lamp with floating wick.
34. Pl. XI gives the distinctly Neolithic forms of pottery. Nos. 1, 2, 4, 12, 16, 18 are of coarse brown ware, 5-9, with 11, 13, 14, good drab. No. 10 is a red pebble-polished ware, 15 is a dark red. Nos. 17 and 18 were found in a mastaba with Old Kingdom pots, and are probably also of that period. No. 13 is the important type of hard brick-red pot which was found in Ka-mena’s tomb.
Pl. XII.—The upper half of the plate (20-46 and 50) gives the forms of the very coarse pottery found in great quantities above and in the mastabas, and also near the temple of Amenhotep III on the desert. Most were well known before, but 26 and 32 are new. The common forms are 21, 22, 23, 32, 31, 34. No. 47 is the pot from Ka-mena’s tomb, much like a Neolithic form. Nos. 48, 49, 51, 55, and the three sharp-edged bowls, are of a good ware, washed with haematite. The two little pots 56 (from mastaba C, Pl. XXIII) are unlike any others of this period—pink inside, yellow out, with decoration in black line.
35. Pl. XIII.—Nos. 1-28 are the types found in the sunk arch tombs inside the walls, and are believed to be later than the Old Kingdom pottery of the last plate, but earlier than that of the plates which follow. Most of these pots are of a rather hard light red ware, and can be distinguished by their material alone from most of the XIIth dynasty pottery found outside the walls. But the forms 8-16 are of a soft brown ware, and are very thick and heavy. All these pots are wheel-made, but scraped over by hand in the lower half. The forms from 28a to 35 are XVIIIth and XIXth dynasty, from secondary burials in the Middle Kingdom cemetery.
Pl. XIV.—All but No. 3 are water-jars, 5, 6, 7, and 8 being the common forms. No. 4, with the four ears, is in a fine hard drab ware, and No. 1 is painted, but the rest, which were by far the commonest forms, are of a rather coarse, soft pottery, varying in colour from dull brown to pink; the brown ware is the softest [Pg 20] and most liable to flaking. In the last two can be seen the marks of the string by which they were held together before being baked.
Pl. XV continues the catalogue of XIIth dynasty pottery. Down the centre are two large stands and a large bowl, each drawn from one example, all of a hard, drab, polished ware. The bowls 11-14 and 16, in a light-red, rather soft material, were common forms. The hemispherical cup (18, 22) is still commoner, and was known from two XIIth dynasty sites before. The dish in a soft red ware (21) was very common, occurring in nearly every tomb. The cup and stand combined (33, 34, 35) shows that the bowls in the upper part of this plate (11, etc.) were generally placed upon the ring-stands (38-46). The compound form is made in a weak material, and is seldom found unbroken. The ring-stands are generally of red ware, more rarely (as 38) of the better drab ware.
Pl. XVI.—The bottle shapes at the top are generally in red clay, but 47 and 62 are of hard drab ware.
No. 57 may be noticed as being like a Neolithic form, with a common Neolithic mark. The small forms, 63, 64, 67, and 68, are often found together. When a tomb contains one of these small varieties, it generally contains a great many. They perhaps mark some definite period.
No. 60 is an ordinary water-jar. Nos. 58, 70, 71, 72 are the rare drab jars, of which less than a dozen occurred in a hundred graves.
Pl. XVII.—Common forms are 76, 77, 79, 84, 86. Some of the shapes, as 116, 131, also occur as the early XIIth dynasty pottery inside the wall.
36. Pl. XVIII contains the marks made while yet soft upon coarse pots found in stairway tombs, mastabas, etc. Marks recur (as 7 and 9, 40 and 41) in different tombs. Hieroglyphs are not common, but occur (25, 46).
The name No. 44 occurs on a majūr, and confirms slightly the early date given for those pots. Below are inscribed fragments of limestone, 49-53 and 55, from Ka-mena’s mastaba, 54 from a neighbouring one. Nos. 56-65 are the copper models of tools from Ka-mena’s tomb.
Pl. XIX gives the marks from XIIth dynasty pots, chiefly made after baking, and therefore presumably due to the owners and not the potters. Similar signs sometimes recur in different tombs (44 and 48, 45 and 46, 37 and 38, 29 and 30, 32 and 33). Can they be notes of the contents of the jars?
37. Pl. XX.—No. 1 is a piece of a bowl of incised ware found in a stairway tomb.
Nos. 2, 3 and 4 are also fragments of an incised ware found in some irregular holes on the north side of the hill of Paheri, and not before mentioned. With them were a few very late blue glaze beads, and two pots that were probably Roman, but these three fragments are evidently much older.
No. 5 is the outline of a majūr, the large pot used as a coffin in the Old Kingdom.
No. 6 is a fragment of Neolithic pottery from one of the small graves inside the town (cf. Naqada, XXXV, 74).
Nos. 7, 8, 9, 10, 11, 12 are from intrusive burials in the XIIth dynasty cemetery. No. 13, perhaps Roman, has a certain importance in the question of the date of the great wall (cf. § 27).
No. 14 is one of the pots from the pigeon-house in the south of the town (Pl. XXIV).
After the scarabs come six cylinders.
No. 28, in black stone, perhaps Men-kau-ra, but from the XIIth dynasty cemetery.
No. 29, in green steatite, from a stairway tomb.
No. 30, probably copper, not bronze, found with a majūr burial.
Nos. 31 and 33, black stone and ivory respectively, from another Old Kingdom well.
No. 32, a well-known type of black stone cylinder, found in a mastaba with a scrap of diorite, on which the name of Sneferu was scratched.
38. Pl. XXI gives the objects from the different foundation deposits. The first sixteen are from the small temple of Thothmes III. Nos. 1, 2 and 4 are of blue glaze. The spiral mark on the bead is noteworthy; it is common in the XIIth dynasty, and is also known in the XVIIIth at Deir-el-Bahri. Nos. 3 and 8 are sandstone corn-rubbers, with inscriptions in blue paint; 5 and 9 are alabaster models of the head of a fire-drill (?) and of a double shell. The inscriptions are all the same: “The good god, Menkheper-ra, beloved of Nekheb.” No. 10 is a little wooden girdle-tie; 6, 7 and 11 are bronze tools. The five pots below are on a smaller scale.
Nos. 17 to 24 are the pots from the deposits of Amenhotep II, found under the great temple inside El Kab.
From No. 25 onwards all are from the later deposits (Pl. I, 8 N), also under the great temple. Of green glaze are Nos. 25, 26, 27, 28, 29, 38, 39 and 48; of bronze are Nos. 31, 33, 34, 35, 32; of clay, 41 and 47. No. 42 is of bone, No. 37 of calcite, Nos. 36 [Pg 21] and 39 of red glass. Nos. 43 and 44 (scale ⅙) are the typical shapes of pottery. Nos. 45 and 46 show the coarse sandstone mortars found in these deposits.
39. Pl. XXII is a plan of the XIIth dynasty tombs found outside the east wall of the temple.
Pl. XXIII gives the large group of mastabas found under the heap of sand north of the town wall.
Pl. XXIV shows a group of buildings in the southern half of the town enclosure, mastabas, small open graves of the Libyan period, and arched graves of the XIIth dynasty.
Pl. XXV gives drawings of a stone gateway in the great wall, under which a vain search was made for foundation deposits.
Pl. XXVI gives the plan of the small temple of Thothmes III north of the town, from which the numerous foundation deposits were obtained. The deposits are indicated by circles.
40. Pl. XXVII is a catalogue of the small Libyan tombs showing the groups of alabaster and pottery vessels that are commonly grouped together.
[A] For ḍasuta, see Spiegelberg in a forthcoming paper of Aeg. Zeits.
| page | |
| Alabaster vases, etc. | 4-6, 8-10, 13, 14, 18, 19 | 
| Amen-ankh-as, scarab of | 5 | 
| Amenemhat III, cylinder of | 15 | 
| Amenhotep III’s temple | 2, 16 | 
| Analysis of copper tools | 4 | 
| Arching, brick | 13, 14 | 
| Balls of limestone and carnelian | 7 | 
| Beads, amethyst | 15 | 
| ” blue frit | 9 | 
| ” with gold caps | 10 | 
| ” blue glaze | 20 | 
| ” carnelian | 7-9, 14, 15 | 
| ” copper | 9 | 
| ” felspar | 9 | 
| ” glass | 16 | 
| ” gold | 7, 9, 14 | 
| ” gold foil | 14 | 
| ” green felspar | 9 | 
| ” green glaze | 6, 15 | 
| ” haematite | 15 | 
| ” ivory | 9, 15 | 
| ” lapis lazuli | 14 | 
| ” serpentine | 6, 9 | 
| ” shell discs | 15 | 
| ” steatite | 9 | 
| Blue-glaze figure | 18 | 
| Box for burial | 7-9 | 
| Bracelets | 6, 7, 9, 10, 18 | 
| Bronze figures, late | 17, 18 | 
| Burial, headless | 10 | 
| ” irregular | 5 | 
| ” contracted | 6, 7, 9, 10 | 
| Burials, number in chamber | 15 | 
| Canopic jars | 8 | 
| Cists, pottery | 4-6, 8, 10, 11 | 
| Clarke, Mr. Somers | 1 | 
| Comb | 6, 10 | 
| Copper, bowl and ewer of | 4, 18 | 
| ” sa amulet | 18 | 
| ” tools, analysis | 4, 18, 20 | 
| ” rod | 14 | 
| Corn-grinders | 20 | 
| Cylinder of Ka-ra | 10, 20 | 
| ” of Men-kau-ra | 19 | 
| ” of User-kaf | 10, 20 | 
| ” Usertesen III | 18 | 
| ” of Amenemhat III | 15 | 
| ” black stone | 5, 6, 20 | 
| ” ivory | 6, 20 | 
| ” steatite | 10, 12, 18, 20 | 
| Dating of New Race | 11, 12 | 
| Diorite bowls | 3-8, 18 | 
| Distribution of antiquities | 1 | 
| Dolls, rude pottery | 6 | 
| Doors, slabs for | 3, 7, 8 | 
| Draughtsman, glazed steatite | 18 | 
| Ewer, copper | 4, 18 | 
| Felspar, discs of | 6, 9, 15 | 
| Fire-drill, model | 20 | 
| Flint, knife | 8 | 
| ” flake | 18 | 
| Foundation-deposits | 16, 20 | 
| Foundations of temple | 2 | 
| Girdle-tie, wooden | 20 | 
| Gold | 7, 9, 14 | 
| Graffiti, rock with | 2 | 
| Granary, models of | 4, 18, 19 | 
| Graves | 9, 10 | 
| Green paint | 4, 5 | 
| ” ” on face | 3, 12 | 
| ” glaze beads | 6, 15 | 
| Hairpins | 6, 8, 9, 18 | 
| Haworth, Mr. Jesse | 1 | 
| Inscriptions | 16, 18 | 
| ” on corn-grinders | 20 | 
| Incised pottery, black | 7, 8, 12, 20 | 
| Ivory box | 4 | 
| ” cup | 7 | 
| ” jars | 7 | 
| ” bowls | 7 | 
| ” disc | 9, 18 | 
| ” veneer | 9, 19 | 
| Jar, marble | 8, 14 | 
| ” green slate | 19 | 
| Jars, cylinder with cordage pattern (lattice) | 9 | 
| ” wavy-handled | 9 | 
| ” blocking doorways | 14 | 
| Kab, El, description of site | 2 | 
| ” ”wall of | 2 | 
| ” ”Roman landing-stage | 2 | 
| ” ”temple foundations | 2 | 
| ” ”evidence for dating New Race | 11 | 
| Ka-mena, mastaba of | 3 | 
| Ka-ra, steatite cylinder of | 10, 20 | 
| Kohl-pots | 15 | 
| ” sticks, ivory | 15 | 
| Libyan burials | 3 | 
| ” or New Race | 11 | 
| ” race, relation to Old Kingdom | 12 | 
| Limestone bowls | 6 | 
| ” vases | 7, 8 | 
| Linen cloth | 11 | 
| Majūr burials | 3-10, 13, 19, 20 | 
| Malachite | 4, 7, 10, 11 | 
| Mastaba of Ka-mena | 3 | 
| Mastabas with square shafts | 3-7 | 
| ” with sloping stairways | 3, 7-9 | 
| Mastabas with sloping stairways, neolithic character of | 8 | 
| Matwork | 9 | 
| Mena’s tomb, later New Race | 13 | 
| Men-kau-ra, cylinder of | 19 | 
| Middle Kingdom tombs | 13 | 
| Mirror, XVIIIth dynasty | 15 | 
| Mirrors without handles | 15 | 
| Model of shell | 20 | 
| ” tools, copper | 4, 18 | 
| Mummification, absence of | 15 | 
| Neb.ra, steatite plaque | 7 | 
| Nectanebo, cartouche | 17 | 
| Nefer-shem-em | 5, 18 | 
| Neolithic burials | 3 | 
| ” see Libyan | 11 | 
| ” relation to Old Kingdom | 12 | 
| New Race, burials | 3 | 
| ” see Libyan | 11 | 
| ” absence of Egyptian types | 12 | 
| ” relation to Old Kingdom | 12 | 
| ” characteristics | 13 | 
| ” pre-dynastic | 11 | 
| Palette, slate | 6, 8, 9 | 
| ” rubbers for | 8 | 
| Paint-slabs with pestles | 15, 17 | 
| Permission, delay in receiving | 1 | 
| Pigeon-house (?) | 17, 20 | 
| Pirie, Miss A. A. | 1 | 
| Plaque, steatite, Neb.ra | 7 | 
| Porphyry bowl | 4, 5, 18, 19 | 
| Pottery, Neolithic or New Race | 4, 6, 8 | 
| ” of IVth dynasty | 7-10, 16, 19, 20 | 
| ” of XIIth dynasty | 3 | 
| ” of XVIIIth dynasty | 15 | 
| ” of New Race, handmade | 12 | 
| ” bars of | 5, 10 | 
| ” coffins | 4-6, 8, 10, 11 | 
| ” marks | 8, 20 | 
| ” coarse, animal head | 9 | 
| ” ” dolls | 6 | 
| ” wheel-made | 10, 19 | 
| Rameses II, temple of | 2 | 
| Recurrence of groups | 8 | 
| Rock-inscriptions | 16 | 
| Roofing of tombs | 4, 9, 11, 14 | 
| Roman landing-stage | 2 | 
| Saucers, with cross of white paint | 14 | 
| Scarabs | 15 | 
| Seals, jar | 8 | 
| Serpentine beads | 6 | 
| Shell with white paint | 4 | 
| ” with green paint | 6, 9-11 | 
| Slate, dish of | 6 | 
| ” palette | 6, 8, 9 | 
| Sneferu, diorite bowls of | 3, 5 | 
| ” Ka-name on diorite dish | 4, 19 | 
| Soul-houses | 18 | 
| Spatula | 10 | 
| Spatulæ, serpentine and basalt | 15 | 
| Sphinxes, seated | 15 | 
| Stairway tombs | 3, 7-9 | 
| ” ” XIIth dynasty | 13 | 
| Statues of Nefer-shem-em | 5, 18 | 
| Statuette, alabaster | 15, 18 | 
| Steles, XIIth dynasty | 15, 18 | 
| Table of offerings, early | 16, 18 | 
| Thothmes III’s temple | 16 | 
| Tombs, rock, living in | 1 | 
| ” types of | 3 | 
| Tylor, Mr. J. J. | 1 | 
| User-Kaf, inscribed cylinder of | 10, 20 | 
| Usertesen III, cylinder of | 18 | 
| Ushabti, alabaster | 15, 18 | 
| Workmen, from Quft | 1 | 
LONDON:
PRINTED BY WILLIAM CLOWES AND SONS, Limited,
STAMFORD STREET AND CHARING CROSS.
stone vases, old kingdom.
cylinder, beads, &c.,
 from one tomb. (§ 13.)
from tomb of kamena. (§ 5.)
part of a mastaba wall.
pottery before the house.
nefer-shem-em.
from tomb of ka-mena.
from near amenhotep iii. temple.
xii. dyn. stela.
xii. dyn. stela.
glaze.
alabaster ushabti.
bronze.
xii. dyn.
sa amulet, etc.
gate deposit.
diorite and alabaster. old empire.
pottery of old empire.
mastabas c. and nefershemem, looking to great north wall.
mastabas of nefershemem and e., looking to great north wall.
lid of a box, old empire.
from below looking north
from below looking south